Размещено на портале Архи.ру (www.archi.ru)

23.06.2015

Дом памяти

Елизавета Эбнер

24 апреля 2015 года, за день до праздника – дня освобождения Италии от нацизма – в центре Милана, у подножия небоскреба «Вертикальный лес» открылся «Дом памяти».

«Дом памяти» © Stefano Graziani
«Дом памяти» © Stefano Graziani

В 2011 Hines Italia sgr совместно с коммуной Милана провели конкурс, в рамках которого было предложено 80 вариантов проекта здания, рассказывающего, показывающего и хранящего историю борьбы за свободу и установления демократии в Италии. Стоит отметить, что сначала проект был выполнен студией Стефано Боэри, но затем было принято решение выбрать архитектора на конкурсной основе. Обязательным условием было ограничение по возрасту: участникам должно было быть меньше 40 лет.
 
«Дом памяти» © Stefano Graziani
«Дом памяти» © Stefano Graziani

Сам Боэри стал председателем жюри, в которое также вошли архитекторы Лидес Канайя (Lides Canaia) и Сезар Пелли, генеральный директор Hines Italia sgr Манфреди Кателла (Manfredi Catella), политик Пьер Вито Антоньяцци (Pier Vito Antoniazzi). Первое место досталось проекту генуэзской студии baukuh, у которых теперь открылся и миланский офис.
 
«Дом памяти» © Stefano Graziani
«Дом памяти» © Stefano Graziani

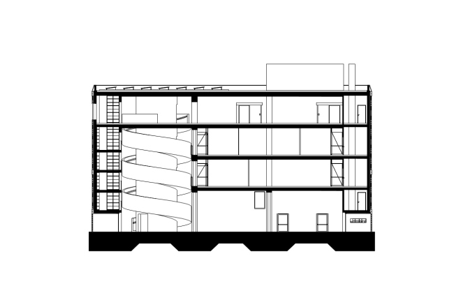
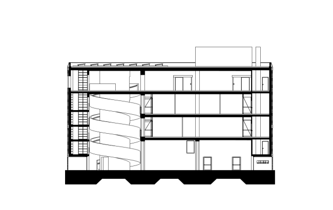
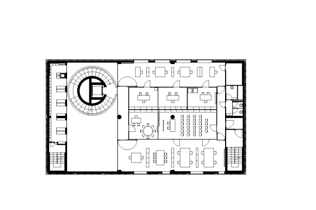
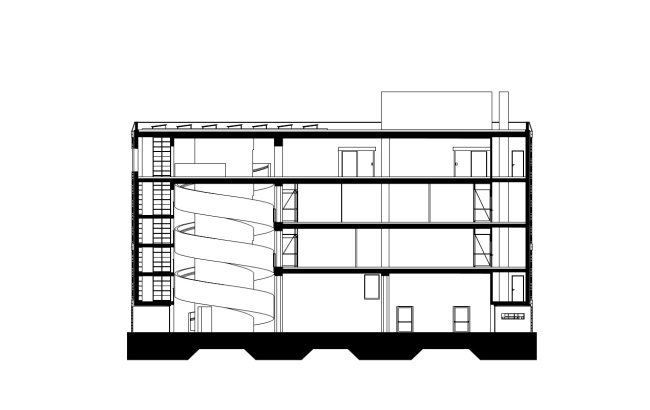
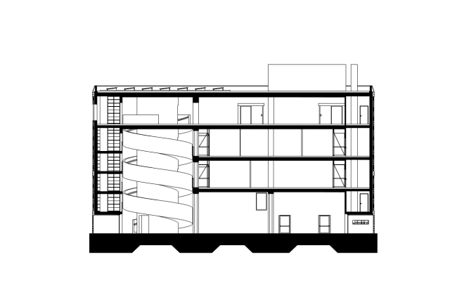
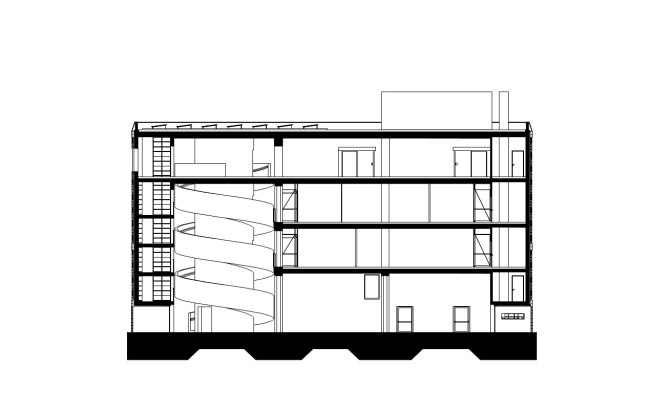
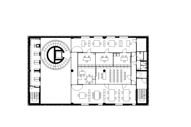
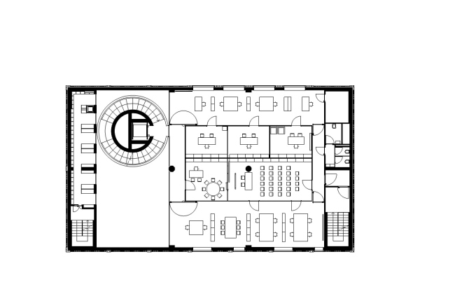
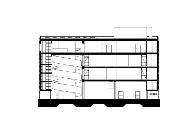
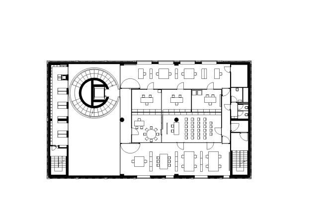
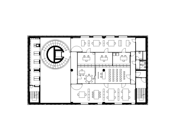
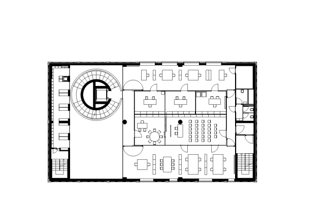
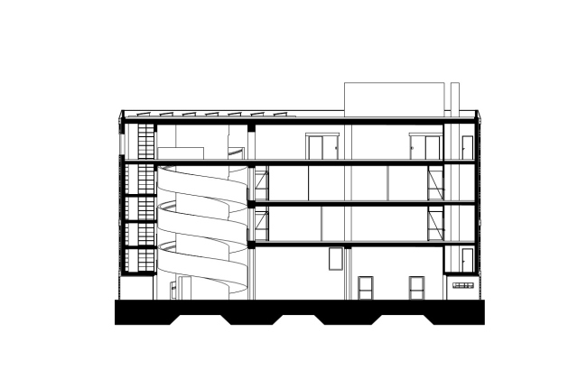
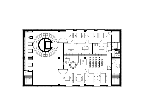
Проект baukuh представляет собой простой объем из кирпича высотой 17 метров и площадью 20 на 35 метров. На фасад здания нанесены восемь архивных фотографий событий новейшей истории Милана: отправка жителей в концлагеря, освобождение города от нацистов, теракт на площади Пьяцца-Фонтана в 1969 и другие, а также 19 портретов безымянных миланцев, демонстрирующие разнообразие населения мегаполиса в послевоенный период. Все изображения выложены из кирпича 6 оттенков размером 5,5/5,5/12 см: вблизи кирпичи кажутся просто «пикселами», тогда как на расстоянии складываются в мозаику. Выбор именно этого материала обусловлен богатой миланской традицией кирпичного строительства, начавшейся еще в эпоху Ренессанса.
 
«Дом памяти» © Giulio Boem
«Дом памяти» © Giulio Boem

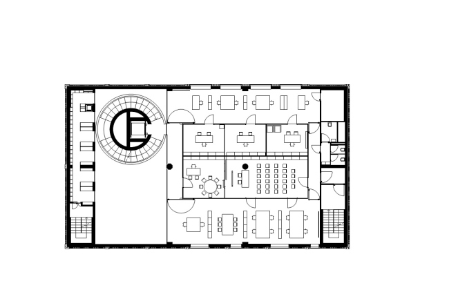
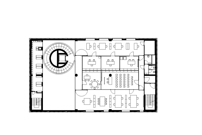
В интерьере архитекторы также добивались максимальной простоты как в отделке, так и в цветовом решении, так как здание должно было быть максимально гибким в использовании. Единственным акцентом служит массивная желтая лестница, ведущая посетителей с первого этажа на последний – непосредственно к архивам (они полностью занимают всю южную стену «Дома памяти», но, к сожалению, не открыты для публичного доступа). А что же находится на других этажах? За стеклянными дверьми с указателями базируются Ассоциация итальянских партизан, Институт по изучению итальянского движения Сопротивления, Ассоциация бывших депортированных, Ассоциация жертв терроризма и другие организации, занимающиеся темой свободы и демократии. «Дом памяти» был построен не только с целью сбора и обработки информации, но и для проведения различных мероприятий: как выставочно-лекционное пространство предполагается использовать первый этаж.
 
«Дом памяти» © Giulio Boem
«Дом памяти» © Giulio Boem

Перед архитекторами стояла непростая задача создания проекта, который должен «пройти сквозь время» и остаться актуальным с точки зрения архитектурного образа как в ближайшем, так и в далеком будущем. Конечно, сказать наверняка, удалось ли авторам добиться этого, пока сложно, но, с моей точки зрения, архитектурное решение получилось настолько простым, емким и универсальным, что есть все основания полагать, что таким оно будет восприниматься и через много лет.
 
«Дом памяти» © Stefano Graziani
«Дом памяти» © Stefano Graziani

Свое название «Дом памяти» получил неслучайно: ведь это место – не музей, не библиотека, не культурный центр, а пространство, где жители Милана смогут сохранить воспоминания о событиях, которые им особенно важны.
«Дом памяти» © Stefano Graziani
«Дом памяти» © Stefano Graziani

Что касается финансовой стороны, проект – очень «бюджетный»: на его реализацию было выделено 3,6 миллиона евро. Получается, что один квадратный метр стоил 1500 евро – весьма скромная сумма для общественного здания в самом центре Милана, особенно учитывая бюджет всего комплекса, реализуемого здесь Hines Italia sgr – с современными офисами, жилыми небоскребами и зданием фонда Риккардо Кателла. Грустно, что на дом, посвященный демократии и памяти о тех событиях, которые нельзя забыть, выделяют несравнимо меньшие средства, чем на элитные небоскребы. А ведь миланская коммуна вообще согласовала этот девелоперский проект во многом благодаря обещанию включить в него «Дом памяти». С другой стороны, хорошо, что застройщик все же сдержал свое слово – ведь нам, в основном, известны обратные случаи.
 
«Дом памяти» © Stefano Graziani
«Дом памяти» © Stefano Graziani

Как бы то ни было, «Дом памяти», пусть и в тени небоскребов, но существует, а значит важные для миланцев и всей Италии воспоминания сохранены для потомков.
«Дом памяти» © Stefano Graziani
«Дом памяти» © Stefano Graziani
«Дом памяти» © Stefano Graziani
«Дом памяти» © Stefano Graziani
«Дом памяти» © Stefano Graziani
«Дом памяти» © Stefano Graziani
«Дом памяти» © Stefano Graziani
«Дом памяти» © Stefano Graziani
«Дом памяти» © Stefano Graziani
«Дом памяти» © Stefano Graziani
«Дом памяти» © Stefano Graziani
«Дом памяти» © Stefano Graziani
«Дом памяти» © Stefano Graziani
«Дом памяти» © Stefano Graziani
«Дом памяти» © baukuh
«Дом памяти» © baukuh
«Дом памяти» © baukuh
«Дом памяти» © baukuh
«Дом памяти» © baukuh
«Дом памяти» © baukuh
«Дом памяти» © baukuh
«Дом памяти» © baukuh
«Дом памяти» © baukuh
«Дом памяти» © baukuh
«Дом памяти» © baukuh
«Дом памяти» © baukuh