Размещено на портале Архи.ру (www.archi.ru)

19.06.2015

Палаццо на Крестовском

Лилия Аронова
Объект:
Жилой дом «Верона»
Адрес:
Россия, Санкт-Петербург. Морской проспект, д. 29, литера А
Мастерская:
Евгений Герасимов и партнеры
Авторский коллектив:

Руководитель: Е.Л. Герасимов
Главный архитектор проекта: О.В. Каверин
Архитекторы: А.С. Орлов, М.П. Борисюк, Д.А. Зайцев
Главный конструктор: М.Я. Резниченко
Конструкторы: Д.О. Григорьев, Д.А. Астапчик, В.Ю. Антонов, А.С. Денисов
Генплан: Е.Н. Кузнецова, А.С. Титова, И.А. Харинская
 

Евгений Герасимов продолжает «итальянскую серию» на Крестовском острове. Вслед за домом «Венеция» началось строительство «Вероны», соединившей в себе черты загородной резиденции и городского дворца эпохи Возрождения.

Известно, что до конца XIX века Крестовский остров считался местом отдыха низшего сословия, чистую публику здешние болота не привлекали. Сегодня петербуржцы воспринимают этот факт как исторический анекдот: на острове одна за другой возводятся жилые комплексы премиум-класса, стоимость квадратного метра в которых признана самой высокой в городе. Евгений Герасимов – пионер этого процесса, его комплекс «Зеленый остров» сдан в эксплуатацию в 2000 году, а в течение следующего десятилетия мастерская осуществила на Крестовском ещё несколько ярких проектов. Сегодня процесс застройки «зеленой жемчужины Петербурга» статусной недвижимостью замедлился, подходящих участков почти не осталось, так что спроектированный Герасимовым дом «Верона», строительство которого начинается сейчас на Морском проспекте, имеет шанс стать одной из последних здешних элитных новостроек, таким образом красиво закольцевав историю.

Жилой дом «Верона». Интерьер. Проект, 2014. Ситуационный план © Евгений Герасимов и партнеры
Жилой дом «Верона». Интерьер. Проект, 2014. Ситуационный план © Евгений Герасимов и партнеры

Дом будет построен по адресу Морской проспект, 29, на месте недавно снесённого конструктивистского здания, последнего из двенадцати корпусов Крестовского жилмассива. Участком занимается корпорация «Возрождение Санкт-Петербурга», которая, развивая успех только что построенного по соседству дома «Венеция», продолжила сотрудничество с мастерской «Евгений Герасимов и партнеры». Этим фактом преемственность не ограничилась: в качестве стилевой доминанты был снова выбран образ итальянского палаццо эпохи Возрождения, а в поисках риелторского названия даже не стали выходить из границ региона Венето – будущий дом получил имя «Верона». Кстати сказать, дом станет уже третьим «палаццо» в портфолио Евгения Герасимова: первым и самым громким стал проект гостиницы на площади Островского, рядом с Александринкой. Вполне органичный архетип для Санкт-Петербурга, города, чья связь с итальянской архитектурой не нуждается в доказательствах.

Итак, что такое ренессансное палаццо, в данном случае в его римской разновидности? Прежде всего это замкнутый периметр, чьи фасады отличаются строгостью и лаконичностью, а собственно жизнь сосредотачивается во внутреннем дворе. Сегодня подобная закрытость, возможно, мрачновато смотрелась бы в тесном ряду примыкающих друг к другу домов, но в окружении парков и скверов Крестовского острова – 60% площади квартала составляют зеленые насаждения – отдельно стоящее здание смотрится несколько иначе, как форпост города. На этот эффект работает и решение фасада, выходящего на основную магистраль острова – Морской проспект. Ярко выраженная иерархия главного и боковых фасадов, выстроенная с помощью классического архитектурного лексикона, подчеркивается выбором материалов – настолько выразительным, что одного этого вполне хватило бы, чтобы показать, кто тут главный. Фасад, выходящий на Морской, полностью облицован матовым светло-бежевым известняком, боковым же сторонам здания, отделанным неярким лицевым кирпичом, от этого парадного великолепия достались лишь изящные и не слишком многочисленные детали: наличники, фронтоны, поэтажные тяги. Сочетание красно-коричневого кирпича и светлого натурального камня снова отсылает нас в Италию эпохи Возрождения – в частности, к колокольне венецианской церкви Сан-Джорджо Маджоре, которую Герасимов сам называет источником вдохновения для этого проекта.
Жилой дом «Верона». Проект, 2014 © «Евгений Герасимов и партнеры»
Жилой дом «Верона». Проект, 2014 © «Евгений Герасимов и партнеры»
Жилой дом «Верона». Северо-западная сторона. Проект, 2014 © «Евгений Герасимов и партнеры»
Жилой дом «Верона». Северо-западная сторона. Проект, 2014 © «Евгений Герасимов и партнеры»
Жилой дом «Верона». Проект, 2014. Схема планировочной организации земельного участка © «Евгений Герасимов и партнеры»
Жилой дом «Верона». Проект, 2014. Схема планировочной организации земельного участка © «Евгений Герасимов и партнеры»

Тут-то и начинаются нюансы. Дом, особенно издали, напоминает не столько колокольню, сколько саму церковь Сан-Джорджо: быстрый взгляд улавливает масштаб, контраст кирпича и камня – и крупный портик, каннелированные коринфские полуколонны которого объединяют четыре этажа. Впечатление издали вполне венецианское, даже палладианское, именно такое ощущение, помимо прочих, несут пластичные светло-каменные фасады Андреа Палладио, приложенные к каменным махинам церквей. Да впрочем, и не только его фасады: репрезентативная пластичная декорация, приложенная к массивному кирпичному объему, ждущему своего часа, почти не оформленному или оформленному слегка – частое впечатление от многих итальянских церквей. И не только церквей, похожее сочетание несколько инертного кирпича и подчеркнуто упорядоченного – то есть подчиненного ордеру, камня часто встречается в городских воротах, приложенных в XVI веке и позднее к кирпичным стенам городов. Если, следуя прихоти риелторского названия, мы взглянем на Верону, то найдём там двое похожих ворот, построенных современником Палладио Микеле Санмикеле.
Жилой дом «Верона». Проект, 2014. Фасады © «Евгений Герасимов и партнеры»
Жилой дом «Верона». Проект, 2014. Фасады © «Евгений Герасимов и партнеры»

Итак, эффект приложенного к зданию ренессансного фасада здесь пойман достаточно точно. Однако затем мы замечаем, что пропорции сильно вытянуты, фриз между капителями и фронтоном вырос до целого этажа, а рустованный цоколь занял два этажа. Между колоннами появилось полукруглое «термальное окно», признак архитектуры времени наполеоновских войн и более поздней, – а фусты колонн каннелированные, такого у Палладио не было, это тоже признак более поздней архитектуры: с одной стороны, ещё более точно ориентированной на античные образцы, а с другой, обременённой новым масштабом… Дальше мы замечаем, что на фасаде присутствует другая тема: петербургская, данная уплощенным фоном – именно сквозь неё прорастает, выступает вперёд объемный портик. Руст, объединяющий третий и четвертый этажи – не ренессансный, а скорее петровский, линейный, и больше напоминает «Двенадцать коллегий» (что, впрочем, не делает его менее итальянским, архитектор-то Трезини). Выше плоские пилястры объединяют уже не четыре, а три этажа, сбивают ритм, скорее обозначая, чем подчеркивая различие, взаимный сдвиг основы и центра. И наконец, невысокая входная лоджия, обрамленная плотно скроенными колоннами тосканского ордера, совершенно определенно напоминает о северном петербургском модерне: тут-то мы и замечаем, что выстроенная над ней вертикальная композиция тройных окон тоже принадлежит серебряному веку, и только ему, и ампирное термальное окно навеяно, в свою очередь, пассеизмом начала XX века. Это дань контексту: не лучший, не такой, как на Каменном острове, но северный модерн на Крестовском встречается. Так что фасад непрост, минимум три темы наложены друг на друга и геометрически, и в пространстве; на периферии же создания почему-то маячит смутное воспоминание о библиотеке Цельса и тень сталинской архитектуры, почти неизбежного спутника любых современных российских экспериментов с классикой, тоже не оставляет нас, хотя в этом проекте она и не сильна – разве что некоторое влияние Муссолиниевских экспериментов можно разглядеть на боковых фасадах, впрочем, смягченных «средневековыми» бифориями.
Жилой дом «Верона». Северо-восточная сторона. Проект, 2014 © «Евгений Герасимов и партнеры»
Жилой дом «Верона». Северо-восточная сторона. Проект, 2014 © «Евгений Герасимов и партнеры»

Дому отведена также не то чтобы очень большая, но любопытная архитектурно-градостроительная роль. Окружающая его застройка Крестовского острова в основном состоит из образцов, скажем по-московски, «лужковского стиля», расставленных просторно и, как кажется, довольно-таки произвольно. Два дома Евгения Герасимова: «Венеция» и «Верона», – среди этой вольницы выглядят аристократами. «Мы намеренно развернули главный фасад параллельно красной линии магистрали: благодаря этому здание превратилось в небольшой дом-квартал, подчеркивающий планировочную структуру улиц», – говорит главный архитектор проекта Олег Каверин. Действительно, оба дома держат строй – один набережной, другой проспекта, обозначают линии улиц. Даже интересно наблюдать за их подтянутостью в то время когда другие дома вокруг скорее прогуливаются. Кроме того, несмотря на замеченное выше наличие нескольких смысловых и пластических слоев, оба дома отличаются ощутимой связностью композиции, строгими и уверенными пропорциями – это совершенно иной, больший уровень серьезности толкования форм классической архитектуры. Два дома рифмуются и перекликаются друг с другом и даже заставляют увидеть в них агентов влияния городской культуры нового качества в дачно-пригородной обстановке элитного Крестовского.

Внутренний двор планируется замостить плиткой, найдя место для газона и малых архитектурных форм, дворовые фасады будут отделаны крупноразмерными керамогранитными плитами того же светло-бежевого оттенка, что и облицовочный камень главного фасада. Тему итальянской классики поддержит оформление вестибюля: здесь запланировано установить такие же, как у входа, колонны, которые подчеркнут направление главной оси здания. В цветовой гамме главную скрипку будет играть всё тот же благородный оттенок светлого известняка (все полы и стены отделываются исключительно натуральным камнем).
Жилой дом «Верона». Интерьер. Проект, 2014 © «Евгений Герасимов и партнеры»
Жилой дом «Верона». Интерьер. Проект, 2014 © «Евгений Герасимов и партнеры»
Жилой дом «Верона». Интерьер. Проект, 2014 © «Евгений Герасимов и партнеры»
Жилой дом «Верона». Интерьер. Проект, 2014 © «Евгений Герасимов и партнеры»
Жилой дом «Верона». Интерьер. Проект, 2014 © «Евгений Герасимов и партнеры»
Жилой дом «Верона». Интерьер. Проект, 2014 © «Евгений Герасимов и партнеры»

Евгений Герасимов – архитектор чрезвычайно разноплановый. В рамках одного стиля ему «тесно и скучно», ему равно интересны и остросовременная архитектура, и новое прочтение классических традиций. К архитектурному историзму Герасимов относится без фанатизма, но с уважением: «Время шуток на исторические темы прошло», – считает он. Внятный, лаконичный, логичный проект дома на Морском проспекте – отличный пример современного переосмысления классической традиции. Без иронии. Всерьёз.
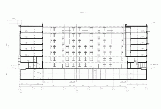
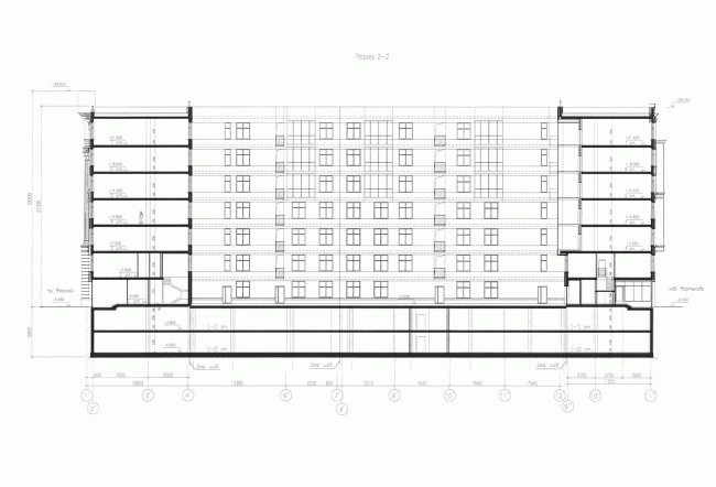
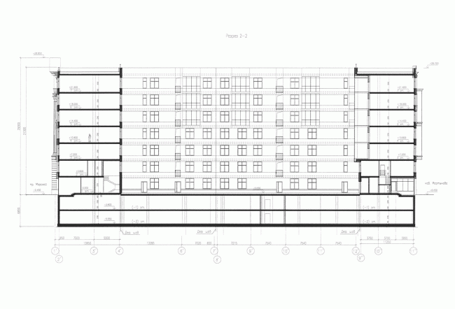
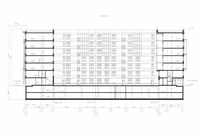
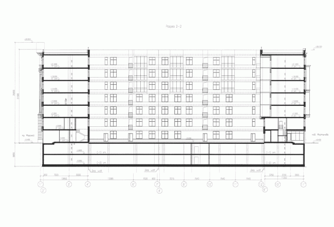
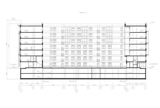
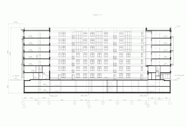
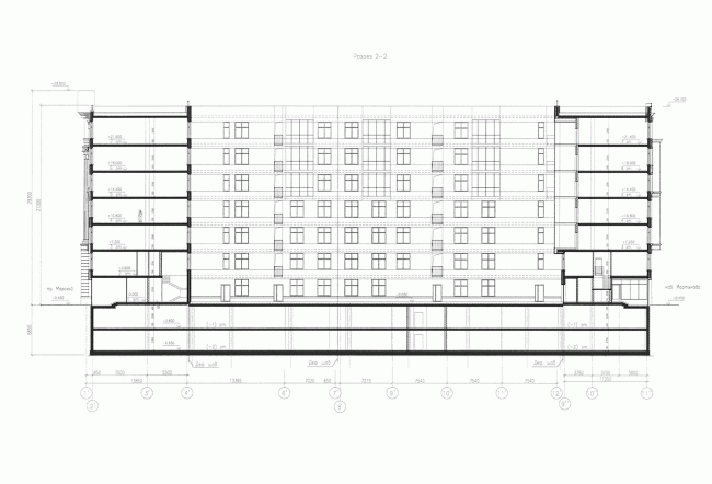
Жилой дом «Верона». 2014. Разрез © «Евгений Герасимов и партнеры»
Жилой дом «Верона». 2014. Разрез © «Евгений Герасимов и партнеры»
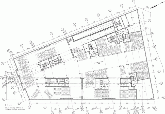
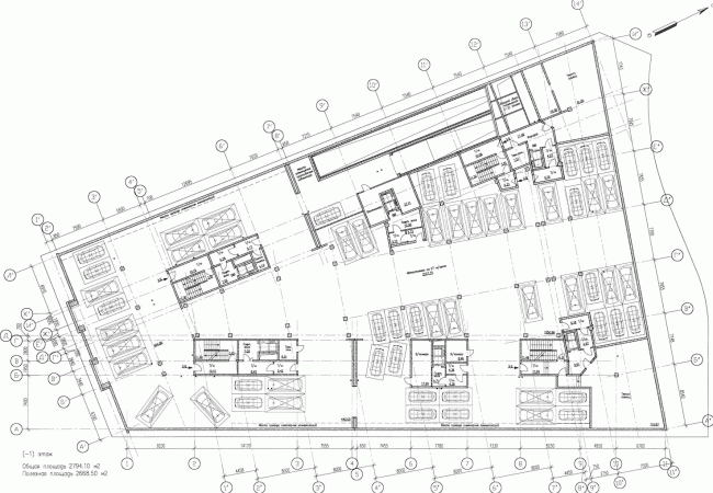
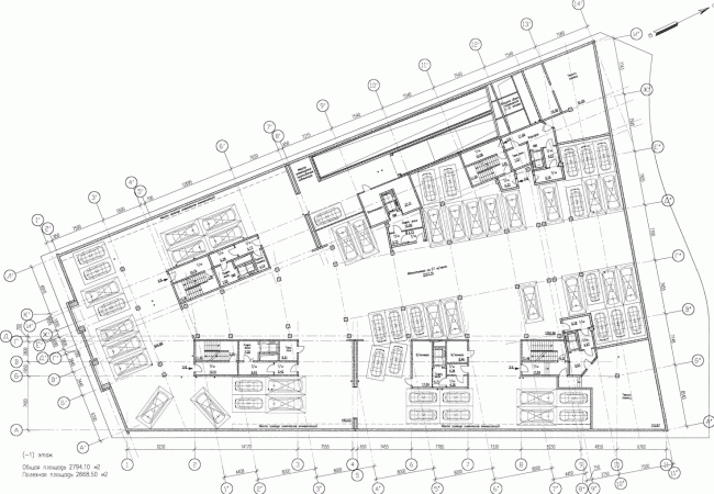
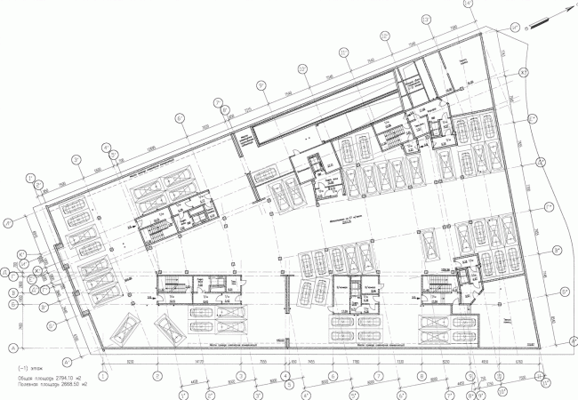
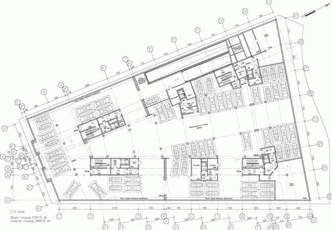
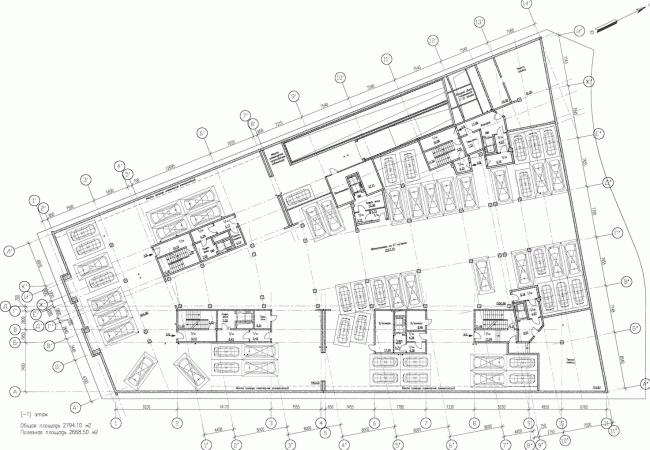
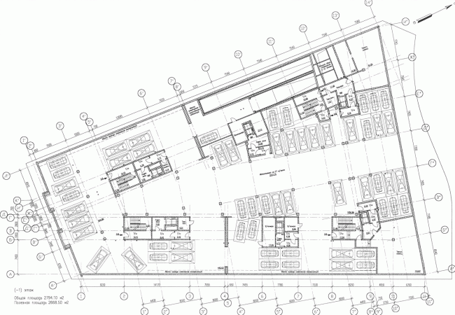
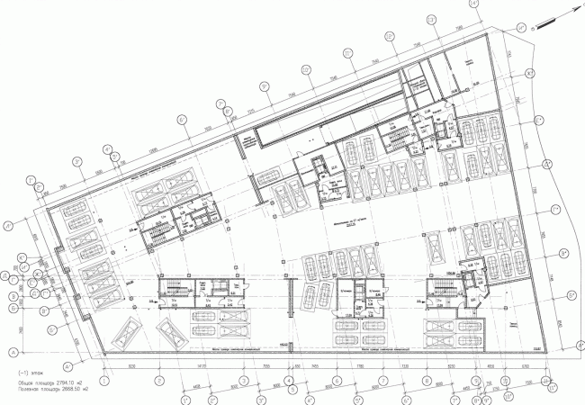
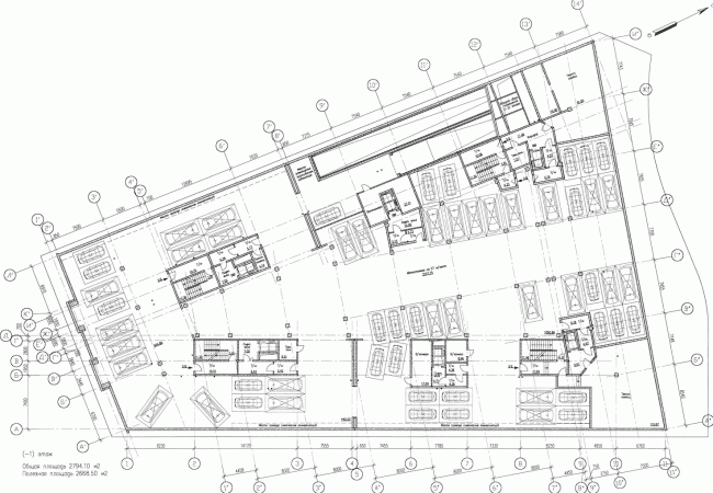
Жилой дом «Верона». 2014. План -1 этажа © «Евгений Герасимов и партнеры»
Жилой дом «Верона». 2014. План -1 этажа © «Евгений Герасимов и партнеры»
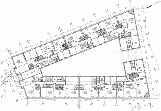
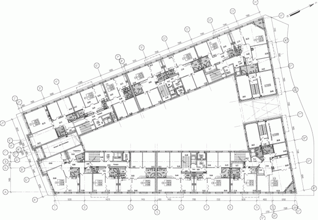
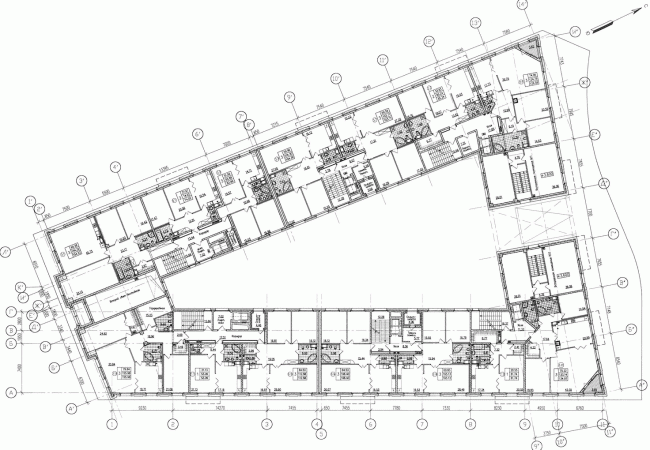
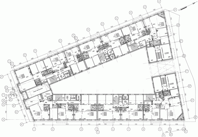
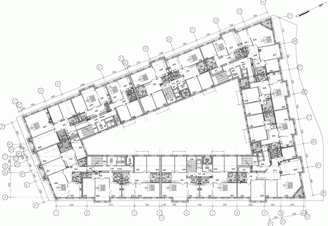
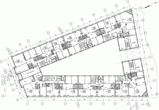
Жилой дом «Верона». 2014. План 1 этажа © «Евгений Герасимов и партнеры»
Жилой дом «Верона». 2014. План 1 этажа © «Евгений Герасимов и партнеры»
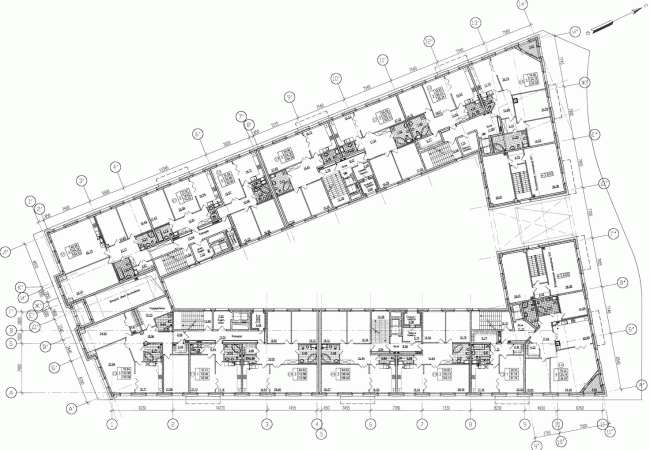
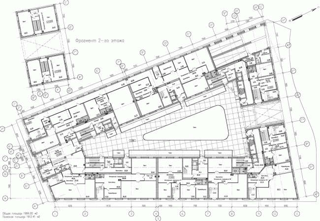
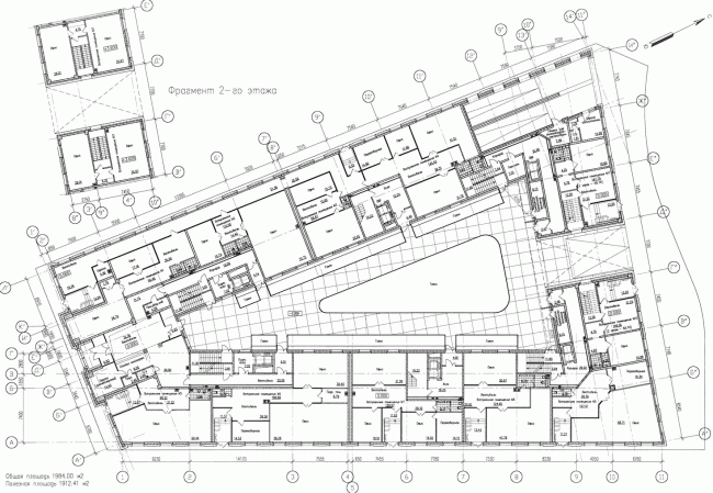
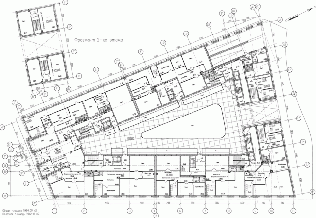
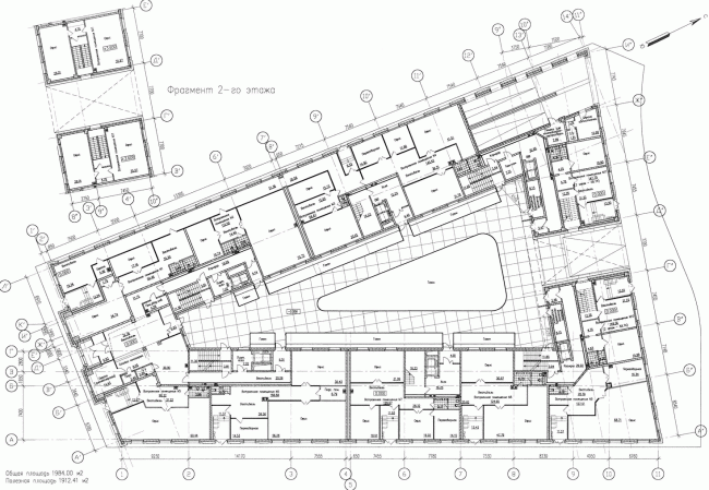
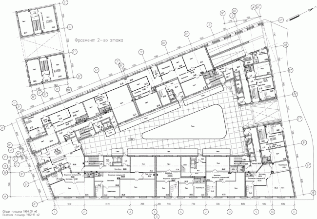
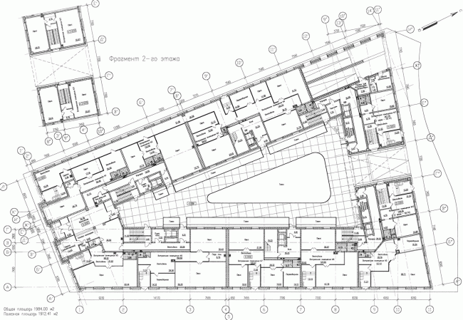
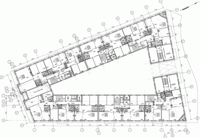
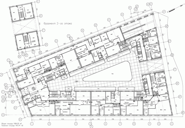
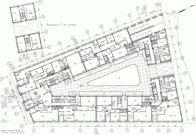
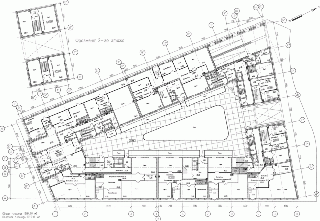
Жилой дом «Верона». 2014. План 2 этажа © «Евгений Герасимов и партнеры»
Жилой дом «Верона». 2014. План 2 этажа © «Евгений Герасимов и партнеры»
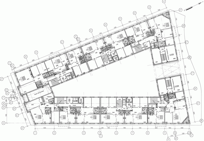
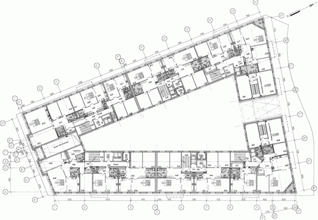
Жилой дом «Верона». Интерьер. Проект, 2014. План 3 этажа © «Евгений Герасимов и партнеры»
Жилой дом «Верона». Интерьер. Проект, 2014. План 3 этажа © «Евгений Герасимов и партнеры»