Размещено на портале Архи.ру (www.archi.ru)

18.06.2015

На зеленом подиуме

Анна Викторова
Объект:
Жилой квартал «Опалиха-village»
Адрес:
Россия, Красногорск. город Красногорск, микрорайон Опалиха
Мастерская:
Архитектуриум
Авторский коллектив:
Архитекторы: Владимир Биндеман, Инна Панкратова, Алексей Ковалев, Лариса Деблик.
При участии: Алисы Новохатько, Максима Салыкина, Юлии Ивлевой
 

Неподалеку от Красногорска по проекту мастерской «Архитектуриум» Владимира Биндемана начинается реализация нового жилого квартала «Опалиха-village».

Жилой квартал «Опалиха-village» © «Архитектуриум»
Жилой квартал «Опалиха-village» © «Архитектуриум»

Окрестности подмосковного Красногорска архитектору Владимиру Биндеману знакомы хорошо: в частности, именно здесь он построил свой «Рижский квартал», не раз признанный лучшим поселком бизнес-класса и получивший Серебряный знак «Зодчества» 2013. Новый район создается в непосредственной близости от него – на территории между «Рижским кварталом» и Волоколамским шоссе. Несмотря на то, что у этих проектов разные инвесторы, архитектор получил довольно редкий в российской строительной практике шанс «продолжить начатое». И блестяще им воспользовался, обеспечив новому комплексу и запоминающийся индивидуальный облик, и ощутимую архитектурную преемственность.

Формально территория между поселком и шоссе разбита на два участка – почти одинаковой площади (0,73 и 0,95 га) и схожей трапециевидной формы, – один из которых вытянулся вдоль трассы, а другой ориентирован перпендикулярно ей. Объединить наделы, увы, никак нельзя – между ними проходит дорога, которая, собственно, и обеспечивает подъезд к «Рижскому кварталу». Однако в архитектурно-планировочном отношении их разобщенность никак не подчеркнута. Наоборот, архитекторы размещают на обеих площадках одинаковые типы домов, варьируя лишь их количество и компоновку.
Жилой квартал «Опалиха-village». Проект, 2014 © Архитектуриум
Жилой квартал «Опалиха-village». Проект, 2014 © Архитектуриум
Жилой квартал «Опалиха-village». Ситуационный план © Архитектуриум
Жилой квартал «Опалиха-village». Ситуационный план © Архитектуриум
Жилой квартал «Опалиха-village». Генеральный план с поселком таунхаусов «Рижский квартал» © Архитектуриум
Жилой квартал «Опалиха-village». Генеральный план с поселком таунхаусов «Рижский квартал» © Архитектуриум

У застройки, встраиваемой между шоссе и поселком таунхаусов, есть два «слоя» – внешний и внутренний. Первый вполне предсказуемо выполняет роль более твердой, защитной «кожуры», тогда как внутренний пояс домов – это нежная «мякоть». В архитектурном отношении это, конечно, явственнее всего проявляется в выборе материалов и палитры облицовки (темно-терракотовой гамме кирпича противопоставлены белые панели и вставки и светлого дерева), но и на уровне планировки двойственность считывается мгновенно. На обоих участках архитекторы размещают параллельно трассе многосекционные жилые дома высотой по шесть этажей, и еще один такой дом ставят вдоль длинной стороны того из участков, что перпендикулярен шоссе. Таким образом и у нового района, и раскинувшегося поодаль поселка появляются экраны, обособившие их от внешнего мира. Что же касается внутренней застройки, то здесь архитекторы отдали предпочтение точечным четырех-шестиэтажным башням – компактные в плане и более низкие по этажности, они обеспечивают гармоничный переход от таунхаусов к многоквартирным домам.
Жилой квартал «Опалиха-village» © «Архитектуриум»
Жилой квартал «Опалиха-village» © «Архитектуриум»
Жилой квартал «Опалиха-village». Проект, 2014 © Архитектуриум
Жилой квартал «Опалиха-village». Проект, 2014 © Архитектуриум

Конечно, визуальные взаимосвязи созданы между двумя объектами и на уровне архитектуры. И если для оформления таунхаусов Владимир Биндеман в свое время придумал универсальный микс, в котором в равных пропорциях сочетались темный кирпич, белая штукатурка и натуральное дерево, то на более крупных объемах секционных домов эти материалы разделены. «Экраны» облицованы преимущественно кирпичом (причем подчеркнуто иного, более терракотового, чем «Рижский квартал» оттенка), брутальный характер которого оттенен межэтажными швеллерами и мансардными кровлями из темно-серого металла. Впрочем, понимая, что так дома недолго и уподобить крепостным стенам, архитекторы «разбавляют» их неприступную внешность масштабным остеклением первого общественного этажа и треугольными белоснежными нишами-вмятинами, за счет которых уменьшена до требуемой по заданию площадь квартир центральных этажей.
Жилой квартал «Опалиха-village». Проект, 2014 © Архитектуриум
Жилой квартал «Опалиха-village». Проект, 2014 © Архитектуриум
Жилой квартал «Опалиха-village». Проект, 2014 © Архитектуриум
Жилой квартал «Опалиха-village». Проект, 2014 © Архитектуриум

Вытянутой форме этих объемов, многократно подчеркнутой и акцентированной с помощью межэтажных швеллеров, противопоставлены белоснежные башни, которые хоть и ниже ростом, но устремлены ввысь. По крайней мере, именно такое впечатление создают объединенные по вертикали довольно узкие окна, которыми эти дома обращены к своим кирпичным собратьям. На «Рижский квартал» и его главную природную достопримечательность – озеро – башни, наоборот, смотрят практически сплошным остеклением. Единственной более материальной, чем стекло, вертикальной перемычкой здесь стала вставка из светлого дерева – точно такое же использовано в оформлении как таунхаусов, так и въездной группы «Рижского квартала».
Жилой квартал «Опалиха-village». Фасады © Архитектуриум
Жилой квартал «Опалиха-village». Фасады © Архитектуриум

Под каждым из двух участков изначально планировалось разместить подземный паркинг, однако чересчур обводненная почва не позволила это сделать. «Нам фактически пришлось вытащить паркинги на уровень земли, но ландшафт подсказал правильное решение – мы обваловали их и озеленили склоны, тем самым спрятав основание домов от глаз будущих жильцов», – поясняет Владимир Биндеман. Это решение породило и принципиально иную организацию входных групп: подъезды врезаны в откосы и фланкированы бетонными плоскостями и перголами, которые архитекторы предлагают выкрасить в белый цвет. Самим склонам архитекторы придают живописную волнистую форму, подчеркивая их рукотворную природу, а система пандусов и террас делает доступным общественный этаж комплекса, в котором предполагается разместить офис управляющей компании, кафе, ресторан, супермаркет и фитнес-клуб. Таким образом, каждый из домов получает элегантное основание, в облике которого белоснежные плоскости чередуются с озелененными поверхностями, задавая единый высокий стандарт благоустройства всей территории.
 
Жилой квартал «Опалиха-village». Фасады © Архитектуриум
Жилой квартал «Опалиха-village». Фасады © Архитектуриум
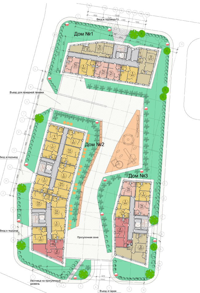
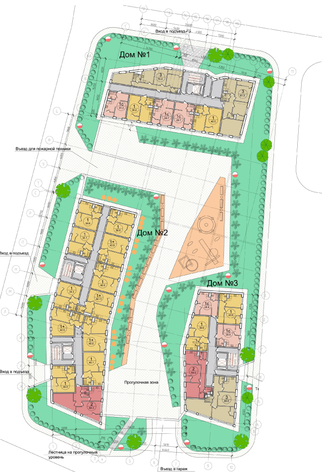
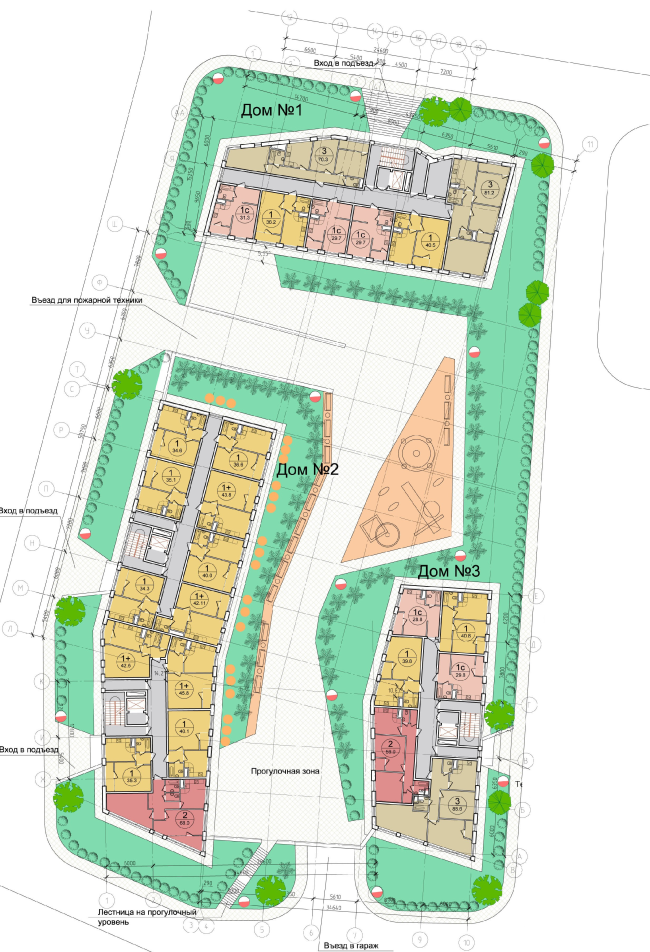
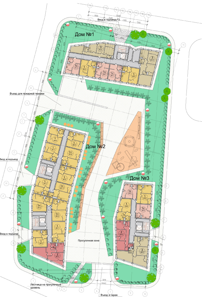
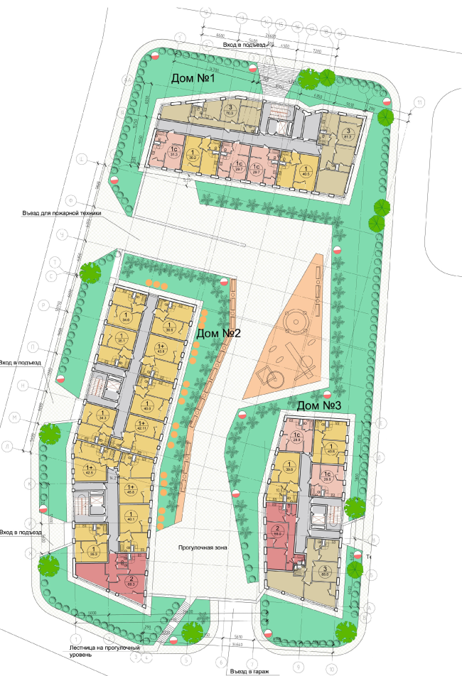
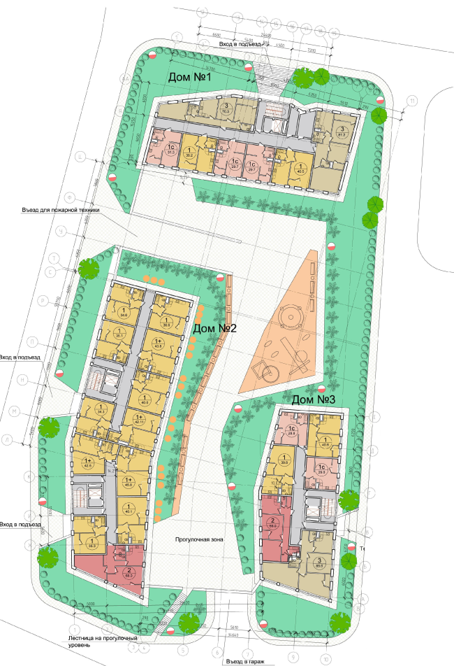
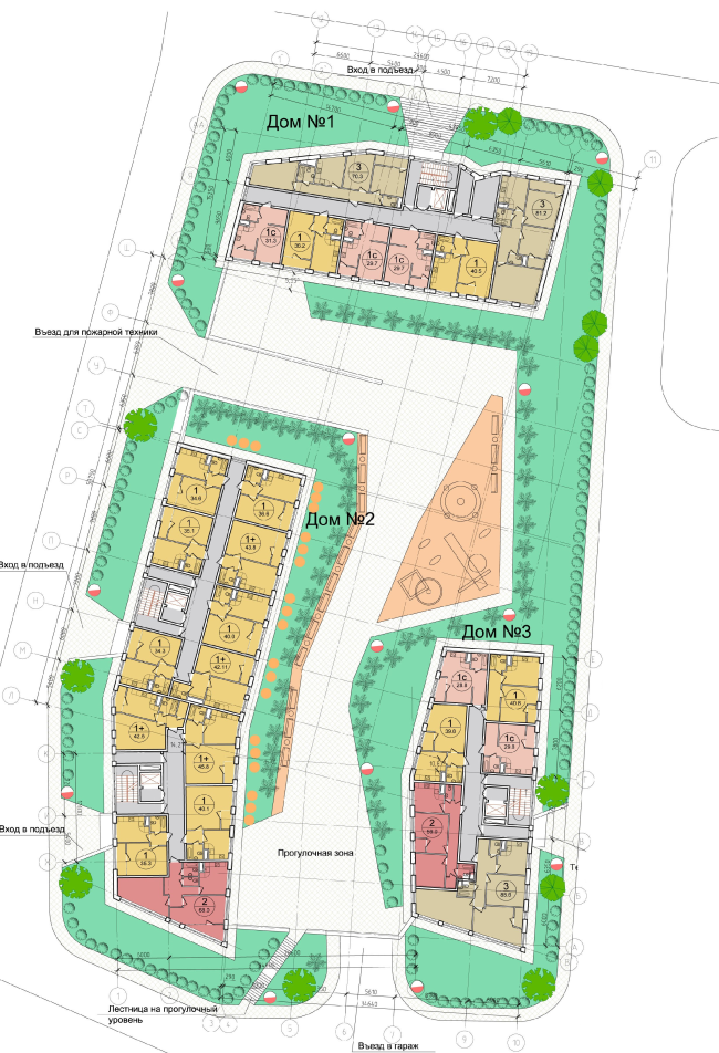
Жилой квартал «Опалиха-village». Генеральный план © Архитектуриум
Жилой квартал «Опалиха-village». Генеральный план © Архитектуриум
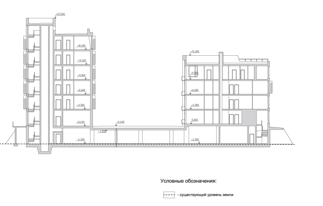
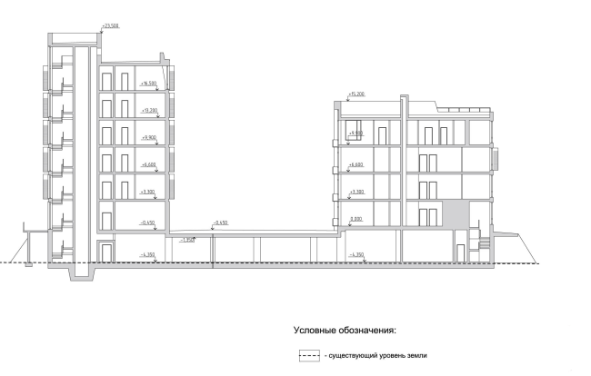
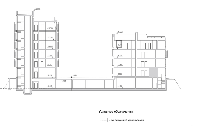
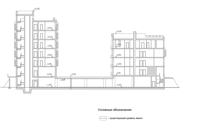
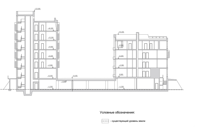
Жилой квартал «Опалиха-village». Разрез © Архитектуриум
Жилой квартал «Опалиха-village». Разрез © Архитектуриум
Жилой квартал «Опалиха-village». Разрез © Архитектуриум
Жилой квартал «Опалиха-village». Разрез © Архитектуриум
Жилой квартал «Опалиха-village». План подземной автостоянки корпусов жилого дома №1 © Архитектуриум
Жилой квартал «Опалиха-village». План подземной автостоянки корпусов жилого дома №1 © Архитектуриум
Жилой квартал «Опалиха-village». План 1 этажа корпусов жилого дома №1 © Архитектуриум
Жилой квартал «Опалиха-village». План 1 этажа корпусов жилого дома №1 © Архитектуриум
Жилой квартал «Опалиха-village». План типового этажа корпусов жилого дома №1 © Архитектуриум
Жилой квартал «Опалиха-village». План типового этажа корпусов жилого дома №1 © Архитектуриум
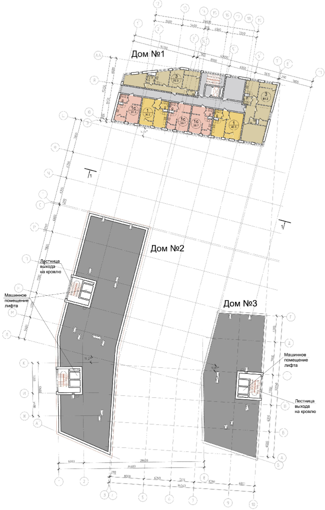
Жилой квартал «Опалиха-village». План 6 этажа корпусов жилого дома №1 © Архитектуриум
Жилой квартал «Опалиха-village». План 6 этажа корпусов жилого дома №1 © Архитектуриум
Жилой квартал «Опалиха-village». План подземной автостоянки корпусов жилого дома №2 © Архитектуриум
Жилой квартал «Опалиха-village». План подземной автостоянки корпусов жилого дома №2 © Архитектуриум
Жилой квартал «Опалиха-village». План 1 этажа корпусов жилого дома №2 © Архитектуриум
Жилой квартал «Опалиха-village». План 1 этажа корпусов жилого дома №2 © Архитектуриум
Жилой квартал «Опалиха-village». План типового этажа корпусов жилого дома №2 © Архитектуриум
Жилой квартал «Опалиха-village». План типового этажа корпусов жилого дома №2 © Архитектуриум
Жилой квартал «Опалиха-village». План 6 этажа корпусов жилого дома №2 © Архитектуриум
Жилой квартал «Опалиха-village». План 6 этажа корпусов жилого дома №2 © Архитектуриум