Размещено на портале Архи.ру (www.archi.ru)

11.06.2015

В разном масштабе

Объект:
Летний павильон в селе Воздвиженское
Адрес:
Россия, с. Воздвиженское
Многофункциональное пространство Государственного Исторического Музея «Форум»
Адрес:
Россия, Москва. Площадь Революции, д. 2/3
Павильон «Antiartplay»
Адрес:
Россия, Москва. ул. Нижняя Сыромятническая, д. 10, стр. 7
Общежитие для студентов «Трансформер»
Адрес:
Литва,
Life Cube
Адрес:
Россия, Новороссийск.
Мастерская:
ГОРОЖАНЕ/ CITIZENSTUDIO
Хачатурян Архитекторы
Archian
Авторский коллектив:
Архитектор - Балдина Анна Олеговна
3D визуализатор – Дмитриев Дмитрий Александрович

Публикуем еще пять проектов, полученных редакцией: три небольших павильона, общежитие из контейнеров и монументальный МФК в Новороссийске.

Редакция Архи.ру продолжает принимать проекты, все правила и адрес – здесь.
 

***

Летний павильон в селе Воздвиженское
Московская область, Сергиево-Посадский район / 2013
Khachaturian Architects, Артур Хачатурян, Жанна Хачатурян

 
Летний павильон в селе Воздвиженское. Вид с террасы ©  Khachaturian Architects
Фото: Артур Хачатурян
Летний павильон в селе Воздвиженское. Вид с террасы © Khachaturian Architects Фото: Артур Хачатурян

Летняя беседка расположена на территории производственной зоны и предназначена для отдыха членов семьи заказчика, его друзей и деловых партнеров – как большой компанией, так и в одиночестве.
 
Летний павильон в селе Воздвиженское. Общий вид ©  Khachaturian Architects
Фото: Артур Хачатурян
Летний павильон в селе Воздвиженское. Общий вид © Khachaturian Architects Фото: Артур Хачатурян
Летний павильон в селе Воздвиженское. Общий вид © Khachaturian Architects
Фото: Артур Хачатурян
Летний павильон в селе Воздвиженское. Общий вид © Khachaturian Architects Фото: Артур Хачатурян
Летний павильон в селе Воздвиженское. Общий вид © Khachaturian Architects
Фото: Артур Хачатурян
Летний павильон в селе Воздвиженское. Общий вид © Khachaturian Architects Фото: Артур Хачатурян
Летний павильон в селе Воздвиженское. Общий вид ©  Khachaturian Architects
Фото: Артур Хачатурян
Летний павильон в селе Воздвиженское. Общий вид © Khachaturian Architects Фото: Артур Хачатурян
Летний павильон в селе Воздвиженское. Общий вид ©  Khachaturian Architects
Фото: Артур Хачатурян
Летний павильон в селе Воздвиженское. Общий вид © Khachaturian Architects Фото: Артур Хачатурян
Летний павильон в селе Воздвиженское. Общий вид ©  Khachaturian Architects
Фото: Артур Хачатурян
Летний павильон в селе Воздвиженское. Общий вид © Khachaturian Architects Фото: Артур Хачатурян

Павильон расположен на краю производственной зоны и открыт в сторону граничащего с ней леса, чтобы уменьшить визуальный контакт с заводом. Лишь входная часть, небольшая треугольная терраса, обращена в его сторону.
 
Летний павильон в селе Воздвиженское. Общий вид ©  Khachaturian Architects
Фото: Артур Хачатурян
Летний павильон в селе Воздвиженское. Общий вид © Khachaturian Architects Фото: Артур Хачатурян
Летний павильон в селе Воздвиженское. Фасад © Khachaturian Architects Фото: Артур Хачатурян
Летний павильон в селе Воздвиженское. Фасад © Khachaturian Architects Фото: Артур Хачатурян
Летний павильон в селе Воздвиженское. Кровля © Khachaturian Architects
Фото: Артур Хачатурян
Летний павильон в селе Воздвиженское. Кровля © Khachaturian Architects Фото: Артур Хачатурян
Летний павильон в селе Воздвиженское. Деталь фасада ©  Khachaturian Architects Фото: Артур Хачатурян
Летний павильон в селе Воздвиженское. Деталь фасада © Khachaturian Architects Фото: Артур Хачатурян
Летний павильон в селе Воздвиженское. Интерьер © Khachaturian Architects
Фото: Артур Хачатурян
Летний павильон в селе Воздвиженское. Интерьер © Khachaturian Architects Фото: Артур Хачатурян
Летний павильон в селе Воздвиженское. Интерьер ©  Khachaturian Architects
Фото: Артур Хачатурян
Летний павильон в селе Воздвиженское. Интерьер © Khachaturian Architects Фото: Артур Хачатурян

Максимальная высота беседки – 5 метров. Ее конструктивный каркас собран из массива сибирской лиственницы; внутренний каркас отделяет от фасадной рейки прозрачный поликарбонат, который защищает интерьер от ветра и осадков.
 
Летний павильон в селе Воздвиженское. Интерьер ©  Khachaturian Architects
Фото: Артур Хачатурян
Летний павильон в селе Воздвиженское. Интерьер © Khachaturian Architects Фото: Артур Хачатурян
Летний павильон в селе Воздвиженское. Интерьер ©  Khachaturian Architects
Фото: Артур Хачатурян
Летний павильон в селе Воздвиженское. Интерьер © Khachaturian Architects Фото: Артур Хачатурян
Летний павильон в селе Воздвиженское. План © Khachaturian Architects
Фото: Артур Хачатурян
Летний павильон в селе Воздвиженское. План © Khachaturian Architects Фото: Артур Хачатурян
Летний павильон в селе Воздвиженское. Разрез © Khachaturian Architects
Фото: Артур Хачатурян
Летний павильон в селе Воздвиженское. Разрез © Khachaturian Architects Фото: Артур Хачатурян
Летний павильон в селе Воздвиженское. Фасад © Khachaturian Architects
Фото: Артур Хачатурян
Летний павильон в селе Воздвиженское. Фасад © Khachaturian Architects Фото: Артур Хачатурян
Летний павильон в селе Воздвиженское. Концепция ©  Khachaturian Architects
Фото: Артур Хачатурян
Летний павильон в селе Воздвиженское. Концепция © Khachaturian Architects Фото: Артур Хачатурян
Летний павильон в селе Воздвиженское. Генеральный план ©  Khachaturian Architects
Фото: Артур Хачатурян
Летний павильон в селе Воздвиженское. Генеральный план © Khachaturian Architects Фото: Артур Хачатурян
Летний павильон в селе Воздвиженское. Фасад © Khachaturian Architects
Фото: Артур Хачатурян
Летний павильон в селе Воздвиженское. Фасад © Khachaturian Architects Фото: Артур Хачатурян



«Форум» – многофункциональное пространство Государственного исторического музея
Москва / 2014
ГОРОЖАНЕ/ CITIZENSTUDIO, Михаил Бейлин, Даниил Никишин

 
Многофункциональное пространство Государственного Исторического Музея «Форум». Главный вид © Citizenstudio
Многофункциональное пространство Государственного Исторического Музея «Форум». Главный вид © Citizenstudio

Проект выполнен по заказу администрации ГИМ. На данный момент перспектива его реализации не ясна.

Описание архитекторов.
Музей. В музеях XXI века сосредоточено множество функций: образование, развлечение, отдых, место для общения, торговля и пр. И, как правило, само это многофункциональное пространство – узловая точка музея – одновременно представляет из себя ОБЪЕКТ, являющийся символом этого музея.
 
Многофункциональное пространство Государственного Исторического Музея «Форум». Лекторий, визуализация © Citizenstudio
Многофункциональное пространство Государственного Исторического Музея «Форум». Лекторий, визуализация © Citizenstudio

Музей в городе. Государственный исторический музей (ГИМ) расположен в самом центре Москвы. Он окружен большим количеством достопримечательностей, в том числе музеев: Кремль, Политехнический музей, Зоологический Музей, Большой и Малый Манежи, Гостиный Двор и пр. Таким образом, на наш взгляд, развитие общественной функции музея посредством создания в нем многофункционального пространства – правильный шаг, в результате которого ГИМ может стать одним из главных центров туристической и культурной жизни города.
 
Многофункциональное пространство Государственного Исторического Музея «Форум». Визуализация © Citizenstudio
Многофункциональное пространство Государственного Исторического Музея «Форум». Визуализация © Citizenstudio

Зал в музее. Государственный исторический музей является комплексом из нескольких зданий, четыре из которых (ГИМ, Музей Отечественной Войны 1812, Палаты в Зарядье и Покровский Собор) находятся в шаговой доступности друг от друга. Этот комплекс нуждается в координационном центре – месте, где посетитель мог бы узнать про все экспозиции музея, изучить литературу, пройти виртуальный тур, отдохнуть, выпить кофе, не покидая музея. Удобное положение – вход с Манежной площади, ведущая в Зал торжественная лестница на второй этаж, возможность доступа инвалидов, помещение площадью 325 квадратных метров 13-метровой высоты – все это делает Зал идеально подходящим под функцию «сердца» музейного комплекса.
 
Многофункциональное пространство Государственного Исторического Музея «Форум». Аксонометрия © Citizenstudio
Многофункциональное пространство Государственного Исторического Музея «Форум». Аксонометрия © Citizenstudio

«Форум». В своем проекте мы предлагаем создание двухуровневого объема в пространстве зала. На первом этаже будет располагаться фойе, библиотека и кафе (без кухни – только кофе, чай и прохладительные напитки), на втором – небольшой зал со сценой и трибунами. Объем огражден ячеистой структурой, размеры ячейки которой изменяются в зависимости от функции конкретной зоны. В зоне кафе они служат полками для посуды, в библиотеке – книжными полками и т.д. Первый и второй этажи соединены двумя лестницами. Высота объекта – 8 м, общая площадь двух этажей – 197 м2. Возможно проведение собраний и лекций на втором этаже, а так же размещение там большого числа людей – отдыхающих, пользующихся бесплатным Wi-Fi, изучающих литературу музея и пр. В одном зале мы объединяем разнообразные функции. Он становится центром всей музейной жизни Охотного Ряда.
 
Многофункциональное пространство Государственного Исторического Музея «Форум». Фото макета © Citizenstudio
Многофункциональное пространство Государственного Исторического Музея «Форум». Фото макета © Citizenstudio

Материалы и конструкции. «Форум» предлагается собрать из деревянного клеёного бруса. Сборность – разборность конструкции позволяет избежать капитального строительства в охраняемом государством памятнике архитектуры. При этом возможно достижение высокого уровня огнестойкости, что необходимо для общественного пространства.
 
Многофункциональное пространство Государственного Исторического Музея «Форум». Фото макета © Citizenstudio
Многофункциональное пространство Государственного Исторического Музея «Форум». Фото макета © Citizenstudio
Многофункциональное пространство Государственного Исторического Музея «Форум». Фасад © Citizenstudio
Многофункциональное пространство Государственного Исторического Музея «Форум». Фасад © Citizenstudio
Многофункциональное пространство Государственного Исторического Музея «Форум». Разрез © Citizenstudio
Многофункциональное пространство Государственного Исторического Музея «Форум». Разрез © Citizenstudio
Многофункциональное пространство Государственного Исторического Музея «Форум». Планы © Citizenstudio
Многофункциональное пространство Государственного Исторического Музея «Форум». Планы © Citizenstudio
Многофункциональное пространство Государственного Исторического Музея «Форум». «Форум» в пространстве зала © Citizenstudio
Многофункциональное пространство Государственного Исторического Музея «Форум». «Форум» в пространстве зала © Citizenstudio
Многофункциональное пространство Государственного Исторического Музея «Форум». Зал Собраний в пространстве музея © Citizenstudio
Многофункциональное пространство Государственного Исторического Музея «Форум». Зал Собраний в пространстве музея © Citizenstudio




Павильон «Antiartplay»
Москва / 2014
Алексей Пивень, Марат Невлютов

 
Павильон “Antiartplay”. Рендер © Алексей Пивень
Павильон “Antiartplay”. Рендер © Алексей Пивень

Проект был выполнен для конкурса Play ARTPLAY 2, где занял 2-е место.
 
Павильон “Antiartplay”. Рендер © Алексей Пивень
Павильон “Antiartplay”. Рендер © Алексей Пивень

Заданием конкурса Play ARTPLAY 2, проходившего в рамках воркшопа Play ARTPLAY на площадке творческого объединения RODNYA, была разработка функционального решения для крыши культурного центра.
Павильон “Antiartplay”. Рендер © Алексей Пивень
Павильон “Antiartplay”. Рендер © Алексей Пивень

Крыша ARTPLAY – открытая площадка; очень важным было сделать ее комфортной для пребывания, не теряя преимуществ ее открытости. Решая вопрос ее функции, архитекторы предлагают только прогнозировать там события, предоставляя возможность посетителю самому распоряжаться этим пространством.
 
Павильон “Antiartplay”. Рендер © Алексей Пивень
Павильон “Antiartplay”. Рендер © Алексей Пивень

Доступность – еще один важный фактор. До ARTPLAY сложно добраться: расстояние от ближайшей станции метро 1 км, что затрудняет внешнюю доступность крыши. Внутренняя доступность – в пределах арткластера ARTPLAY; для крыши необходима уникальная функция, привлекающая людей настолько, чтобы они предприняли усилие – поднялись на крышу. Проведя исследование, авторы проекта сделали вывод, что крыша ARTPLAY – место, уникальное своей отчужденностью от остального пространства арткластера. Крыша, таким образом, становится противоположностью арткластеру. Так родилось название проекта – «Антиартплей».
Павильон “Antiartplay”. Рендер © Алексей Пивень
Павильон “Antiartplay”. Рендер © Алексей Пивень
Павильон “Antiartplay”. Рендер © Алексей Пивень
Павильон “Antiartplay”. Рендер © Алексей Пивень
Павильон “Antiartplay”. Поиск образа © Алексей Пивень
Павильон “Antiartplay”. Поиск образа © Алексей Пивень
Павильон “Antiartplay”. Схема 3D © Алексей Пивень
Павильон “Antiartplay”. Схема 3D © Алексей Пивень
Павильон “Antiartplay”. Схема 3D © Алексей Пивень
Павильон “Antiartplay”. Схема 3D © Алексей Пивень
Павильон “Antiartplay”. Схема 3D © Алексей Пивень
Павильон “Antiartplay”. Схема 3D © Алексей Пивень
Павильон “Antiartplay”. План © Алексей Пивень
Павильон “Antiartplay”. План © Алексей Пивень




Общежитие для студентов «Трансформер»
Литва / 2014
Николай Кореньков

 
Общежитие для студентов «Трансформер». Главный перспективный вид © Кореньков Николай
Общежитие для студентов «Трансформер». Главный перспективный вид © Кореньков Николай

Проект был выполнен для конкурса «Модульное общежитие», организованном литовской компанией Ryterna modul. Призовых мест не получил.
 
Общежитие для студентов «Трансформер». Дополнительные перспективные виды © Кореньков Николай
Общежитие для студентов «Трансформер». Дополнительные перспективные виды © Кореньков Николай

Архитекторам необходимо было разработать проект студенческого общежития из готовых блоков, прототипы которых – грузовые контейнеры (Ryterna modul производит жилые блоки на основе стальных контейнеров для грузовых перевозок).
 
Общежитие для студентов «Трансформер». Фасады © Кореньков Николай
Общежитие для студентов «Трансформер». Фасады © Кореньков Николай

Главный недостаток сооружений из подобных блоков – однообразие фасадов, так как блоки-модули – все одинаковые. Чтобы решить эту проблему, для сооружения из двух видов типовых блоков (одноместного и двухместного) были разработаны многочисленные варианты цветового решения фасадной части.
 
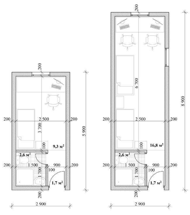
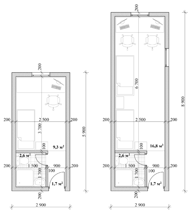
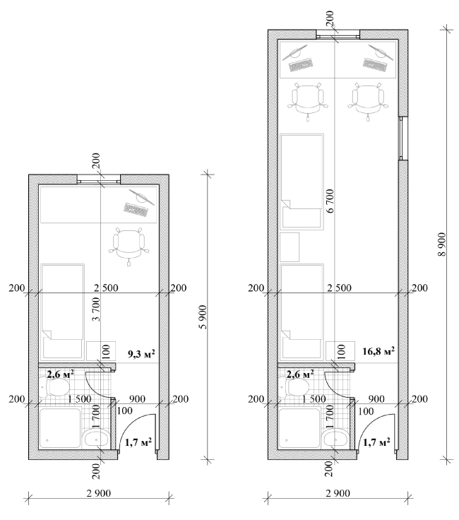
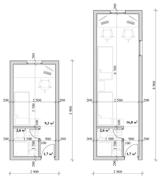
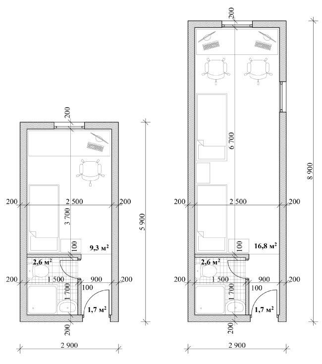
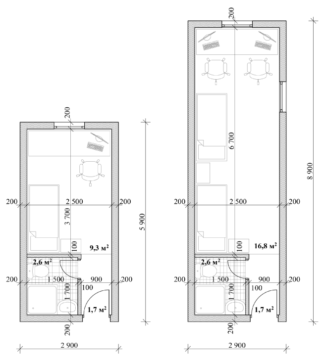
Общежитие для студентов «Трансформер». План 1-го этажа © Кореньков Николай
Общежитие для студентов «Трансформер». План 1-го этажа © Кореньков Николай

Название «Трансформер» передает функциональную особенность здания: его можно многократно собирать, разбирать и трансформировать.
Общежитие для студентов «Трансформер». План 2-го этажа
© Кореньков Николай
Общежитие для студентов «Трансформер». План 2-го этажа © Кореньков Николай
Общежитие для студентов «Трансформер». План 3-го этажа © Кореньков Николай
Общежитие для студентов «Трансформер». План 3-го этажа © Кореньков Николай
Общежитие для студентов «Трансформер». Планы типовых номеров © Кореньков Николай
Общежитие для студентов «Трансформер». Планы типовых номеров © Кореньков Николай



Life Cube
Новороссийск / 2012
Archian, Анна Балдина

 
Life Cubе – биоклиматический образовательный центр по предотвращению природных катастроф 
© Анна Балдина archian.ru
Life Cubе – биоклиматический образовательный центр по предотвращению природных катастроф © Анна Балдина archian.ru

Конкурсный проект, победитель 18-го издания смотра-конкурса World Architecture Community (2015).
 
Life Cubе – биоклиматический образовательный центр © Анна Балдина
Life Cubе – биоклиматический образовательный центр © Анна Балдина

Назначение Life Cubе – предотвращение стихийных бедствий и оповещение населения о возможной природной катастрофе. Также он служит образовательно-развлекательным центром и убежищем. Расположение постройки – город Новороссийск, однако ее автономность, устойчивое конструктивное и универсальное планировочное решение позволяют реализовать проект в любом подверженном стихийным бедствиям городе.
 
Life Cubе. Внутренний двор, зона Земли и Воды © Анна Балдина
Life Cubе. Внутренний двор, зона Земли и Воды © Анна Балдина

Монументальный куб служит сигнальным «маяком», образовательным центром, где учат правильному поведению при ЧП, убежищем для горожан во время катастрофы, продовольственным складом, резервуаром для воды и т.д.
 
Life Cubе. Внутренний двор, зона Огня © Анна Балдина
Life Cubе. Внутренний двор, зона Огня © Анна Балдина

Life Cubе является биоклиматическим сооружением с системой гелиостатов, висячими садами и большим центральным световым колодцем. На этажах устроены зеленые террасы, используются естественные вентиляция и освещение
 
Life Cubе – биоклиматический образовательный центр © Анна Балдина
Life Cubе – биоклиматический образовательный центр © Анна Балдина

Оболочка здания состоит из сверхпрочных энергосберегающих стеклопакетов одинакового размера. На боковых фасадах расположены 4 оповестительные аудиоколонки. Наверху располагается вращающийся цилиндр диаметром 30 м для оповещения населения (меняется цвет его экрана), который по ночам превращается в фонарь. Внутри цилиндра находится смотровая площадка, которая всегда остается в постоянном положении.
Life Cubе – биоклиматический образовательный центр © Анна Балдина
Life Cubе – биоклиматический образовательный центр © Анна Балдина
Life Cubе – биоклиматический образовательный центр © Анна Балдина
Life Cubе – биоклиматический образовательный центр © Анна Балдина
Life Cubе – биоклиматический образовательный центр, боковой фасад © Анна Балдина
Life Cubе – биоклиматический образовательный центр, боковой фасад © Анна Балдина
Life Cubе. Фасад с красным экраном, предупреждающий о высшей степени опасности, надвигающейся на город © Анна Балдина
Life Cubе. Фасад с красным экраном, предупреждающий о высшей степени опасности, надвигающейся на город © Анна Балдина
Life Cubе. Фасад с желтым экраном, оповещающий город о средней степени надвигающейся опасности © Анна Балдина
Life Cubе. Фасад с желтым экраном, оповещающий город о средней степени надвигающейся опасности © Анна Балдина
Life Cubе. Генеральный план, поэтажные планы © Анна Балдина archian.ru
Life Cubе. Генеральный план, поэтажные планы © Анна Балдина archian.ru
Life Cubе. Конструктивная схема здания © Анна Балдина
Life Cubе. Конструктивная схема здания © Анна Балдина
Life Cubе. Конструктивные схемы элементов вращающегося цилиндра © Анна Балдина
Life Cubе. Конструктивные схемы элементов вращающегося цилиндра © Анна Балдина