Размещено на портале Архи.ру (www.archi.ru)

10.06.2015

Меандр компьютерной эры

Анна Старостина
Объект:
Деловой квартал Software Industry Base
Адрес:
Китай, None, Шэньчжэнь.
Мастерская:
gmp

Архитекторы gmp завершили первую очередь профильного делового квартала Software Industry Base в китайском Шэньчжэне.

Деловой квартал Software Industry Base © Christan Gahl
Деловой квартал Software Industry Base © Christan Gahl

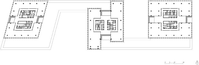
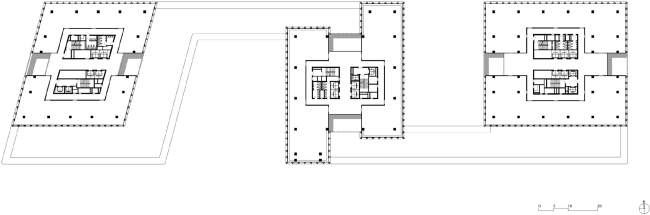
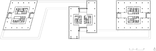
Амбициозный проект призван закрепить за Шэньчжэнем статус важнейшего центра IT-индустрии. Участок под строительство расположен в западном районе Наньшань, недалеко от международного аэропорта Баоань (мы писали о его новом терминале по проекту Массимилиано Фуксаса), финансового центра и – собственно, Гонконг совсем рядом. Конкурс бюро gmp выиграло еще в 2009. По плану предусмотрено строительство 18 высотных зданий, сгруппированных вокруг вытянутого низкоэтажного ядра. Уже завершенная первая очередь комплекса пока включает три корпуса в северо-восточной части участка высотой в 60, 90 и 100 м и общей площадью 137 900 м2.
Деловой квартал Software Industry Base © Christan Gahl
Деловой квартал Software Industry Base © Christan Gahl

Два проезда очень неудачно разделяют башни, поэтому решить основную задачу – создать некую общность, стимулировать активное взаимодействие между специалистами небольших IT-фирм – решить было не просто. Для этого основания зданий соединили переходами, так, что сверху компоновка напоминает меандр. В этом общем основании расположены основные точки коммуникации: конференц-центр, рестораны, небольшие магазины. В них легко попасть как из любой башни, так и с улицы, не мешая сотрудникам офисов. Кроме того, сложный геометрический объем с террасами на крыше помог архитекторам сформировать две открытые общественные зоны.
Деловой квартал Software Industry Base © Christan Gahl
Деловой квартал Software Industry Base © Christan Gahl

Объединяющий корпуса протяженный короб находит свое естественное продолжение в структуре самих башен. Предельно жесткая сетка объемных пикселированных фасадов нарушается гладкими стеклянными вставками, прорезающими здания на всю глубину. Эта, еще одна, меандровидная «полоса» начинается и заканчивается застекленными лобби высотой в три этажа. Из окон расположенных в них ресторанов открываются эффектные виды на дельту Жемчужной реки и сам город.
Деловой квартал Software Industry Base © Christan Gahl
Деловой квартал Software Industry Base © Christan Gahl

Устройство фасадов достойно отдельного упоминания. Ячейки «решетки» имеют глубину 60 см. Они сформированы листами перфорированного металла, закрывающими вентиляционные отверстия, и именно такое решение позволило архитекторам использовать большие площади остекления. Кроме того, расширяющиеся ребра ячеек обеспечивают защиту от довольно жестких в этих местах солнечных лучей. 
Деловой квартал Software Industry Base © Christan Gahl
Деловой квартал Software Industry Base © Christan Gahl
Деловой квартал Software Industry Base © Christan Gahl
Деловой квартал Software Industry Base © Christan Gahl
Деловой квартал Software Industry Base © Christan Gahl
Деловой квартал Software Industry Base © Christan Gahl
Деловой квартал Software Industry Base © gmp - von Gerkan, Marg and Partners Architects
Деловой квартал Software Industry Base © gmp - von Gerkan, Marg and Partners Architects
Деловой квартал Software Industry Base © gmp - von Gerkan, Marg and Partners Architects
Деловой квартал Software Industry Base © gmp - von Gerkan, Marg and Partners Architects
Деловой квартал Software Industry Base © gmp - von Gerkan, Marg and Partners Architects
Деловой квартал Software Industry Base © gmp - von Gerkan, Marg and Partners Architects
Деловой квартал Software Industry Base © gmp - von Gerkan, Marg and Partners Architects
Деловой квартал Software Industry Base © gmp - von Gerkan, Marg and Partners Architects