Размещено на портале Архи.ру (www.archi.ru)

28.05.2015

Исчезновение в Оксфорде

Нина Фролова
Объект:
Корпус Investcorp Центра Ближнего Востока Колледжа Сент-Энтони Оксфордского университета
Адрес:
Великобритания, None, Оксфорд.

Спроектированный Захой Хадид центр Ближнего Востока в Оксфордском университете растворяется в окружении благодаря фасадам из нержавеющей стали.

Корпус Investcorp Центра Ближнего Востока Колледжа Сент-Энтони Оксфордского университета © Luke Hayes
Корпус Investcorp Центра Ближнего Востока Колледжа Сент-Энтони Оксфордского университета © Luke Hayes

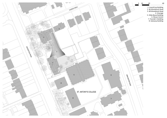
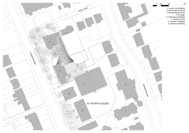
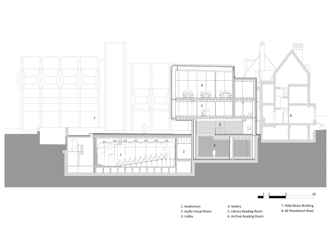
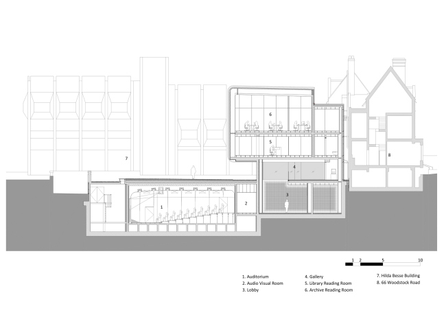
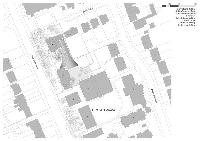
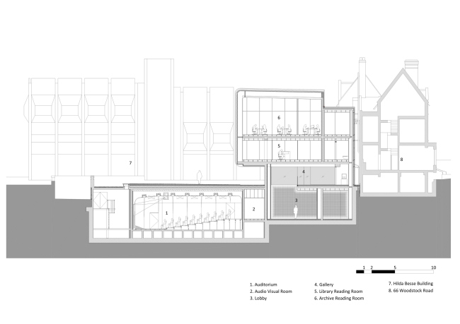
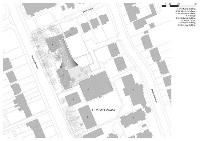
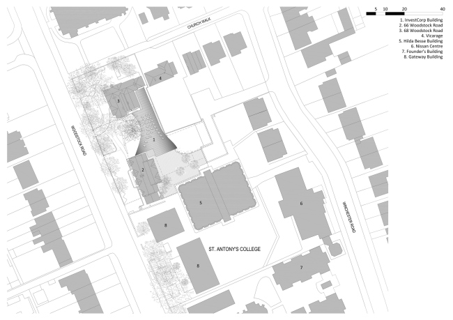
Корпус Investcorp Центра Ближнего Востока располагается в исторической среде, в комплексе колледжа Сент-Энтони, к которому приписан. Это и постройки XIX столетия, и бруталистская постройка 1971 года (все они имеют статус памятника), а также очень требовательный «сосед» – столетняя секвойя, ради которой пришлось изогнуть западный фасад и установить специальную дренажную систему, чтобы корни дерева получали достаточно влаги.
Корпус Investcorp Центра Ближнего Востока Колледжа Сент-Энтони Оксфордского университета © Luke Hayes
Корпус Investcorp Центра Ближнего Востока Колледжа Сент-Энтони Оксфордского университета © Luke Hayes

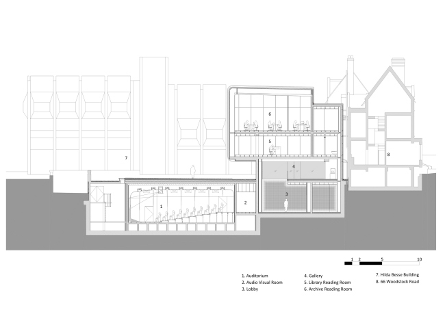
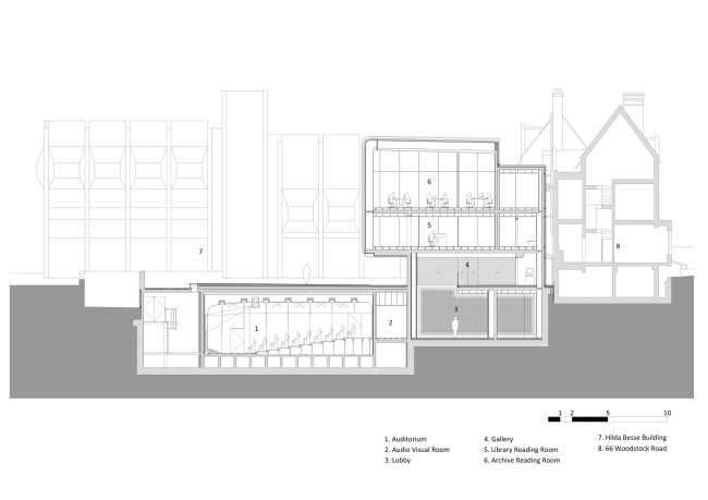
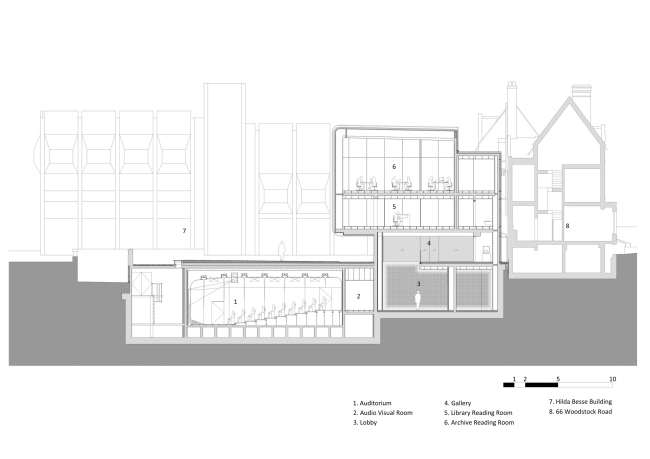
Участок под строительство составил всего 1500 м2, и новое здание было непросто вписать в плотный ансамбль колледжа. Так, с запада высота Центра соответствует невысоким корпусам в викторианском стиле, а с востока ему удалось подняться чуть выше – благодаря соседству с более крупным бруталистским сооружением. Хотя в своем формальном решении здание вполне отражает современную эпоху, однако оно ведет себя скромно: обшивка кровли и фасадов панелями полированной нержавеющей стали позволяет постройке Хадид мягко отражать свое окружение, растворяясь в нем.
 
Корпус Investcorp Центра Ближнего Востока Колледжа Сент-Энтони Оксфордского университета © Luke Hayes
Корпус Investcorp Центра Ближнего Востока Колледжа Сент-Энтони Оксфордского университета © Luke Hayes

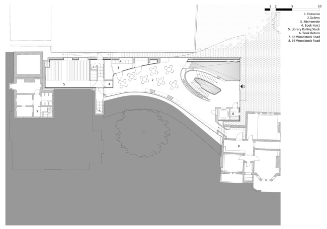
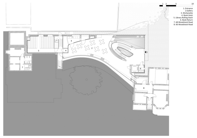
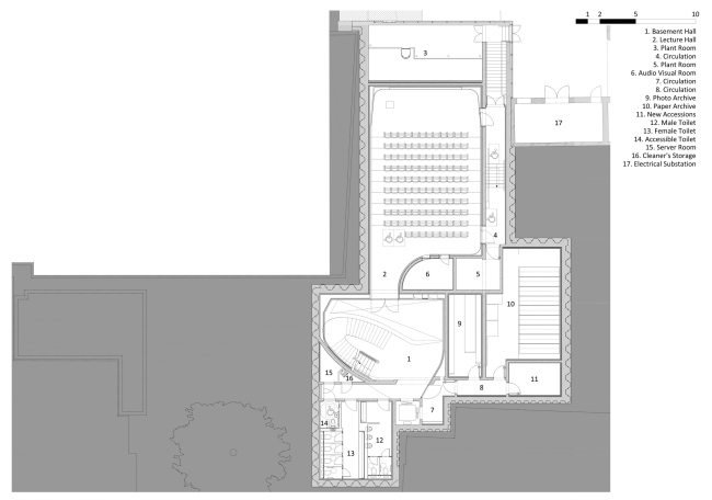
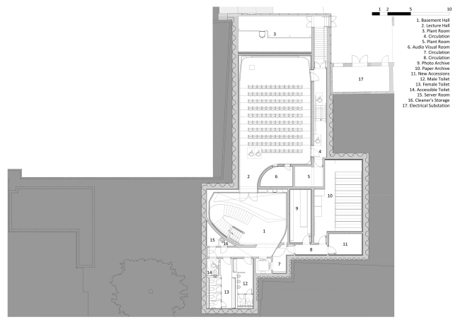
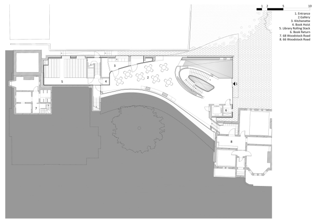
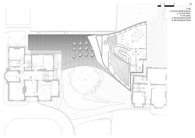
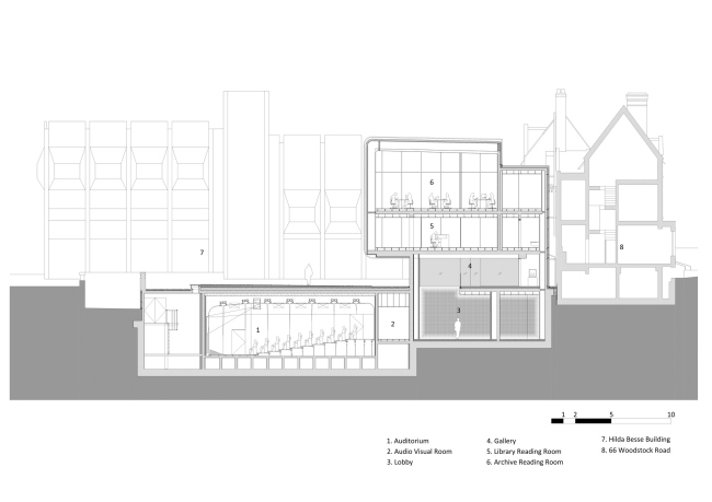
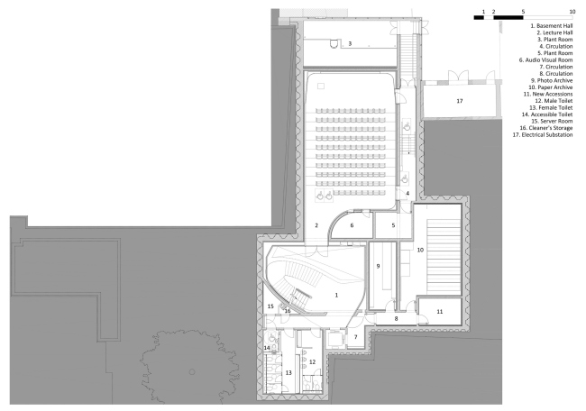
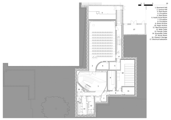
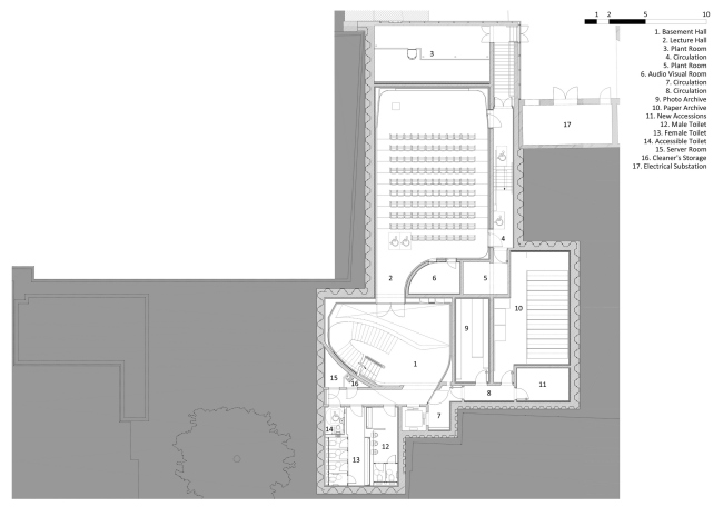
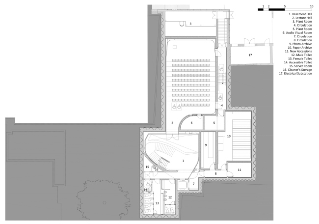
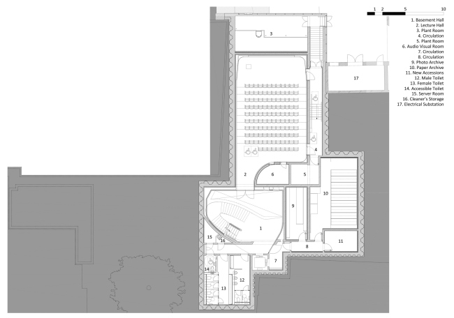
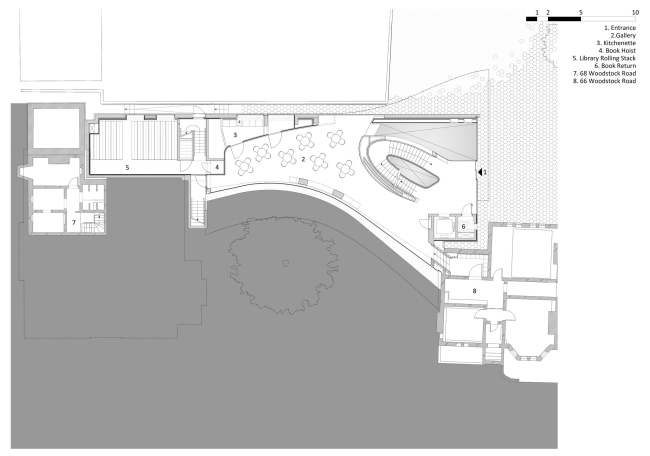
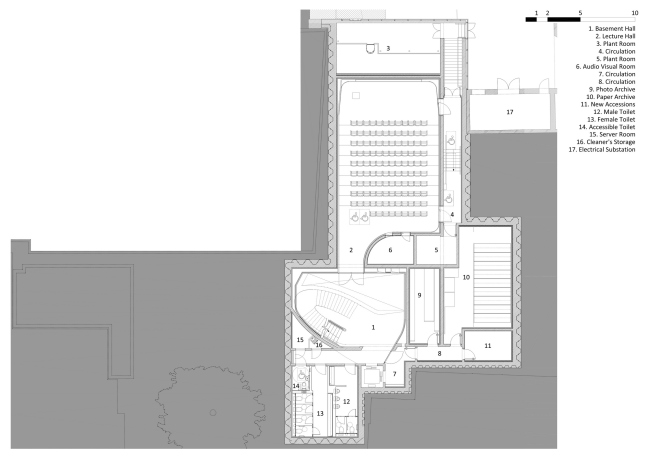
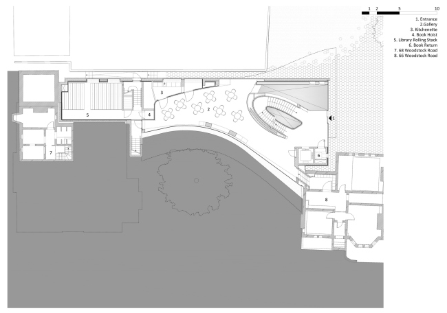
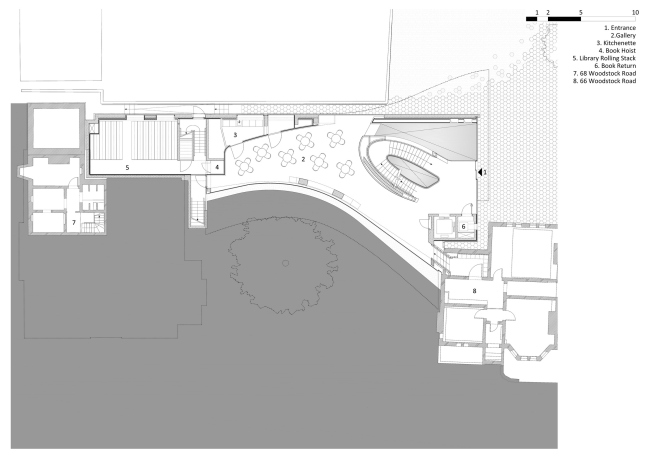
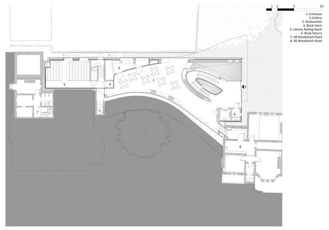
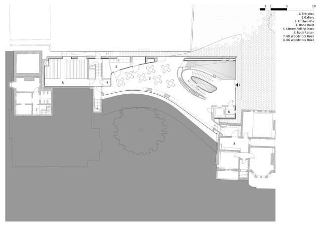
Внутри, на площади в 1127 м2, расположены библиотека и архив с читальными залами, а также лекционная аудитория на 117 мест: Центр Ближнего Востока в последние годы приобретает все большую популярность не только у исследователей и учащихся, но и у широкой публики, для которой открыты многие его лекции и дискуссии.
Корпус Investcorp Центра Ближнего Востока Колледжа Сент-Энтони Оксфордского университета © Luke Hayes
Корпус Investcorp Центра Ближнего Востока Колледжа Сент-Энтони Оксфордского университета © Luke Hayes

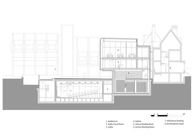
Несущая конструкция постройки – из бетона, в то время как перекрытия выполнены из клееного бруса. Значительная часть интерьера освещается через проемы в кровле; в оформлении помещений была применена древесина дуба – в качестве декора или акустических панелей. Погруженная в землю лекционная аудитория с зеленой крышей вентилируется с помощью теплового лабиринта, такой же метод использован для читального зала. За температуру в архиве, где хранятся 400 коллекций частных документов и более 100 000 фотографий XIX–XXI веков по истории Арабского мира, Ирана, Израиля и Турции, отвечает геотермальный тепловой насос.


 
Корпус Investcorp Центра Ближнего Востока Колледжа Сент-Энтони Оксфордского университета © Luke Hayes
Корпус Investcorp Центра Ближнего Востока Колледжа Сент-Энтони Оксфордского университета © Luke Hayes
Корпус Investcorp Центра Ближнего Востока Колледжа Сент-Энтони Оксфордского университета © Luke Hayes
Корпус Investcorp Центра Ближнего Востока Колледжа Сент-Энтони Оксфордского университета © Luke Hayes
Корпус Investcorp Центра Ближнего Востока Колледжа Сент-Энтони Оксфордского университета © Luke Hayes
Корпус Investcorp Центра Ближнего Востока Колледжа Сент-Энтони Оксфордского университета © Luke Hayes
Корпус Investcorp Центра Ближнего Востока Колледжа Сент-Энтони Оксфордского университета © Luke Hayes
Корпус Investcorp Центра Ближнего Востока Колледжа Сент-Энтони Оксфордского университета © Luke Hayes
Корпус Investcorp Центра Ближнего Востока Колледжа Сент-Энтони Оксфордского университета © Luke Hayes
Корпус Investcorp Центра Ближнего Востока Колледжа Сент-Энтони Оксфордского университета © Luke Hayes
Корпус Investcorp Центра Ближнего Востока Колледжа Сент-Энтони Оксфордского университета © Luke Hayes
Корпус Investcorp Центра Ближнего Востока Колледжа Сент-Энтони Оксфордского университета © Luke Hayes
Корпус Investcorp Центра Ближнего Востока Колледжа Сент-Энтони Оксфордского университета © Luke Hayes
Корпус Investcorp Центра Ближнего Востока Колледжа Сент-Энтони Оксфордского университета © Luke Hayes
Корпус Investcorp Центра Ближнего Востока Колледжа Сент-Энтони Оксфордского университета © Luke Hayes
Корпус Investcorp Центра Ближнего Востока Колледжа Сент-Энтони Оксфордского университета © Luke Hayes
Корпус Investcorp Центра Ближнего Востока Колледжа Сент-Энтони Оксфордского университета © Luke Hayes
Корпус Investcorp Центра Ближнего Востока Колледжа Сент-Энтони Оксфордского университета © Luke Hayes
Корпус Investcorp Центра Ближнего Востока Колледжа Сент-Энтони Оксфордского университета © Luke Hayes
Корпус Investcorp Центра Ближнего Востока Колледжа Сент-Энтони Оксфордского университета © Luke Hayes
Корпус Investcorp Центра Ближнего Востока Колледжа Сент-Энтони Оксфордского университета © Luke Hayes
Корпус Investcorp Центра Ближнего Востока Колледжа Сент-Энтони Оксфордского университета © Luke Hayes
Корпус Investcorp Центра Ближнего Востока Колледжа Сент-Энтони Оксфордского университета © Luke Hayes
Корпус Investcorp Центра Ближнего Востока Колледжа Сент-Энтони Оксфордского университета © Luke Hayes
Корпус Investcorp Центра Ближнего Востока Колледжа Сент-Энтони Оксфордского университета © Luke Hayes
Корпус Investcorp Центра Ближнего Востока Колледжа Сент-Энтони Оксфордского университета © Luke Hayes
Корпус Investcorp Центра Ближнего Востока Колледжа Сент-Энтони Оксфордского университета © Luke Hayes
Корпус Investcorp Центра Ближнего Востока Колледжа Сент-Энтони Оксфордского университета © Luke Hayes
Корпус Investcorp Центра Ближнего Востока Колледжа Сент-Энтони Оксфордского университета © Luke Hayes
Корпус Investcorp Центра Ближнего Востока Колледжа Сент-Энтони Оксфордского университета © Luke Hayes
Корпус Investcorp Центра Ближнего Востока Колледжа Сент-Энтони Оксфордского университета © Luke Hayes
Корпус Investcorp Центра Ближнего Востока Колледжа Сент-Энтони Оксфордского университета © Luke Hayes
Корпус Investcorp Центра Ближнего Востока Колледжа Сент-Энтони Оксфордского университета © Luke Hayes
Корпус Investcorp Центра Ближнего Востока Колледжа Сент-Энтони Оксфордского университета © Luke Hayes
Корпус Investcorp Центра Ближнего Востока Колледжа Сент-Энтони Оксфордского университета © Luke Hayes
Корпус Investcorp Центра Ближнего Востока Колледжа Сент-Энтони Оксфордского университета © Luke Hayes
Корпус Investcorp Центра Ближнего Востока Колледжа Сент-Энтони Оксфордского университета © Luke Hayes
Корпус Investcorp Центра Ближнего Востока Колледжа Сент-Энтони Оксфордского университета © Luke Hayes
Корпус Investcorp Центра Ближнего Востока Колледжа Сент-Энтони Оксфордского университета © Luke Hayes
Корпус Investcorp Центра Ближнего Востока Колледжа Сент-Энтони Оксфордского университета © Luke Hayes
Корпус Investcorp Центра Ближнего Востока Колледжа Сент-Энтони Оксфордского университета © Luke Hayes
Корпус Investcorp Центра Ближнего Востока Колледжа Сент-Энтони Оксфордского университета © Luke Hayes
Корпус Investcorp Центра Ближнего Востока Колледжа Сент-Энтони Оксфордского университета © Luke Hayes
Корпус Investcorp Центра Ближнего Востока Колледжа Сент-Энтони Оксфордского университета © Luke Hayes
Корпус Investcorp Центра Ближнего Востока Колледжа Сент-Энтони Оксфордского университета © Luke Hayes
Корпус Investcorp Центра Ближнего Востока Колледжа Сент-Энтони Оксфордского университета © Luke Hayes
Корпус Investcorp Центра Ближнего Востока Колледжа Сент-Энтони Оксфордского университета © Luke Hayes
Корпус Investcorp Центра Ближнего Востока Колледжа Сент-Энтони Оксфордского университета © Luke Hayes
Корпус Investcorp Центра Ближнего Востока Колледжа Сент-Энтони Оксфордского университета © Luke Hayes
Корпус Investcorp Центра Ближнего Востока Колледжа Сент-Энтони Оксфордского университета © Luke Hayes
Корпус Investcorp Центра Ближнего Востока Колледжа Сент-Энтони Оксфордского университета © Zaha Hadid Architects
Корпус Investcorp Центра Ближнего Востока Колледжа Сент-Энтони Оксфордского университета © Zaha Hadid Architects
Корпус Investcorp Центра Ближнего Востока Колледжа Сент-Энтони Оксфордского университета © Zaha Hadid Architects
Корпус Investcorp Центра Ближнего Востока Колледжа Сент-Энтони Оксфордского университета © Zaha Hadid Architects
Корпус Investcorp Центра Ближнего Востока Колледжа Сент-Энтони Оксфордского университета © Zaha Hadid Architects
Корпус Investcorp Центра Ближнего Востока Колледжа Сент-Энтони Оксфордского университета © Zaha Hadid Architects
Корпус Investcorp Центра Ближнего Востока Колледжа Сент-Энтони Оксфордского университета © Zaha Hadid Architects
Корпус Investcorp Центра Ближнего Востока Колледжа Сент-Энтони Оксфордского университета © Zaha Hadid Architects
Корпус Investcorp Центра Ближнего Востока Колледжа Сент-Энтони Оксфордского университета © Zaha Hadid Architects
Корпус Investcorp Центра Ближнего Востока Колледжа Сент-Энтони Оксфордского университета © Zaha Hadid Architects
Корпус Investcorp Центра Ближнего Востока Колледжа Сент-Энтони Оксфордского университета © Zaha Hadid Architects
Корпус Investcorp Центра Ближнего Востока Колледжа Сент-Энтони Оксфордского университета © Zaha Hadid Architects
Корпус Investcorp Центра Ближнего Востока Колледжа Сент-Энтони Оксфордского университета © Zaha Hadid Architects
Корпус Investcorp Центра Ближнего Востока Колледжа Сент-Энтони Оксфордского университета © Zaha Hadid Architects
Корпус Investcorp Центра Ближнего Востока Колледжа Сент-Энтони Оксфордского университета © Zaha Hadid Architects
Корпус Investcorp Центра Ближнего Востока Колледжа Сент-Энтони Оксфордского университета © Zaha Hadid Architects
Корпус Investcorp Центра Ближнего Востока Колледжа Сент-Энтони Оксфордского университета © Zaha Hadid Architects
Корпус Investcorp Центра Ближнего Востока Колледжа Сент-Энтони Оксфордского университета © Zaha Hadid Architects
Корпус Investcorp Центра Ближнего Востока Колледжа Сент-Энтони Оксфордского университета © Zaha Hadid Architects
Корпус Investcorp Центра Ближнего Востока Колледжа Сент-Энтони Оксфордского университета © Zaha Hadid Architects
Корпус Investcorp Центра Ближнего Востока Колледжа Сент-Энтони Оксфордского университета © Zaha Hadid Architects
Корпус Investcorp Центра Ближнего Востока Колледжа Сент-Энтони Оксфордского университета © Zaha Hadid Architects
Корпус Investcorp Центра Ближнего Востока Колледжа Сент-Энтони Оксфордского университета © Zaha Hadid Architects
Корпус Investcorp Центра Ближнего Востока Колледжа Сент-Энтони Оксфордского университета © Zaha Hadid Architects