Размещено на портале Архи.ру (www.archi.ru)

26.05.2015

Мимикрия на Белом озере

Анна Старостина
Объект:
Жилой комплекс Pērle
Адрес:
Латвия, None, Адажи. Латвия, Бальтезерс, улица Чиекуркрасты, 1
Мастерская:
AB3D
Авторский коллектив:
Архитекторы: Юрис Митенбергс, Петерис Спуриньшь, Улдис Тучс, Гуна Приеде; конструктор Марис Гравитис

В латвийском Адажи завершено строительство жилого комплекса Pērle, спроектированного бюро AB3D.

Жилой комплекс Pērle © фото предоставлено SIA New Europe
Жилой комплекс Pērle © фото предоставлено SIA New Europe

Малоэтажные жилые здания – наверное, самая динамично развивающаяся архитектурная типология в современной Латвии. Сравнительно небольшие расстояния позволяют создать максимальный, городской уровень комфорта в условиях постоянной жизни на природе – в экологически чистой зоне. Комплекс Pērle («жемчужина») находится в небольшом поселке примерно в 20 километрах от центра Риги, на берегу озера Baltezers (Белое озеро). Вслед за улицей, на которой расположен, он получил еще одно название, Čiekurkrasti – «берега шишек»: их тут действительно много, сосны вокруг. Еще на стадии проекта комплекс получил награду выставки MIPIM, а недавно был отмечен премией A+Awards портала Architizer как лучшее малоэтажное жилое здание.
Жилой комплекс Pērle © Ansis Starks
Жилой комплекс Pērle © Ansis Starks

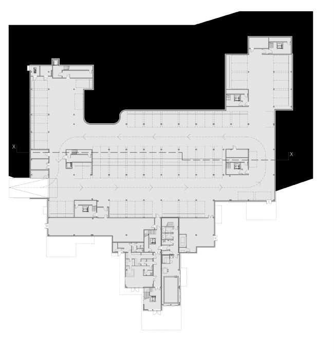
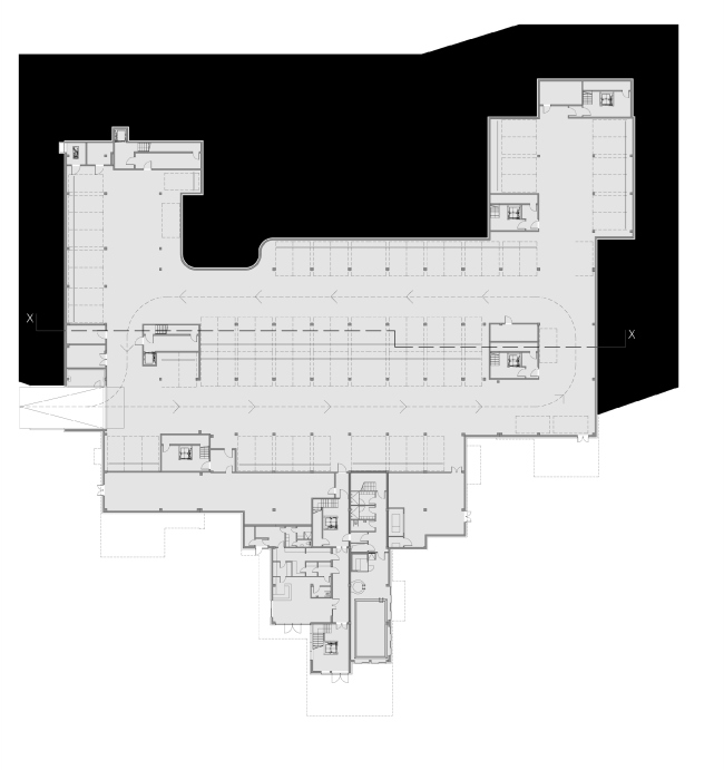
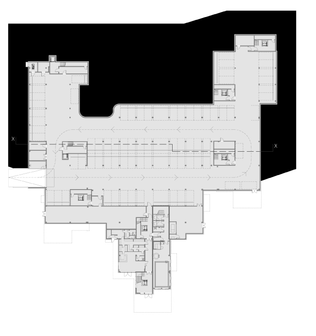
Постройка высотой 2-4 этажа и общей площадью 11 357 м2 сужающимся клином спускается прямо к пляжу, так что практически отовсюду открываются виды на воду. Правда, реализовать такое решение оказалось не просто. Так, понадобилось вбить 721 одиннадцатиметровую сваю в основание здания, чтобы укрепить прибрежный грунт. Но зато теперь создатели комплекса шутят, что ловить рыбу в озере можно практически из окон, ведь только 4 из 63 квартир полностью обращены в засаженный соснами внутренний двор. Сложная ступенчатая композиция, дробный, нерегулярный ритм объемов позволяют легче вписать довольно крупное здание в природную среду. Большие площади остекления отражают небо и воду, а вертикальные планки вентилируемых фасадов из жженой сибирской лиственницы сливаются со стволами деревьев и завершают процесс мимикрии.
Жилой комплекс Pērle © Ansis Starks
Жилой комплекс Pērle © Ansis Starks

Все обязательные черты современных жилых комплексов тут присутствуют: подземная автостоянка на 80 автомобилей, наземная гостевая парковка, панорамные лифты, зоны отдыха на уступчатой крыше, ресторан с видом на озеро, тренажерный зал, SPA-центр с баней и бассейном, индивидуальные «места хранения» в подземной части. Кроме этого, у комплекса есть своя пристань для яхт и катеров, ведь из озера можно выйти в Балтийское море. Каждая квартира имеет индивидуальную компоновку и предлагается уже с полной отделкой: полом из разных пород дерева, современной кухней, камином, встроенными шкафами, всей необходимой техникой. Площадь апартаментов варьируется от 67 до 211 м2. Входные зоны и лестничные клетки решены в более жесткой стилистике, с открытыми бетонными поверхностями и металлическими конструкциями.
Жилой комплекс Pērle © Eriks Boze
Жилой комплекс Pērle © Eriks Boze
Жилой комплекс Pērle © фото предоставлено SIA New Europe
Жилой комплекс Pērle © фото предоставлено SIA New Europe
Жилой комплекс Pērle © фото предоставлено SIA New Europe
Жилой комплекс Pērle © фото предоставлено SIA New Europe
Жилой комплекс Pērle © фото предоставлено SIA New Europe
Жилой комплекс Pērle © фото предоставлено SIA New Europe
Жилой комплекс Pērle © фото предоставлено SIA New Europe
Жилой комплекс Pērle © фото предоставлено SIA New Europe
Жилой комплекс Pērle © Ansis Starks
Жилой комплекс Pērle © Ansis Starks
Жилой комплекс Pērle © Ansis Starks
Жилой комплекс Pērle © Ansis Starks
Жилой комплекс Pērle © Ansis Starks
Жилой комплекс Pērle © Ansis Starks
Жилой комплекс Pērle © Ansis Starks
Жилой комплекс Pērle © Ansis Starks
Жилой комплекс Pērle © Ansis Starks
Жилой комплекс Pērle © Ansis Starks
Жилой комплекс Pērle © Ansis Starks
Жилой комплекс Pērle © Ansis Starks
Жилой комплекс Pērle © Ansis Starks
Жилой комплекс Pērle © Ansis Starks
Жилой комплекс Pērle © фото предоставлено SIA New Europe
Жилой комплекс Pērle © фото предоставлено SIA New Europe
Жилой комплекс Pērle © фото предоставлено SIA New Europe
Жилой комплекс Pērle © фото предоставлено SIA New Europe
Жилой комплекс Pērle © Ansis Starks
Жилой комплекс Pērle © Ansis Starks
Жилой комплекс Pērle © фото предоставлено SIA New Europe
Жилой комплекс Pērle © фото предоставлено SIA New Europe
Жилой комплекс Pērle © фото предоставлено SIA New Europe
Жилой комплекс Pērle © фото предоставлено SIA New Europe
Жилой комплекс Pērle © фото предоставлено SIA New Europe
Жилой комплекс Pērle © фото предоставлено SIA New Europe
Жилой комплекс Pērle © Ansis Starks
Жилой комплекс Pērle © Ansis Starks
Жилой комплекс Pērle © Ansis Starks
Жилой комплекс Pērle © Ansis Starks
Жилой комплекс Pērle © Ansis Starks
Жилой комплекс Pērle © Ansis Starks
Жилой комплекс Pērle © Ansis Starks
Жилой комплекс Pērle © Ansis Starks
Жилой комплекс Pērle © Ansis Starks
Жилой комплекс Pērle © Ansis Starks
Жилой комплекс Pērle © Ansis Starks
Жилой комплекс Pērle © Ansis Starks
Жилой комплекс Pērle © Ansis Starks
Жилой комплекс Pērle © Ansis Starks
Жилой комплекс Pērle © фото предоставлено SIA New Europe
Жилой комплекс Pērle © фото предоставлено SIA New Europe
Жилой комплекс Pērle © фото предоставлено SIA New Europe
Жилой комплекс Pērle © фото предоставлено SIA New Europe
Жилой комплекс Pērle © фото предоставлено SIA New Europe
Жилой комплекс Pērle © фото предоставлено SIA New Europe
Жилой комплекс Pērle © фото предоставлено SIA New Europe
Жилой комплекс Pērle © фото предоставлено SIA New Europe
Жилой комплекс Pērle © фото предоставлено SIA New Europe
Жилой комплекс Pērle © фото предоставлено SIA New Europe
Жилой комплекс Pērle © фото предоставлено SIA New Europe
Жилой комплекс Pērle © фото предоставлено SIA New Europe
Жилой комплекс Pērle © AB3D
Жилой комплекс Pērle © AB3D
Жилой комплекс Pērle © AB3D
Жилой комплекс Pērle © AB3D
Жилой комплекс Pērle © AB3D
Жилой комплекс Pērle © AB3D
Жилой комплекс Pērle © AB3D
Жилой комплекс Pērle © AB3D
Жилой комплекс Pērle © AB3D
Жилой комплекс Pērle © AB3D
Жилой комплекс Pērle © AB3D
Жилой комплекс Pērle © AB3D
Жилой комплекс Pērle © AB3D
Жилой комплекс Pērle © AB3D
Жилой комплекс Pērle © AB3D
Жилой комплекс Pērle © AB3D
Жилой комплекс Pērle © AB3D
Жилой комплекс Pērle © AB3D
Жилой комплекс Pērle © AB3D
Жилой комплекс Pērle © AB3D