Размещено на портале Архи.ру (www.archi.ru)

13.05.2015

Дом для всех

Инесса Ковалева
Объект:
Социальное жилье на улице Лурмель
Адрес:
Франция, None, Париж.
Мастерская:
TVK

Бюро TVK реализовало комплекс социального жилья в Париже, дополненный приютом для жертв домашнего насилия, центром для бездомных и домом престарелых.

Социальное жилье на улице Лурмель © Julien Lanoo
Социальное жилье на улице Лурмель © Julien Lanoo

Париж как ни один другой европейский город стремится обеспечить доступность жилья для всех слоев населения – уже который год. С 2012 здесь действует беспрецедентная программа субсидирования аренды в определенных округах, а новые жилые комплексы часто представляют собой «микс» из обычных и социальных квартир. Доступное жилье появляется в различных районах Парижа, чтобы обеспечить социальную «разнородность» жителей и ни в коем случае не допустить создания «гетто» для богатых.
 
Социальное жилье на улице Лурмель © Julien Lanoo
Социальное жилье на улице Лурмель © Julien Lanoo

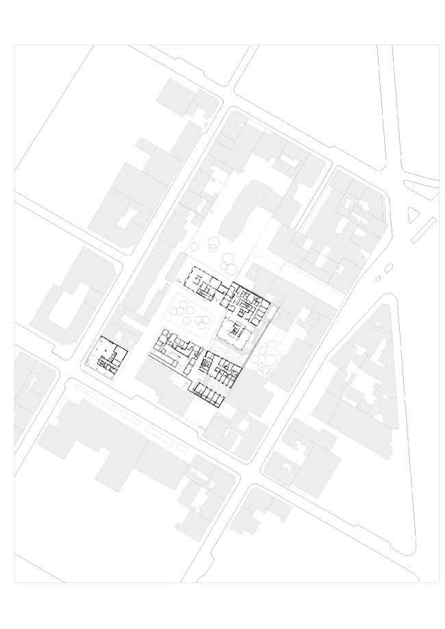
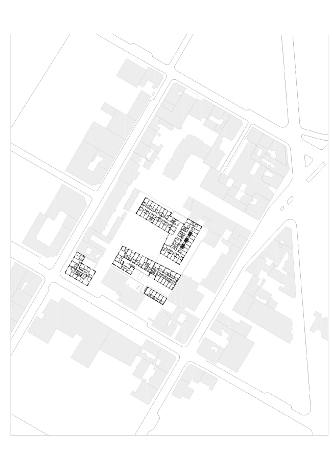
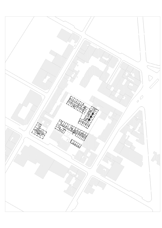
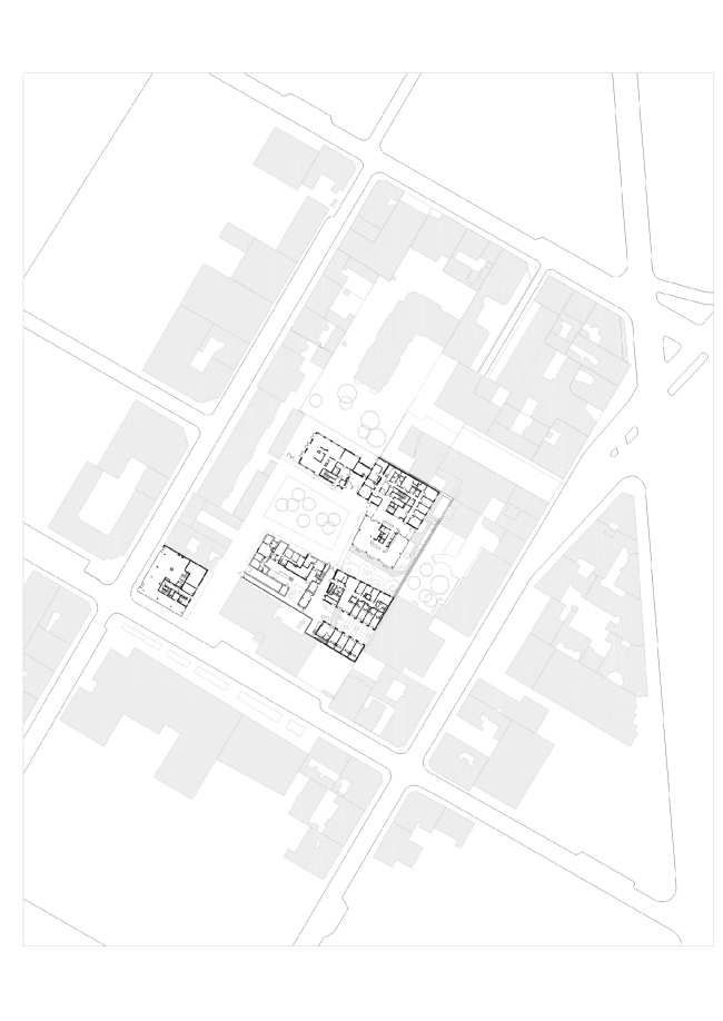
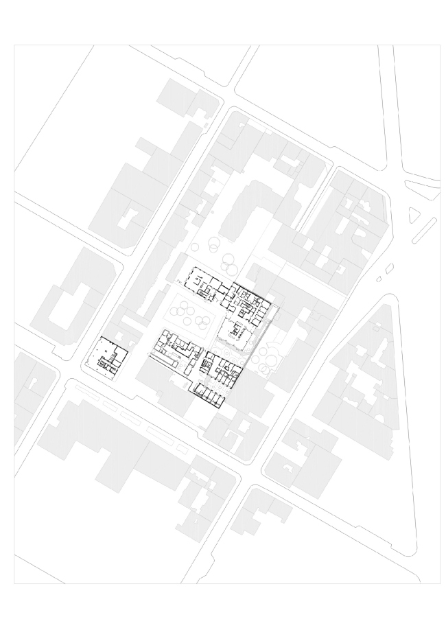
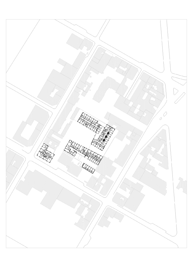
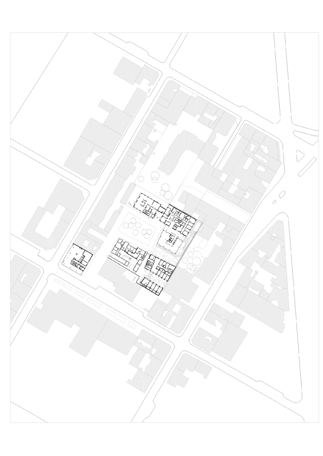
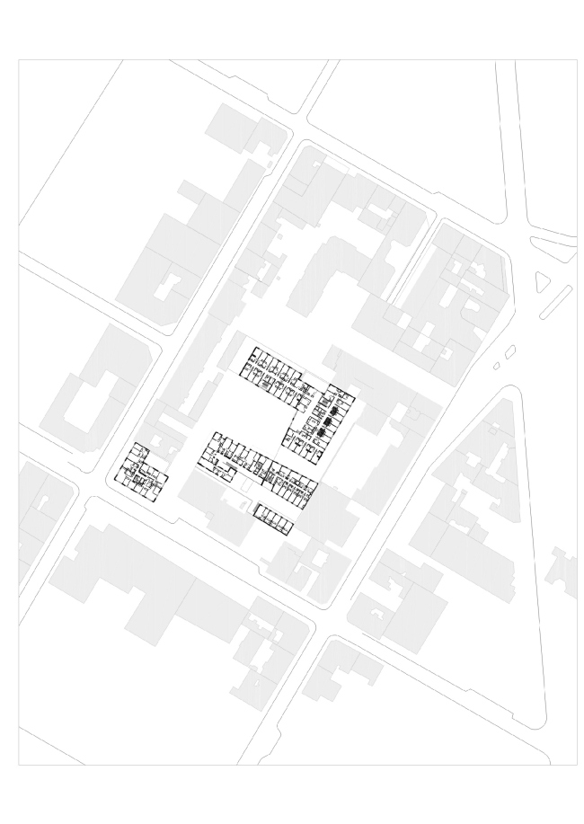
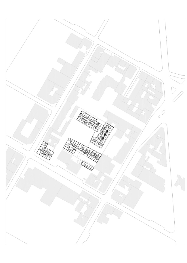
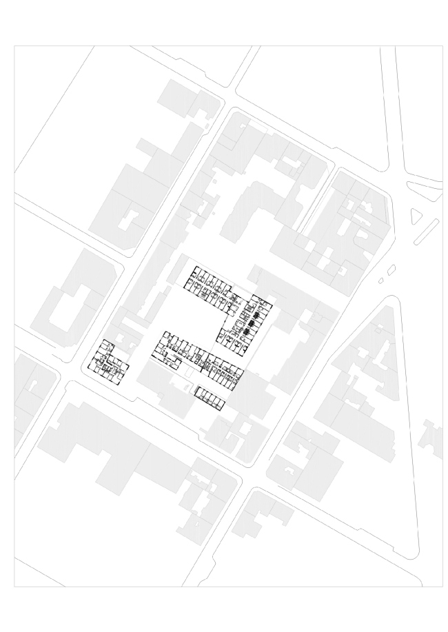
Новый комплекс социального жилья по проекту французского бюро TVK построен в этом году в самом сердце 15-го округа на месте фабрики, принадлежавшей ранее France Télécom. Он включает в себя три основных блока, объединивших в себе на удивление «разнонаправленные» программы. На 11 000 м2 общей площади разместились 54 социальных квартиры, временный приют на 25 жилых модулей, дом престарелых, дневной центр для бездомных и ясли. Эти функции дополнены коммерческими площадями, открытыми для использования всеми горожанами.
 
Социальное жилье на улице Лурмель © Julien Lanoo
Социальное жилье на улице Лурмель © Julien Lanoo

Первый из трех блоков выходит на угол двух улиц – Лурмель и л’Эглиз – и обозначает собой начало комплекса, приглашая заглянуть дальше. В этом блоке нижний уровень отдан под магазины, а выше расположены 30 квартир. Его архитектурное решение более «урбанистическое», чем остальных двух частей. Монохромные фасады и небольшой консольный вынос верхних этажей приводят его в соответствие с существующим масштабом улицы.
 
Социальное жилье на улице Лурмель © Julien Lanoo
Социальное жилье на улице Лурмель © Julien Lanoo

Главное действие разворачивается в сердце квартала и потому скрыто от посторонних глаз. Там, по обе стороны внутренней площади, расположены два основных корпуса, дополняющие и уравновешивающие друг друга. В западном расположен дом престарелых, дневной центр для бездомных и ясли, в восточном – жилые блоки и приют для женщин, пострадавших от домашнего насилия. Сложная задача создания среды, пользователи которой очень различаются по возрасту, образу жизни и потребностям, решается идей создания целостного искусственного ландшафта. Так появляются небольшие внутренние сады, нишевое озеленение, большие открытые террасы, где смогут найти себе место по душе все жители комплекса. Внутренняя площадь была спроектирована не TVK, однако гармонично вписалась в их проект.
Социальное жилье на улице Лурмель © Julien Lanoo
Социальное жилье на улице Лурмель © Julien Lanoo

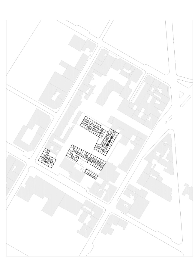
Чтобы обеспечить комфорт столь разным обитателям, архитекторы уделили большое внимание разграничению пространства и разработке типологии квартир. Планы этажей практически не повторяются, жилые модули дополнены разнообразными общими залами и переходами, в квартирах, состоящие из 3-х и более комнат, есть лоджии. Нижние этажи отведены тем, кто в этом более всего нуждается: в северной части комплекса там размещается приют, отделенный от общей площади своим собственным садом, другая часть отведена под ясли и дом престарелых, а оставшиеся площади отданы приемным, офисам и комнатам общего пользования.
 
Социальное жилье на улице Лурмель © Julien Lanoo
Социальное жилье на улице Лурмель © Julien Lanoo

Большое внимание архитекторы уделили климатическим решениям. Так, в первом блоке появились большие окна, чтобы он соответствовал показателям освещенности, обозначенным в общем городском климатическом плане Парижа. Выбор материалов продиктован не только эстетическими качествами, но и их высокой энергоэффективностью. Использование дерева для облицовки фасадов создает теплую атмосферу не только в переносном смысле. Дерево затем дополнили алюминием и эмалированным стеклом, учтя их светоотражающие коэффициенты, чтобы обеспечить необходимый уровень освещенности стоящим напротив корпусам и окружающей застройке. В итоге, получилось умное, светлое и легкое сбалансированное решение для комфортной жилой среды.
 
Социальное жилье на улице Лурмель © Julien Lanoo
Социальное жилье на улице Лурмель © Julien Lanoo
Социальное жилье на улице Лурмель © Julien Lanoo
Социальное жилье на улице Лурмель © Julien Lanoo
Социальное жилье на улице Лурмель © Julien Lanoo
Социальное жилье на улице Лурмель © Julien Lanoo
Социальное жилье на улице Лурмель © Julien Lanoo
Социальное жилье на улице Лурмель © Julien Lanoo
Социальное жилье на улице Лурмель © Julien Lanoo
Социальное жилье на улице Лурмель © Julien Lanoo
Социальное жилье на улице Лурмель © Julien Lanoo
Социальное жилье на улице Лурмель © Julien Lanoo
Социальное жилье на улице Лурмель © Julien Lanoo
Социальное жилье на улице Лурмель © Julien Lanoo
Социальное жилье на улице Лурмель © Julien Lanoo
Социальное жилье на улице Лурмель © Julien Lanoo
Социальное жилье на улице Лурмель © Julien Lanoo
Социальное жилье на улице Лурмель © Julien Lanoo
Социальное жилье на улице Лурмель © Julien Lanoo
Социальное жилье на улице Лурмель © Julien Lanoo
Социальное жилье на улице Лурмель © Julien Lanoo
Социальное жилье на улице Лурмель © Julien Lanoo
Социальное жилье на улице Лурмель © Julien Lanoo
Социальное жилье на улице Лурмель © Julien Lanoo
Социальное жилье на улице Лурмель © Julien Lanoo
Социальное жилье на улице Лурмель © Julien Lanoo
Социальное жилье на улице Лурмель © Julien Lanoo
Социальное жилье на улице Лурмель © Julien Lanoo
Социальное жилье на улице Лурмель © Julien Lanoo
Социальное жилье на улице Лурмель © Julien Lanoo
Социальное жилье на улице Лурмель © Julien Lanoo
Социальное жилье на улице Лурмель © Julien Lanoo
Социальное жилье на улице Лурмель © Julien Lanoo
Социальное жилье на улице Лурмель © Julien Lanoo
Социальное жилье на улице Лурмель © Julien Lanoo
Социальное жилье на улице Лурмель © Julien Lanoo
Социальное жилье на улице Лурмель © Julien Lanoo
Социальное жилье на улице Лурмель © Julien Lanoo
Социальное жилье на улице Лурмель © Julien Lanoo
Социальное жилье на улице Лурмель © Julien Lanoo
Социальное жилье на улице Лурмель © Julien Lanoo
Социальное жилье на улице Лурмель © Julien Lanoo
Социальное жилье на улице Лурмель © Julien Lanoo
Социальное жилье на улице Лурмель © Julien Lanoo
Социальное жилье на улице Лурмель © Julien Lanoo
Социальное жилье на улице Лурмель © Julien Lanoo
Социальное жилье на улице Лурмель © Julien Lanoo
Социальное жилье на улице Лурмель © Julien Lanoo
Социальное жилье на улице Лурмель © TVK
Социальное жилье на улице Лурмель © TVK
Социальное жилье на улице Лурмель © TVK
Социальное жилье на улице Лурмель © TVK
Социальное жилье на улице Лурмель © TVK
Социальное жилье на улице Лурмель © TVK
Социальное жилье на улице Лурмель © TVK
Социальное жилье на улице Лурмель © TVK
Социальное жилье на улице Лурмель © TVK
Социальное жилье на улице Лурмель © TVK
Социальное жилье на улице Лурмель © TVK
Социальное жилье на улице Лурмель © TVK
Социальное жилье на улице Лурмель © TVK
Социальное жилье на улице Лурмель © TVK