Размещено на портале Архи.ру (www.archi.ru)

12.05.2015

Жилые варианты

Объект:
Многоквартирный дом на набережной Варкауса
Адрес:
Россия, Петрозаводск. наб. Варкауса, д. 33
Жилой дом №1
Адрес:
Россия, Уфа. ул. Октябрьской Революции, д. 34
Таунхаус в поселке «Карпов пруд»
Адрес:
Россия, Челябинск. ул. Березовая, д. 355 б
Апарт-отель «Величъ»
Адрес:
Россия, Московская область, деревня Супонево
Мастерская:
Петрозаводскархпроект
Башкиргражданпроект
Аксио
Архитектурная мастерская Юрия Грошева
Авторский коллектив:
Архитектор: Юрий Грошев

Публикуем еще четыре проекта, полученных редакцией, на этот раз – объединенных темой жилья: многоквартирные дома в Уфе и Петрозаводске, таунхаус в Челябинске и апарт-отель в Московской области.

Редакция по-прежнему принимает проекты, все правила и адрес – здесь

***

Многоквартирный дом на набережной Варкауса
Петрозаводск / 2011
«Петрозаводскархпроект», Евгений Фролов, Андрей Васильев

 
Многоквартирный жилой дом на набережной Варкауса в г. Петрозаводск © Петрозаводскархпроект
Многоквартирный жилой дом на набережной Варкауса в г. Петрозаводск © Петрозаводскархпроект

Многоквартирный жилой дом состоит из 4 одинаковых блок-секций. Динамика его композиции достигается как объемным решением (секции – переменной этажности, 8–10 этажей, и соединяются между собой разновысокими частями), так и выбранным колоритом (каждый компонент блок-секции получил свой яркий цвет, в то время как объем лестничной клетки выделен черным).
Многоквартирный жилой дом на набережной Варкауса в г. Петрозаводск © Петрозаводскархпроект
Многоквартирный жилой дом на набережной Варкауса в г. Петрозаводск © Петрозаводскархпроект
Многоквартирный жилой дом на набережной Варкауса в г. Петрозаводск © Петрозаводскархпроект
Многоквартирный жилой дом на набережной Варкауса в г. Петрозаводск © Петрозаводскархпроект
Многоквартирный жилой дом на набережной Варкауса в г. Петрозаводск © Петрозаводскархпроект
Многоквартирный жилой дом на набережной Варкауса в г. Петрозаводск © Петрозаводскархпроект

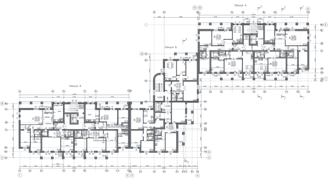
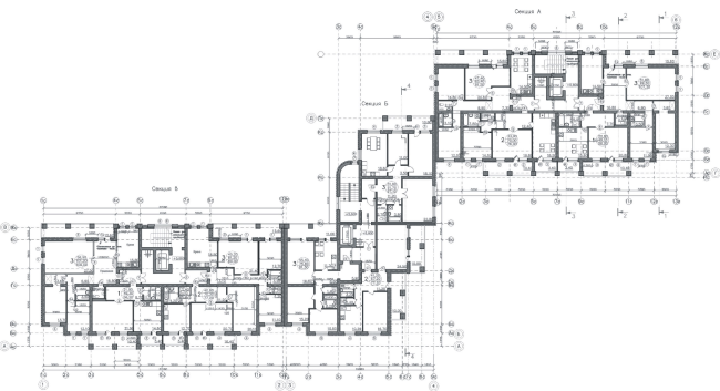
Планировочная структура блок-секции – 3 квартиры, сгруппированные вокруг лестничной клетки.
Многоквартирный жилой дом на набережной Варкауса в г. Петрозаводск. План типового этажа © Петрозаводскархпроект
Многоквартирный жилой дом на набережной Варкауса в г. Петрозаводск. План типового этажа © Петрозаводскархпроект
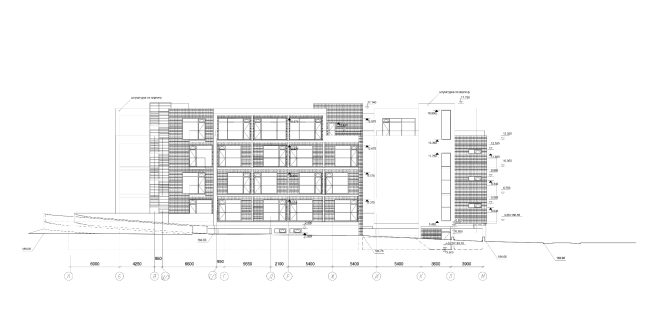
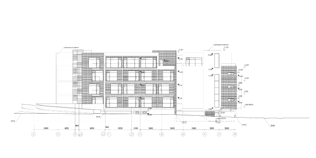
Многоквартирный жилой дом на набережной Варкауса в г. Петрозаводск. Фасад © Петрозаводскархпроект
Многоквартирный жилой дом на набережной Варкауса в г. Петрозаводск. Фасад © Петрозаводскархпроект

В отделке фасада использованы металлокассеты, фиброцементные крашеные плиты и профлист; цоколь облицован искусственным камнем. Интерьеры поэтажных холлов и лестничной клетки решены с использованием цвета и, частично, материалов, аналогичных фасадным.

Жилой дом №1
Уфа / 2012
«Башкиргражданпроект», Ильяс Дусеев
 
Жилой дом №1 в г. Уфа. Вид с дворовой части © ЗАО ПИ «Башкиргражданпроект» Фото: Ильяс Дусеев
Жилой дом №1 в г. Уфа. Вид с дворовой части © ЗАО ПИ «Башкиргражданпроект» Фото: Ильяс Дусеев

Здание из трех секций переменной этажности (6, 8 и 9 этажей) – S-образное в плане, состоит из крупных стеклянных и монолитных объемов, составляющих энергичную и, вместе с тем, законченную композицию. В доме имеются 1–, 2–, 3–комнатные квартиры, а также одна 5-комнатная; на верхних этажах расположены 2-уровневые квартиры (всего четыре).
Жилой дом №1 в г. Уфа. Фрагмент © ЗАО ПИ «Башкиргражданпроект» Фото: Ильяс Дусеев
Жилой дом №1 в г. Уфа. Фрагмент © ЗАО ПИ «Башкиргражданпроект» Фото: Ильяс Дусеев
Жилой дом №1 в г. Уфа.Вид с ул. Октябрьской Революции © ЗАО ПИ «Башкиргражданпроект» Фото: Ильяс Дусеев
Жилой дом №1 в г. Уфа.Вид с ул. Октябрьской Революции © ЗАО ПИ «Башкиргражданпроект» Фото: Ильяс Дусеев
Жилой дом №1 в г. Уфа. Фрагмент © ЗАО ПИ «Башкиргражданпроект» Фото: Ильяс Дусеев
Жилой дом №1 в г. Уфа. Фрагмент © ЗАО ПИ «Башкиргражданпроект» Фото: Ильяс Дусеев
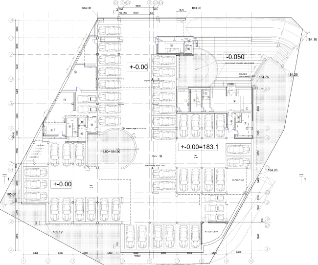
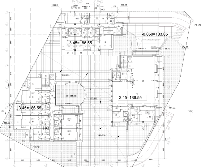
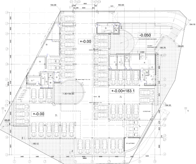
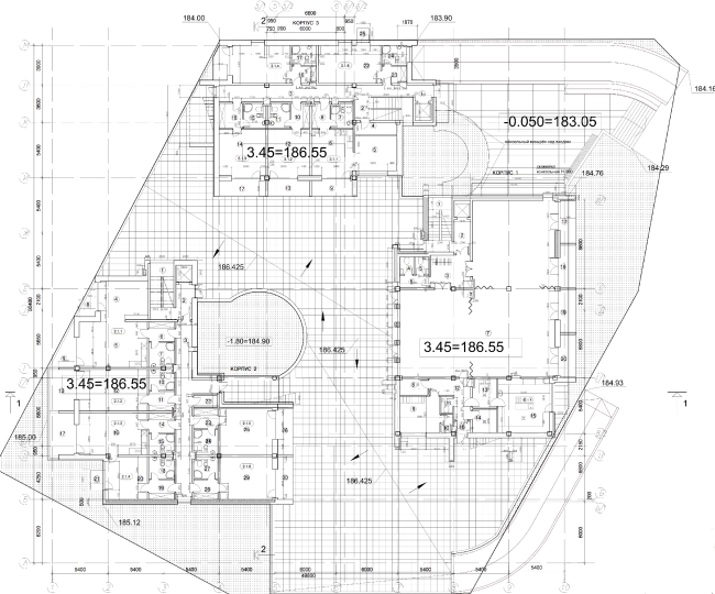
Жилой дом №1 в г. Уфа. Генеральный план © ЗАО ПИ «Башкиргражданпроект»
Жилой дом №1 в г. Уфа. Генеральный план © ЗАО ПИ «Башкиргражданпроект»

На первых этажах размещены физкультурно-оздоровительные комплексы и офисные помещения. Высота жилого этажа в чистоте составляет 2,7 м, высота первого этажа – 3,3 м. Дом снабжен подземным паркингом на 23 машиноместа.
Жилой дом №1 в г. Уфа. Ситуационный план © ЗАО ПИ «Башкиргражданпроект»
Жилой дом №1 в г. Уфа. Ситуационный план © ЗАО ПИ «Башкиргражданпроект»
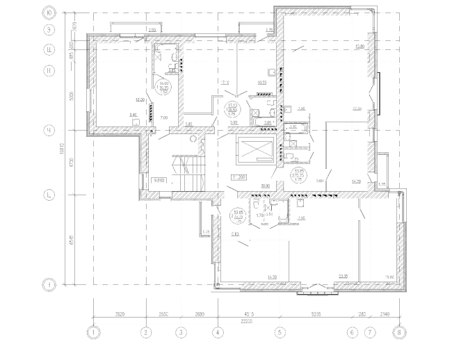
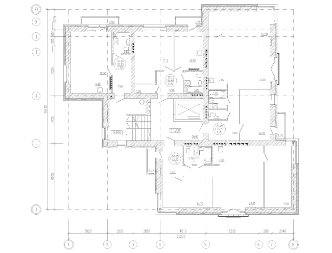
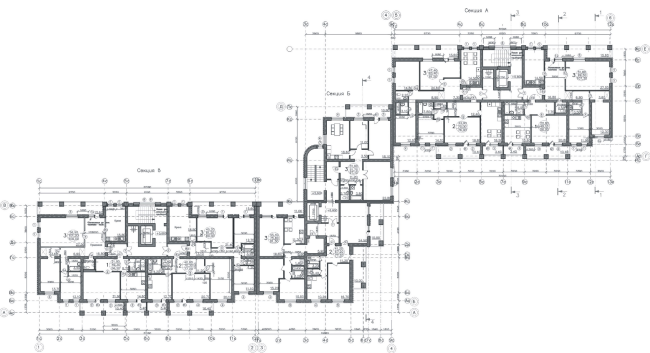
Жилой дом №1 в г. Уфа. План типового этажа © ЗАО ПИ «Башкиргражданпроект»
Жилой дом №1 в г. Уфа. План типового этажа © ЗАО ПИ «Башкиргражданпроект»




Таунхаус в поселке «Карпов пруд»
Челябинск / 2014
«Аксио», Петр Качаев, Кирилл Кугаевский

 
Таунхаус в поселке «Карпов пруд». Фасад, общий вид. Фото: Качаев П.В.
Таунхаус в поселке «Карпов пруд». Фасад, общий вид. Фото: Качаев П.В.

Задачей было размещение на участке 1600 м2 максимального по площади жилого дома не выше 3 этажей с витражным остеклением и обилием дерева в отделке. На начальном этапе работы появилась идея решить главный фасад как композицию из трех «единиц» из деревянного сайдинга.
Таунхаус в поселке «Карпов пруд». Фасад ¾. Фото: Качаев П.В.
Таунхаус в поселке «Карпов пруд». Фасад ¾. Фото: Качаев П.В.
Таунхаус в поселке «Карпов пруд». Фасад. Фото: Качаев П.В.
Таунхаус в поселке «Карпов пруд». Фасад. Фото: Качаев П.В.
Таунхаус в поселке «Карпов пруд». Фасад, балкон, сайдинг. Фото: Качаев П.В.
Таунхаус в поселке «Карпов пруд». Фасад, балкон, сайдинг. Фото: Качаев П.В.
Таунхаус в поселке «Карпов пруд». Фасад с уровня парковки. Фото: Качаев П.В.
Таунхаус в поселке «Карпов пруд». Фасад с уровня парковки. Фото: Качаев П.В.

Так как участок имеет перепад высот до 2,5 м, было решено сделать выходы на главном фасад и фасаде со стороны внутреннего дворика с цокольного и первого этажей, соответственно.
Таунхаус в поселке «Карпов пруд». Задний фасад. Фото: Качаев П.В.
Таунхаус в поселке «Карпов пруд». Задний фасад. Фото: Качаев П.В.
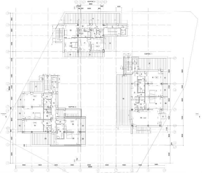
Таунхаус в поселке «Карпов пруд». Генеральный план, высотные отметки © Аксио
Таунхаус в поселке «Карпов пруд». Генеральный план, высотные отметки © Аксио
Таунхаус в поселке «Карпов пруд». Эскизный проект © Аксио
Таунхаус в поселке «Карпов пруд». Эскизный проект © Аксио
Таунхаус в поселке «Карпов пруд». Эскизный проект © Аксио
Таунхаус в поселке «Карпов пруд». Эскизный проект © Аксио

Здание выполнено из пустотелого кирпича, с железобетонными перекрытиями, утепление – 10 см пенопласт, кровля – деревянная. Внешняя отделка: штукатурка Ceresit, термосайдинг – дерево меранти, натуральный камень.
Таунхаус в поселке «Карпов пруд». Эскизный проект © Аксио
Таунхаус в поселке «Карпов пруд». Эскизный проект © Аксио
Таунхаус в поселке «Карпов пруд». Эскизный проект © Аксио
Таунхаус в поселке «Карпов пруд». Эскизный проект © Аксио
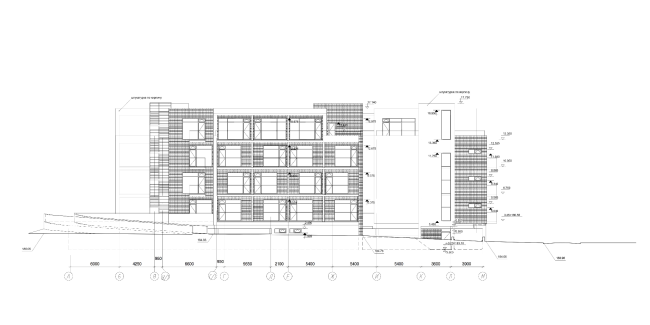
Таунхаус в поселке «Карпов пруд». Разрез © Аксио
Таунхаус в поселке «Карпов пруд». Разрез © Аксио
Таунхаус в поселке «Карпов пруд». Разрез © Аксио
Таунхаус в поселке «Карпов пруд». Разрез © Аксио
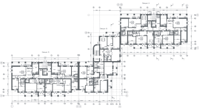
Таунхаус в поселке «Карпов пруд». Планы этажей © Аксио
Таунхаус в поселке «Карпов пруд». Планы этажей © Аксио





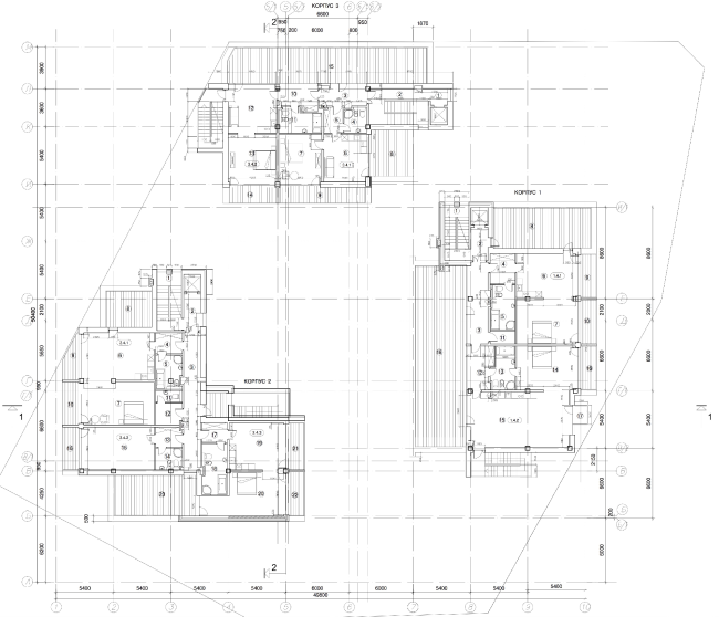
Апарт-отель «Величъ»
Московская область, Одинцовский район, деревня Супонево / 2014
«Архитектурная мастерская Юрия Грошева», Юрий Грошев

 
Апарт-отель «Величъ». Входная площадь, 1 и 3 корпуса © Архитектурная  мастерская Грошева Юрия
Апарт-отель «Величъ». Входная площадь, 1 и 3 корпуса © Архитектурная мастерская Грошева Юрия

Описание архитекторов:
«Апарт-отель построен в коттеджном поселке «Величъ» Одинцовского муниципального района Московской области. Во времена монументальных зданий с яркими навесными фасадами и зазывающими витражами, когда масштаб проектов и построек измеряется ППТ (проектами планировок территорий), свое место должна иметь и архитектура спокойствия и уюта. Мы постарались вписать новый объем в существующий образ поселка. Отделка обожженным кирпичом, фактурная штукатурка жилых коттеджей и сдержанная стилистика крупных окон и плоскостей стоящего рядом загородного клуба содействовали созданию нового образа.
Апарт-отель «Величъ». 1 и 2 корпуса © Архитектурная  мастерская Грошева Юрия
Апарт-отель «Величъ». 1 и 2 корпуса © Архитектурная мастерская Грошева Юрия

Совместно с заказчиком был разработан сценарий проживания в гостинице. Заезд на автомобиле (каждому номеру – свое машиноместо на стоянке нижнего уровня), оттуда непосредственно существует проход на ресепшн, где происходит распределение по корпусам. Связь корпусов с рестораном, а ресторана – с внутренним двором и с кафе на свежем воздухе – все нашло место в композиции объема.
Апарт-отель «Величъ». Входная площадь, 1 и 3 корпуса © Архитектурная  мастерская Грошева Юрия
Апарт-отель «Величъ». Входная площадь, 1 и 3 корпуса © Архитектурная мастерская Грошева Юрия

Чтобы не нарушать комфорт жителей рядом стоящих коттеджей, входная площадь вместе со стоянкой и вестибюлем располагается дальше и ниже уровня улиц. Три корпуса на стилобате создают простыми средствами особый уют.
Апарт-отель «Величъ». Световые проемы на автостоянку © Архитектурная  мастерская Грошева Юрия
Апарт-отель «Величъ». Световые проемы на автостоянку © Архитектурная мастерская Грошева Юрия

Нам также хотелось сохранить растущие на участке старые деревья. Деревья остались на месте со своим почвенным слоем, а за счет разницы уровня земли и стилобата удалось осветить через световые колодцы внутреннюю часть автостоянки.
Апарт-отель «Величъ». Сохраненные деревья © Архитектурная  мастерская Грошева Юрия
Апарт-отель «Величъ». Сохраненные деревья © Архитектурная мастерская Грошева Юрия

На последнем этаже отеля размещены террасы с настилом. Каждая терраса имеет великолепный вид на черепичные кровли.
Некоторые номера имеют небольшие балконы, на которых установлены цветочницы как напоминание о стиле жизни небольших городков. На верхнем этаже расположены каминный зал и зал фитнесса.
Апарт-отель «Величъ». 2 корпус © Архитектурная  мастерская Грошева Юрия
Апарт-отель «Величъ». 2 корпус © Архитектурная мастерская Грошева Юрия

Плоские кровли отданы под систему солнечных батарей. В вестибюле панно показывает, какой процент электроэнергии обеспечивается солнцем.»
Апарт-отель «Величъ». Внутренний двор на стилобате, 1 и 3 корпуса © Архитектурная  мастерская Грошева Юрия
Апарт-отель «Величъ». Внутренний двор на стилобате, 1 и 3 корпуса © Архитектурная мастерская Грошева Юрия
Апарт-отель «Величъ». 1 и 3 корпуса © Архитектурная  мастерская Грошева Юрия
Апарт-отель «Величъ». 1 и 3 корпуса © Архитектурная мастерская Грошева Юрия
Апарт-отель «Величъ». 1 и 3 корпуса © Архитектурная  мастерская Грошева Юрия
Апарт-отель «Величъ». 1 и 3 корпуса © Архитектурная мастерская Грошева Юрия
Апарт-отель «Величъ». 1, 2 и 3 корпуса © Архитектурная  мастерская Грошева Юрия
Апарт-отель «Величъ». 1, 2 и 3 корпуса © Архитектурная мастерская Грошева Юрия
Апарт-отель «Величъ». 2 и 3 корпуса © Архитектурная  мастерская Грошева Юрия
Апарт-отель «Величъ». 2 и 3 корпуса © Архитектурная мастерская Грошева Юрия
Апарт-отель «Величъ». 2 корпус © Архитектурная  мастерская Грошева Юрия
Апарт-отель «Величъ». 2 корпус © Архитектурная мастерская Грошева Юрия
Апарт-отель «Величъ». 1 корпус © Архитектурная  мастерская Грошева Юрия
Апарт-отель «Величъ». 1 корпус © Архитектурная мастерская Грошева Юрия
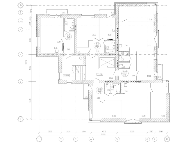
Апарт-отель «Величъ». Двухкомнатный номер © Архитектурная  мастерская Грошева Юрия
Апарт-отель «Величъ». Двухкомнатный номер © Архитектурная мастерская Грошева Юрия
Апарт-отель «Величъ». Коридор © Архитектурная  мастерская Грошева Юрия
Апарт-отель «Величъ». Коридор © Архитектурная мастерская Грошева Юрия
Апарт-отель «Величъ». Лестница © Архитектурная  мастерская Грошева Юрия
Апарт-отель «Величъ». Лестница © Архитектурная мастерская Грошева Юрия
Апарт-отель «Величъ». Вестибюль © Архитектурная  мастерская Грошева Юрия
Апарт-отель «Величъ». Вестибюль © Архитектурная мастерская Грошева Юрия
Апарт-отель «Величъ». Ванная комната номера люкс © Архитектурная  мастерская Грошева Юрия
Апарт-отель «Величъ». Ванная комната номера люкс © Архитектурная мастерская Грошева Юрия
Апарт-отель «Величъ». Ванная комната с окном © Архитектурная  мастерская Грошева Юрия
Апарт-отель «Величъ». Ванная комната с окном © Архитектурная мастерская Грошева Юрия
Апарт-отель «Величъ» © Архитектурная  мастерская Грошева Юрия
Апарт-отель «Величъ» © Архитектурная мастерская Грошева Юрия
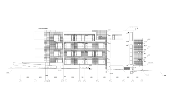
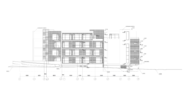
Апарт-отель «Величъ». Фасад © Архитектурная  мастерская Грошева Юрия
Апарт-отель «Величъ». Фасад © Архитектурная мастерская Грошева Юрия
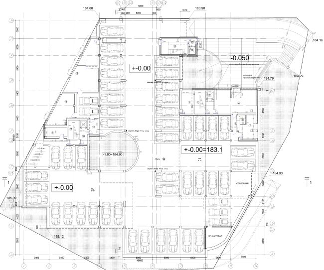
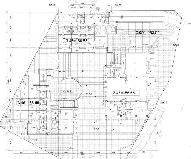
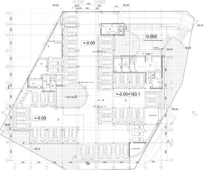
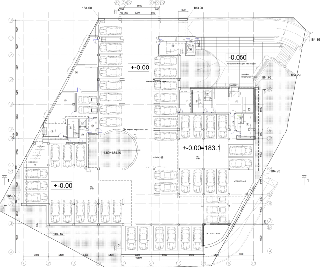
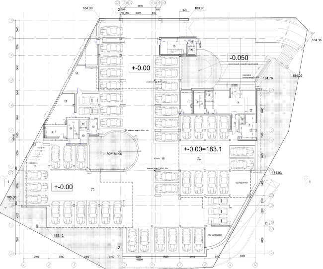
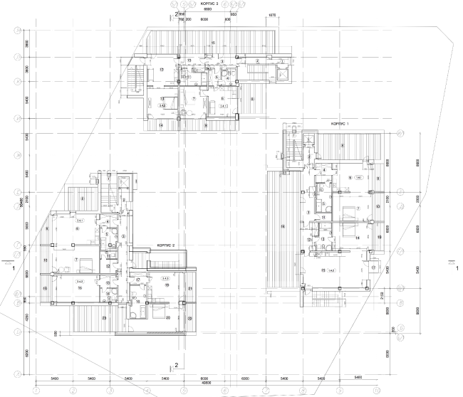
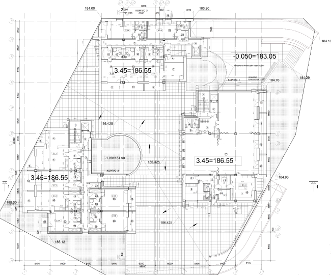
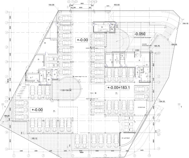
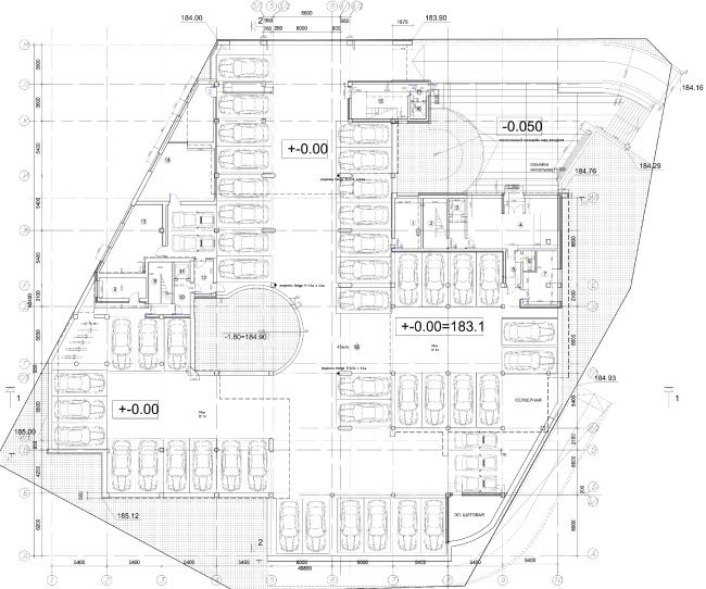
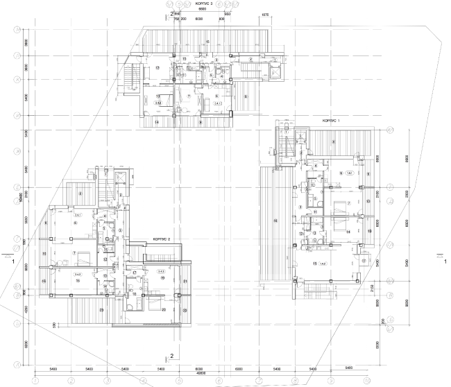
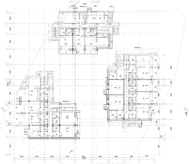
Апарт-отель «Величъ». План автостонки и вестибюля © Архитектурная  мастерская Грошева Юрия
Апарт-отель «Величъ». План автостонки и вестибюля © Архитектурная мастерская Грошева Юрия
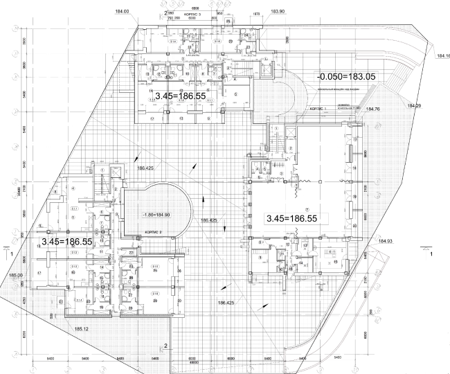
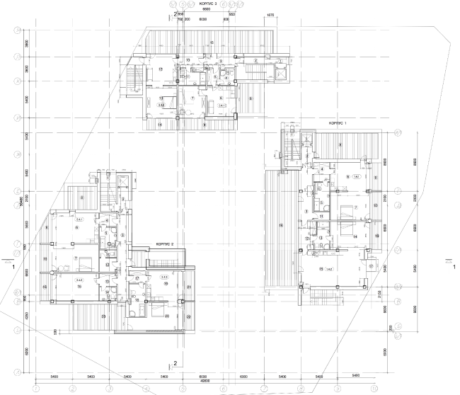
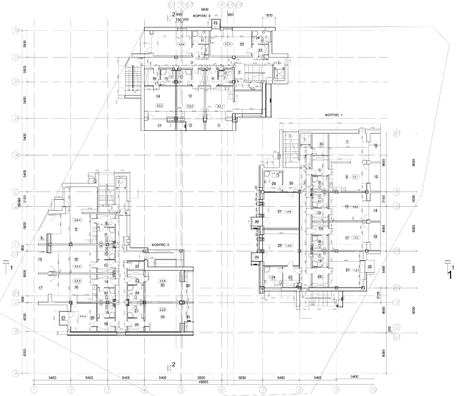
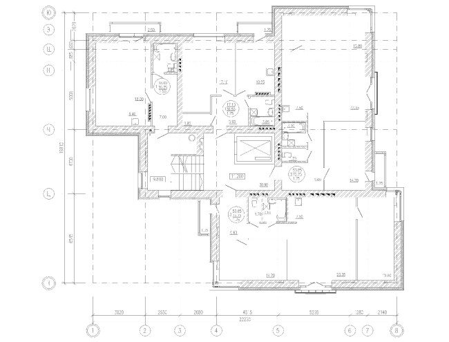
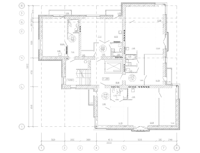
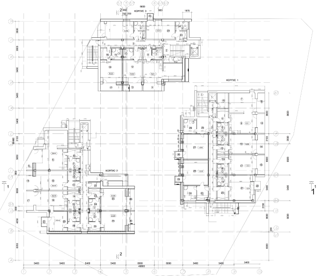
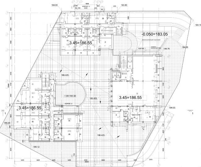
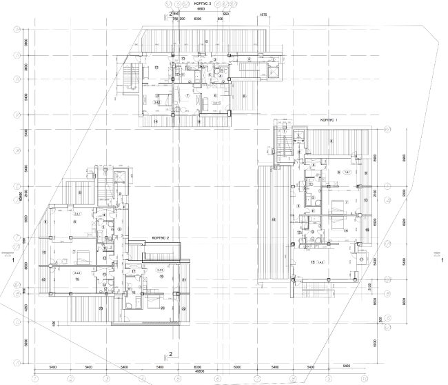
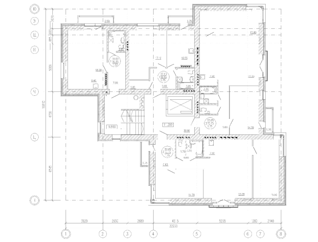
Апарт-отель «Величъ». План 1 этажа © Архитектурная  мастерская Грошева Юрия
Апарт-отель «Величъ». План 1 этажа © Архитектурная мастерская Грошева Юрия
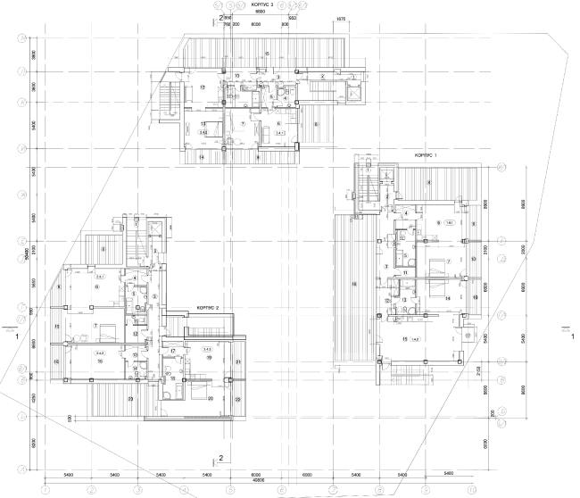
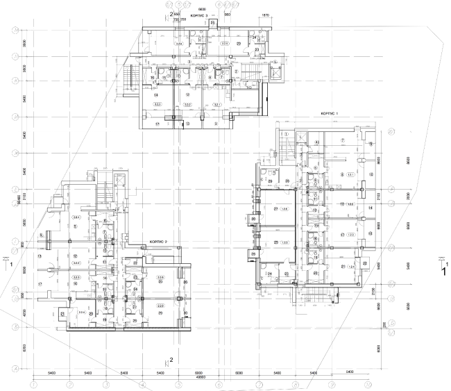
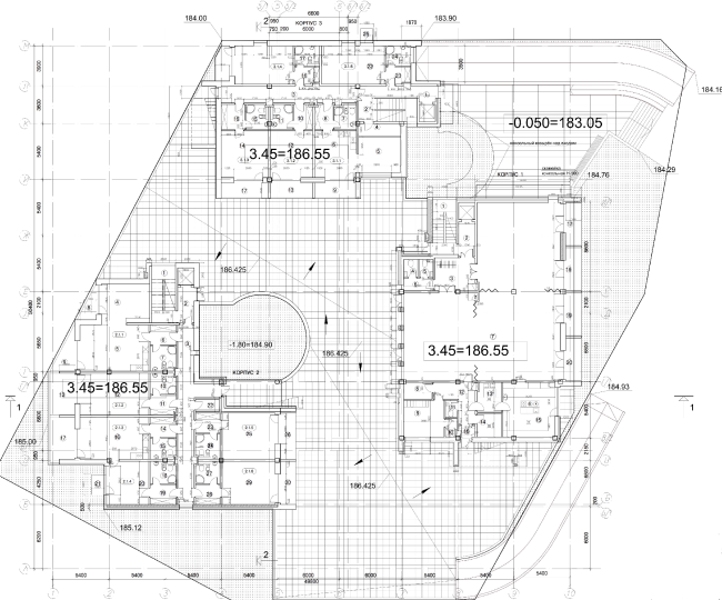
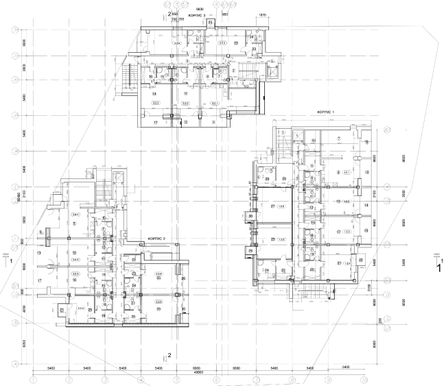
Апарт-отель «Величъ». План 2 этажа © Архитектурная  мастерская Грошева Юрия
Апарт-отель «Величъ». План 2 этажа © Архитектурная мастерская Грошева Юрия
Апарт-отель «Величъ». План мансардного этажа © Архитектурная  мастерская Грошева Юрия
Апарт-отель «Величъ». План мансардного этажа © Архитектурная мастерская Грошева Юрия
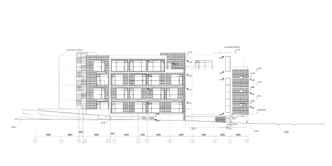
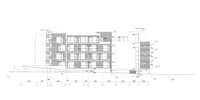
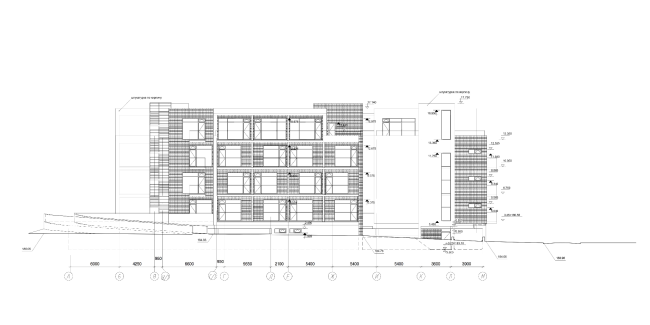
Апарт-отель «Величъ». Разрез © Архитектурная  мастерская Грошева Юрия
Апарт-отель «Величъ». Разрез © Архитектурная мастерская Грошева Юрия