Размещено на портале Архи.ру (www.archi.ru)

30.04.2015

Возвращение героя

Анна Старостина
Объект:
Отель Shepherd’s Bush Pavilion
Адрес:
Великобритания, None, Лондон.
Мастерская:
Flanagan Lawrence

Бюро Flanagan Lawrence превратило исторический лондонский кинотеатр в стиле ар деко в комфортабельный отель.

Shepherd’s Bush Pavilion Hotel © Anthony Weller
Shepherd’s Bush Pavilion Hotel © Anthony Weller

Бывшее здание кинотеатра Shepherd's Bush Pavilion хоть и историческое, даже отмеченное наградой RIBA, но имеет сравнительно невысокий охранный статус – «вторую категорию» (Grade II), гарантирующую, тем не менее, полную сохранность памятника. Построенный в 1923 по проекту Фрэнка Верити кинотеатр сильно пострадал во время Второй мировой войны и затем подвергся нескольким не слишком удачным реконструкциям (в 80-ые годы, например, тут был игровой клуб). Последние годы здание и вовсе стояло заброшенным.
Shepherd’s Bush Pavilion Hotel © Anthony Weller
Shepherd’s Bush Pavilion Hotel © Anthony Weller

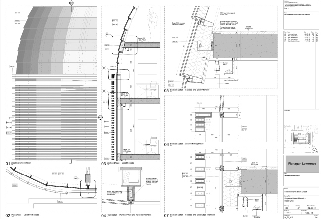
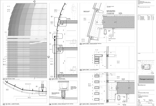
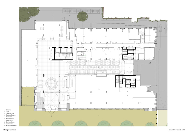
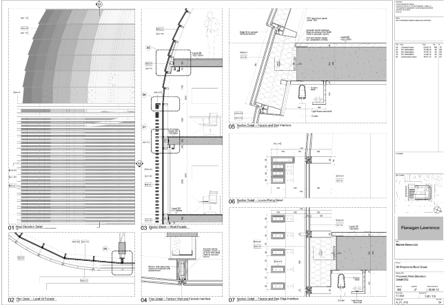
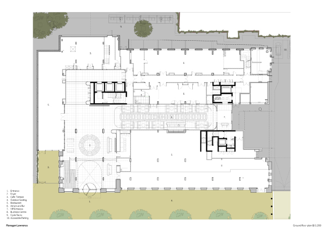
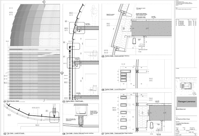
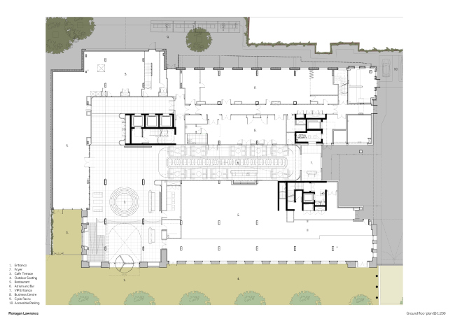
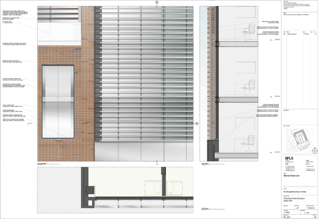
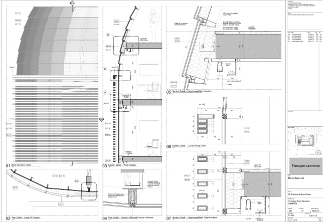
Дэвид Лоуренс и Джейсон Фланаган разместили в нем 4-звездочный отель на 320 номеров с конференц-зоной, рестораном, баром, небольшими магазинами и даже spa-центром на верхнем ярусе. Экстерьер максимально сохранен (именно его решение и было в свое время удостоено награды как лучший лондонский фасад), убрали лишь дальнюю торцевую стену, заменив ее современной комбинацией из типовых элементов старых фасадов. Также необходимо было существенно повысить естественную освещенность внутренних зон, что все-таки потребовало дополнительных прорезей в исторических стенах. Решению проблемы освещения способствует и стеклянная цилиндрическая кровля, точно повторяющая своей формой первоначальное завершение здания.
Shepherd’s Bush Pavilion Hotel © Anthony Weller
Shepherd’s Bush Pavilion Hotel © Anthony Weller

Интерьер отеля (от оригинальной отделки мало что сохранилось) архитекторы выстроили в диалоге с оформлением кинотеатров эпохи ар деко: здесь царствуют теплые золотистые оттенки, тяжелые криволинейные детали и элементы из латуни. Пол, выложенный медового цвета песчаником, получил тонкие латунные прожилки. В центральной зоне они расходятся кругами от стойки портье, направляя потоки посетителей и вторя верхнему фонарю из подсвеченных изнутри пластин. Ребристых поверхностей, как светлых, так и темных, здесь очень много: кроме декоративной нагрузки, такой прием архитекторов позволил существенно улучшить акустические характеристики помещения.
Shepherd’s Bush Pavilion Hotel © Anthony Weller
Shepherd’s Bush Pavilion Hotel © Anthony Weller

Уже обновленный и успешно возвращенный городу памятник опять претендует на значимую архитектурную награду: в этот раз – на RIBA London Awards – первый из отборочных туров в погоне за престижной Премией Стерлинга.
Shepherd’s Bush Pavilion Hotel © Anthony Weller
Shepherd’s Bush Pavilion Hotel © Anthony Weller
Shepherd’s Bush Pavilion Hotel © Anthony Weller
Shepherd’s Bush Pavilion Hotel © Anthony Weller
Shepherd’s Bush Pavilion Hotel © Nick Guttridge
Shepherd’s Bush Pavilion Hotel © Nick Guttridge
Shepherd’s Bush Pavilion Hotel © Nick Guttridge
Shepherd’s Bush Pavilion Hotel © Nick Guttridge
Shepherd’s Bush Pavilion Hotel © Nick Guttridge
Shepherd’s Bush Pavilion Hotel © Nick Guttridge
Shepherd’s Bush Pavilion Hotel © Nick Guttridge
Shepherd’s Bush Pavilion Hotel © Nick Guttridge
Shepherd’s Bush Pavilion Hotel © Nick Guttridge
Shepherd’s Bush Pavilion Hotel © Nick Guttridge
Shepherd’s Bush Pavilion Hotel © Anthony Weller
Shepherd’s Bush Pavilion Hotel © Anthony Weller
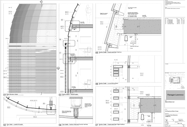
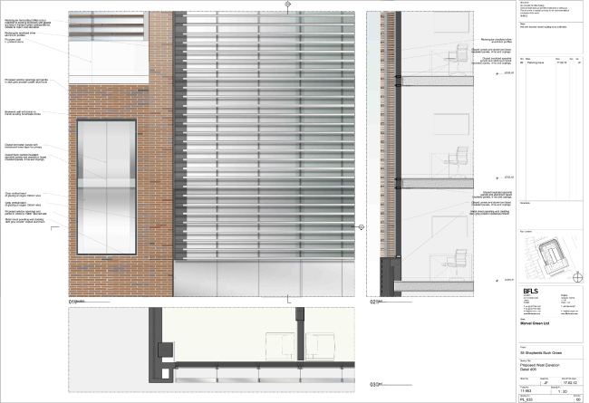
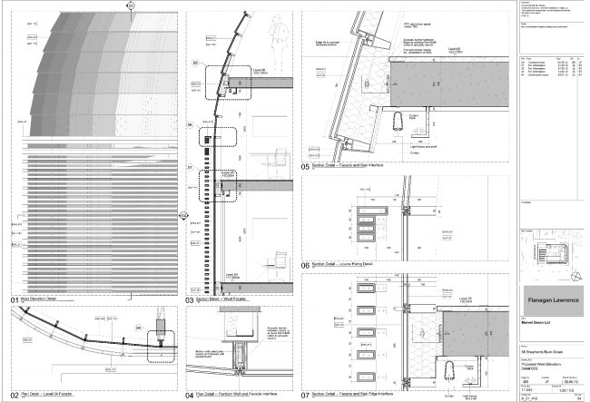
Shepherd’s Bush Pavilion Hotel © Flanagan Lawrence
Shepherd’s Bush Pavilion Hotel © Flanagan Lawrence
Shepherd’s Bush Pavilion Hotel © Flanagan Lawrence
Shepherd’s Bush Pavilion Hotel © Flanagan Lawrence
Shepherd’s Bush Pavilion Hotel © Flanagan Lawrence
Shepherd’s Bush Pavilion Hotel © Flanagan Lawrence
Shepherd’s Bush Pavilion Hotel © Flanagan Lawrence
Shepherd’s Bush Pavilion Hotel © Flanagan Lawrence
Shepherd’s Bush Pavilion Hotel © Flanagan Lawrence
Shepherd’s Bush Pavilion Hotel © Flanagan Lawrence
Shepherd’s Bush Pavilion Hotel © Flanagan Lawrence
Shepherd’s Bush Pavilion Hotel © Flanagan Lawrence