Размещено на портале Архи.ру (www.archi.ru)

22.04.2015

Жёлтый, зелёный, полосатый и белый

Объект:
Магазины шаговой доступности «Стереопара»
Адрес:
Россия, Люберцы. микрорайон 7-8, картал 8А, д. 45А, д. 69
Центр социальной реабилитации инвалидов и детей-инвалидов
Адрес:
Россия, Санкт-Петербург. ул. Чудновского, д. 4, корп. 1
Центральный вестибюль бизнес-парка «ШТЕРН Эстейт»
Адрес:
Россия, Москва. Электродная ул., д. 11
Мастерская:
АБ PROA
АБ «Богачкин и Богачкин»
АМ А.А. Столярчука
Авторский коллектив:
PROA
Руководитель проектной организации – Дрожжин Евгений Васильевич 

Публикуем первые четыре реализации, присланные архитекторами и приглянувшиеся редакции. В первую подборку вошли центр реабилитации инвалидов, два магазина и вестибюль бизнес-центра.

Несколько месяцев мы собирали проекты, которые их авторы решились отправить на рассмотрение редакции. Теперь с радостью сообщаем о том, что готовы публиковать приглянувшиеся работы. Мы постараемся объединять их вокруг тех или иных подходящих тем, но для первого материала отобрали реализации, которые нам особенно понравились. А именно: социальный центр Анатолия Столярчука, который немного нарушает установленные нами для проекта правила, так как построен уже в 2010 году, а значит – не слишком нов, но мы решили, что для начала такое возможно, к тому же здание имеет общественный смысл. Два магазина от бюро Вячеслава Богачкина, жизнерадостно фланкирующих проспект Победы в свежем панельном районе Люберец. И бело-черный офисный интерьер, спроектированный бюро Евгения Дрожжина PROA. Реализации бюро Богачкина и PROA – совсем свежие.

Будем ждать новых поступлений и продолжать публикации. Присылайте проекты.

***
Центр социальной реабилитации инвалидов и детей-инвалидов
Санкт-Петербург / 2010
ООО «Архитектурная мастерская Столярчука», Анатолий Столярчук
Центр социальной реабилитации инваидов и детей инвалидов. Постройка, 2010. Фотография © Шабловский Г. С.
Центр социальной реабилитации инваидов и детей инвалидов. Постройка, 2010. Фотография © Шабловский Г. С.

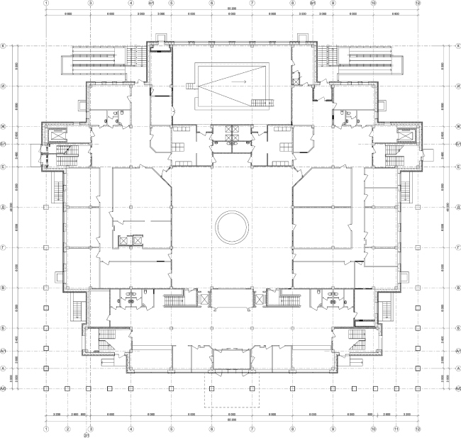
Реабилитационный центр предназначен для жителей Невского района Петербурга. Главный фасад оформлен портиком во всю высоту здания, выделяющим его из типовой жилой застройки вокруг и придающим ему соответствующую его функции значительность. Наружные стены здания покрывает лицевой кирпич светлых тонов, портик – светлая керамическая плитка. Цоколь здания – гранитный.

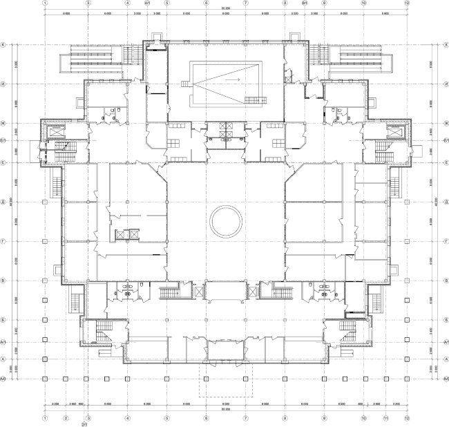
Ядро композиции – трехэтажный атриум. По его периметру сгруппированы все помещения центра. На первом уровне расположены отделения дневного пребывания, приема и консультаций, адаптивной физкультуры с бассейном, кафе. Выше – отделения социально-медицинского сопровождения, профессиональной реабилитации инвалидов трудоспособного возраста и профессиональной реабилитации детей-инвалидов, социально-реабилитационное отделение. На последнем, третьем этаже находятся отделение временного пребывания, аппарат центра, актовый зал на 62 места и буфет.
Центр социальной реабилитации инваидов и детей инвалидов. Фасад по ул. Чудновского. Постройка, 2010. Фотография © Шабловский Г. С.
Центр социальной реабилитации инваидов и детей инвалидов. Фасад по ул. Чудновского. Постройка, 2010. Фотография © Шабловский Г. С.
Центр социальной реабилитации инваидов и детей инвалидов. Постройка, 2010. Фотография © Шабловский Г. С.
Центр социальной реабилитации инваидов и детей инвалидов. Постройка, 2010. Фотография © Шабловский Г. С.
Центр социальной реабилитации инваидов и детей инвалидов. Постройка, 2010. Фотография интерьера спортивного зала © Шабловский Г. С.
Центр социальной реабилитации инваидов и детей инвалидов. Постройка, 2010. Фотография интерьера спортивного зала © Шабловский Г. С.
Центр социальной реабилитации инваидов и детей инвалидов. Постройка, 2010. Фотография © Шабловский Г. С.
Центр социальной реабилитации инваидов и детей инвалидов. Постройка, 2010. Фотография © Шабловский Г. С.
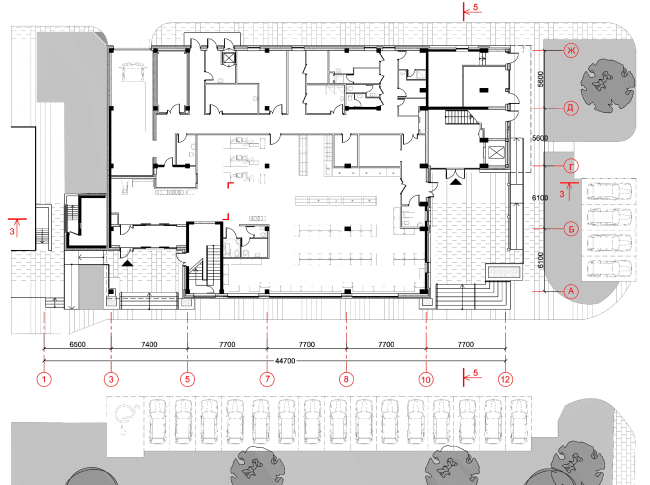
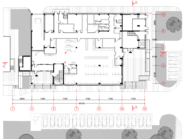
Центр социальной реабилитации инваидов и детей инвалидов. Ситуационный план. Постройка, 2010 © Архитектурная мастерская А.А. Столярчука
Центр социальной реабилитации инваидов и детей инвалидов. Ситуационный план. Постройка, 2010 © Архитектурная мастерская А.А. Столярчука
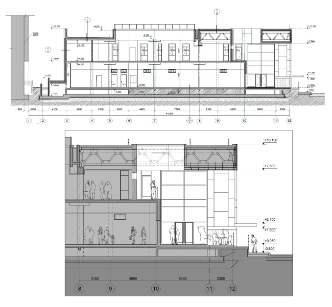
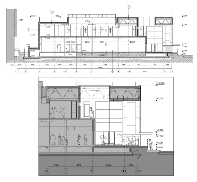
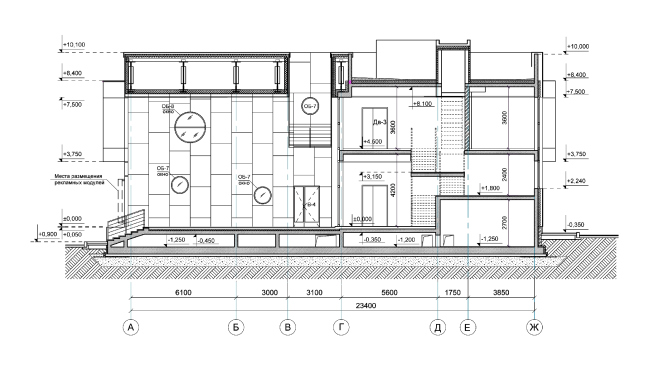
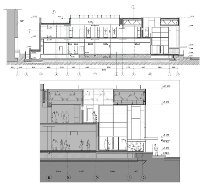
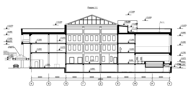
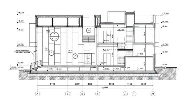
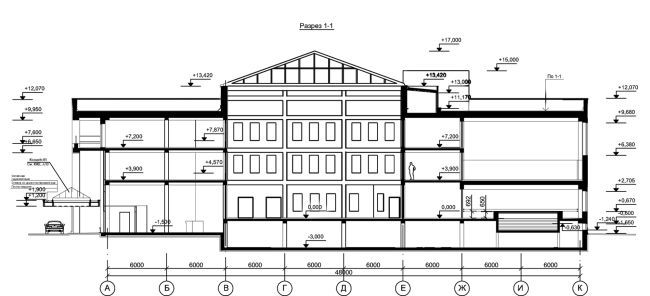
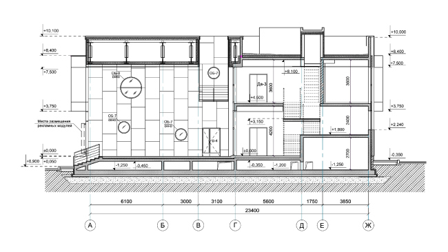
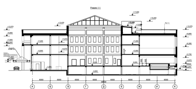
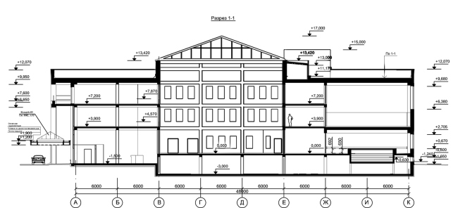
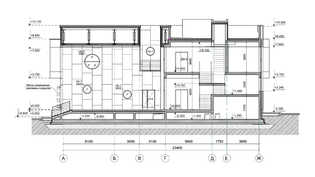
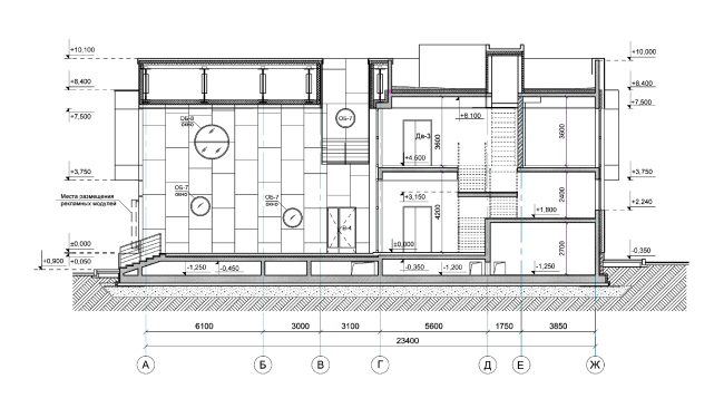
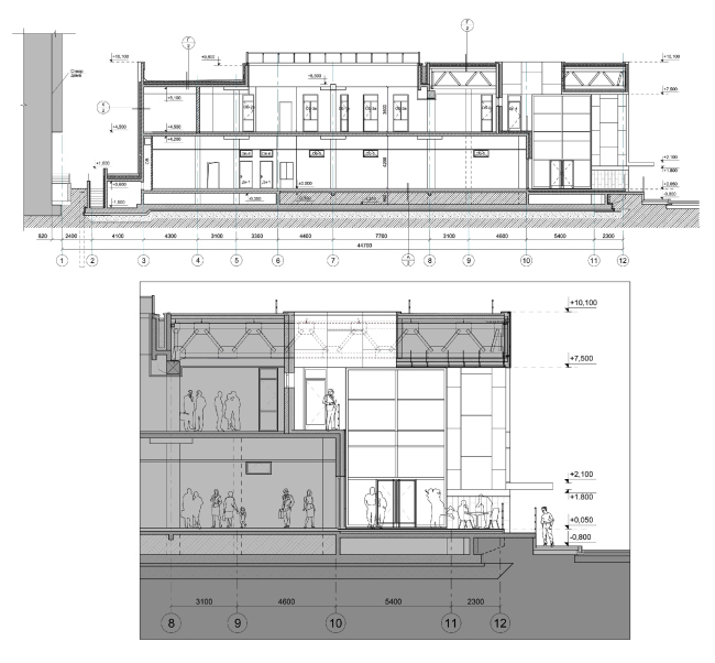
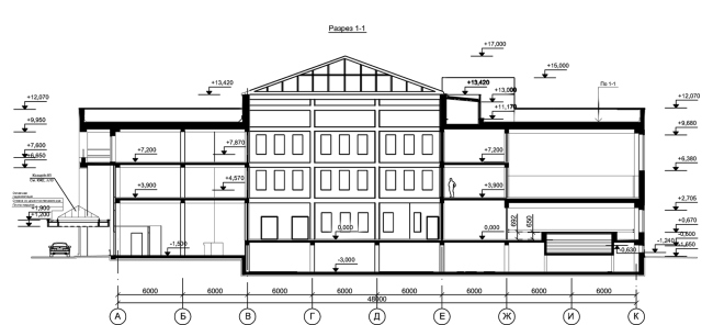
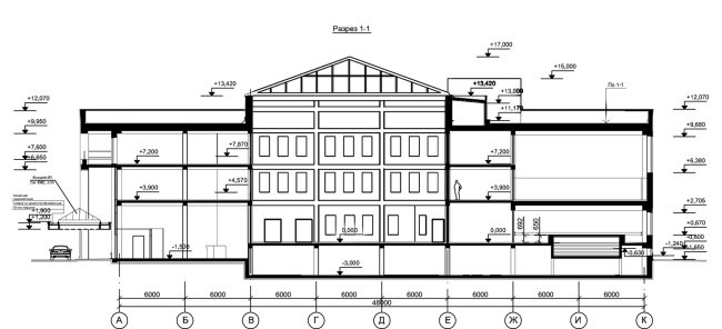
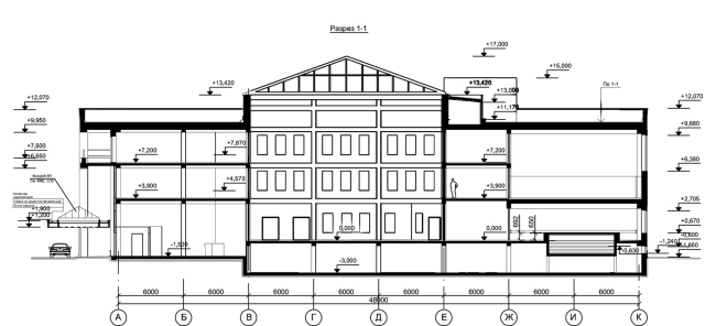
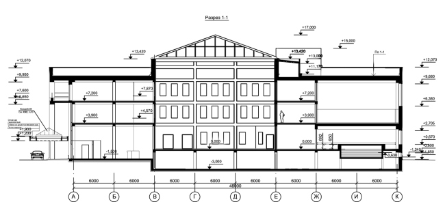
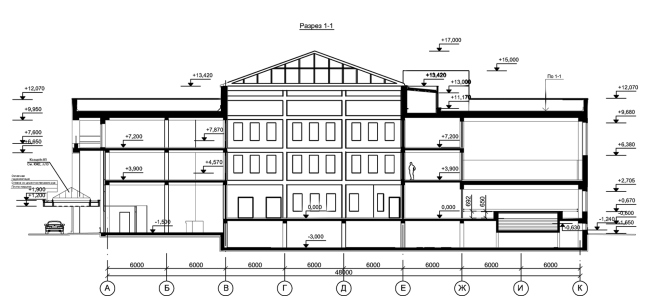
Центр социальной реабилитации инваидов и детей инвалидов. Разрез 1-1. Постройка, 2010 © Архитектурная мастерская А.А. Столярчука
Центр социальной реабилитации инваидов и детей инвалидов. Разрез 1-1. Постройка, 2010 © Архитектурная мастерская А.А. Столярчука
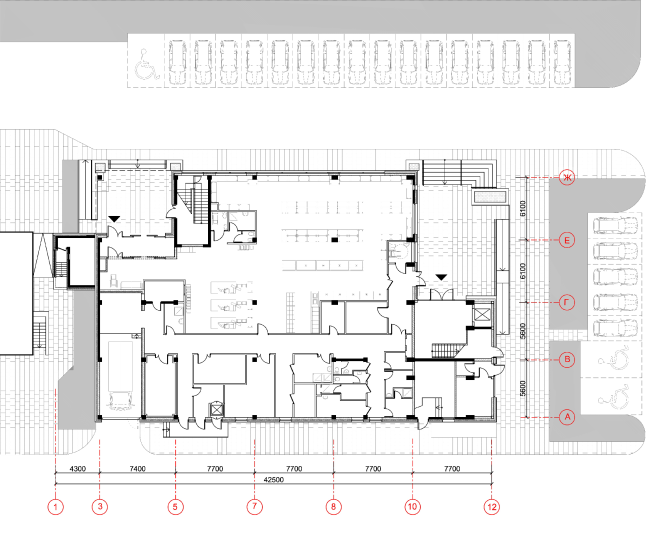
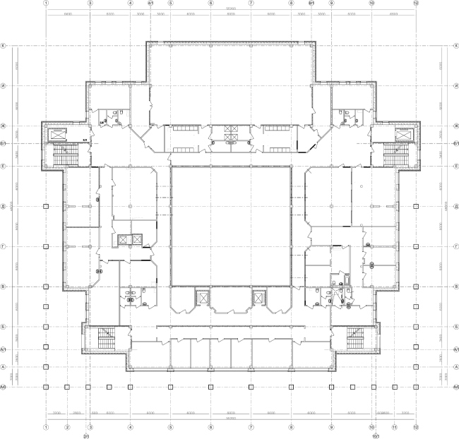
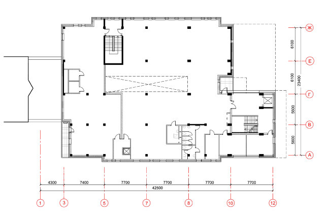
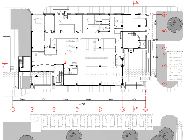
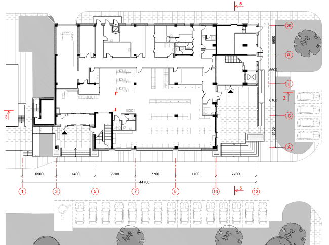
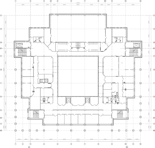
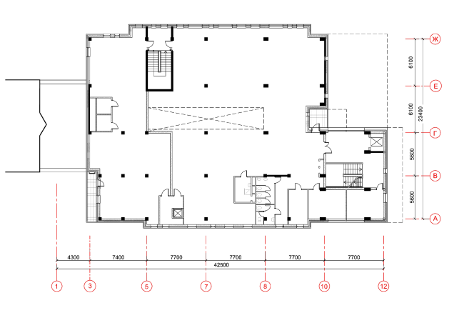
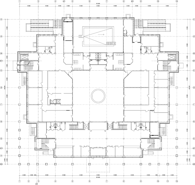
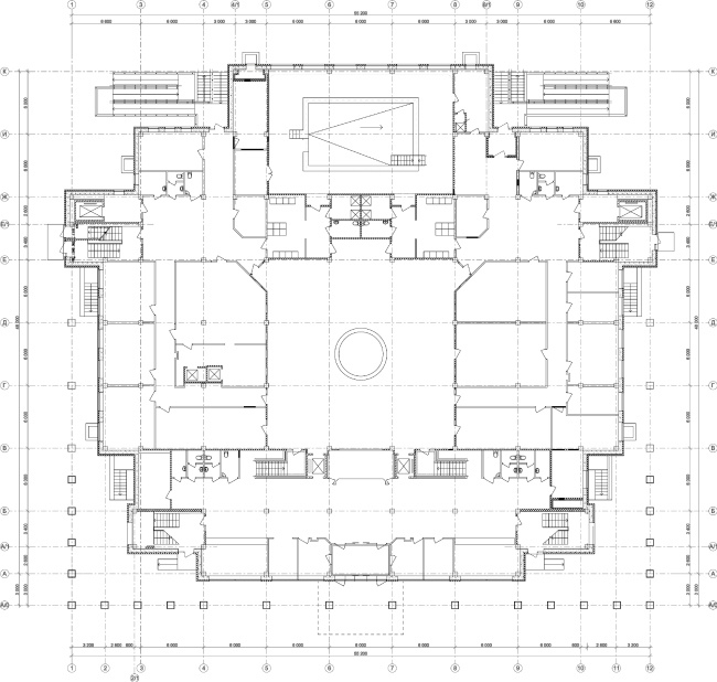
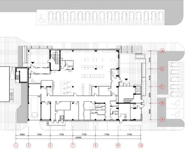
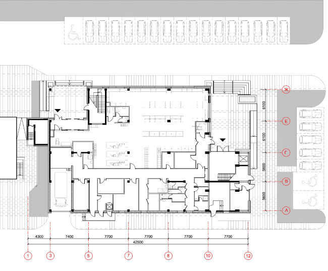
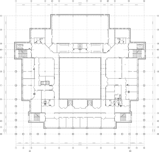
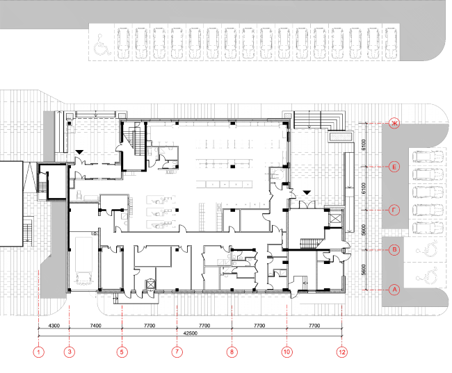
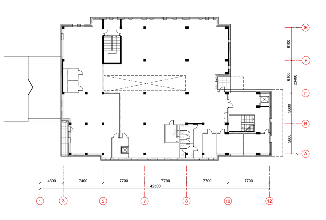
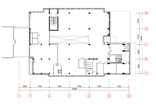
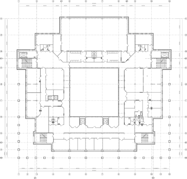
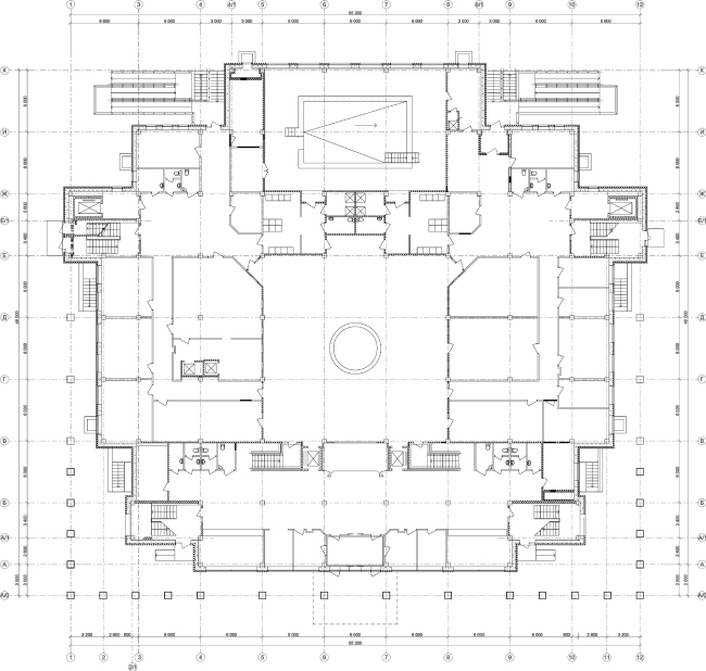
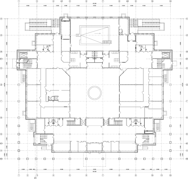
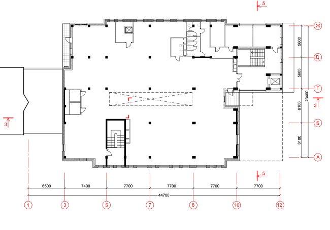
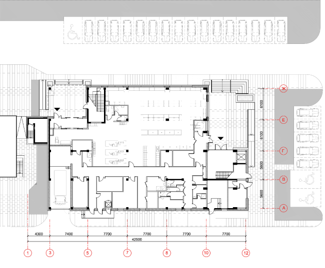
Центр социальной реабилитации инваидов и детей инвалидов. План 1 этажа. Постройка, 2010 © Архитектурная мастерская А.А. Столярчука
Центр социальной реабилитации инваидов и детей инвалидов. План 1 этажа. Постройка, 2010 © Архитектурная мастерская А.А. Столярчука
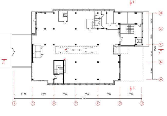
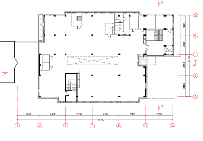
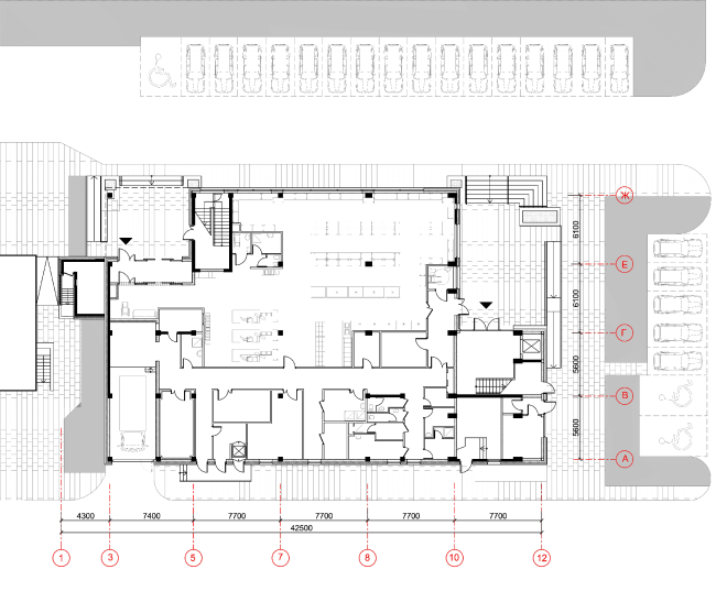
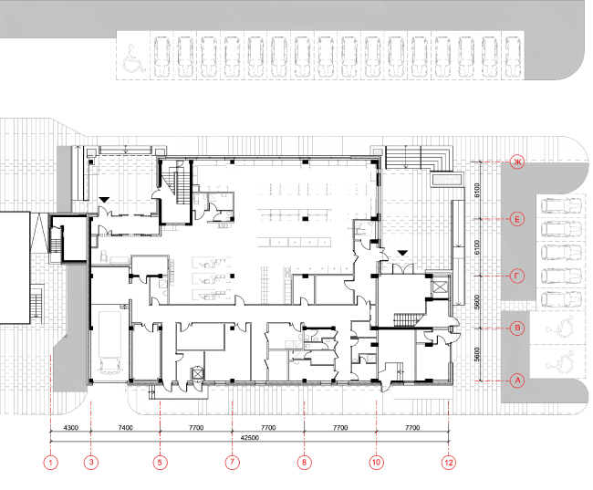
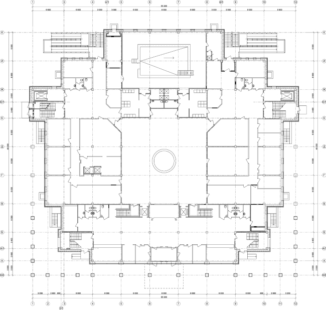
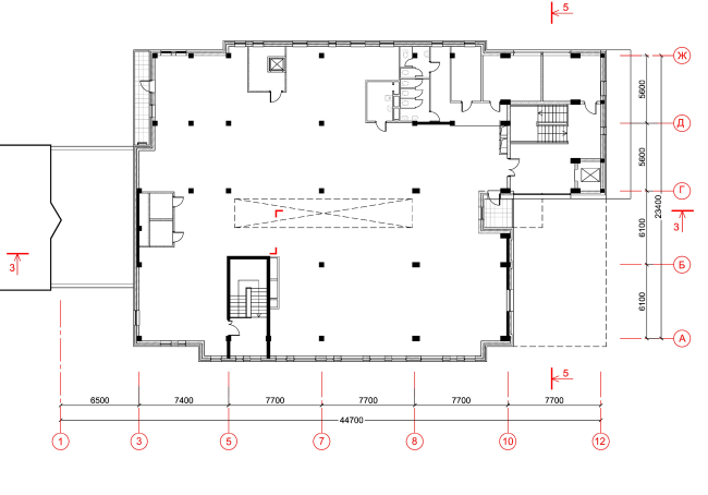
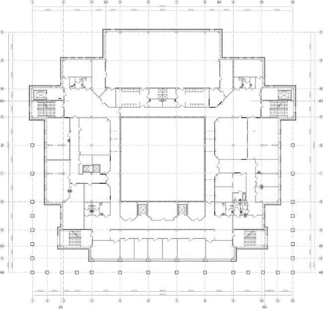
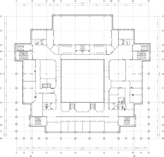
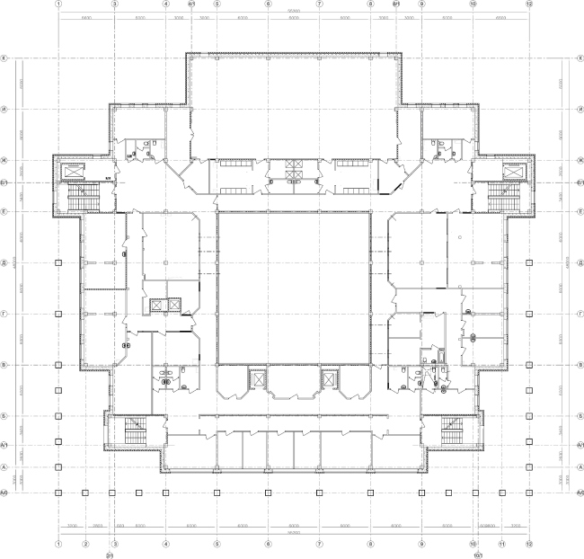
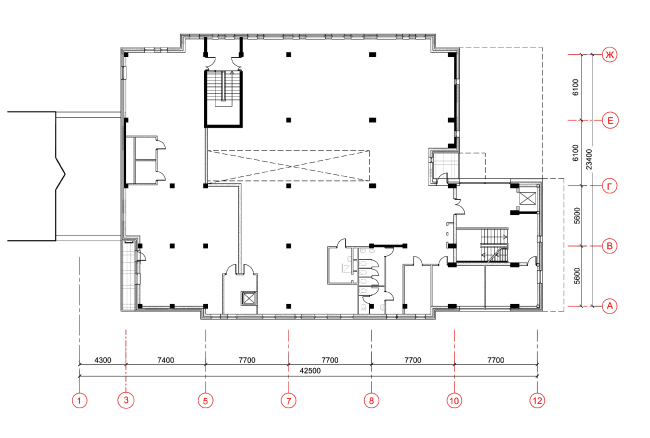
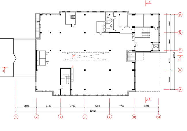
Центр социальной реабилитации инваидов и детей инвалидов. План 2 этажа. Постройка, 2010 © Архитектурная мастерская А.А. Столярчука
Центр социальной реабилитации инваидов и детей инвалидов. План 2 этажа. Постройка, 2010 © Архитектурная мастерская А.А. Столярчука
***

«Стереопара».
Магазины шаговой доступности в городе Люберцы

Московская область / 2014
Архитектурное бюро «Богачкин и Богачкин», Вячеслав Богачкин

Магазины шаговой доступности «Стереопара» © Архитектурное бюро «Богачкин и Богачкин»
Магазины шаговой доступности «Стереопара» © Архитектурное бюро «Богачкин и Богачкин»

«Два небольших торговых центра расположены в новом микрорайоне Люберец, застроенном панельными сериями высотой 16–24 этажей. Мы рассматривали эти два здания как комплекс, потому что они расположены симметрично друг напротив друга по сторонам широкого проспекта, а также для того, чтобы они не «потерялись» в этой гигантской застройке. В каждом корпусе на втором этаже есть фонарь верхнего света. Акцентом зданий являются выделенные цветом главные входные группы.
Магазины шаговой доступности «Стереопара». Здание № 69 © Архитектурное бюро «Богачкин и Богачкин»
Магазины шаговой доступности «Стереопара». Здание № 69 © Архитектурное бюро «Богачкин и Богачкин»

Входы на террасы перекрыты козырьками с большим выносом – 8 на 12 м. Под ними будут расположены столики летних кафе. Эти архитектурные элементы выполняют буферную функцию, формируя промежуточное пространство между зданием и городом, своего рода «городские гостиные». Материалы фасадов – антивандальные металлокерамические панели (Германия), композитные панели «Аlpolic», цоколь – гранит».

На первом этаже у каждого здания находится минимаркет «Дикси», на втором – один (дом №45А) или два (дом №69) ресторана.
Магазины шаговой доступности «Стереопара». Здание № 69 © Архитектурное бюро «Богачкин и Богачкин»
Магазины шаговой доступности «Стереопара». Здание № 69 © Архитектурное бюро «Богачкин и Богачкин»
Магазины шаговой доступности «Стереопара». Здание № 69 © Архитектурное бюро «Богачкин и Богачкин»
Магазины шаговой доступности «Стереопара». Здание № 69 © Архитектурное бюро «Богачкин и Богачкин»
Магазины шаговой доступности «Стереопара». Здание № 69 © Архитектурное бюро «Богачкин и Богачкин»
Магазины шаговой доступности «Стереопара». Здание № 69 © Архитектурное бюро «Богачкин и Богачкин»
Магазины шаговой доступности «Стереопара». Здание № 69 © Архитектурное бюро «Богачкин и Богачкин»
Магазины шаговой доступности «Стереопара». Здание № 69 © Архитектурное бюро «Богачкин и Богачкин»
Магазины шаговой доступности «Стереопара». Здание № 69 © Архитектурное бюро «Богачкин и Богачкин»
Магазины шаговой доступности «Стереопара». Здание № 69 © Архитектурное бюро «Богачкин и Богачкин»
Магазины шаговой доступности «Стереопара». Здание № 45А © Архитектурное бюро «Богачкин и Богачкин»
Магазины шаговой доступности «Стереопара». Здание № 45А © Архитектурное бюро «Богачкин и Богачкин»
Магазины шаговой доступности «Стереопара». Здание № 45А © Архитектурное бюро «Богачкин и Богачкин»
Магазины шаговой доступности «Стереопара». Здание № 45А © Архитектурное бюро «Богачкин и Богачкин»
Магазины шаговой доступности «Стереопара». Здание № 45А © Архитектурное бюро «Богачкин и Богачкин»
Магазины шаговой доступности «Стереопара». Здание № 45А © Архитектурное бюро «Богачкин и Богачкин»
Магазины шаговой доступности «Стереопара». Здание № 45А © Архитектурное бюро «Богачкин и Богачкин»
Магазины шаговой доступности «Стереопара». Здание № 45А © Архитектурное бюро «Богачкин и Богачкин»
Магазины шаговой доступности «Стереопара». Здание № 45А © Архитектурное бюро «Богачкин и Богачкин»
Магазины шаговой доступности «Стереопара». Здание № 45А © Архитектурное бюро «Богачкин и Богачкин»
Магазины шаговой доступности «Стереопара». Здание № 45А © Архитектурное бюро «Богачкин и Богачкин»
Магазины шаговой доступности «Стереопара». Здание № 45А © Архитектурное бюро «Богачкин и Богачкин»
Магазины шаговой доступности «Стереопара». Здание № 45А © Архитектурное бюро «Богачкин и Богачкин»
Магазины шаговой доступности «Стереопара». Здание № 45А © Архитектурное бюро «Богачкин и Богачкин»
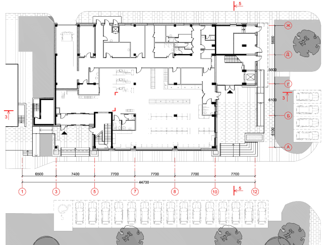
Магазины шаговой доступности «Стереопара». Ситуационный план. Генеральный план © Архитектурное бюро «Богачкин и Богачкин»
Магазины шаговой доступности «Стереопара». Ситуационный план. Генеральный план © Архитектурное бюро «Богачкин и Богачкин»
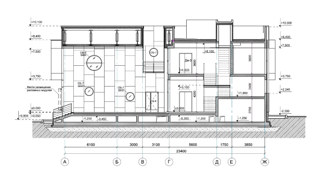
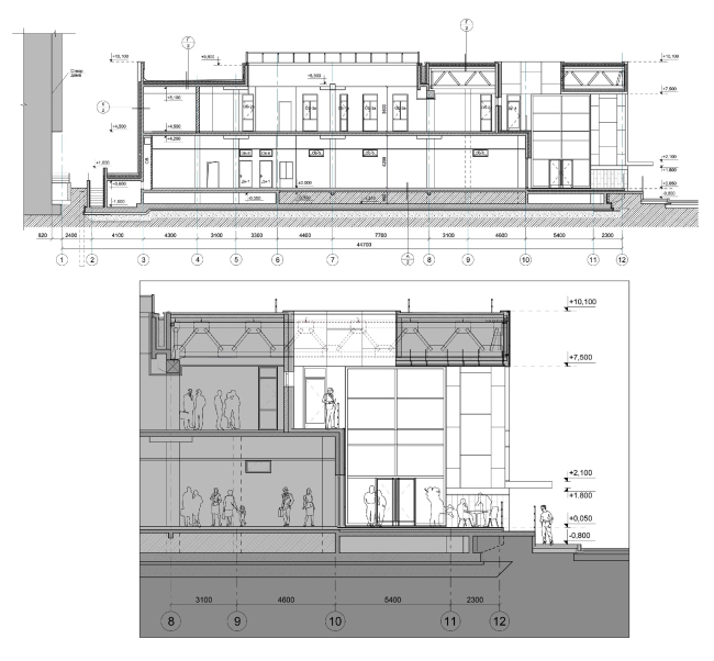
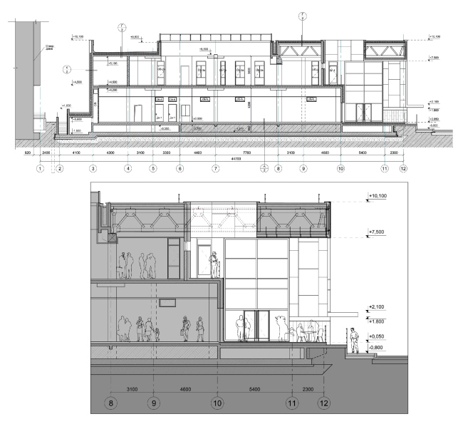
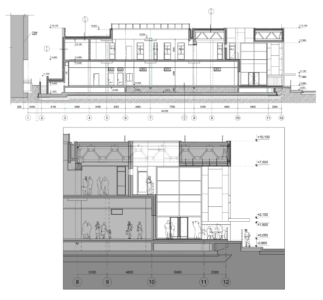
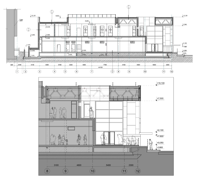
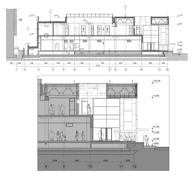
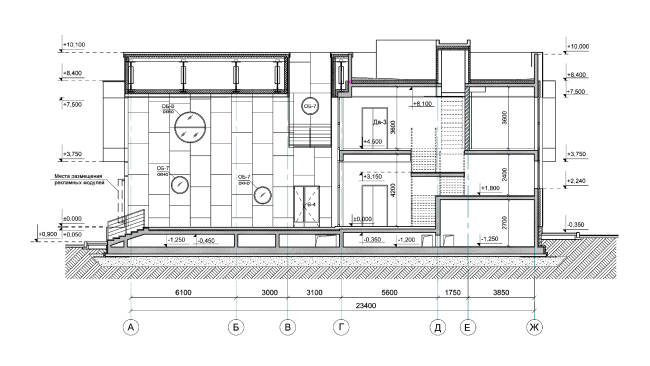
Магазины шаговой доступности «Стереопара». Разрезы © Архитектурное бюро «Богачкин и Богачкин»
Магазины шаговой доступности «Стереопара». Разрезы © Архитектурное бюро «Богачкин и Богачкин»
Магазины шаговой доступности «Стереопара». Разрезы © Архитектурное бюро «Богачкин и Богачкин»
Магазины шаговой доступности «Стереопара». Разрезы © Архитектурное бюро «Богачкин и Богачкин»
Магазины шаговой доступности «Стереопара». Разрезы © Архитектурное бюро «Богачкин и Богачкин»
Магазины шаговой доступности «Стереопара». Разрезы © Архитектурное бюро «Богачкин и Богачкин»
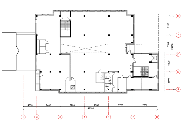
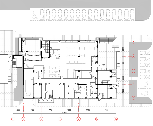
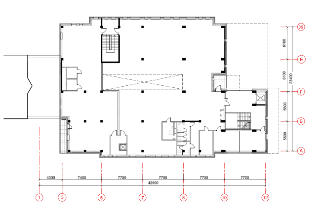
Магазины шаговой доступности «Стереопара». Здание № 45А. План 1 этажа © Архитектурное бюро «Богачкин и Богачкин»
Магазины шаговой доступности «Стереопара». Здание № 45А. План 1 этажа © Архитектурное бюро «Богачкин и Богачкин»
Магазины шаговой доступности «Стереопара». Здание № 45А. План 2 этажа © Архитектурное бюро «Богачкин и Богачкин»
Магазины шаговой доступности «Стереопара». Здание № 45А. План 2 этажа © Архитектурное бюро «Богачкин и Богачкин»
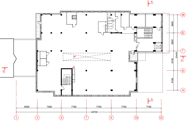
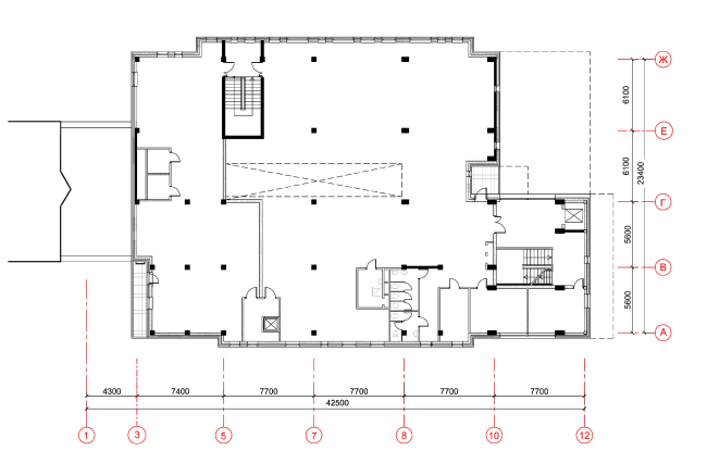
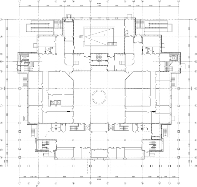
Магазины шаговой доступности «Стереопара». Здание № 69. План 1 этажа © Архитектурное бюро «Богачкин и Богачкин»
Магазины шаговой доступности «Стереопара». Здание № 69. План 1 этажа © Архитектурное бюро «Богачкин и Богачкин»
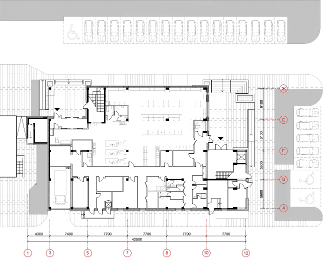
Магазины шаговой доступности «Стереопара». Здание № 69. План 2 этажа © Архитектурное бюро «Богачкин и Богачкин»
Магазины шаговой доступности «Стереопара». Здание № 69. План 2 этажа © Архитектурное бюро «Богачкин и Богачкин»
***

Центральный вестибюль бизнес-парка «ШТЕРН Эстейт»
Москва / 2014
Архитектурное бюро PROA, Евгений Дрожжин

Центральный вестибюль Бизнес-парка «ШТЕРН Эстейт». Фото: Алексей Трофимов © PROA
Центральный вестибюль Бизнес-парка «ШТЕРН Эстейт». Фото: Алексей Трофимов © PROA

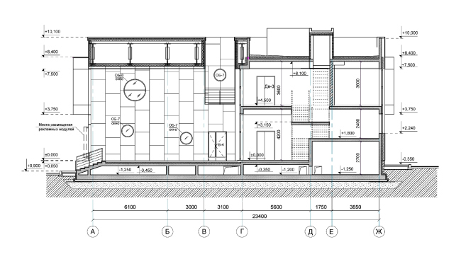
Бизнес-парк «ШТЕРН Эстейт» расположен на востоке Москвы; в него входят офисные и складские корпуса общей площадью более 7 га. Для центрального вестибюля бизнес-парка требовалось создать одновременно узнаваемый и лаконичный интерьер. Изначально пространство вестибюля с невысокими потолками и недостаточным естественным освещением воспринималось как темное и небольшое; проект PROA меняет это впечатление на противоположное. Этой цели служит контрастная палитра, где белый цвет создал ощущение светлого, просторного пространства, а темный фоновый цвет визуально исправил пропорции вестибюля.

Главным «действующим лицом» проекта стала световая система с динамичной структурой, плавно переходящая с фронтальной стены на потолок. Прообразом для нее послужил склад с коробками. У световых блоков есть разнообразные сценарии работы, что позволяет менять интенсивность освещения в зависимости от времени суток и погодных условий.
Центральный вестибюль Бизнес-парка «ШТЕРН Эстейт». Фото: Алексей Трофимов © PROA
Центральный вестибюль Бизнес-парка «ШТЕРН Эстейт». Фото: Алексей Трофимов © PROA
Центральный вестибюль Бизнес-парка «ШТЕРН Эстейт». Фото: Алексей Трофимов © PROA
Центральный вестибюль Бизнес-парка «ШТЕРН Эстейт». Фото: Алексей Трофимов © PROA
Центральный вестибюль Бизнес-парка «ШТЕРН Эстейт». Фото: Алексей Трофимов © PROA
Центральный вестибюль Бизнес-парка «ШТЕРН Эстейт». Фото: Алексей Трофимов © PROA
Центральный вестибюль Бизнес-парка «ШТЕРН Эстейт». Фото: Алексей Трофимов © PROA
Центральный вестибюль Бизнес-парка «ШТЕРН Эстейт». Фото: Алексей Трофимов © PROA
Центральный вестибюль Бизнес-парка «ШТЕРН Эстейт». Фото: Алексей Трофимов © PROA
Центральный вестибюль Бизнес-парка «ШТЕРН Эстейт». Фото: Алексей Трофимов © PROA
Центральный вестибюль Бизнес-парка «ШТЕРН Эстейт». Фото: Алексей Трофимов © PROA
Центральный вестибюль Бизнес-парка «ШТЕРН Эстейт». Фото: Алексей Трофимов © PROA
Центральный вестибюль Бизнес-парка «ШТЕРН Эстейт». Фото: Алексей Трофимов © PROA
Центральный вестибюль Бизнес-парка «ШТЕРН Эстейт». Фото: Алексей Трофимов © PROA
Центральный вестибюль Бизнес-парка «ШТЕРН Эстейт». Фото: Алексей Трофимов © PROA
Центральный вестибюль Бизнес-парка «ШТЕРН Эстейт». Фото: Алексей Трофимов © PROA
Центральный вестибюль Бизнес-парка «ШТЕРН Эстейт». Фото: Алексей Трофимов © PROA
Центральный вестибюль Бизнес-парка «ШТЕРН Эстейт». Фото: Алексей Трофимов © PROA


Центральный вестибюль Бизнес-парка «ШТЕРН Эстейт». Фото: Алексей Трофимов © PROA
Центральный вестибюль Бизнес-парка «ШТЕРН Эстейт». Фото: Алексей Трофимов © PROA
Центральный вестибюль Бизнес-парка «ШТЕРН Эстейт». Фото: Алексей Трофимов © PROA
Центральный вестибюль Бизнес-парка «ШТЕРН Эстейт». Фото: Алексей Трофимов © PROA
Центральный вестибюль Бизнес-парка «ШТЕРН Эстейт». Фото: Алексей Трофимов © PROA
Центральный вестибюль Бизнес-парка «ШТЕРН Эстейт». Фото: Алексей Трофимов © PROA
Центральный вестибюль Бизнес-парка «ШТЕРН Эстейт». Фото: Алексей Трофимов © PROA
Центральный вестибюль Бизнес-парка «ШТЕРН Эстейт». Фото: Алексей Трофимов © PROA
Центральный вестибюль Бизнес-парка «ШТЕРН Эстейт». Фото: Алексей Трофимов © PROA
Центральный вестибюль Бизнес-парка «ШТЕРН Эстейт». Фото: Алексей Трофимов © PROA
Центральный вестибюль Бизнес-парка «ШТЕРН Эстейт». Фото: Алексей Трофимов © PROA
Центральный вестибюль Бизнес-парка «ШТЕРН Эстейт». Фото: Алексей Трофимов © PROA
Центральный вестибюль Бизнес-парка «ШТЕРН Эстейт». Фото: Алексей Трофимов © PROA
Центральный вестибюль Бизнес-парка «ШТЕРН Эстейт». Фото: Алексей Трофимов © PROA
Центральный вестибюль Бизнес-парка «ШТЕРН Эстейт». Фото: Алексей Трофимов © PROA
Центральный вестибюль Бизнес-парка «ШТЕРН Эстейт». Фото: Алексей Трофимов © PROA
Центральный вестибюль Бизнес-парка «ШТЕРН Эстейт». Фото: Алексей Трофимов © PROA
Центральный вестибюль Бизнес-парка «ШТЕРН Эстейт». Фото: Алексей Трофимов © PROA
Центральный вестибюль Бизнес-парка «ШТЕРН Эстейт». Фото: Алексей Трофимов © PROA
Центральный вестибюль Бизнес-парка «ШТЕРН Эстейт». Фото: Алексей Трофимов © PROA
Центральный вестибюль Бизнес-парка «ШТЕРН Эстейт». Фото: Алексей Трофимов © PROA
Центральный вестибюль Бизнес-парка «ШТЕРН Эстейт». Фото: Алексей Трофимов © PROA
Центральный вестибюль Бизнес-парка «ШТЕРН Эстейт». Фото: Алексей Трофимов © PROA
Центральный вестибюль Бизнес-парка «ШТЕРН Эстейт». Фото: Алексей Трофимов © PROA
Вид до реализации проекта © PROA
Вид до реализации проекта © PROA
Вид до реализации проекта © PROA
Вид до реализации проекта © PROA