Размещено на портале Архи.ру (www.archi.ru)

17.04.2015

Система дворов

Нина Фролова
Объект:
Художественная галерея Фань Цзэна
Адрес:
Китай, None, Наньтун.
Мастерская:
Original Design Studio

Художественная галерея Фань Цзэна в Наньтуне по проекту китайского бюро Original Design Studio.

Художественная галерея Фань Цзэна. Фото: Yao li, Su Shengliang
Художественная галерея Фань Цзэна. Фото: Yao li, Su Shengliang

Новое здание предназначено для хранения и изучения работ уроженца Наньтуна Фань Цзэна – видного китайского художника, каллиграфа и поэта, работающего в русле национальной традиции живописи тушью.
 
Художественная галерея Фань Цзэна. Фото: Yao li, Su Shengliang
Художественная галерея Фань Цзэна. Фото: Yao li, Su Shengliang

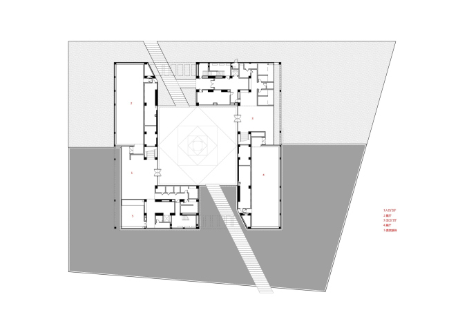
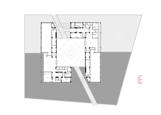
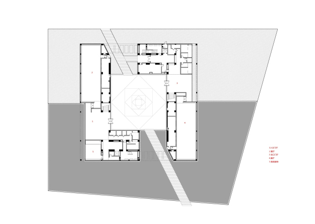
Как и Фань Цзэн, архитекторы «создали современные произведения по древним правилам». Галерея организована вокруг дворов – в духе исторического китайского зодчества. Однако в данном случае дворы расположены друг над другом, «развоплощая» объем здания. На первом ярусе находится «двор колодца», выше – «двор воды» и «двор камня», на третьем этаже – «окруженный двор». Дворы уменьшают объем здания и масштаб его частей, приближая его к человеческому.
 
Художественная галерея Фань Цзэна. Фото: Yao li, Su Shengliang
Художественная галерея Фань Цзэна. Фото: Yao li, Su Shengliang

Кроме того, такая система создает переменчивое текучее пространство, где отношения между разными помещениями – и дворами – принимают разный характер в зависимости от положения наблюдателя. Кроме того, отсутствие заданного маршрута осмотра позволяет размыть границу между зрителем и произведением искусства: экспозиция «рассеяна», в представлении работы человеку нет ничего прямого или скучного, впечатление формируется постепенно, «извилисто» – в процессе переживания объекта искусства.
Художественная галерея Фань Цзэна. Фото: Yao li, Su Shengliang
Художественная галерея Фань Цзэна. Фото: Yao li, Su Shengliang
Художественная галерея Фань Цзэна. Фото: Yao li, Su Shengliang
Художественная галерея Фань Цзэна. Фото: Yao li, Su Shengliang
Художественная галерея Фань Цзэна. Фото: Yao li, Su Shengliang
Художественная галерея Фань Цзэна. Фото: Yao li, Su Shengliang
Художественная галерея Фань Цзэна. Фото: Yao li, Su Shengliang
Художественная галерея Фань Цзэна. Фото: Yao li, Su Shengliang
Художественная галерея Фань Цзэна. Фото: Yao li, Su Shengliang
Художественная галерея Фань Цзэна. Фото: Yao li, Su Shengliang
Художественная галерея Фань Цзэна. Фото: Yao li, Su Shengliang
Художественная галерея Фань Цзэна. Фото: Yao li, Su Shengliang
Художественная галерея Фань Цзэна. Фото: Yao li, Su Shengliang
Художественная галерея Фань Цзэна. Фото: Yao li, Su Shengliang
Художественная галерея Фань Цзэна. Фото: Yao li, Su Shengliang
Художественная галерея Фань Цзэна. Фото: Yao li, Su Shengliang
Художественная галерея Фань Цзэна. Фото: Yao li, Su Shengliang
Художественная галерея Фань Цзэна. Фото: Yao li, Su Shengliang
Художественная галерея Фань Цзэна. Фото: Yao li, Su Shengliang
Художественная галерея Фань Цзэна. Фото: Yao li, Su Shengliang
Художественная галерея Фань Цзэна. Фото: Yao li, Su Shengliang
Художественная галерея Фань Цзэна. Фото: Yao li, Su Shengliang
Художественная галерея Фань Цзэна. Фото: Yao li, Su Shengliang
Художественная галерея Фань Цзэна. Фото: Yao li, Su Shengliang
Художественная галерея Фань Цзэна. Фото: Yao li, Su Shengliang
Художественная галерея Фань Цзэна. Фото: Yao li, Su Shengliang
Художественная галерея Фань Цзэна. Фото: Yao li, Su Shengliang
Художественная галерея Фань Цзэна. Фото: Yao li, Su Shengliang
Художественная галерея Фань Цзэна. Фото: Yao li, Su Shengliang
Художественная галерея Фань Цзэна. Фото: Yao li, Su Shengliang
Художественная галерея Фань Цзэна © Original Design Studio
Художественная галерея Фань Цзэна © Original Design Studio
Художественная галерея Фань Цзэна © Original Design Studio
Художественная галерея Фань Цзэна © Original Design Studio
Художественная галерея Фань Цзэна © Original Design Studio
Художественная галерея Фань Цзэна © Original Design Studio
Художественная галерея Фань Цзэна © Original Design Studio
Художественная галерея Фань Цзэна © Original Design Studio
Художественная галерея Фань Цзэна © Original Design Studio
Художественная галерея Фань Цзэна © Original Design Studio
Художественная галерея Фань Цзэна © Original Design Studio
Художественная галерея Фань Цзэна © Original Design Studio
Художественная галерея Фань Цзэна © Original Design Studio
Художественная галерея Фань Цзэна © Original Design Studio
Художественная галерея Фань Цзэна © Original Design Studio
Художественная галерея Фань Цзэна © Original Design Studio
Художественная галерея Фань Цзэна © Original Design Studio
Художественная галерея Фань Цзэна © Original Design Studio
Художественная галерея Фань Цзэна © Original Design Studio
Художественная галерея Фань Цзэна © Original Design Studio
Художественная галерея Фань Цзэна © Original Design Studio
Художественная галерея Фань Цзэна © Original Design Studio
Художественная галерея Фань Цзэна © Original Design Studio
Художественная галерея Фань Цзэна © Original Design Studio
Художественная галерея Фань Цзэна © Original Design Studio
Художественная галерея Фань Цзэна © Original Design Studio