Размещено на портале Архи.ру (www.archi.ru)

16.04.2015

Белое за черным

Нина Фролова
Объект:
Павильон Австралии на Венецианской биеннале
Адрес:
Италия, None, Венеция.
Мастерская:
Denton Corker Marshall

Завершено строительство нового павильона Австралии на Венецианской биеннале – первого сооружения XXI века в саду Джардини.

Павильон Австралии на Венецианской биеннале. Фото: John Gollings. Предоставлено Australia Council for the Arts
Павильон Австралии на Венецианской биеннале. Фото: John Gollings. Предоставлено Australia Council for the Arts

Здание, спроектированное бюро Denton Corker Marshall, сменило условно временный павильон 1987 года по проекту Филипа Кокса (Philip Cox) и стало самым новым сооружением Джардини. До этого самым «молодым» там был павильон Южной Кореи (1995).
 
Павильон Австралии на Венецианской биеннале. Фото: John Gollings. Предоставлено Australia Council for the Arts
Павильон Австралии на Венецианской биеннале. Фото: John Gollings. Предоставлено Australia Council for the Arts

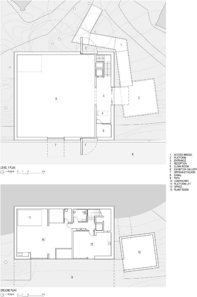
Австралийский павильон расположен на берегу пересекающего сад канала. К нему обращена консоль 2-го этажа, под которой проходит дорожка вдоль воды. Фасады из черного гранита можно по необходимости «раскрывать», откидывая панели как ставни – или малые консоли.
 
Павильон Австралии на Венецианской биеннале. Фото: John Gollings. Предоставлено Australia Council for the Arts
Павильон Австралии на Венецианской биеннале. Фото: John Gollings. Предоставлено Australia Council for the Arts

Внутри черной гранитной оболочки расположено белое, нейтральное выставочное пространство, где с 9 мая 2015 будет представлена национальная экспозиция Австралии на 56-й художественной биеннале: мультисенсорная инсталляция Wrong Way Time, созданная Фионой Холл (Fiona Hall).
Павильон Австралии на Венецианской биеннале. Фото: John Gollings. Предоставлено Australia Council for the Arts
Павильон Австралии на Венецианской биеннале. Фото: John Gollings. Предоставлено Australia Council for the Arts
Павильон Австралии на Венецианской биеннале. Фото: John Gollings. Предоставлено Australia Council for the Arts
Павильон Австралии на Венецианской биеннале. Фото: John Gollings. Предоставлено Australia Council for the Arts
Павильон Австралии на Венецианской биеннале. Фото: John Gollings. Предоставлено Australia Council for the Arts
Павильон Австралии на Венецианской биеннале. Фото: John Gollings. Предоставлено Australia Council for the Arts
Павильон Австралии на Венецианской биеннале. Фото: John Gollings. Предоставлено Australia Council for the Arts
Павильон Австралии на Венецианской биеннале. Фото: John Gollings. Предоставлено Australia Council for the Arts
Павильон Австралии на Венецианской биеннале. Фото: John Gollings. Предоставлено Australia Council for the Arts
Павильон Австралии на Венецианской биеннале. Фото: John Gollings. Предоставлено Australia Council for the Arts
Павильон Австралии на Венецианской биеннале. Фото: John Gollings. Предоставлено Australia Council for the Arts
Павильон Австралии на Венецианской биеннале. Фото: John Gollings. Предоставлено Australia Council for the Arts
Павильон Австралии на Венецианской биеннале. Фото: John Gollings. Предоставлено Australia Council for the Arts
Павильон Австралии на Венецианской биеннале. Фото: John Gollings. Предоставлено Australia Council for the Arts
Павильон Австралии на Венецианской биеннале. Предоставлено Denton Corker Marshall
Павильон Австралии на Венецианской биеннале. Предоставлено Denton Corker Marshall
Павильон Австралии на Венецианской биеннале. Предоставлено Denton Corker Marshall
Павильон Австралии на Венецианской биеннале. Предоставлено Denton Corker Marshall
Павильон Австралии на Венецианской биеннале. Предоставлено Denton Corker Marshall
Павильон Австралии на Венецианской биеннале. Предоставлено Denton Corker Marshall