Размещено на портале Архи.ру (www.archi.ru)

15.04.2015

Башня у залива

Нина Фролова
Объект:
Жилая башня Harumi I
Адрес:
Япония, None, Токио.

Ричард Майер завершил свой первый жилой дом в Японии – башню Harumi I в Токио.

Жилая башня Harumi I © Ishiguro Photographic Institute & Ishijima Photograph Office
Жилая башня Harumi I © Ishiguro Photographic Institute & Ishijima Photograph Office

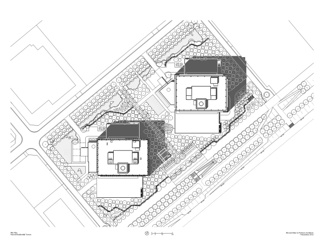
Расположенная на берегу Токийского залива 49-этажная башня составляют половину жилого комплекса: в апреле 2016 рядом будет сдана Harumi II такой же высоты – 170 метров. Однако, при общей схожести, башни все же слегка отличаются друг от друга, составляя полноценный ансамбль.
 
Жилая башня Harumi I © Ishiguro Photographic Institute & Ishijima Photograph Office
Жилая башня Harumi I © Ishiguro Photographic Institute & Ishijima Photograph Office

Они расположены в Харуми, намывной территории в центре Токио, округе Тюо. Однако до недавних пор географическая близость к «ядру» мегаполиса не конвертировалась в степень развития этого района. Но когда японская столица получила право на проведение Олимпиады-2020 – а Олимпийская деревня должна расположится поблизости – ситуация должна измениться. Из-за этих ожиданий башни Harumi сразу стали более популярными у покупателей, уверенных, что к Играм в Харуми появятся новые инфраструктура и разнообразные «точки притяжения».
 
Жилая башня Harumi I © Ishiguro Photographic Institute & Ishijima Photograph Office
Жилая башня Harumi I © Ishiguro Photographic Institute & Ishijima Photograph Office

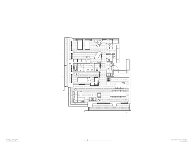
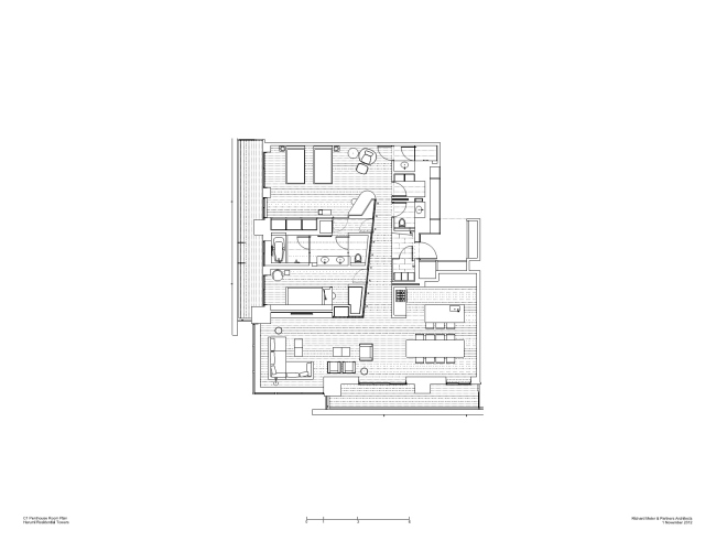
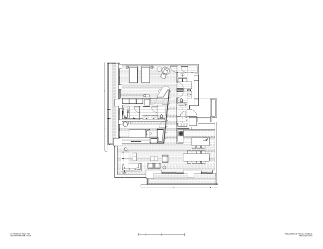
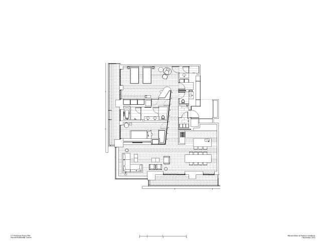
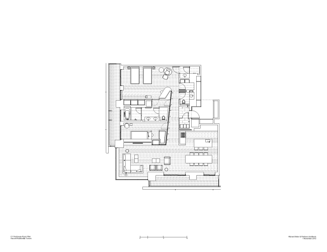
В новой башне – 883 квартиры, а также террасный сад, салон и кафе, помещения для проведения праздников, фитнес-центр, библиотека и гостевые комнаты.
Жилая башня Harumi I © Ishiguro Photographic Institute & Ishijima Photograph Office
Жилая башня Harumi I © Ishiguro Photographic Institute & Ishijima Photograph Office
Жилая башня Harumi I © Ishiguro Photographic Institute & Ishijima Photograph Office
Жилая башня Harumi I © Ishiguro Photographic Institute & Ishijima Photograph Office
Жилая башня Harumi I © Ishiguro Photographic Institute & Ishijima Photograph Office
Жилая башня Harumi I © Ishiguro Photographic Institute & Ishijima Photograph Office
Жилая башня Harumi I © Ishiguro Photographic Institute & Ishijima Photograph Office
Жилая башня Harumi I © Ishiguro Photographic Institute & Ishijima Photograph Office
Жилая башня Harumi I © Ishiguro Photographic Institute & Ishijima Photograph Office
Жилая башня Harumi I © Ishiguro Photographic Institute & Ishijima Photograph Office
Жилая башня Harumi I © Richard Meier & Partners Architects
Жилая башня Harumi I © Richard Meier & Partners Architects
Жилая башня Harumi I © Richard Meier & Partners Architects
Жилая башня Harumi I © Richard Meier & Partners Architects
Жилая башня Harumi I © Richard Meier & Partners Architects
Жилая башня Harumi I © Richard Meier & Partners Architects
Жилая башня Harumi I © Richard Meier & Partners Architects
Жилая башня Harumi I © Richard Meier & Partners Architects
Жилая башня Harumi I © Richard Meier & Partners Architects
Жилая башня Harumi I © Richard Meier & Partners Architects
Жилая башня Harumi I © Richard Meier & Partners Architects
Жилая башня Harumi I © Richard Meier & Partners Architects
Жилая башня Harumi I © Vize.com
Жилая башня Harumi I © Vize.com
Жилая башня Harumi I © Richard Meier & Partners Architects
Жилая башня Harumi I © Richard Meier & Partners Architects