Размещено на портале Архи.ру (www.archi.ru)

10.04.2015

Кирпичный изгиб

Нина Фролова
Объект:
Спорткомплекс Sports Block
Адрес:
Нидерланды, None, Гронинген.

Спорткомплекс в Гронингене по проекту архитектора Марлис Ромер вписался в масштаб тихой улочки.

Спорткомплекс Sports Block © Daria Scagliola
Спорткомплекс Sports Block © Daria Scagliola

Спортивные сооружения выбиваются из любого окружения из-за обусловленных их функцией «замкнутости» и значительных габаритов, а гронингенский спорткомплекс Sports Block к тому же расположен на улице с мелкомасштабной застройкой, которая особенно пострадала бы от подобного «вторжения».
 
Спорткомплекс Sports Block © Daria Scagliola
Спорткомплекс Sports Block © Daria Scagliola

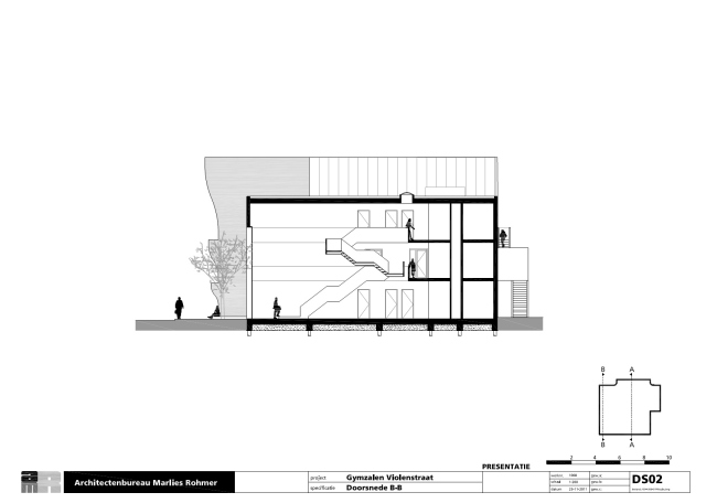
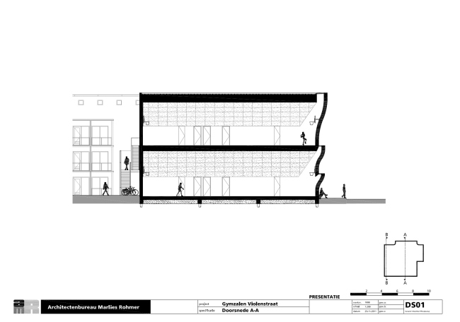
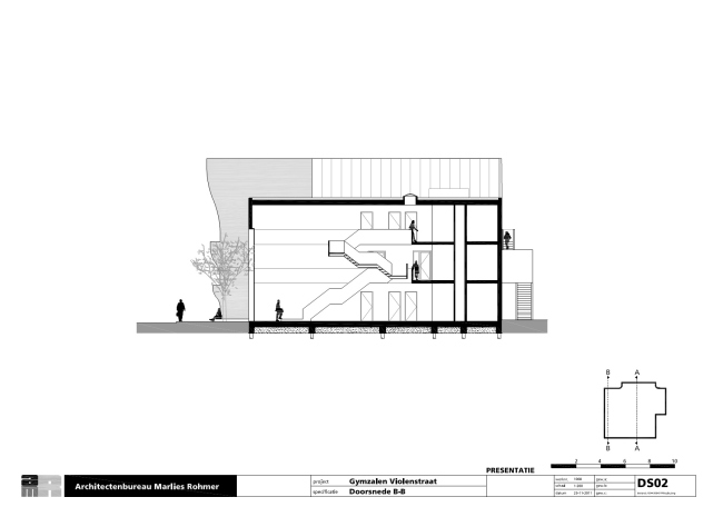
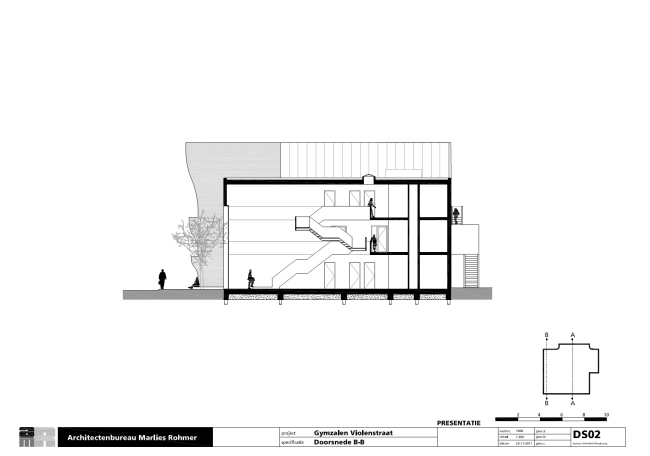
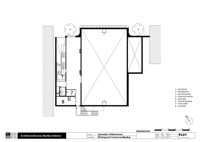
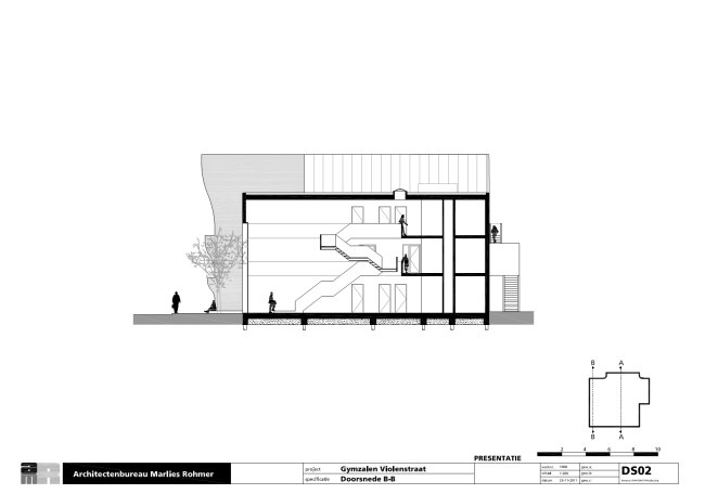
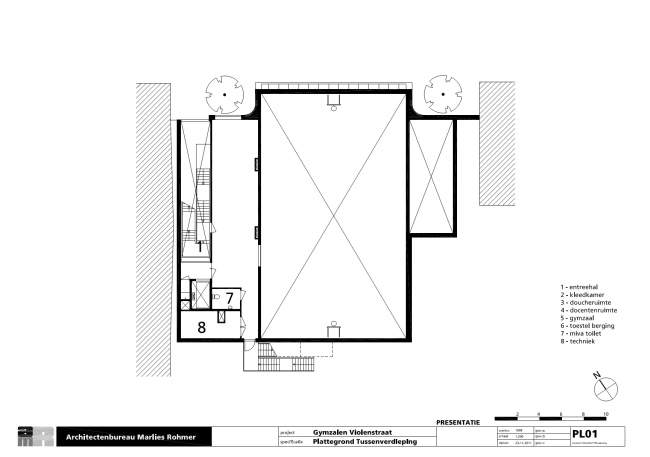
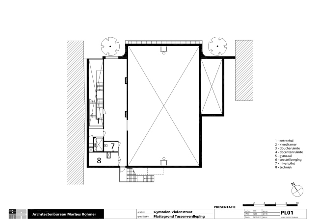
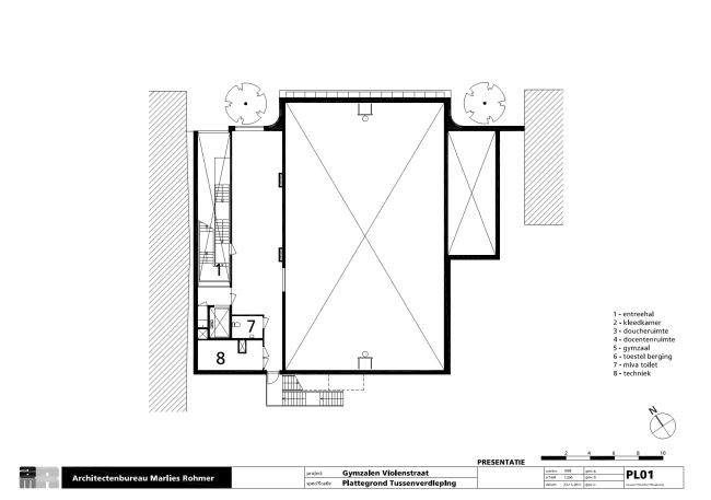
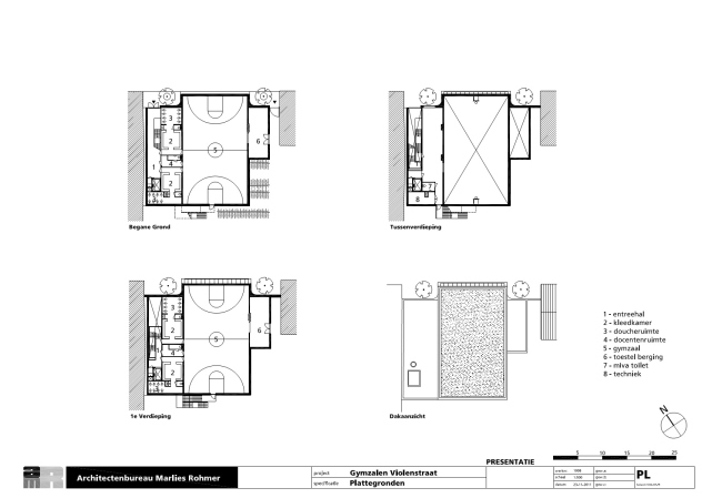
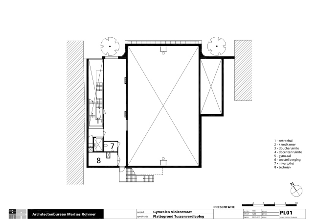
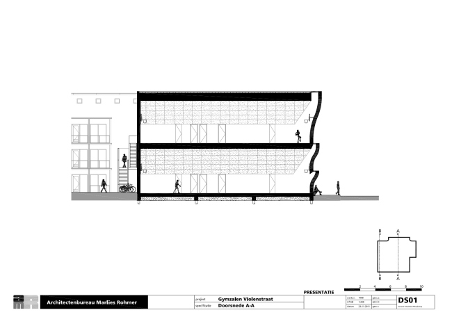
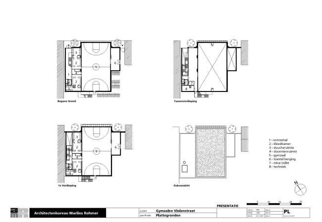
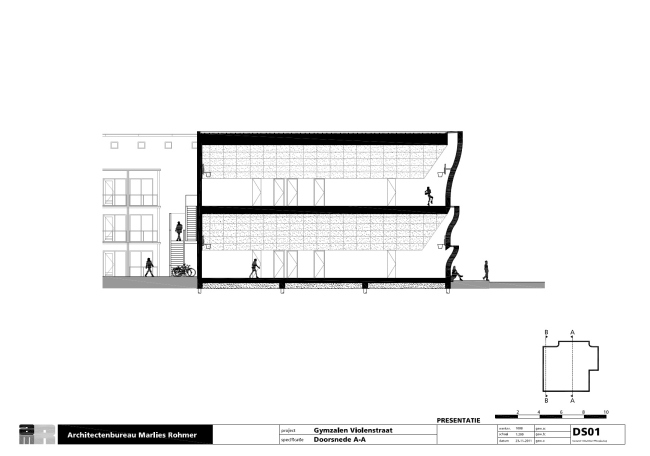
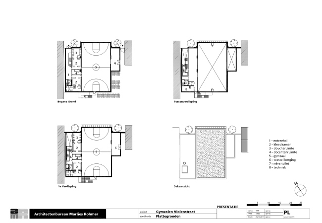
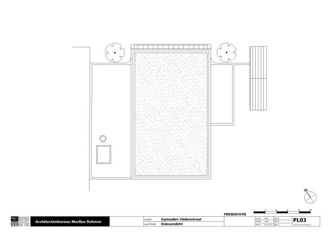
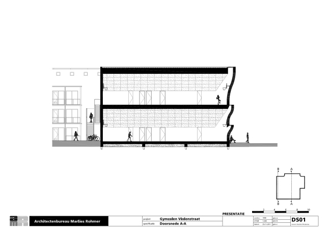
Поэтому архитекторы разместили два составлявших задание спортзала друг над другом. Это согласовало постройку по высоте с ее соседками, к тому же уменьшило пятно застройки. Освободившуюся площадь использовали для создания со стороны улицы по бокам от основного объема здания двух небольших «площадей» с деревом на каждой. Также для главного фасада был выбран «контекстуальный» материал – характерный для Гронингена красный кирпич. На уровне улицы спорткомплекс снабжен длинной скамьей – это дружеский жест по отношению к пешеходам.
 
Спорткомплекс Sports Block © Daria Scagliola
Спорткомплекс Sports Block © Daria Scagliola

Волнообразный фасад скрывает остекление, снабжающее непрямым солнечным светом спортзалы: там можно было бы обойтись и без солнца, но помещения без естественного освещения, считают архитекторы, вредны для биоритма.
Спорткомплекс Sports Block © Daria Scagliola
Спорткомплекс Sports Block © Daria Scagliola

Задний фасад спорткомплекса обшит алюминиевыми панелями разных тонов: выбранная гамма вторит колориту окружающих построек.
Спорткомплекс Sports Block © Daria Scagliola
Спорткомплекс Sports Block © Daria Scagliola
Спорткомплекс Sports Block © Daria Scagliola
Спорткомплекс Sports Block © Daria Scagliola
Спорткомплекс Sports Block © Daria Scagliola
Спорткомплекс Sports Block © Daria Scagliola
Спорткомплекс Sports Block © Daria Scagliola
Спорткомплекс Sports Block © Daria Scagliola
Спорткомплекс Sports Block © Daria Scagliola
Спорткомплекс Sports Block © Daria Scagliola
Спорткомплекс Sports Block © Daria Scagliola
Спорткомплекс Sports Block © Daria Scagliola
Спорткомплекс Sports Block © Daria Scagliola
Спорткомплекс Sports Block © Daria Scagliola
Спорткомплекс Sports Block © Architectenbureau Marlies Rohmer
Спорткомплекс Sports Block © Architectenbureau Marlies Rohmer
Спорткомплекс Sports Block © Architectenbureau Marlies Rohmer
Спорткомплекс Sports Block © Architectenbureau Marlies Rohmer
Спорткомплекс Sports Block © Architectenbureau Marlies Rohmer
Спорткомплекс Sports Block © Architectenbureau Marlies Rohmer
Спорткомплекс Sports Block © Architectenbureau Marlies Rohmer
Спорткомплекс Sports Block © Architectenbureau Marlies Rohmer
Спорткомплекс Sports Block © Architectenbureau Marlies Rohmer
Спорткомплекс Sports Block © Architectenbureau Marlies Rohmer
Спорткомплекс Sports Block © Architectenbureau Marlies Rohmer
Спорткомплекс Sports Block © Architectenbureau Marlies Rohmer
Спорткомплекс Sports Block © Architectenbureau Marlies Rohmer
Спорткомплекс Sports Block © Architectenbureau Marlies Rohmer
Спорткомплекс Sports Block © Architectenbureau Marlies Rohmer
Спорткомплекс Sports Block © Architectenbureau Marlies Rohmer
Спорткомплекс Sports Block © Architectenbureau Marlies Rohmer
Спорткомплекс Sports Block © Architectenbureau Marlies Rohmer
Спорткомплекс Sports Block © Architectenbureau Marlies Rohmer
Спорткомплекс Sports Block © Architectenbureau Marlies Rohmer