Размещено на портале Архи.ру (www.archi.ru)

09.04.2015

Отель из офисного здания

Тарья Нурми

Новая гостиница Hotel Indigo Helsinki Boulevard в центре финской столицы ждет постояльцев, а также их собак.

Hotel Indigo Helsinki Boulevard © Tuomas Uusheimo
Hotel Indigo Helsinki Boulevard © Tuomas Uusheimo

Улица Булеварди – одна из самых красивых и престижных в Хельсинки, и здесь, в доме №26 располагалась в свое время финская штаб-квартира British Petroleum. Но теперь этот дом превращен в бутик-отель Hotel Indigo Helsinki Boulevard международной сети IHG на 120 номеров: на верхнем этаже даже есть номера люкс (suites). Реконструкция была сделана очень элегантно, и интерьеры получились свежими и даже занимательными, не впадая при этом в банальность.
 
Hotel Indigo Helsinki Boulevard © Tuomas Uusheimo
Hotel Indigo Helsinki Boulevard © Tuomas Uusheimo

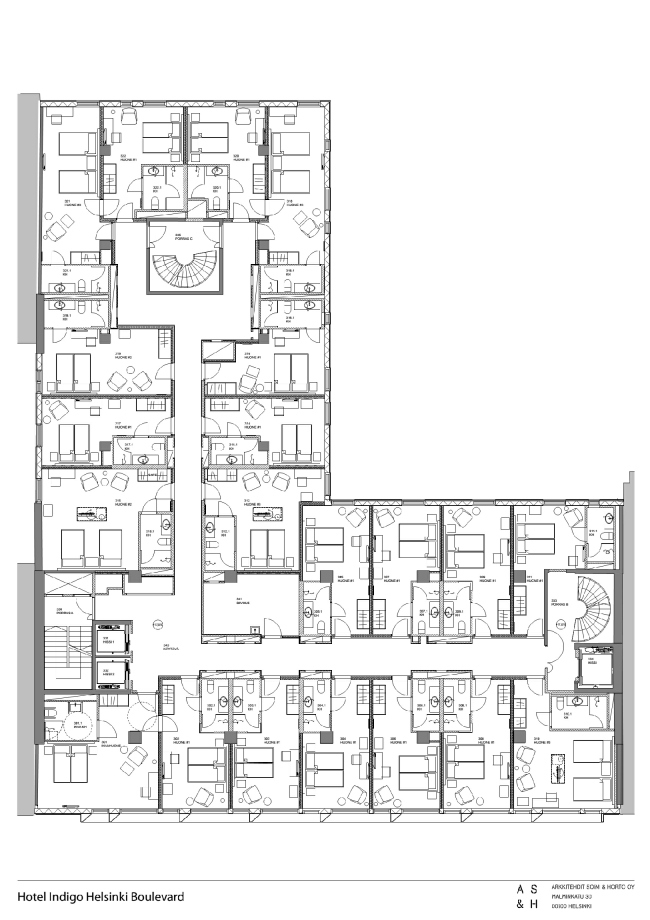
Проект выполнило бюро Soini & Horto: архитектором перестройки был Сами Хорто (Sami Horto), а за интерьеры отвечал архитектор Маркус Эскола (Markus Eskola). Общая площадь обновленного 8-этажного здания составила порядка 7700 м2.
 
Hotel Indigo Helsinki Boulevard © Tuomas Uusheimo
Hotel Indigo Helsinki Boulevard © Tuomas Uusheimo

Гостиничный вестибюль отделен от ресторана Bröd (в переводе со шведского – «хлеб»: в Финляндии два официальных языка – финский и шведский) легкими книжными полками небольшой библиотеки, где для постояльцев и посетителей расставлены хорошие книги, включая беллетристику.
 
Hotel Indigo Helsinki Boulevard © Tuomas Uusheimo
Hotel Indigo Helsinki Boulevard © Tuomas Uusheimo

Облик отеля – вполне скандинавский. Для номеров использованы три разные темы: первая вдохновлена улицей Булеварди, вторая – промышленной или портовой средой, а третья – посвящена парку, в данном случае – расположенному по соседству парку Синебрюкофф. Одна из стен в каждой комнате украшена «фреской» по эскизу художника Линды Линко (Linda Linko).
 
Hotel Indigo Helsinki Boulevard © Tuomas Uusheimo
Hotel Indigo Helsinki Boulevard © Tuomas Uusheimo

Номер, где я жила, располагался на пятом этаже. Для моей собаки принесли кроватку, полотенце с принтом в виде маленьких косточек, лакомство, а также миски для воды и еды, то есть сервис был безупречным. Важно отметить, что четвероногие постояльцы могут остановиться не во всех номерах и не на всех этажах, поэтому остальное пространство гостиницы подходит и для гостей с аллергией на животных.
 
Hotel Indigo Helsinki Boulevard. Courtesy Hotel Indigo ®  Helsinki – Boulevard
Hotel Indigo Helsinki Boulevard. Courtesy Hotel Indigo® Helsinki – Boulevard

Номера на пятом этаже окнами выходят или на Булеварди, или внутрь квартала. Кроме кровати и большого кресла с лампой для чтения в комнатах имеется стол с классическим стулом дизайнера Ильмари Тапиоваара и настоящей «рабочей» лампой – что прекрасно подходит для тех гостей, кто планирует поработать в своей комнате. Ванные комнаты, в основном, снабжены душем, а не ванной, которая была бы очень кстати в северном климате. На верхнем этаже отеля есть обычная и паровая сауны, спортзал, помещение для занятий йогой и небольшие конференц-залы.
 
Hotel Indigo Helsinki Boulevard. Courtesy Hotel Indigo ®  Helsinki – Boulevard
Hotel Indigo Helsinki Boulevard. Courtesy Hotel Indigo® Helsinki – Boulevard

Более «приватная» часть ресторана Bröd утром используется для завтрака постояльцев, днем же он превращается в доступный городской ресторан, где обедают работники окрестных офисов. Единственный недостаток: его боковые окна выходят на задний двор, где пока явно не хватает зелени.
 
Hotel Indigo Helsinki Boulevard. Courtesy Hotel Indigo ®  Helsinki – Boulevard
Hotel Indigo Helsinki Boulevard. Courtesy Hotel Indigo® Helsinki – Boulevard

Фасад Hotel Indigo Helsinki Boulevard пережил серьезную трансформацию. Сейчас он обшит металлом, причем его оформление было выполнено практически в одиночку 70-летним кузнецом Эско Киви (Esko Kivi). Это его произведение, а также он сам даже стали героями большой статьи в ведущей финской газете Helsingin Sanomat.
 
Hotel Indigo Helsinki Boulevard © Tuomas Uusheimo
Hotel Indigo Helsinki Boulevard © Tuomas Uusheimo

На первом этаже в здании отеля также располагается маленькая кулинария Soup & Juice, которая открывается ранним вечером.
Hotel Indigo Helsinki Boulevard © Tuomas Uusheimo
Hotel Indigo Helsinki Boulevard © Tuomas Uusheimo
Hotel Indigo Helsinki Boulevard. Courtesy Hotel Indigo ®  Helsinki – Boulevard
Hotel Indigo Helsinki Boulevard. Courtesy Hotel Indigo® Helsinki – Boulevard
Hotel Indigo Helsinki Boulevard. Courtesy Hotel Indigo ®  Helsinki – Boulevard
Hotel Indigo Helsinki Boulevard. Courtesy Hotel Indigo® Helsinki – Boulevard
Hotel Indigo Helsinki Boulevard © Tuomas Uusheimo
Hotel Indigo Helsinki Boulevard © Tuomas Uusheimo
Hotel Indigo Helsinki Boulevard © Tuomas Uusheimo
Hotel Indigo Helsinki Boulevard © Tuomas Uusheimo
Hotel Indigo Helsinki Boulevard © Tuomas Uusheimo
Hotel Indigo Helsinki Boulevard © Tuomas Uusheimo
Hotel Indigo Helsinki Boulevard © Tuomas Uusheimo
Hotel Indigo Helsinki Boulevard © Tuomas Uusheimo
Hotel Indigo Helsinki Boulevard. Courtesy Hotel Indigo ®  Helsinki – Boulevard
Hotel Indigo Helsinki Boulevard. Courtesy Hotel Indigo® Helsinki – Boulevard
Hotel Indigo Helsinki Boulevard © Arkkitehdit Soini & Horto Oy
Hotel Indigo Helsinki Boulevard © Arkkitehdit Soini & Horto Oy
Hotel Indigo Helsinki Boulevard © Tarja Nurmi
Hotel Indigo Helsinki Boulevard © Tarja Nurmi
Hotel Indigo Helsinki Boulevard © Tarja Nurmi
Hotel Indigo Helsinki Boulevard © Tarja Nurmi
Hotel Indigo Helsinki Boulevard © Tarja Nurmi
Hotel Indigo Helsinki Boulevard © Tarja Nurmi
Hotel Indigo Helsinki Boulevard © Tarja Nurmi
Hotel Indigo Helsinki Boulevard © Tarja Nurmi
Hotel Indigo Helsinki Boulevard © Tarja Nurmi
Hotel Indigo Helsinki Boulevard © Tarja Nurmi
Hotel Indigo Helsinki Boulevard © Tarja Nurmi
Hotel Indigo Helsinki Boulevard © Tarja Nurmi
Hotel Indigo Helsinki Boulevard © Tarja Nurmi
Hotel Indigo Helsinki Boulevard © Tarja Nurmi
Hotel Indigo Helsinki Boulevard © Tarja Nurmi
Hotel Indigo Helsinki Boulevard © Tarja Nurmi
Hotel Indigo Helsinki Boulevard © Tarja Nurmi
Hotel Indigo Helsinki Boulevard © Tarja Nurmi