Размещено на портале Архи.ру (www.archi.ru)

01.04.2015

Без излишеств

Ольга Назарова
Объект:
Королевский монастырь Санта-Каталина де Сиена
Адрес:
Испания, None, Патерна.
Мастерская:
Hernández Arquitectos

Монастырь Санта-Каталина де Сиена в провинции Валенсия по проекту Педро Эрнандеса Лопеса и Hernández Arquitectos.

Королевский монастырь Санта-Каталина де Сиена © German Cabo
Королевский монастырь Санта-Каталина де Сиена © German Cabo

Католическая церковь – институт хоть и древний, но обладающий колоссальными адаптивными механизмами, которые позволяют ему каждую эпоху сделать своей – своей во всех отношениях, в том числе и в отношении архитектуры. Современной католической архитектуре легко быть современной, не вступая в конфликт с традицией. И хотя Церковь уже много столетий назад перестала быть главными заказчиком и потребителем архитектуры, храмы и монастыри продолжают возводиться, и церковное строительство XX–XXI веков – это обширная и увлекательная глава в истории современного зодчества.
 
Королевский монастырь Санта-Каталина де Сиена © German Cabo
Королевский монастырь Санта-Каталина де Сиена © German Cabo

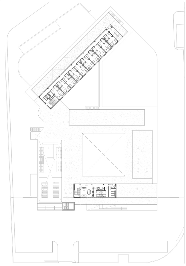
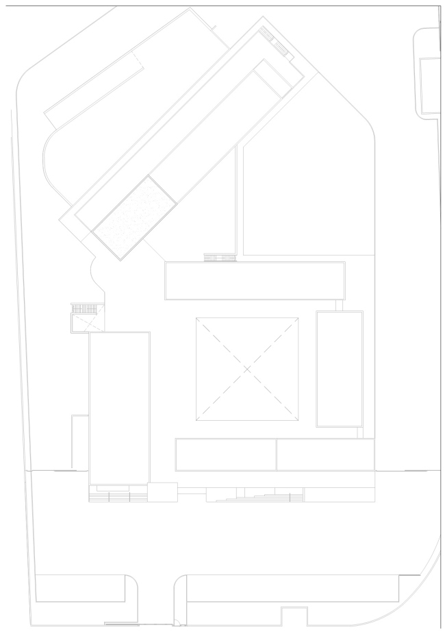
На первый взгляд, новый монастырь Св. Екатерины Сиенской в городе Патерна в провинции Валенсия, построенный взамен обветшавшей старой обители для доминиканских монахинь представляется вполне неомодернистской постройкой: минимализм, продуманная геометрия лаконичных объемов, обширные остекленные поверхности, асимметричное расположение проемов на фасадах, изысканное распределение световых потоков, использование бетона и других «новых» материалов. Минималистична – и оттого «современна» – даже ландшафтная композиция клуатра.
 
Королевский монастырь Санта-Каталина де Сиена © German Cabo
Королевский монастырь Санта-Каталина де Сиена © German Cabo

В то же время, в решении этого нового монастыря нет ничего нового или лишнего по сравнению с изначальной концепцией и практикой доминиканской архитектуры, сформировавшейся в XIII в., когда доминиканцы, сосредоточив в своих руках достаточно средств, развернули обширное строительство сначала в итальянских городах, а затем и в других землях.
 
Королевский монастырь Санта-Каталина де Сиена © German Cabo
Королевский монастырь Санта-Каталина де Сиена © German Cabo

Свою архитектурную концепцию доминиканцы, один из первых нищенствующих орденов, позаимствовали у аскетичных и ригористичных цистерцианцев. Главной чертой ее был радикальный минимализм, требующий отказа от любых излишеств (superflui), будь то неоправданное укрупнение размеров зданий, использование там, где можно обойтись без них, сводов, а также дорогостоящих напольных облицовок, витражей, роскошной литургической утвари и священнических одеяний и т.д. И хотя впоследствии каждый из этих принципов по отдельности неоднократно нарушался, общий дух пуризма старались сохранять.
 
Королевский монастырь Санта-Каталина де Сиена © German Cabo
Королевский монастырь Санта-Каталина де Сиена © German Cabo

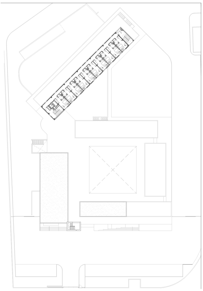
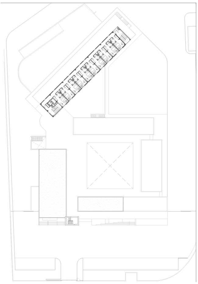
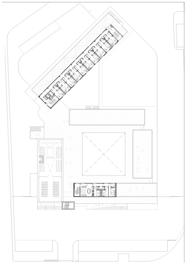
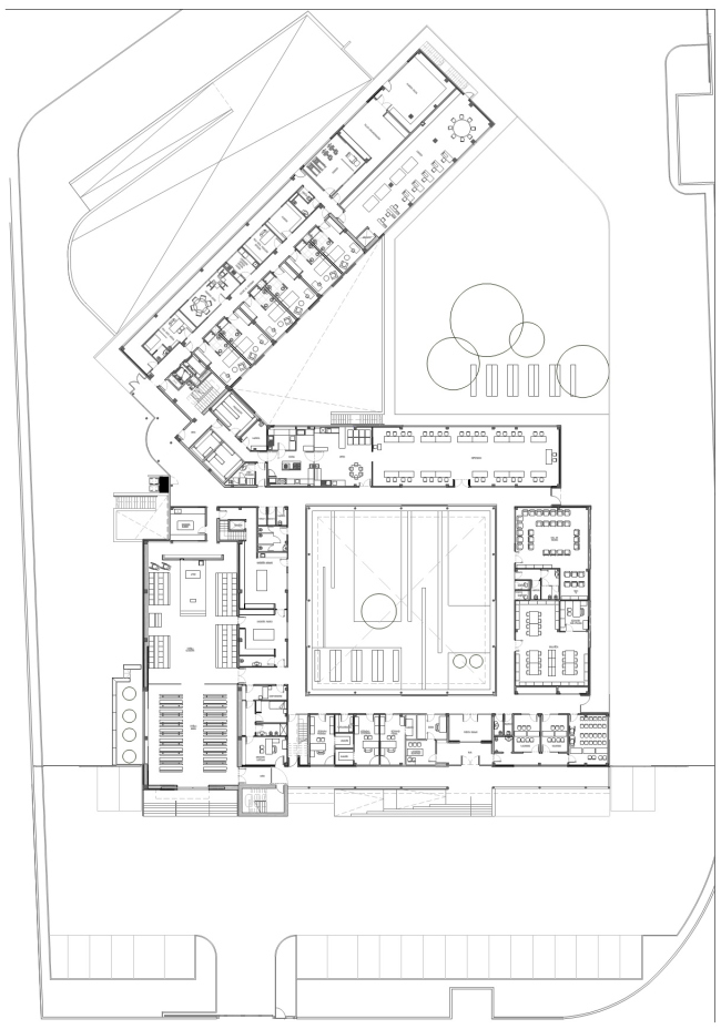
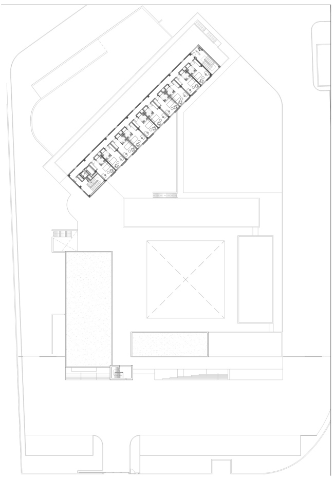
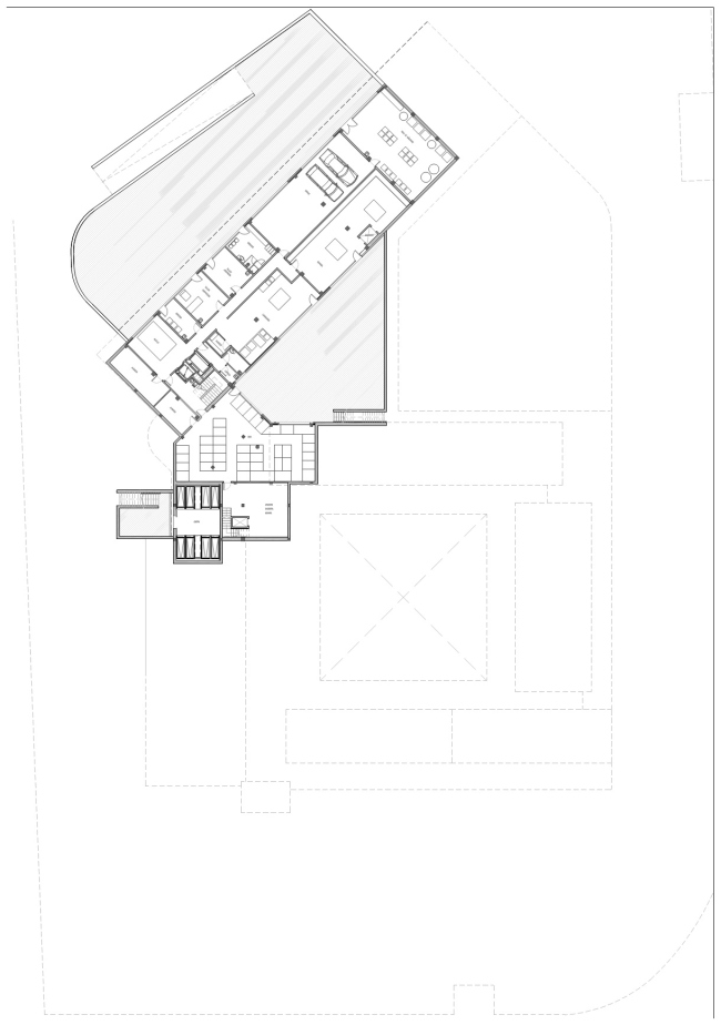
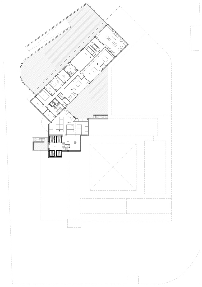
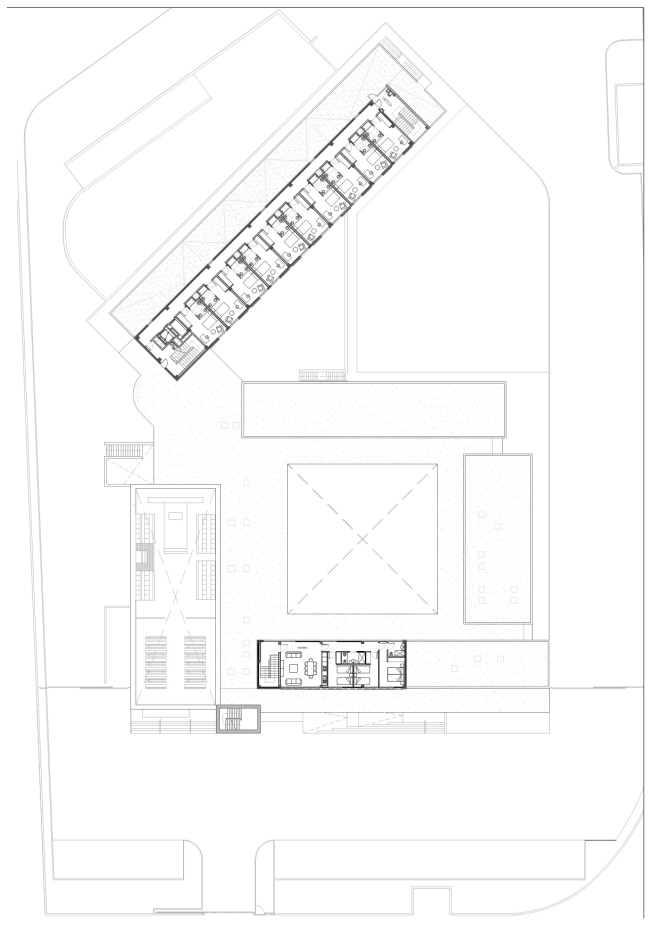
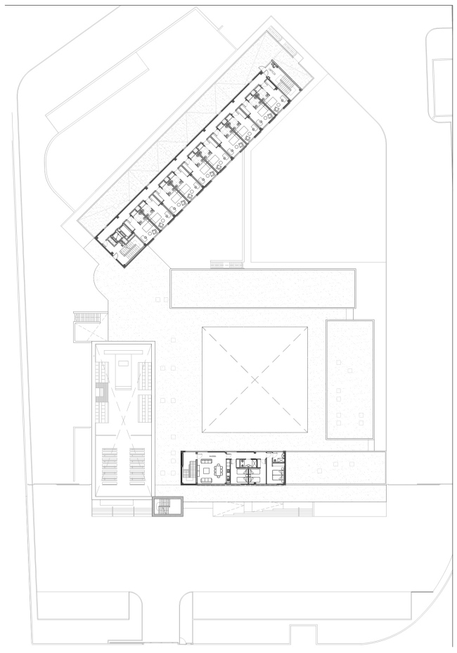
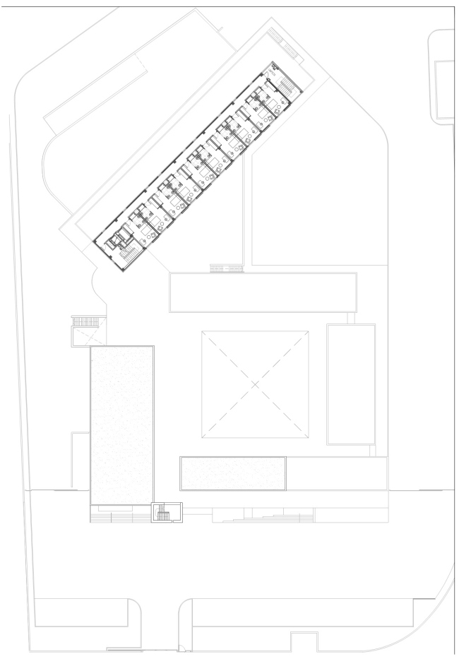
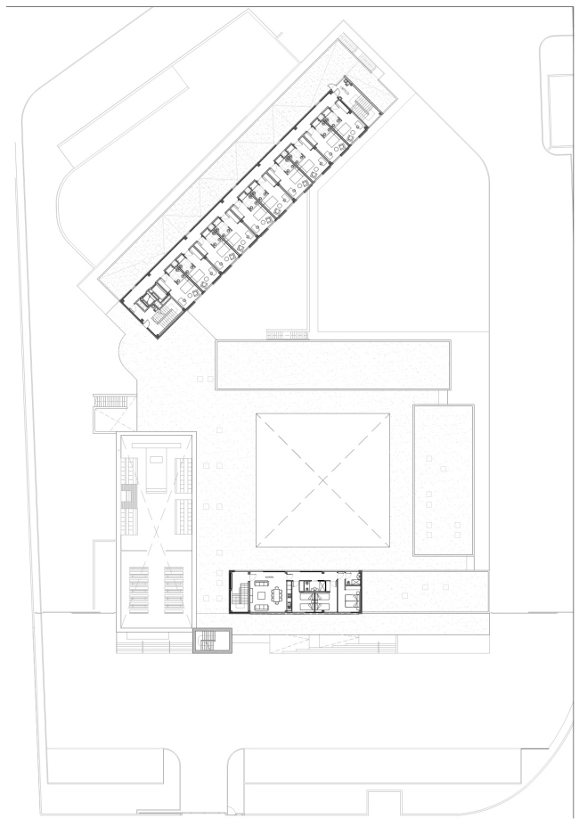
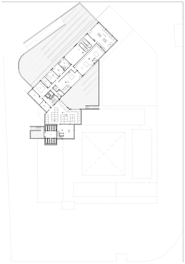
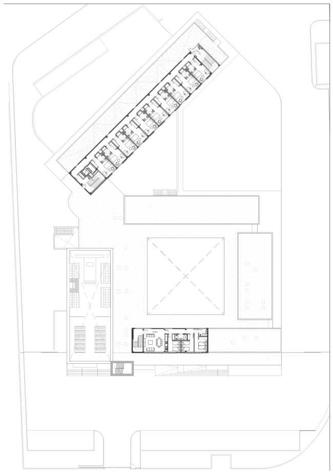
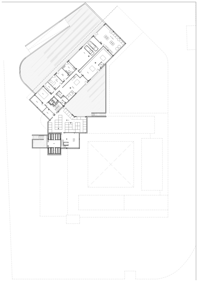
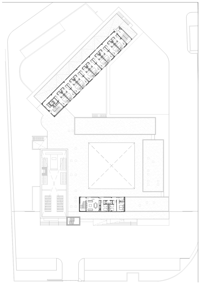
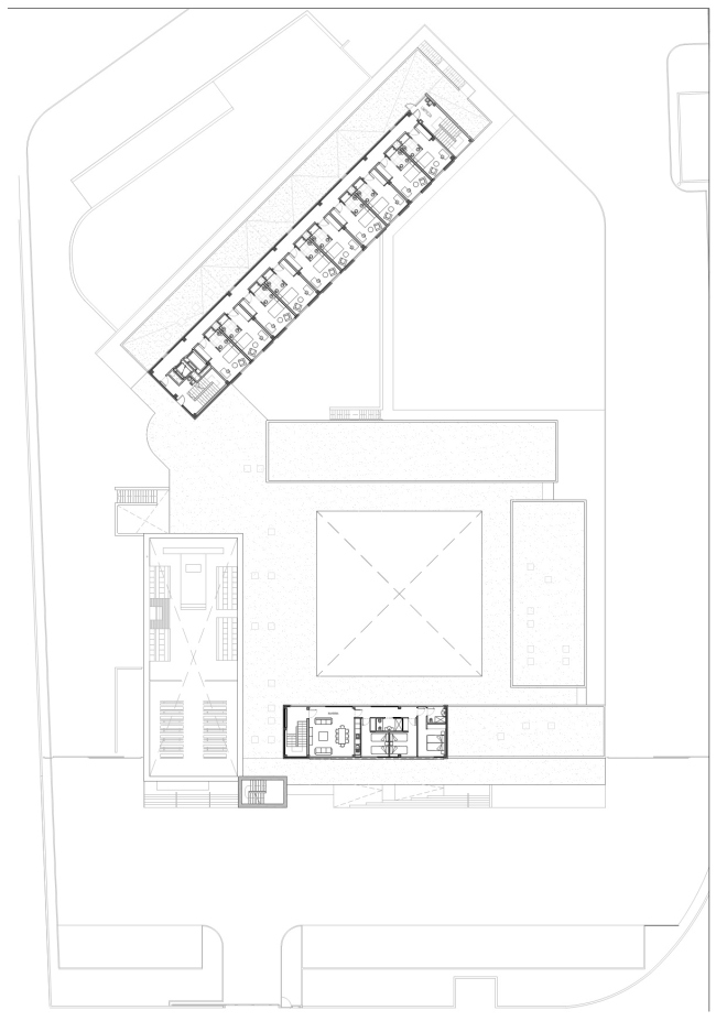
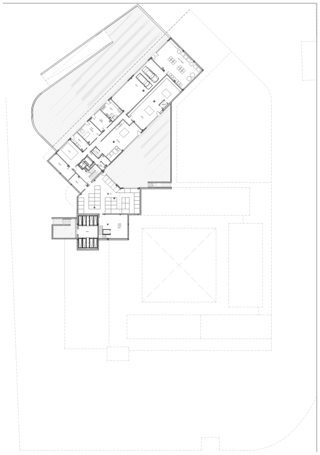
Ни этот дух, ни образ жизни доминиканского монашества за 800 лет радикальных изменений не претерпели. Поэтому в XXI веке структура монастырского плана осталась прежней: тот же набор помещений: т. н. дневные – церковь, окруженный административными помещениями клуатр, рефекторий (трапезная), библиотека, и ночные – то есть дормиторий, состоящий из индивидуальных келий. В XIII в. эти принципы воплощались в формах готики, и, как и тогда, в плане современного монастыря отсутствуют криволинейные очертания.
 
Королевский монастырь Санта-Каталина де Сиена © German Cabo
Королевский монастырь Санта-Каталина де Сиена © German Cabo

В условиях запрета на декор главным одухотворяющим началом архитектуры доминиканского ордена стал свет. В Валенсии прямоугольные разрезы окон в церкви заставляют его ложится ровными прямоугольниками на белоснежный потолок, пространство наполняется рефлексами, отраженными полированными мраморами полов и стеклянными поверхностями.
Королевский монастырь Санта-Каталина де Сиена © German Cabo
Королевский монастырь Санта-Каталина де Сиена © German Cabo

Избегнув историзма и цитирования, архитектор Педро Эрнандес Лопес и его бюро Hernández Arquitectos очень точно воссоздали исконный дух доминиканской архитектуры: пустоту и чистоту, в которой протекает созерцательная жизнь современных монахинь, эту жизнь без излишеств.
Королевский монастырь Санта-Каталина де Сиена © German Cabo
Королевский монастырь Санта-Каталина де Сиена © German Cabo
Королевский монастырь Санта-Каталина де Сиена © German Cabo
Королевский монастырь Санта-Каталина де Сиена © German Cabo
Королевский монастырь Санта-Каталина де Сиена © German Cabo
Королевский монастырь Санта-Каталина де Сиена © German Cabo
Королевский монастырь Санта-Каталина де Сиена © German Cabo
Королевский монастырь Санта-Каталина де Сиена © German Cabo
Королевский монастырь Санта-Каталина де Сиена © German Cabo
Королевский монастырь Санта-Каталина де Сиена © German Cabo
Королевский монастырь Санта-Каталина де Сиена © German Cabo
Королевский монастырь Санта-Каталина де Сиена © German Cabo
Королевский монастырь Санта-Каталина де Сиена © German Cabo
Королевский монастырь Санта-Каталина де Сиена © German Cabo
Королевский монастырь Санта-Каталина де Сиена © German Cabo
Королевский монастырь Санта-Каталина де Сиена © German Cabo
Королевский монастырь Санта-Каталина де Сиена © German Cabo
Королевский монастырь Санта-Каталина де Сиена © German Cabo
Королевский монастырь Санта-Каталина де Сиена © German Cabo
Королевский монастырь Санта-Каталина де Сиена © German Cabo
Королевский монастырь Санта-Каталина де Сиена © German Cabo
Королевский монастырь Санта-Каталина де Сиена © German Cabo
Королевский монастырь Санта-Каталина де Сиена © German Cabo
Королевский монастырь Санта-Каталина де Сиена © German Cabo
Королевский монастырь Санта-Каталина де Сиена © German Cabo
Королевский монастырь Санта-Каталина де Сиена © German Cabo
Королевский монастырь Санта-Каталина де Сиена © German Cabo
Королевский монастырь Санта-Каталина де Сиена © German Cabo
Королевский монастырь Санта-Каталина де Сиена © German Cabo
Королевский монастырь Санта-Каталина де Сиена © German Cabo
Королевский монастырь Санта-Каталина де Сиена © German Cabo
Королевский монастырь Санта-Каталина де Сиена © German Cabo
Королевский монастырь Санта-Каталина де Сиена © German Cabo
Королевский монастырь Санта-Каталина де Сиена © German Cabo
Королевский монастырь Санта-Каталина де Сиена © German Cabo
Королевский монастырь Санта-Каталина де Сиена © German Cabo
Королевский монастырь Санта-Каталина де Сиена © German Cabo
Королевский монастырь Санта-Каталина де Сиена © German Cabo
Королевский монастырь Санта-Каталина де Сиена © German Cabo
Королевский монастырь Санта-Каталина де Сиена © German Cabo
Королевский монастырь Санта-Каталина де Сиена © German Cabo
Королевский монастырь Санта-Каталина де Сиена © German Cabo
Королевский монастырь Санта-Каталина де Сиена © German Cabo
Королевский монастырь Санта-Каталина де Сиена © German Cabo
Королевский монастырь Санта-Каталина де Сиена © German Cabo
Королевский монастырь Санта-Каталина де Сиена © German Cabo
Королевский монастырь Санта-Каталина де Сиена © German Cabo
Королевский монастырь Санта-Каталина де Сиена © German Cabo
Королевский монастырь Санта-Каталина де Сиена © German Cabo
Королевский монастырь Санта-Каталина де Сиена © German Cabo
Королевский монастырь Санта-Каталина де Сиена © German Cabo
Королевский монастырь Санта-Каталина де Сиена © German Cabo
Королевский монастырь Санта-Каталина де Сиена © German Cabo
Королевский монастырь Санта-Каталина де Сиена © German Cabo
Королевский монастырь Санта-Каталина де Сиена © German Cabo
Королевский монастырь Санта-Каталина де Сиена © German Cabo
Королевский монастырь Санта-Каталина де Сиена © German Cabo
Королевский монастырь Санта-Каталина де Сиена © German Cabo
Королевский монастырь Санта-Каталина де Сиена © German Cabo
Королевский монастырь Санта-Каталина де Сиена © German Cabo
Королевский монастырь Санта-Каталина де Сиена © German Cabo
Королевский монастырь Санта-Каталина де Сиена © German Cabo
Королевский монастырь Санта-Каталина де Сиена © German Cabo
Королевский монастырь Санта-Каталина де Сиена © German Cabo
Королевский монастырь Санта-Каталина де Сиена © German Cabo
Королевский монастырь Санта-Каталина де Сиена © German Cabo
Королевский монастырь Санта-Каталина де Сиена © German Cabo
Королевский монастырь Санта-Каталина де Сиена © German Cabo
Королевский монастырь Санта-Каталина де Сиена © Hernández Arquitectos
Королевский монастырь Санта-Каталина де Сиена © Hernández Arquitectos
Королевский монастырь Санта-Каталина де Сиена © Hernández Arquitectos
Королевский монастырь Санта-Каталина де Сиена © Hernández Arquitectos
Королевский монастырь Санта-Каталина де Сиена © Hernández Arquitectos
Королевский монастырь Санта-Каталина де Сиена © Hernández Arquitectos
Королевский монастырь Санта-Каталина де Сиена © Hernández Arquitectos
Королевский монастырь Санта-Каталина де Сиена © Hernández Arquitectos
Королевский монастырь Санта-Каталина де Сиена © Hernández Arquitectos
Королевский монастырь Санта-Каталина де Сиена © Hernández Arquitectos
Королевский монастырь Санта-Каталина де Сиена © Hernández Arquitectos
Королевский монастырь Санта-Каталина де Сиена © Hernández Arquitectos
Королевский монастырь Санта-Каталина де Сиена © Hernández Arquitectos
Королевский монастырь Санта-Каталина де Сиена © Hernández Arquitectos
Королевский монастырь Санта-Каталина де Сиена © Hernández Arquitectos
Королевский монастырь Санта-Каталина де Сиена © Hernández Arquitectos
Королевский монастырь Санта-Каталина де Сиена © Hernández Arquitectos
Королевский монастырь Санта-Каталина де Сиена © Hernández Arquitectos