|  
            Лауреаты премии фестиваля «Под крышей дома». 
           26 марта в «Доме на Брестской» состоялась шестнадцатая ежегодная церемония награждения победителей фестиваля архитектуры и дизайна интерьера «Под крышей дома». В этом году 163 интерьера, представленных на смотр-конкурс оценивали в восьми номинациях главный редактор журнала «Проект Россия» Анатолий Белов, архитектор и преподаватель МАрхИ Юлий Борисов, директор Музея архитектуры Ирина Коробьина, заместитель директора архитектурной школы МАРШ Никита Токарев. Куратором фестиваля стал художник Сергей Яралов.
  Награды удостоились как известные московские бюро: Arch group, Архитектурная мастерская Тотана Кузембаева, мастерская Владимира Биндемана «Архитектуриум», так и молодые архитекторы – в частности, бюро «М-17» стало призером сразу в трех номинациях. Гран-при достался Сергею Наседкину за индивидуальный жилой дом «T_9 house». Победители, помимо прочих наград, получили возможность стать членами Союза архитекторов Москвы. Публикуем проекты победителей.
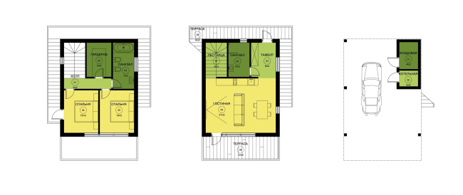
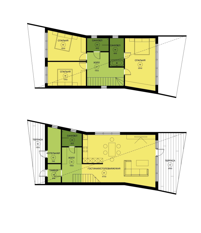
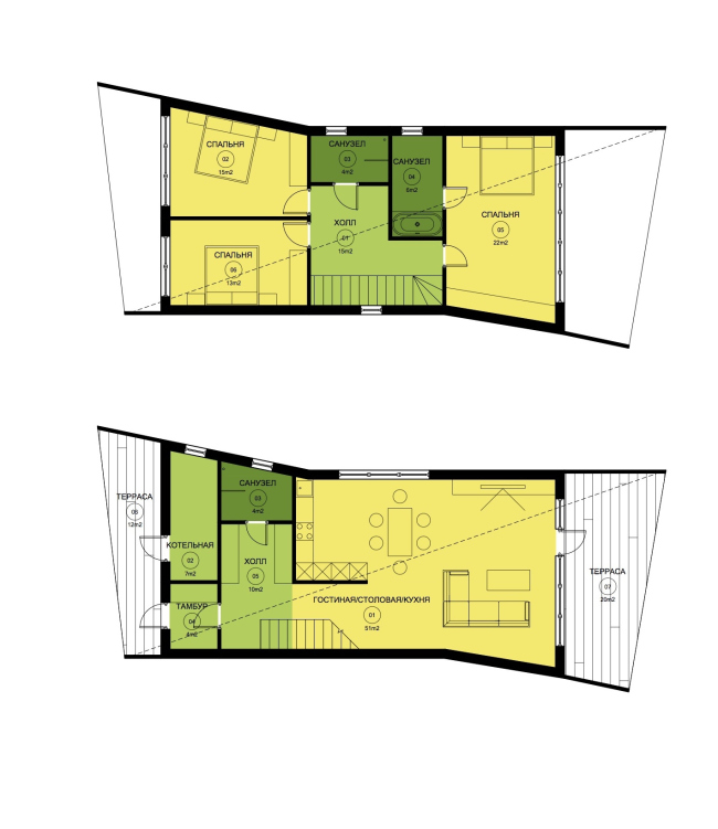
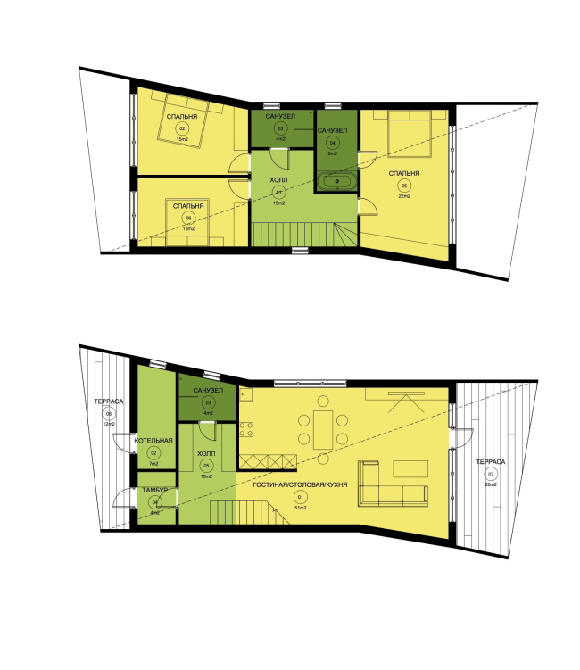
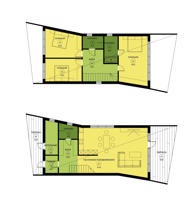
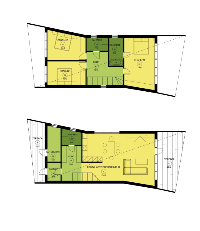
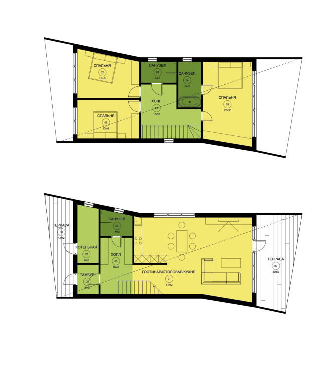
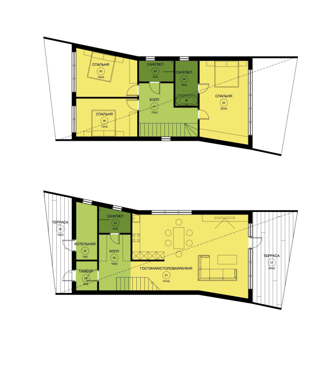
  Гран-При В номинации «Реализованный загородный жилой дом» T_9 house. Автор: Сергей Насеткин. Архитектурное бюро ARCH.625
   t_9 house © Архитектурное бюро arch-625
t_9 house © Архитектурное бюро arch-625
  Номинация «Реализованный жилой интерьер»
  I место: Частная квартира в Казарменном переулке. Авторы: Александр Волков, Катерина Виноградова. Бюро «М17»
 Частная квартира в Казарменном переулке © Бюро «М17»
Частная квартира в Казарменном переулке © Бюро «М17»
Частная квартира в Казарменном переулке © Бюро «М17»
  II место: «Высотка». Авторы: Мария Ватолина, Евгения Веревкина, Татьяна Полторацкая. Мастерская интерьера Марии Ватолиной
 «Высотка» © Мастерская интерьера Марии Ватолиной
«Высотка» © Мастерская интерьера Марии Ватолиной
«Высотка» © Мастерская интерьера Марии Ватолиной
«Высотка» © Мастерская интерьера Марии Ватолиной
  III место: Интерьер квартиры на Фрунзенской набережной. Авторы: Сергей Гикало, Александр Купцов, Антон Федулов. Мастерская «ГИКАЛО КУПЦОВ АРХИТЕКТОРЫ»
 Интерьер квартиры на
Фрунзенской набережной © ГИКАЛО КУПЦОВ АРХИТЕКТОРЫ
Интерьер квартиры на
Фрунзенской набережной © ГИКАЛО КУПЦОВ АРХИТЕКТОРЫ
  Номинация «Общественный интерьер»
  I место: «Лёд и пламя» Московский дизайн центр. Авторы: Алексей Козырь, Илья Бабак. Архитектурная мастерская Алексея Козыря
 «Лёд и пламя» Московский дизайн центр © Архитектурная мастерская Алексея Козыря
«Лёд и пламя» Московский дизайн центр © Архитектурная мастерская Алексея Козыря
«Лёд и пламя» Московский дизайн центр © Архитектурная мастерская Алексея Козыря
«Лёд и пламя» Московский дизайн центр © Архитектурная мастерская Алексея Козыря
  PUBLICIS GROUPE. Транснациональный рекламно-коммуникационный холдинг. Авторы: Борис Воскобойников, Мария Ахременкова. Студия «VOX Architects»
 PUBLICIS GROUPE © Студия «VOX Architects»
PUBLICIS GROUPE © Студия «VOX Architects»
  II место: Офис «V confession agency». Авторы: Александр Волков, Катерина Виноградова. Бюро «М17»
 Офис «V confession agency» © Бюро «М17»      
Офис «V confession agency» © Бюро «М17» 
Офис «V confession agency» © Бюро «М17» 
Офис «V confession agency» © Бюро «М17» 
  III место: Штаб-квартира компании «Яндекс» на ул. Льва Толстого. Авторы: Антон Надточий, Вера Бутко, Татьяна Матвиенко, Николай Филатов, Петр Алимов, Юлия Раннева, Александр Малыгин. Архитектурная мастерская «Атриум»
 Штаб-квартира компании «Яндекс» на ул. Льва Толстого © Архитектурная мастерская «Атриум»
Штаб-квартира компании «Яндекс» на ул. Льва Толстого © Архитектурная мастерская «Атриум»
Штаб-квартира компании «Яндекс» на ул. Льва Толстого © Архитектурная мастерская «Атриум»
Штаб-квартира компании «Яндекс» на ул. Льва Толстого © Архитектурная мастерская «Атриум»
  Номинация «Декорирование»
  I место: «Silence». Автор: Елена Горенштейн. Мастерская Елены Горенштейн
 «Silence» © Мастерская Елены Горенштейн
«Silence» © Мастерская Елены Горенштейн
  II место: Ресторан «Florentini». Авторы: Роман Леонидов, Сергей Можейко, Елена Волгина, Вадим Сударев. Архитектурное бюро «Шаболовка»
 Ресторан «Florentini» © Архитектурное бюро «Шаболовка»
  III место: Офис торговой компании «Проект 2015» – алкогольные напитки. Автор: Кира Чувелёва. Дизайн-бюро Киры Чувелёвой
 Офис торговой компании «Проект 2015» © Дизайн-бюро
Киры Чувелёвой
Офис торговой компании «Проект 2015» © Дизайн-бюро
Киры Чувелёвой
Офис торговой компании «Проект 2015» © Дизайн-бюро
Киры Чувелёвой
Офис торговой компании «Проект 2015» © Дизайн-бюро
Киры Чувелёвой
 
  Номинация «Детали»
  I место: Приёмная МГПМ. Авторы: Тотан Кузембаев, Олжас Кузембаев. Архитектурная мастерская Тотана Кузембаева
 Приёмная МГПМ © Архитектурная мастерская Тотана Кузембаева
Приёмная МГПМ © Архитектурная мастерская Тотана Кузембаева
Приёмная МГПМ © Архитектурная мастерская Тотана Кузембаева
Приёмная МГПМ © Архитектурная мастерская Тотана Кузембаева
  II место: Японская головоломка. Дизайн кухни для проекта «Квартирный вопрос». Авторы: Михаил Крымов, Алексей Горяинов. Архитектурное бюро Arch group
 Дизайн кухни для проекта «Квартирный вопрос» © Arch group
Дизайн кухни для проекта «Квартирный вопрос» © Arch group
  III место: Информационный зал ОАО «РОСНАНО». Авторы: Тимур Башкаев, Алексей Горяинов, Надежда Акаёмова. Архитектурное бюро Тимура Башкаева
 Информационный зал ОАО «РОСНАНО» © Архитектурное бюро Тимура Башкаева
Информационный зал ОАО «РОСНАНО» © Архитектурное бюро Тимура Башкаева
Информационный зал ОАО «РОСНАНО» © Архитектурное бюро Тимура Башкаева
Информационный зал ОАО «РОСНАНО» © Архитектурное бюро Тимура Башкаева
  Номинация «Предмет в интерьере»
  Частная квартира в Казарменном переулке. Авторы: Александр Волков, Катерина Виноградова. Бюро «М17»
 Частная квартира в Казарменном переулке © Бюро «М17»
  Офис «V confession agency». Авторы: Александр Волков, Катерина Виноградова. Бюро «М17»
 Офис «V confession agency» © Бюро «М17»
  Номинация «Реализованный загородный жилой дом»
  I место: «Дом на горе». Авторы: Вадим Греков, Денис Дорохин, Виктор Ситниченко. Арт-группа «Камень»
 Дом на горе © Арт-группа «Камень»
Дом на горе © Арт-группа «Камень»
Дом на горе © Арт-группа «Камень»
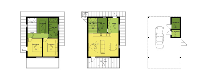
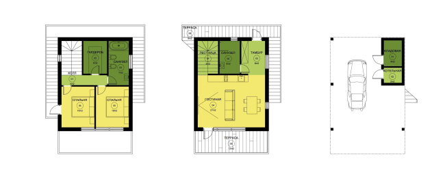
  II место: «Deco Patern House». Автор: Пётр Костёлов
 Deco Patern House © Пётр Костёлов
  Дом «Свитчер». Авторы: Алексей Розенберг, Пётр Костёлов
 Дом «Свитчер» © Алексей Розенберг, Пётр Костёлов
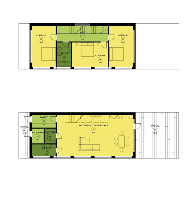
  III место: Жилой павильон в Одинцовском районе Подмосковья. Автор: Дмитрий Овчаров. Студия «Nefa Architects»
 Жилой павильон в Одинцовском районе © Студия «Nefa Architects» 
Жилой павильон в Одинцовском районе © Студия «Nefa Architects»
Жилой павильон в Одинцовском районе © Студия «Nefa Architects»
  «Х-house». Авторы: В. Пастушенко, В. Самогоров, О. Рыбачева. Архитектурное бюро Пастушенко и Самогорова
 Х-house © Архитектурное бюро Пастушенко и Самогорова
  Номинация «Проект-идея загородного дома»
  II место: «Дом-улей», «Дом-бабочка», «Дом под навесом». Авторы: Тотан Кузембаев, Олжас Кузембаев. Архитектурная мастерская Тотана Кузембаева для компании «НЛК Домостроение»
 Дом-улей © Архитектурная мастерская Тотана Кузембаева
Дом-улей © Архитектурная мастерская Тотана Кузембаева
Дом-бабочка © Архитектурная мастерская Тотана Кузембаева
Дом-бабочка © Архитектурная мастерская Тотана Кузембаева
Дом под навесом © Архитектурная мастерская Тотана Кузембаева
Дом под навесом © Архитектурная мастерская Тотана Кузембаева
  III место: «Летний дом». Авторы: Александр Качалов, Сергей Фомин. Творческое объединение «ПЛАН_Б»
 Летний дом © Творческое объединение «ПЛАН_Б»
  Номинация «Коттеджные посёлки»
  I место: Коттеджный поселок KAZIMIROVO. Автор: Эрик Валеев. Бюро IQ_studio
 Коттеджный поселок KAZIMIROVO © IQ-studio
Коттеджный поселок KAZIMIROVO © IQ-studio
Коттеджный поселок KAZIMIROVO © IQ-studio
  II место: Поселок «Royal Park» в г.Сочи. Автор: Александр Черняков. Бюро A.Cherniakov architect
 Поселок «Royal Park» © A.Cherniakov architect
  III место: Малоэтажная блокированная жилая застройка в жилищно-спортивном комплексе «Олимпийская деревня Новогорск». Мастерская Владимира Биндемана «Архитектуриум»
 Жилая застройка в жилищно-спортивном комплексе «Олимпийская деревня Новогорск» © Архитектуриум
 
 
 
 
 
 
 
   
           |