Размещено на портале Архи.ру (www.archi.ru)

31.03.2015

Позитив в абсолюте

Анна Старостина
Объект:
Гостиница magdas Hotel
Адрес:
Австрия, None, Вена.
Мастерская:
AllesWirdGut

Бюро AllesWirdGut и благотворительная организация Caritas завершили реконструкцию отеля в центре Вены. Кроме гостей города в нем будут жить и работать беженцы.

Гостиница magdas Hotel © AllesWirdGut Architektur/ Guilherme Silva Da Rosa
Гостиница magdas Hotel © AllesWirdGut Architektur/ Guilherme Silva Da Rosa

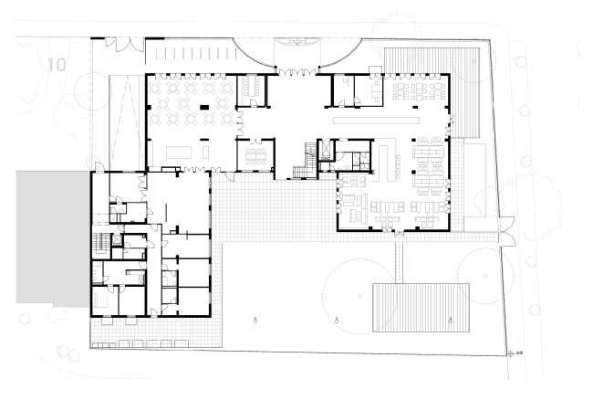
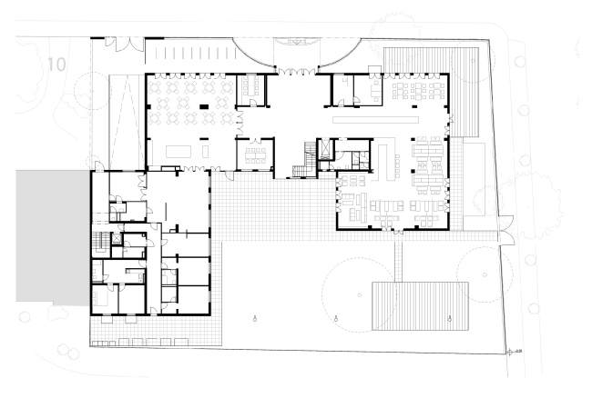
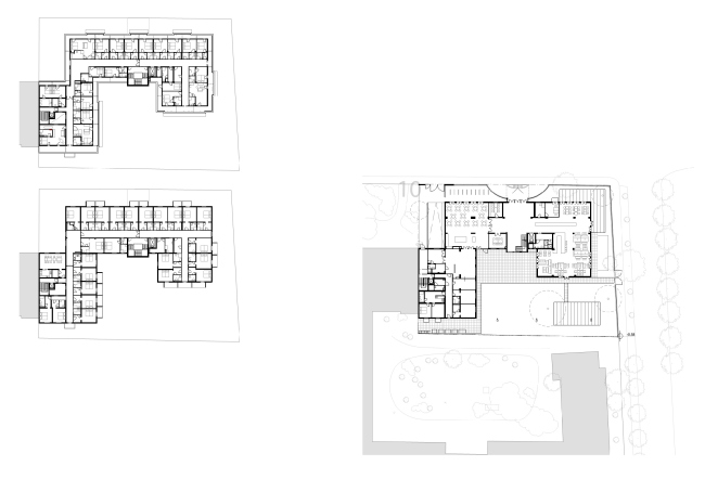
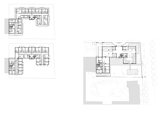
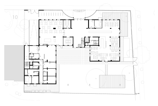
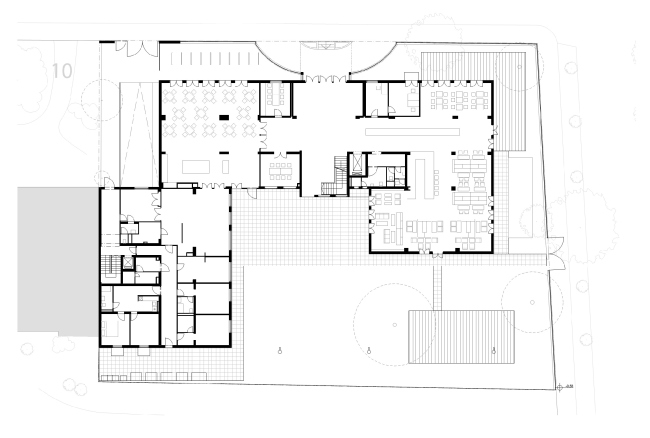
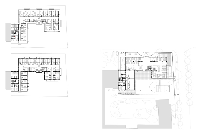
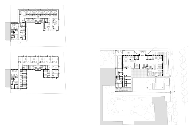
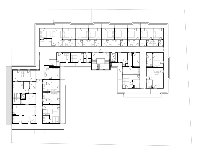
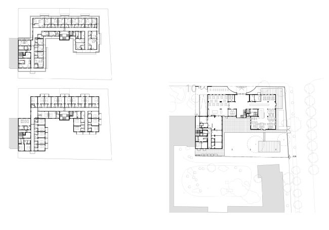
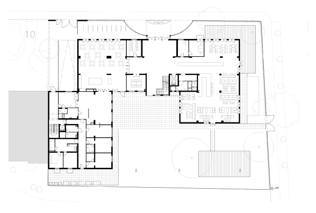
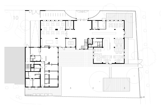
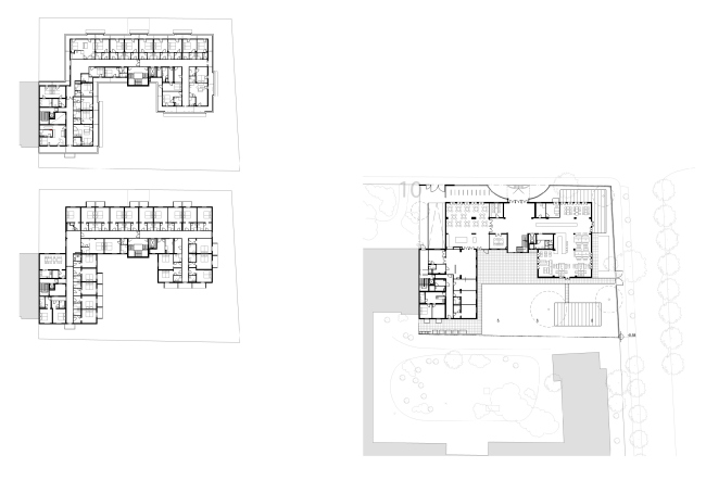
Новый magdas Hotel расположен в престижном районе Пратер, недалеко от знаменитого парка. Он занимает здание дома престарелых 1960-х годов постройки. Деньги на реконструкцию собирали с помощью католической благотворительной организации Caritas и краудфандинга. Для реализации проекта хватило всего 1,5 млн евро, при этом его уровень вполне соответствует представлениям о хорошей современной гостинице. Но все-таки это не совсем обычный отель.
 
Гостиница magdas Hotel © AllesWirdGut Architektur/ Guilherme Silva Da Rosa
Гостиница magdas Hotel © AllesWirdGut Architektur/ Guilherme Silva Da Rosa

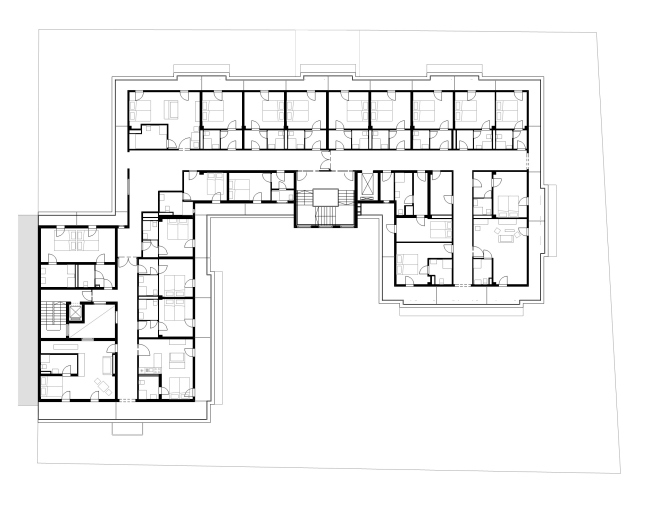
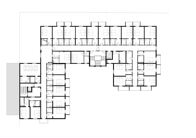
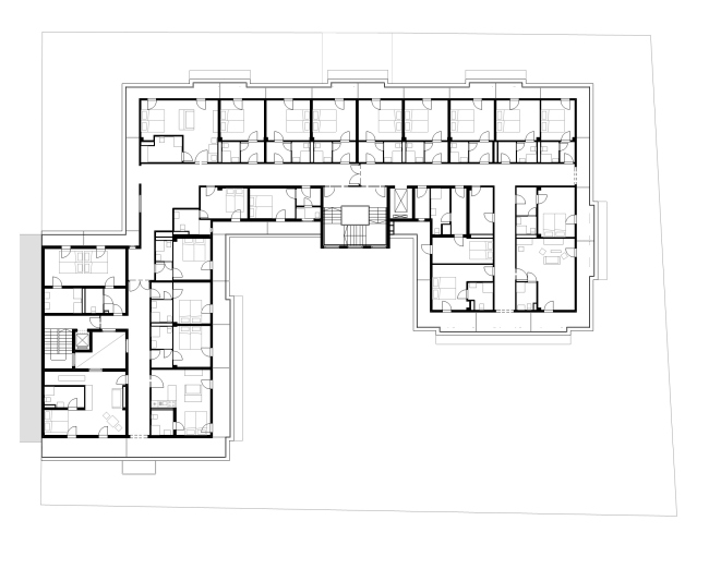
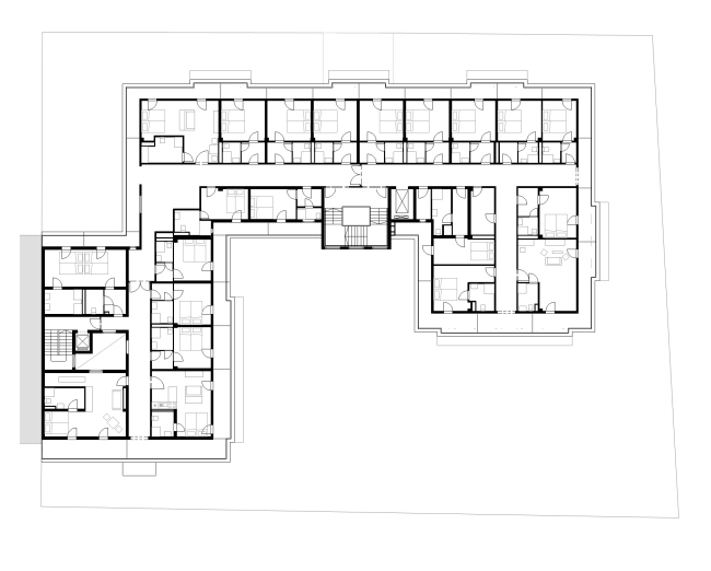
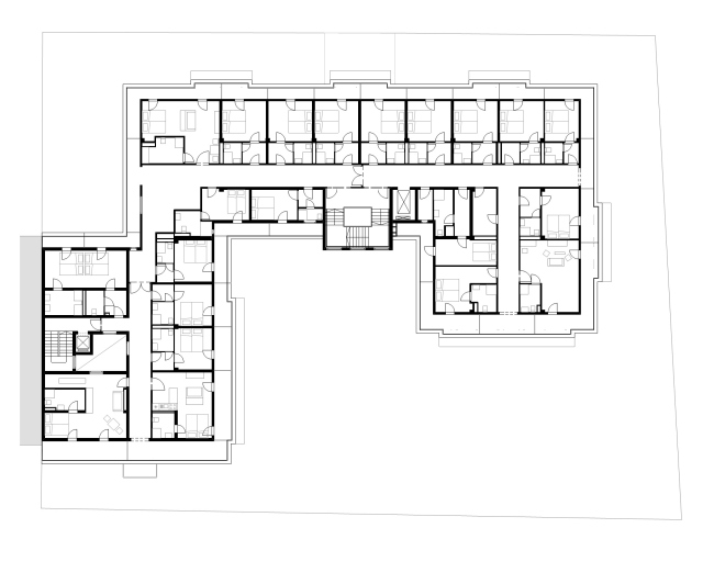
Площадь здания 6460 м2. Кроме 78 номеров с прекрасным видом на парк Пратер, здесь имеются два жилых блока, в которых поселятся 25 молодых беженцев из разных стран мира. Большинство из них станут сотрудниками отеля, а до того они принимали непосредственное участие в его строительстве. Расположенный на нижнем этаже холл с баром и рестораном становится таким образом большой гостиной, местом тесного пересечения постоянных жителей «дома» и его гостей.

Гостиница magdas Hotel © AllesWirdGut Architektur/ Guilherme Silva Da Rosa
Гостиница magdas Hotel © AllesWirdGut Architektur/ Guilherme Silva Da Rosa

Основную «коробку» старого здания архитекторы сохранили, лишь отремонтировали ее и модернизировали инженерные системы. Интерьерную концепцию построили на спокойных – приглушенных, светлых тонах, но включили активные, привлекающие внимание элементы: например, нанесли с помощью специального резного валика интересный повторяющийся орнамент на стены. Мебель собирали по крупицам из самых разных источников: использовали ту, что сохранилась в доме престарелых, часть купили в принадлежащем Caritas магазинчике, еще какие-то предметы принесли местные жители. Так, например, из старых встроеных шкафов сделали столы, тумбочки и вешалки. А рабочие столы из Нового университета дизайна в городе Санкт-Пёльтен (бюро Alles WirdGut недавно выстроило для него новое здание) нашли свое место в холле и ресторане отеля.
Гостиница magdas Hotel © AllesWirdGut Architektur/ Guilherme Silva Da Rosa
Гостиница magdas Hotel © AllesWirdGut Architektur/ Guilherme Silva Da Rosa

Кроме вполне ожидаемых от европейского общества стремления к экономии, поддержки бесконечно правильных идей терпимости и социальной ответственности бизнеса, проект транслирует мощнейший заряд позитива. Не случайно фразу «Все будет хорошо!» архитекторы вынесли в название своего бюро. Звучит и выглядит все действительно многообещающе и очень благородно, ну а оправдает ли идея возложенные на нее надежды, смогут ли помочь друг другу уверенные в себе местные жители, потерявшие все одинокие беженцы и вполне благополучные гости Вены – узнаем в ближайшие пару лет.
Гостиница magdas Hotel © AllesWirdGut Architektur/ Guilherme Silva Da Rosa
Гостиница magdas Hotel © AllesWirdGut Architektur/ Guilherme Silva Da Rosa
Гостиница magdas Hotel © AllesWirdGut Architektur/ Guilherme Silva Da Rosa
Гостиница magdas Hotel © AllesWirdGut Architektur/ Guilherme Silva Da Rosa
Гостиница magdas Hotel © AllesWirdGut Architektur/ Guilherme Silva Da Rosa
Гостиница magdas Hotel © AllesWirdGut Architektur/ Guilherme Silva Da Rosa
Гостиница magdas Hotel © AllesWirdGut Architektur/ Guilherme Silva Da Rosa
Гостиница magdas Hotel © AllesWirdGut Architektur/ Guilherme Silva Da Rosa
Гостиница magdas Hotel © AllesWirdGut Architektur/ Guilherme Silva Da Rosa
Гостиница magdas Hotel © AllesWirdGut Architektur/ Guilherme Silva Da Rosa
Гостиница magdas Hotel © AllesWirdGut Architektur/ Guilherme Silva Da Rosa
Гостиница magdas Hotel © AllesWirdGut Architektur/ Guilherme Silva Da Rosa
Гостиница magdas Hotel © AllesWirdGut Architektur/ Guilherme Silva Da Rosa
Гостиница magdas Hotel © AllesWirdGut Architektur/ Guilherme Silva Da Rosa
Гостиница magdas Hotel © AllesWirdGut Architektur/ Guilherme Silva Da Rosa
Гостиница magdas Hotel © AllesWirdGut Architektur/ Guilherme Silva Da Rosa
Гостиница magdas Hotel © AllesWirdGut Architektur/ Guilherme Silva Da Rosa
Гостиница magdas Hotel © AllesWirdGut Architektur/ Guilherme Silva Da Rosa
Гостиница magdas Hotel © AllesWirdGut Architektur/ Guilherme Silva Da Rosa
Гостиница magdas Hotel © AllesWirdGut Architektur/ Guilherme Silva Da Rosa
Гостиница magdas Hotel © AllesWirdGut Architektur/ Guilherme Silva Da Rosa
Гостиница magdas Hotel © AllesWirdGut Architektur/ Guilherme Silva Da Rosa
Гостиница magdas Hotel © AllesWirdGut Architektur/ Guilherme Silva Da Rosa
Гостиница magdas Hotel © AllesWirdGut Architektur/ Guilherme Silva Da Rosa
Гостиница magdas Hotel © AllesWirdGut Architektur/ Guilherme Silva Da Rosa
Гостиница magdas Hotel © AllesWirdGut Architektur/ Guilherme Silva Da Rosa
Гостиница magdas Hotel © AllesWirdGut Architektur/ Guilherme Silva Da Rosa
Гостиница magdas Hotel © AllesWirdGut Architektur/ Guilherme Silva Da Rosa
Гостиница magdas Hotel © AllesWirdGut
Гостиница magdas Hotel © AllesWirdGut
Гостиница magdas Hotel © AllesWirdGut
Гостиница magdas Hotel © AllesWirdGut
Гостиница magdas Hotel © AllesWirdGut
Гостиница magdas Hotel © AllesWirdGut
Гостиница magdas Hotel © AllesWirdGut
Гостиница magdas Hotel © AllesWirdGut
Гостиница magdas Hotel © AllesWirdGut
Гостиница magdas Hotel © AllesWirdGut
Гостиница magdas Hotel © AllesWirdGut
Гостиница magdas Hotel © AllesWirdGut
Гостиница magdas Hotel © AllesWirdGut
Гостиница magdas Hotel © AllesWirdGut