Размещено на портале Архи.ру (www.archi.ru)

23.03.2015

Скрытая суть вещей

Нина Фролова
Объект:
Мечеть Санджаклар
Адрес:
Турция, None, Стамбул.
Мастерская:
EAA-Emre Arolat Architects

Мечеть Санджаклар в Стамбуле бюро EAA-Emre Arolat Architects.

Мечеть Санджаклар © Thomas Mayer
Мечеть Санджаклар © Thomas Mayer

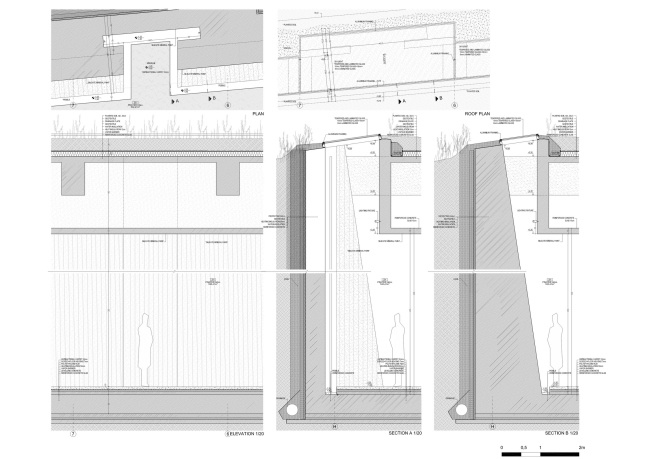
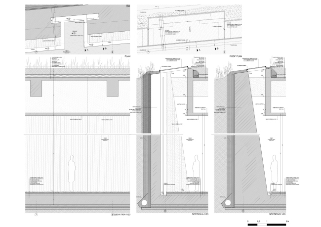
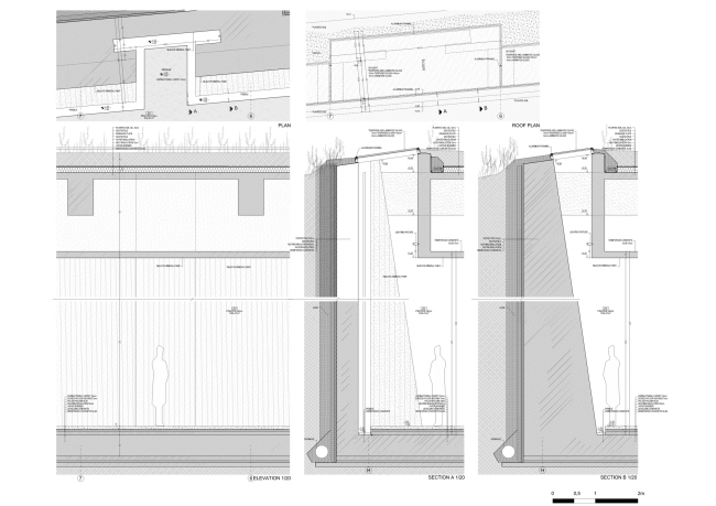
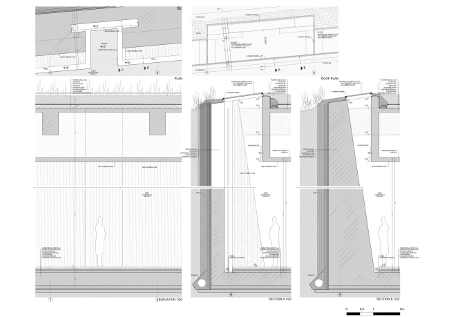
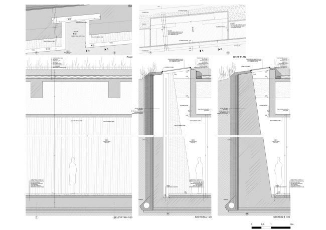
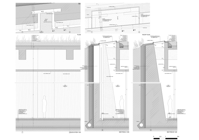
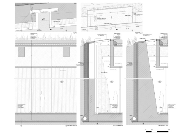
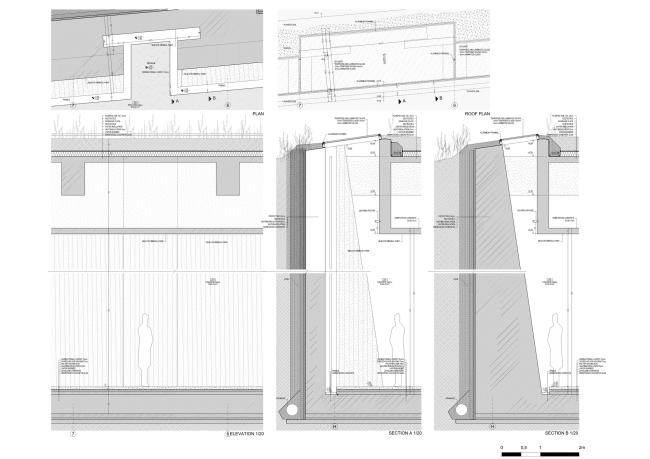
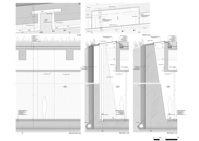
Мечеть расположена на европейской окраине Стамбула, в районе Бююкчекмедже, на отрезанном шоссе от жилых домов участке. От шумного окружения сооружение защищают высокие стены, однако само здание почти полностью утоплено в склон холма: его самый заметный элемент – тонкая и длинная плита бетонной кровли.
 
Мечеть Санджаклар © Cemal Emden
Мечеть Санджаклар © Cemal Emden



Сначала посетитель оказывается в верхнем дворе, а затем спускается по напоминающему амфитеатр небольшому саду ко входу в мечеть. Ландшафтный дизайн также выполнен EAA.
 
Мечеть Санджаклар © Cemal Emden
Мечеть Санджаклар © Cemal Emden

Эмре Аролат стремился уйти от «крикливости» и «хвастовства», характерных, по его мнению, для многих современных построек, и создать «смиренное» здание, выражающее «скрытую за его формой суть» и «суть культового пространства». Поэтому мечеть почти обошлась без декора, однако ее облицованный природным камнем экстерьер и напоминающий пещеру интерьер все же нельзя назвать простыми, хотя архитектор и на настаивает на таком эпитете. Однако их эффектные формы все же вписываются в окружение и, действительно, не кажутся недавним дополнением природного ландшафта, как и задумывал Аролат.
 
Мечеть Санджаклар © Cemal Emden
Мечеть Санджаклар © Cemal Emden

В интерьере главным выразительным средством стал естественный свет, падающий сквозь «щели» и «трещины» на сторону киблы.
Мечеть Санджаклар © Cemal Emden
Мечеть Санджаклар © Cemal Emden
Мечеть Санджаклар © Cemal Emden
Мечеть Санджаклар © Cemal Emden
Мечеть Санджаклар © Thomas Mayer
Мечеть Санджаклар © Thomas Mayer
Мечеть Санджаклар © Thomas Mayer
Мечеть Санджаклар © Thomas Mayer
Мечеть Санджаклар © Thomas Mayer
Мечеть Санджаклар © Thomas Mayer
Мечеть Санджаклар © Thomas Mayer
Мечеть Санджаклар © Thomas Mayer
Мечеть Санджаклар © Thomas Mayer
Мечеть Санджаклар © Thomas Mayer
Мечеть Санджаклар © Thomas Mayer
Мечеть Санджаклар © Thomas Mayer
Мечеть Санджаклар © EAA-Emre Arolat Architects
Мечеть Санджаклар © EAA-Emre Arolat Architects
Мечеть Санджаклар © EAA-Emre Arolat Architects
Мечеть Санджаклар © EAA-Emre Arolat Architects
Мечеть Санджаклар © EAA-Emre Arolat Architects
Мечеть Санджаклар © EAA-Emre Arolat Architects
Мечеть Санджаклар © EAA-Emre Arolat Architects
Мечеть Санджаклар © EAA-Emre Arolat Architects