Размещено на портале Архи.ру (www.archi.ru)

10.03.2015

В два этапа

Инесса Ковалева
Объект:
Национальный театральный центр «Комеди де Бетюн»
Адрес:
Франция, None, Бетюн.

На севере Франции бюро Manuelle Gautrand Architecture обновило и дополнило свой проект театра через 15 лет после его реализации.

Национальный театральный центр «Комеди де Бетюн» © Luc Boegly
Национальный театральный центр «Комеди де Бетюн» © Luc Boegly



История театра «Комеди де Бетюн» (La Comédie De Bethune) началась еще в 1980-е, когда власти региона Нор-Па-де-Кале на севере Франции основали в небольшом городке Бетюн национальный театральный центр – в рамках общефранцузской программы «децентрализации» театральной жизни и мер по культурному развитию области. В 1992 театр расположился в шатре типа циркового, в 1993 – переехал в исторический пороховой склад, построенный по проекту Вобана. Однако ему было необходимо более просторное и удобное помещение, и для этих нужд был выбран заброшенный кинотеатр «Палас» 1930-х годов, от которого к тому моменту остался лишь каркас.

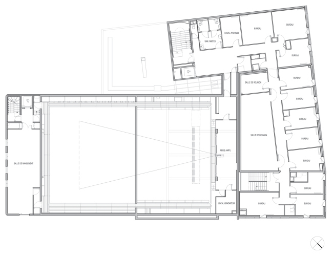
Молодой архитектор Мануэль Готран и ее бюро выиграли конкурс на реконструкцию кинотеатра в 1994. Согласно их замыслу, на первой стадии предполагалось реконструировать основной корпус; на втором этапе – пристроить дополнительный объем со вспомогательными помещениями. Полной реализации проекта на тот момент препятствовала необходимость сноса постройки на соседнем участке, поэтому в 1999 был реализована только первая часть.

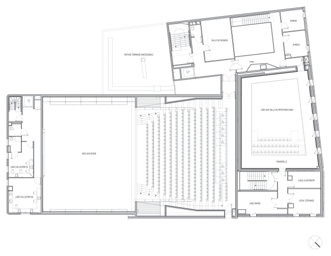
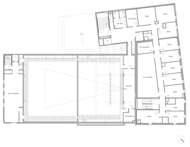
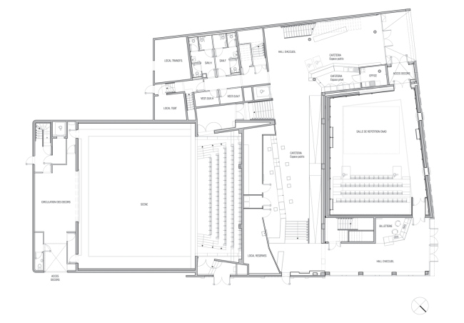
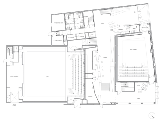
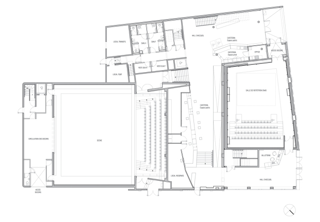
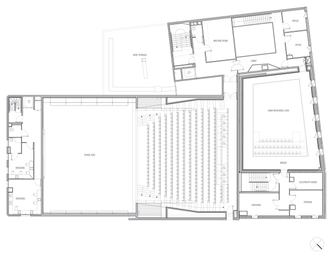
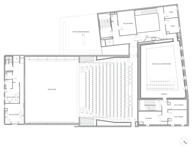
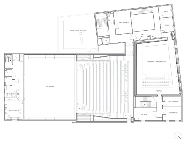
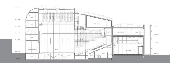
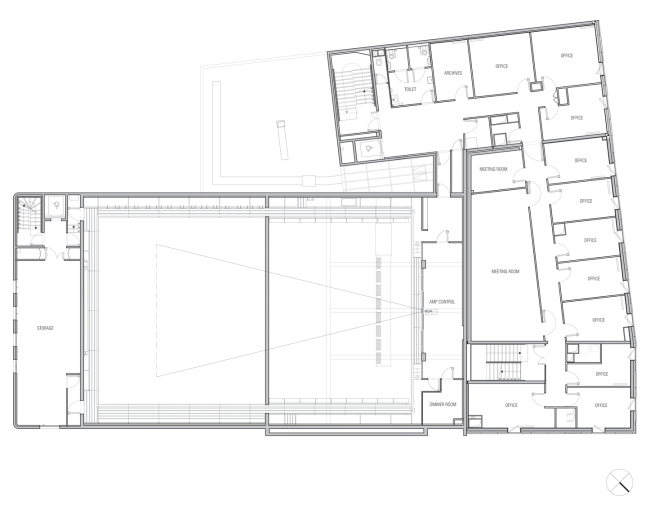
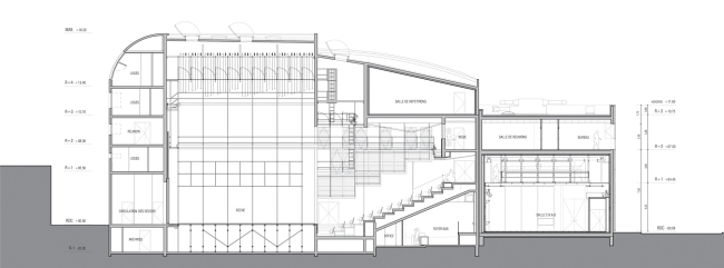
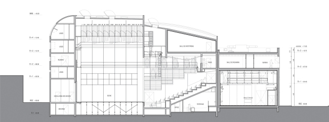
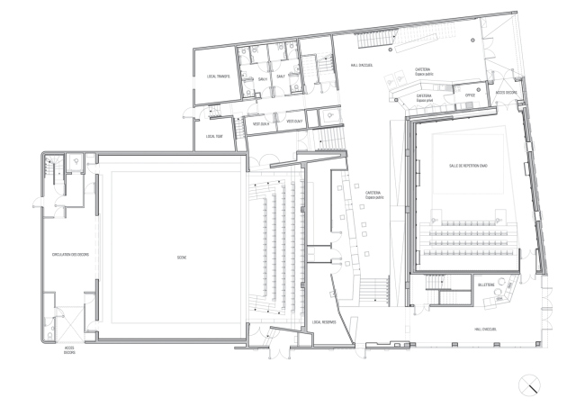
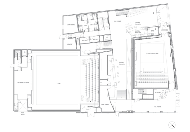
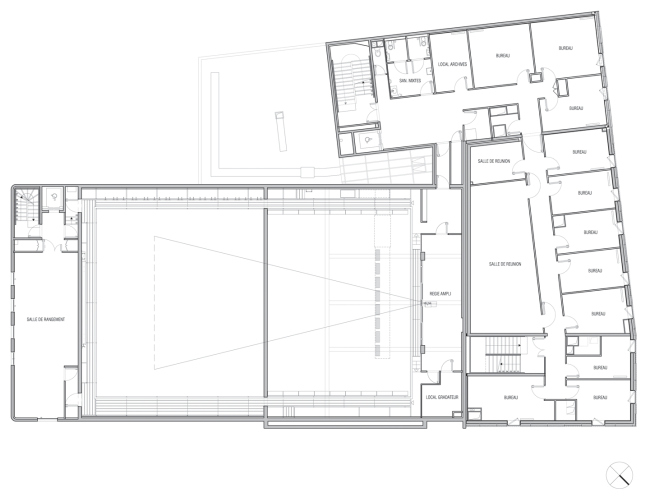
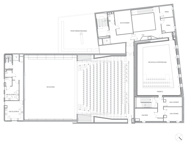
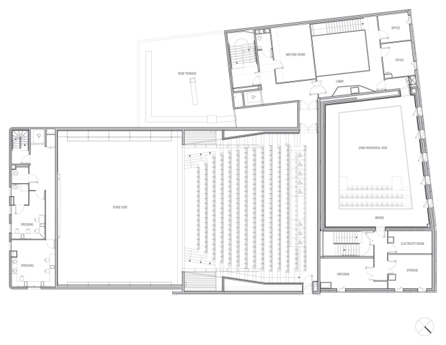
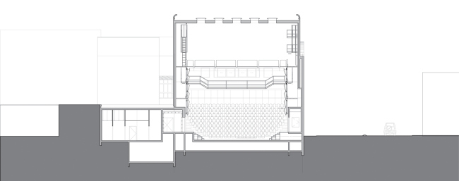
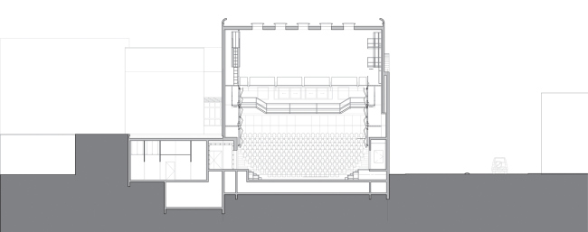
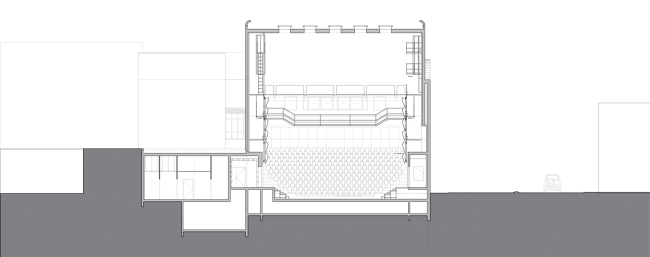
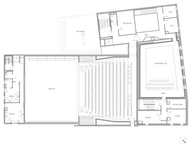
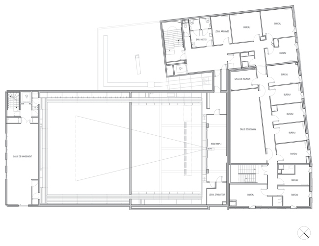
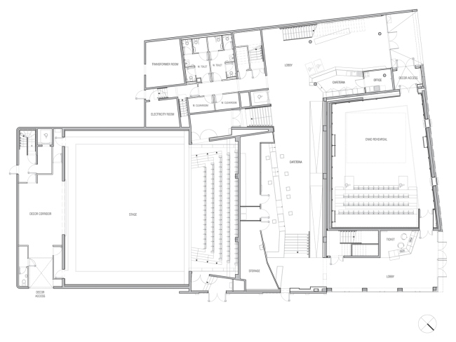
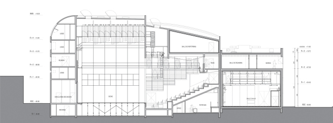
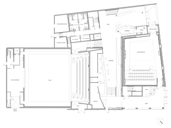
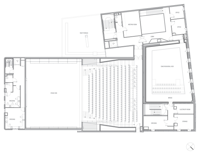
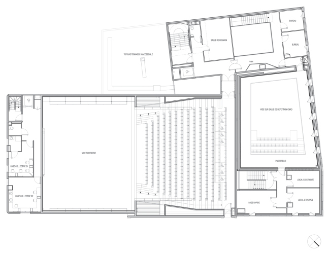
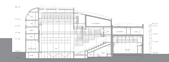
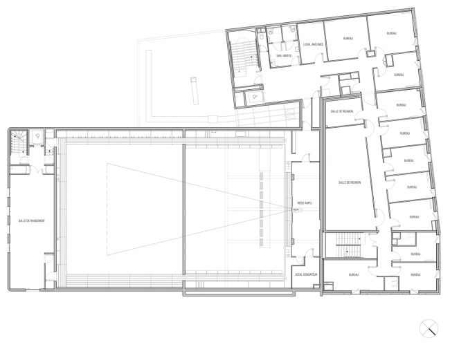
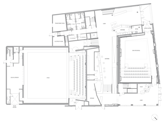
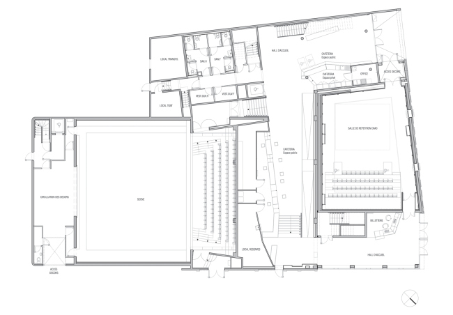
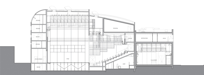
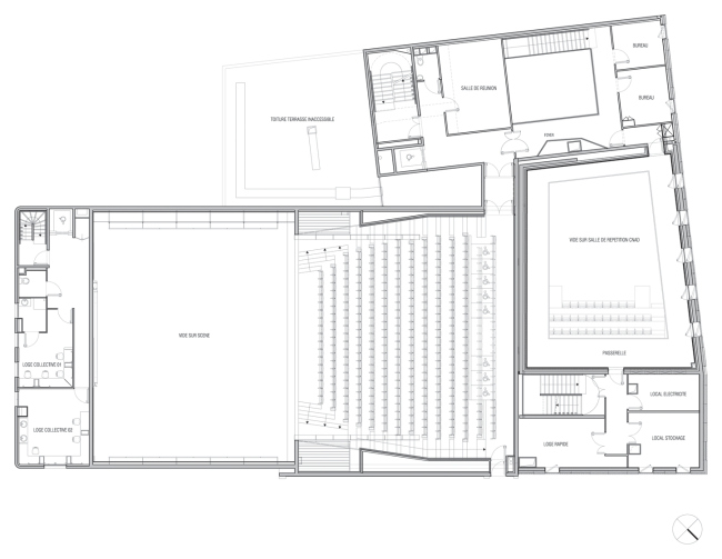
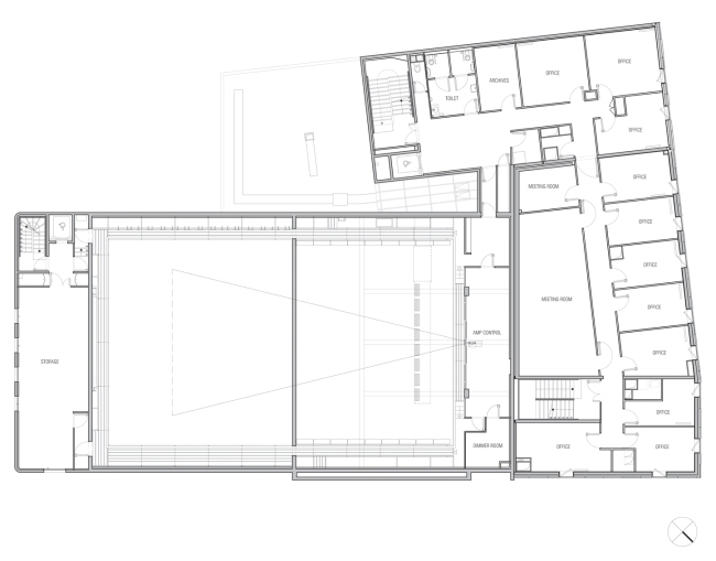
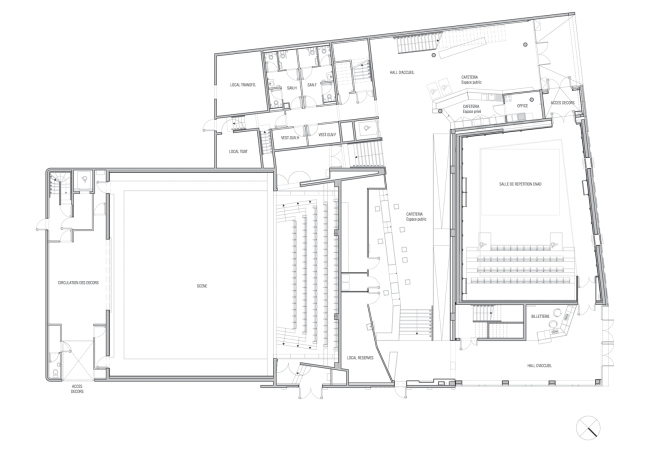
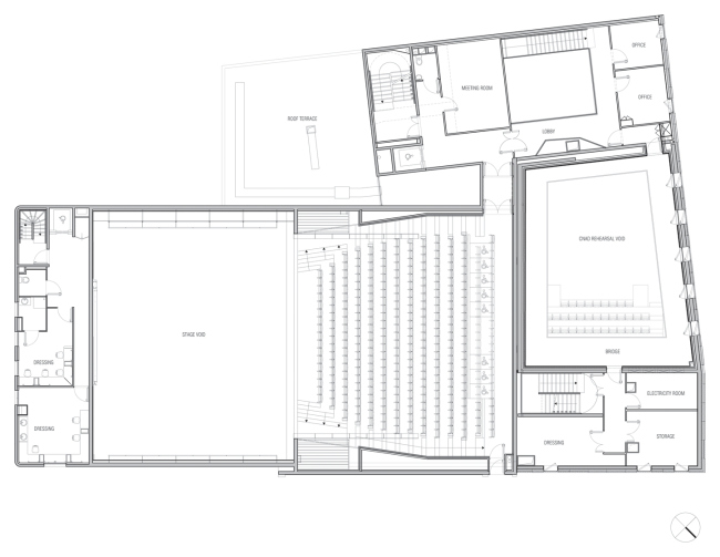
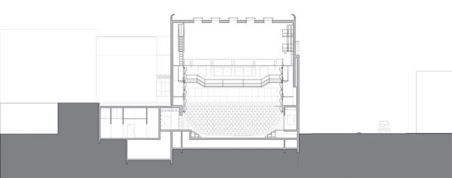
В реконструированном здании компактно разместили сцену и технические помещения, зрительный зал и пространства для посетителей. Архитекторы не стали пытаться скрыть массивный объем здания, вместо этого они лишь незначительно скруглили его форму и покрасили бетонные фасады в насыщенный вишневый цвет. Выбор этого оттенка не случаен: это и отсылка к красному бархату традиционного театра и, что еще интереснее, аллюзия на характерный для региона цвет кирпича. В случае, если цвет кирпича был недостаточно ярким, фасады в этой местности часто красили в подобный тон, чтоб увеличить контраст застройки с пасмурным небом северной Франции.

Узор из черных глазурованных кирпичей, идущий ромбами по всему объему, сбивает привычный масштаб. К масштабу улицы здание возвращает воссозданный фасад кинотеатра «Палас», вписанный в общую композицию. Напомним, что он был снесен в 1990, но позже его фасад решили отстроить заново как часть исторического наследия Бетюна.
 
Национальный театральный центр «Комеди де Бетюн» до реконструкции 2000-х © Philippe Ruault
Национальный театральный центр «Комеди де Бетюн» до реконструкции 2000-х © Philippe Ruault

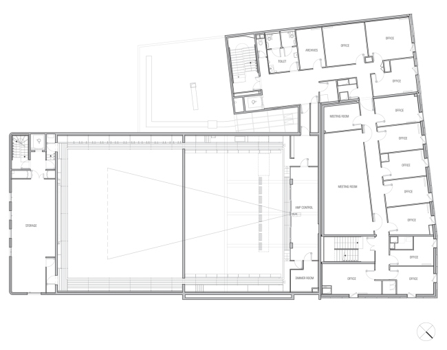
Вторая, нереализованная часть проекта, 10 лет оставалась лишь на бумаге. Наконец, в 2009 дом на соседнем, угловом участке, был снесен: так освободилось пространство для пристройки так необходимых театру вспомогательных помещений. На это расширение был проведен повторный конкурс, по результатам которого Manuelle Gautrand Architecture вновь стали лауреатами, не упустив возможность завершить и усовершенствовать собственный проект.
 
Национальный театральный центр «Комеди де Бетюн» © Luc Boegly
Национальный театральный центр «Комеди де Бетюн» © Luc Boegly

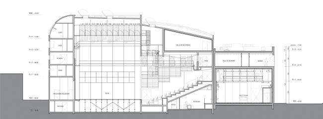
Помимо строительства пристройки, архитекторам удалось внести изменения в реализованную ими ранее часть проекта. За прошедшие годы строительные нормы значительно изменились, поэтому эта реконструкция также включала в себя адаптацию помещений к новым требованиям. В частности, театр стал более доступным для маломобильных посетителей.
 
Национальный театральный центр «Комеди де Бетюн» © Luc Boegly
Национальный театральный центр «Комеди де Бетюн» © Luc Boegly

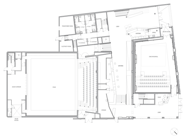
Прямоугольный объем пристройки решен максимально просто и функционально. Расположение участка на углу позволяет открыть театр сразу на две улицы. Вестибюль на первом этаже соединяет новую часть с условно-исторической и объединяет все функциональные потоки. Фасад облицован чередующимися черными металлическими панелями матовой и глянцевой текстуры. Диагональные направления формируют ромбовидный орнамент и визуально связывают новый объем с ромбами на вишневом фасаде 1990-х годов. Кроме того, здесь прослеживается источник вдохновения архитекторов – работы французского художника-абстракциониста Пьера Сулажа.
 
Национальный театральный центр «Комеди де Бетюн» © Luc Boegly
Национальный театральный центр «Комеди де Бетюн» © Luc Boegly

По мнению авторов проекта, очень важно соответствовать духу своему времени, поэтому новый объем выполнен совершенно в другом стиле, чем его «старший брат». Теперь облик здания в полной мере отражает три этапа своей истории – 1930-е годы и две реконструкции Manuelle Gautrand Architecture.
Национальный театральный центр «Комеди де Бетюн» © Luc Boegly
Национальный театральный центр «Комеди де Бетюн» © Luc Boegly
Национальный театральный центр «Комеди де Бетюн» © Luc Boegly
Национальный театральный центр «Комеди де Бетюн» © Luc Boegly
Национальный театральный центр «Комеди де Бетюн» © Luc Boegly
Национальный театральный центр «Комеди де Бетюн» © Luc Boegly
Национальный театральный центр «Комеди де Бетюн» © Luc Boegly
Национальный театральный центр «Комеди де Бетюн» © Luc Boegly
Национальный театральный центр «Комеди де Бетюн» © Luc Boegly
Национальный театральный центр «Комеди де Бетюн» © Luc Boegly
Национальный театральный центр «Комеди де Бетюн» © Luc Boegly
Национальный театральный центр «Комеди де Бетюн» © Luc Boegly
Национальный театральный центр «Комеди де Бетюн» © Luc Boegly
Национальный театральный центр «Комеди де Бетюн» © Luc Boegly
Национальный театральный центр «Комеди де Бетюн» © Luc Boegly
Национальный театральный центр «Комеди де Бетюн» © Luc Boegly
Национальный театральный центр «Комеди де Бетюн» © Luc Boegly
Национальный театральный центр «Комеди де Бетюн» © Luc Boegly
Национальный театральный центр «Комеди де Бетюн» © Luc Boegly
Национальный театральный центр «Комеди де Бетюн» © Luc Boegly
Национальный театральный центр «Комеди де Бетюн» © Luc Boegly
Национальный театральный центр «Комеди де Бетюн» © Luc Boegly
Национальный театральный центр «Комеди де Бетюн» © Luc Boegly
Национальный театральный центр «Комеди де Бетюн» © Luc Boegly
Национальный театральный центр «Комеди де Бетюн» © Luc Boegly
Национальный театральный центр «Комеди де Бетюн» © Luc Boegly
Национальный театральный центр «Комеди де Бетюн» © Manuelle Gautrand Architecture
Национальный театральный центр «Комеди де Бетюн» © Manuelle Gautrand Architecture
Национальный театральный центр «Комеди де Бетюн» © Manuelle Gautrand Architecture
Национальный театральный центр «Комеди де Бетюн» © Manuelle Gautrand Architecture
Национальный театральный центр «Комеди де Бетюн» © Manuelle Gautrand Architecture
Национальный театральный центр «Комеди де Бетюн» © Manuelle Gautrand Architecture
Национальный театральный центр «Комеди де Бетюн» © Manuelle Gautrand Architecture
Национальный театральный центр «Комеди де Бетюн» © Manuelle Gautrand Architecture
Национальный театральный центр «Комеди де Бетюн» © Manuelle Gautrand Architecture
Национальный театральный центр «Комеди де Бетюн» © Manuelle Gautrand Architecture
Национальный театральный центр «Комеди де Бетюн» © Manuelle Gautrand Architecture
Национальный театральный центр «Комеди де Бетюн» © Manuelle Gautrand Architecture
Национальный театральный центр «Комеди де Бетюн» © Manuelle Gautrand Architecture
Национальный театральный центр «Комеди де Бетюн» © Manuelle Gautrand Architecture
Национальный театральный центр «Комеди де Бетюн» © Manuelle Gautrand Architecture
Национальный театральный центр «Комеди де Бетюн» © Manuelle Gautrand Architecture
Национальный театральный центр «Комеди де Бетюн» © Manuelle Gautrand Architecture
Национальный театральный центр «Комеди де Бетюн» © Manuelle Gautrand Architecture
Национальный театральный центр «Комеди де Бетюн» © Manuelle Gautrand Architecture
Национальный театральный центр «Комеди де Бетюн» © Manuelle Gautrand Architecture
Национальный театральный центр «Комеди де Бетюн» © Manuelle Gautrand Architecture
Национальный театральный центр «Комеди де Бетюн» © Manuelle Gautrand Architecture