Размещено на портале Архи.ру (www.archi.ru)

06.03.2015

Эволюция места

Нина Фролова
Объект:
Музей керамики района Триана
Адрес:
Испания, None, Севилья.
Мастерская:
AF6 Arquitectos

Бюро AF6 Arquitectos спроектировало Музей керамики в историческом севильском районе Триана.

Музей керамики района Триана © Jesús Granada
Музей керамики района Триана © Jesús Granada

Музей располагается в комплексе фабрики Санта-Ана: производство керамики на этом месте началось 500 лет назад и остановилось лишь в конце XX века. Архитекторы, выполнившие не только перестройку здания под выставочные нужды, но и дизайн экспозиции, рассматривают свой проект как всего лишь очередную «ступень эволюции» этой мануфактуры.
 
Музей керамики района Триана © Jesús Granada
Музей керамики района Триана © Jesús Granada

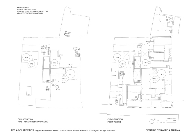
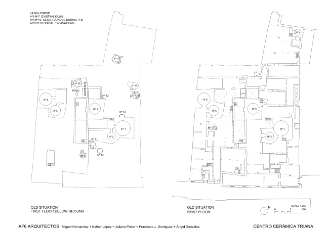
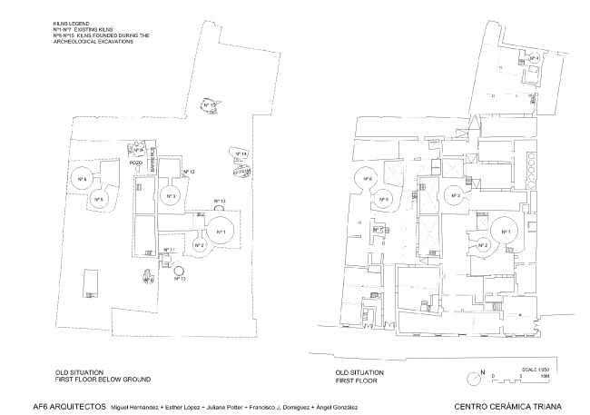
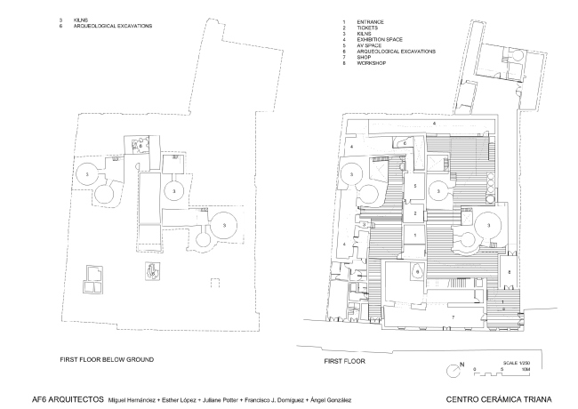
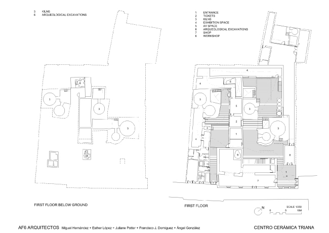
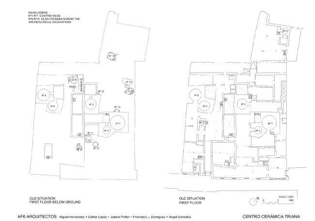
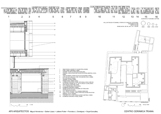
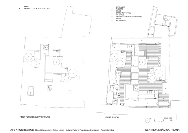
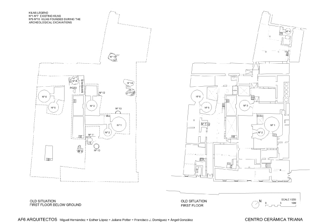
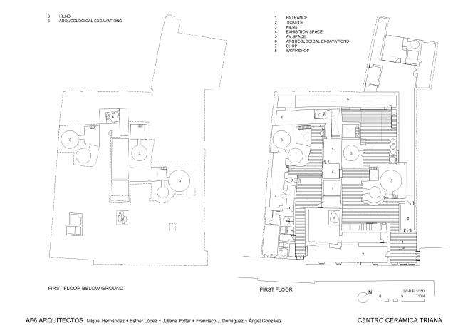
От действовавшей фабрики сохранились 8 печей для обжига, колодец, мельницы для изготовления красок, мастерские и кладовые. В ходе археологических находок удалось найти остатки еще 8 печей, самые старые из которых прекратили использовать еще в конце XVI века.
 
Музей керамики района Триана © Jesús Granada
Музей керамики района Триана © Jesús Granada

Архитекторы не хотели своим проектом ничего «заявлять», а стремились лишь вписаться в исторический контекст: так, их работа никак не проявляет себя на фасадах здания.
 
Музей керамики района Триана © Jesús Granada
Музей керамики района Триана © Jesús Granada

За века активной работы мануфактура многократно перестраивалась, поновлялась и расширялась, и на сегодняшний день ее комплекс представляет собой хаотическую мозаику из разновременных фрагментов. С помощью новейших археологических методов удалось сохранить не только эту беспорядочность, но даже копоть и пепел прошлых веков.
 
Музей керамики района Триана © Jesús Granada
Музей керамики района Триана © Jesús Granada

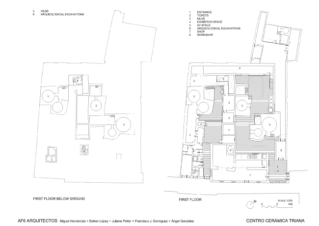
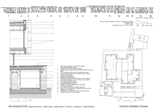
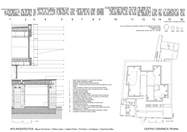
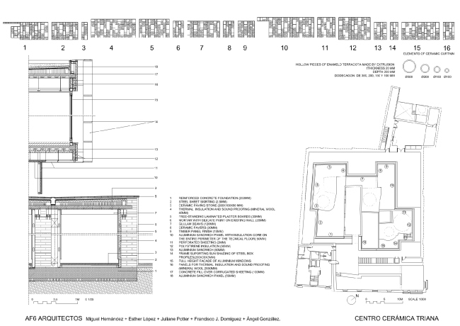
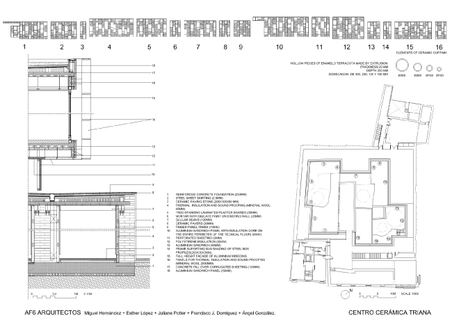
Первый ярус постройки организован вокруг печей, что делает пространство лабиринтообразным; здесь рассказывается о традиционном процессе производства керамики. Выставочные залы второго этажа расположены вокруг патио. Фасады этой части здания закрыты от солнца керамическими трубками местного производства: это и отсылка к теме музея, и способ визуально выделить новейший слой в архитектурном «палимпсесте».
Музей керамики района Триана © Jesús Granada
Музей керамики района Триана © Jesús Granada
Музей керамики района Триана © Jesús Granada
Музей керамики района Триана © Jesús Granada
Музей керамики района Триана © Jesús Granada
Музей керамики района Триана © Jesús Granada
Музей керамики района Триана © Jesús Granada
Музей керамики района Триана © Jesús Granada
Музей керамики района Триана © Jesús Granada
Музей керамики района Триана © Jesús Granada
Музей керамики района Триана © Jesús Granada
Музей керамики района Триана © Jesús Granada
Музей керамики района Триана © Jesús Granada
Музей керамики района Триана © Jesús Granada
Музей кер7амики района Триана © Jesús Granada
Музей кер7амики района Триана © Jesús Granada
Музей керамики района Триана © Jesús Granada
Музей керамики района Триана © Jesús Granada
Музей керамики района Триана © Jesús Granada
Музей керамики района Триана © Jesús Granada
Музей керамики района Триана © Jesús Granada
Музей керамики района Триана © Jesús Granada
Музей керамики района Триана © Jesús Granada
Музей керамики района Триана © Jesús Granada
Музей керамики района Триана © Jesús Granada
Музей керамики района Триана © Jesús Granada
Музей керамики района Триана © AF6 Arquitectos
Музей керамики района Триана © AF6 Arquitectos
Музей керамики района Триана © AF6 Arquitectos
Музей керамики района Триана © AF6 Arquitectos
Музей керамики района Триана © AF6 Arquitectos
Музей керамики района Триана © AF6 Arquitectos
Музей керамики района Триана © AF6 Arquitectos
Музей керамики района Триана © AF6 Arquitectos
Музей керамики района Триана © AF6 Arquitectos
Музей керамики района Триана © AF6 Arquitectos
Музей керамики района Триана © AF6 Arquitectos
Музей керамики района Триана © AF6 Arquitectos
Музей керамики района Триана © AF6 Arquitectos
Музей керамики района Триана © AF6 Arquitectos
Музей керамики района Триана © AF6 Arquitectos
Музей керамики района Триана © AF6 Arquitectos
Музей керамики района Триана © AF6 Arquitectos
Музей керамики района Триана © AF6 Arquitectos
Музей керамики района Триана © AF6 Arquitectos
Музей керамики района Триана © AF6 Arquitectos
Музей керамики района Триана © AF6 Arquitectos
Музей керамики района Триана © AF6 Arquitectos