Размещено на портале Архи.ру (www.archi.ru)

24.02.2015

Дом студентов-предпринимателей

Нина Фролова
Объект:
Корпус Lassonde Studios Института предпринимательства Лассонда
Адрес:
США, None, Солт-Лейк-Сити.
Мастерская:
Yazdani Studio

В Солт-Лейк-Сити по проекту Yazdani Studio строится университетский бизнес-инкубатор, совмещенный с общежитием.

Корпус Lassonde Studios Института предпринимательства Лассонда © Yazdani Studio
Корпус Lassonde Studios Института предпринимательства Лассонда © Yazdani Studio

Корпус Lassonde Studios появится на кампусе университета штата Юта. Он входит в состав Института Лассонда, который, в свою очередь – подразделение университетской Школы бизнеса Дэвида Экклза. Институт, у которого тот же благотворитель, что и у будущего общежития-инкубатора – Пьер Лассонд – не учебное заведение, а «хаб», где с 2001 студенты разных специальностей и уровня подготовки пробуют свои силы в практике предпринимательства и изобретательства.
 
Корпус Lassonde Studios Института предпринимательства Лассонда © Yazdani Studio
Корпус Lassonde Studios Института предпринимательства Лассонда © Yazdani Studio

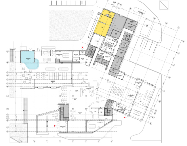
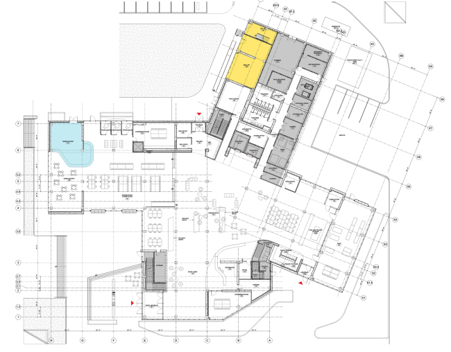
Lassonde Studios дополнит институт как его творческий и экспериментальный «полигон». На первом этаже запланировано остекленное пространство площадью около 2000 м2, где будущие программисты, дизайнеры и коммерсанты смогут основывать и развивать собственные фирмы, заниматься изобретательством, проводить различные мероприятия и т.д. К их услугам будут зоны коворкинга, 3D-принтеры, различные мастерские. Работать там можно будет в любое время суток – когда возникнет вдохновение.
 
Корпус Lassonde Studios Института предпринимательства Лассонда © Yazdani Studio
Корпус Lassonde Studios Института предпринимательства Лассонда © Yazdani Studio

За фасадами из покрытой патиной меди разместятся жилые помещения на 400 студентов. Первоначально архитекторы планировали сделать упор на «лофты», где общественные зоны преобладают над частными, чтобы стимулировать общение, а с ним – и «продуктивность» учащихся. Обитатели смогут обсуждать там «производственные» темы вне рабочей среды, а старшекурсники – передавать опыт новичкам. Однако это вызвало протест у будущих пользователей здания, недовольных такой безальтернативной «открытостью». Для них архитекторы предложили обычные комнаты на 1 или 2 человек, компактные передвижные жилые модули, а также тихие рабочие помещения на первом этаже.
 
Корпус Lassonde Studios Института предпринимательства Лассонда © Yazdani Studio
Корпус Lassonde Studios Института предпринимательства Лассонда © Yazdani Studio

В жилых модулях предусмотрено все необходимое для сна, хранения вещей, отдыха и учебы. Помимо прочего, это съемные книжные полки, гардероб, шкафчик для лекарств и плоский экран-монитор.
Корпус Lassonde Studios Института предпринимательства Лассонда © Yazdani Studio
Корпус Lassonde Studios Института предпринимательства Лассонда © Yazdani Studio

Планировка Lassonde Studios – максимально гибкая, чтобы при желании можно было ее полностью поменять, к примеру, значительно расширив «производственную» зону. По словам заказчиков, ситуация в бизнесе меняется быстро, и бизнес-инкубатор должен за ней поспевать – в отличие от обычных университетских корпусов, рассчитанных на 50–100 лет эксплуатации без особых перемен.
Корпус Lassonde Studios Института предпринимательства Лассонда © Yazdani Studio
Корпус Lassonde Studios Института предпринимательства Лассонда © Yazdani Studio
Корпус Lassonde Studios Института предпринимательства Лассонда © Yazdani Studio
Корпус Lassonde Studios Института предпринимательства Лассонда © Yazdani Studio
Корпус Lassonde Studios Института предпринимательства Лассонда © Yazdani Studio
Корпус Lassonde Studios Института предпринимательства Лассонда © Yazdani Studio
Корпус Lassonde Studios Института предпринимательства Лассонда © Yazdani Studio
Корпус Lassonde Studios Института предпринимательства Лассонда © Yazdani Studio
Корпус Lassonde Studios Института предпринимательства Лассонда. Жилой модуль © Yazdani Studio
Корпус Lassonde Studios Института предпринимательства Лассонда. Жилой модуль © Yazdani Studio
Корпус Lassonde Studios Института предпринимательства Лассонда. Жилой модуль © Yazdani Studio
Корпус Lassonde Studios Института предпринимательства Лассонда. Жилой модуль © Yazdani Studio
Корпус Lassonde Studios Института предпринимательства Лассонда. Жилой модуль © Yazdani Studio
Корпус Lassonde Studios Института предпринимательства Лассонда. Жилой модуль © Yazdani Studio
Корпус Lassonde Studios Института предпринимательства Лассонда. Жилой модуль © Yazdani Studio
Корпус Lassonde Studios Института предпринимательства Лассонда. Жилой модуль © Yazdani Studio
Корпус Lassonde Studios Института предпринимательства Лассонда. Жилой модуль © Yazdani Studio
Корпус Lassonde Studios Института предпринимательства Лассонда. Жилой модуль © Yazdani Studio
Корпус Lassonde Studios Института предпринимательства Лассонда © Yazdani Studio
Корпус Lassonde Studios Института предпринимательства Лассонда © Yazdani Studio
Корпус Lassonde Studios Института предпринимательства Лассонда © Yazdani Studio
Корпус Lassonde Studios Института предпринимательства Лассонда © Yazdani Studio