Размещено на портале Архи.ру (www.archi.ru)

19.02.2015

Плюс бесконечность

Нина Фролова
Объект:
Вилла «Дом бесконечности» – “Дом VT”
Адрес:
Испания, None,

Вилла на берегу Атлантического океана в провинции Кадис, спроектированная Альберто Кампо-Баэса.

Вилла «Дом бесконечности» – “Дом VT”  © Javier Callejas
Вилла «Дом бесконечности» – “Дом VT” © Javier Callejas

Почти у подножия «Дома бесконечности», через узкую полоску пляжа начинается необъятная гладь Атлантики, соединяющая и разъединяющая Старый и Новый свет. Поэтому тема плоскости стала определяющей для проекта Кампо-Баэса.
 
Вилла «Дом бесконечности» – “Дом VT”  © Javier Callejas
Вилла «Дом бесконечности» – “Дом VT” © Javier Callejas

Новая вилла, по сути – это облицованная римским травертином 2-этажная платформа, каменный мол, встречающий корабли, выходящие в океан через Гибралтарский пролив или, напротив, направляющиеся в Средиземное море.
 
Вилла «Дом бесконечности» – “Дом VT”  © Javier Callejas
Вилла «Дом бесконечности» – “Дом VT” © Javier Callejas

Плоскости воды противопоставлена терраса идеальных геометрических форм –кровля дома и, одновременно, его главный фасад. Основной вход устроен именно там – в виде прорезанной в ее поверхности ведущей вниз «траншеи»-лестницы. От обычных на океанском побережье сильных ветров и взглядов следующих по дороге путешественников террасу защищают три стены.
 
Вилла «Дом бесконечности» – “Дом VT”  © Javier Callejas
Вилла «Дом бесконечности» – “Дом VT” © Javier Callejas

Эту кровлю Кампо-Баэса уподобляет теменосу, священному участку античного храма, месту встречи богов и людей. Исторические аллюзии понятны: совсем близко располагалось римское поселение Болония (Бело Клавдия), да и весь Пиренейский полуостров был частью Империи. О римлянах должен напоминать и выбор камня для облицовки.
Вилла «Дом бесконечности» – “Дом VT”  © Javier Callejas
Вилла «Дом бесконечности» – “Дом VT” © Javier Callejas
Вилла «Дом бесконечности» – “Дом VT”  © Javier Callejas
Вилла «Дом бесконечности» – “Дом VT” © Javier Callejas
Вилла «Дом бесконечности» – “Дом VT”  © Javier Callejas
Вилла «Дом бесконечности» – “Дом VT” © Javier Callejas
Вилла «Дом бесконечности» – “Дом VT”  © Javier Callejas
Вилла «Дом бесконечности» – “Дом VT” © Javier Callejas
Вилла «Дом бесконечности» – “Дом VT”  © Javier Callejas
Вилла «Дом бесконечности» – “Дом VT” © Javier Callejas
Вилла «Дом бесконечности» – “Дом VT”  © Javier Callejas
Вилла «Дом бесконечности» – “Дом VT” © Javier Callejas
Вилла «Дом бесконечности» – “Дом VT”  © Javier Callejas
Вилла «Дом бесконечности» – “Дом VT” © Javier Callejas
Вилла «Дом бесконечности» – “Дом VT”  © Javier Callejas
Вилла «Дом бесконечности» – “Дом VT” © Javier Callejas
Вилла «Дом бесконечности» – “Дом VT”  © Javier Callejas
Вилла «Дом бесконечности» – “Дом VT” © Javier Callejas
Вилла «Дом бесконечности» – “Дом VT”  © Javier Callejas
Вилла «Дом бесконечности» – “Дом VT” © Javier Callejas
Вилла «Дом бесконечности» – “Дом VT”  © Javier Callejas
Вилла «Дом бесконечности» – “Дом VT” © Javier Callejas
Вилла «Дом бесконечности» – “Дом VT”  © Javier Callejas
Вилла «Дом бесконечности» – “Дом VT” © Javier Callejas
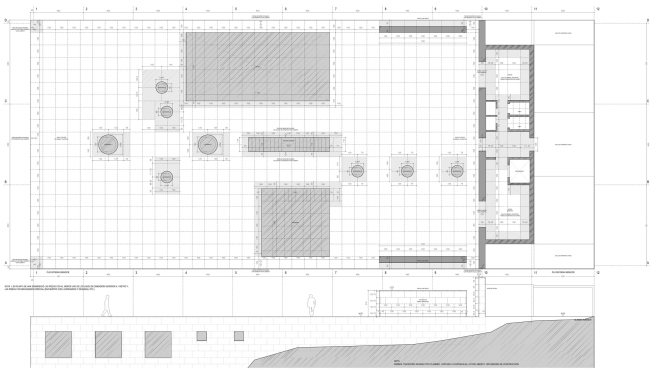
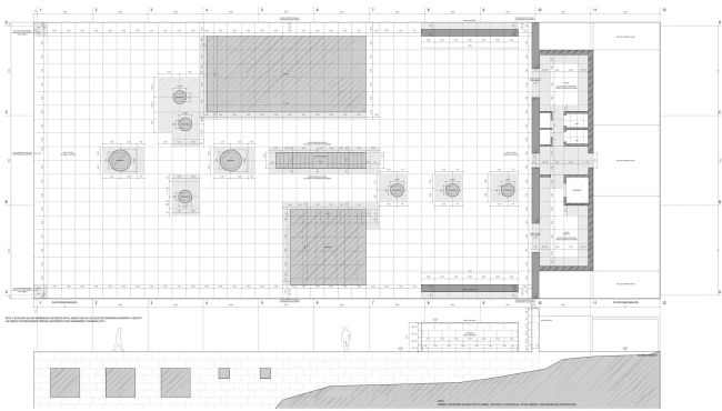
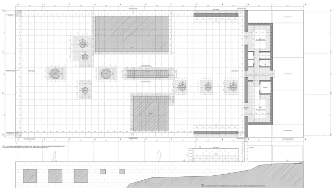
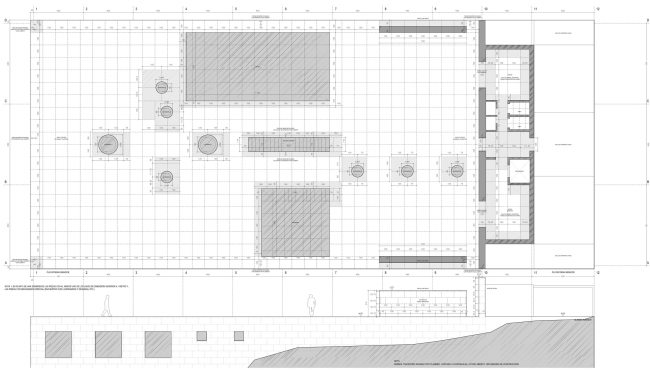
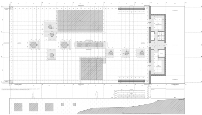
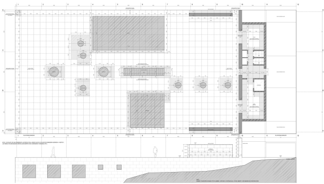
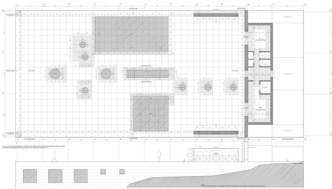
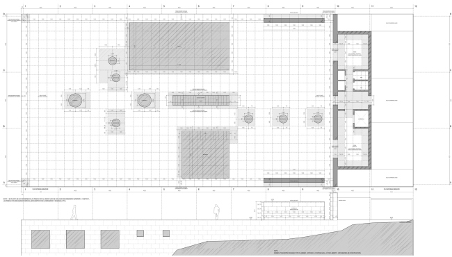
Вилла «Дом бесконечности» – “Дом VT”  © Estudio Arquitectura Campo Baeza
Вилла «Дом бесконечности» – “Дом VT” © Estudio Arquitectura Campo Baeza
Вилла «Дом бесконечности» – “Дом VT”  © Estudio Arquitectura Campo Baeza
Вилла «Дом бесконечности» – “Дом VT” © Estudio Arquitectura Campo Baeza
Вилла «Дом бесконечности» – “Дом VT”  © Estudio Arquitectura Campo Baeza
Вилла «Дом бесконечности» – “Дом VT” © Estudio Arquitectura Campo Baeza
Вилла «Дом бесконечности» – “Дом VT”  © Estudio Arquitectura Campo Baeza
Вилла «Дом бесконечности» – “Дом VT” © Estudio Arquitectura Campo Baeza
Вилла «Дом бесконечности» – “Дом VT”  © Estudio Arquitectura Campo Baeza
Вилла «Дом бесконечности» – “Дом VT” © Estudio Arquitectura Campo Baeza
Вилла «Дом бесконечности» – “Дом VT”  © Estudio Arquitectura Campo Baeza
Вилла «Дом бесконечности» – “Дом VT” © Estudio Arquitectura Campo Baeza
Вилла «Дом бесконечности» – “Дом VT”  © Estudio Arquitectura Campo Baeza
Вилла «Дом бесконечности» – “Дом VT” © Estudio Arquitectura Campo Baeza
Вилла «Дом бесконечности» – “Дом VT”  © Estudio Arquitectura Campo Baeza
Вилла «Дом бесконечности» – “Дом VT” © Estudio Arquitectura Campo Baeza
Вилла «Дом бесконечности» – “Дом VT”  © Estudio Arquitectura Campo Baeza
Вилла «Дом бесконечности» – “Дом VT” © Estudio Arquitectura Campo Baeza
Вилла «Дом бесконечности» – “Дом VT”. Песчаная модель  © Carlos Gutiérrez
Вилла «Дом бесконечности» – “Дом VT”. Песчаная модель © Carlos Gutiérrez
Вилла «Дом бесконечности» – “Дом VT”. Бумажная модель  © Estudio Arquitectura Campo Baeza
Вилла «Дом бесконечности» – “Дом VT”. Бумажная модель © Estudio Arquitectura Campo Baeza
Вилла «Дом бесконечности» – “Дом VT”  © Javier Callejas
Вилла «Дом бесконечности» – “Дом VT” © Javier Callejas
Вилла «Дом бесконечности» – “Дом VT”  © Estudio Arquitectura Campo Baeza
Вилла «Дом бесконечности» – “Дом VT” © Estudio Arquitectura Campo Baeza
Вилла «Дом бесконечности» – “Дом VT”  © Estudio Arquitectura Campo Baeza
Вилла «Дом бесконечности» – “Дом VT” © Estudio Arquitectura Campo Baeza