Размещено на портале Архи.ру (www.archi.ru)

26.02.2015

Выросший из контекста

Ксения Сурикова
Объект:
ЖК «Победы, 5» в Петербурге
Адрес:
Россия, Санкт-Петербург. ул. Победы, д.5
Мастерская:
Евгений Герасимов и партнеры
Авторский коллектив:
Руководитель проекта Герасимов Е.Л., главный архитектор проекта Ярощук Т.Е., руководитель группы АР Осколкова Т.Б., архитекторы Бурдакова О.Е., Хухка И.В.

Дом на улице Победы, 5 переосмысляет идеи сталинской архитектуры района в лучшем материальном качестве. Впрочем, здесь не забыли и о более глубоких корнях.

Дом на ул. Победы, 5. Архитектор «Евгений Герасимов и партнеры». 2014. Фотография предоставлена LEGENDA Intelligent Development
Дом на ул. Победы, 5. Архитектор «Евгений Герасимов и партнеры». 2014. Фотография предоставлена LEGENDA Intelligent Development

Мы уже рассказывали о проекте дома на улице Победы, 5, недалеко от Московского проспекта и площади Стругацких, в районе, где сталинские дома чередуются с советскими «стенами» и постсоветскими-постмодернистскими зданиями. Бюро Евгения Герасимова встроило в этот достаточно пестрый, но урбанистически комфортный контекст новый элитный дом премиум-класса, сложив его фасад из трёх тем: внизу северный модерн-неоклассика, посередине образ ближе сталинской архитектуре, верхние же этажи намекают, хотя ненастойчиво, на стекло и длинные колонны девяностых. Дом вырастает из земли, можно было бы так сказать, хронологически: его можно представить себе троекратно надстроенным в разные периоды петербургской классики XX века. Девелопером проекта выступила компания LEGENDA Intelligent Development.

Строительство завершилось, дом сдан в декабре; 17 февраля по нему провели экскурсию – пресс-тур. Архитектор Евгений Герасимов и директор компании LEGENDA Intelligent Development Василий Селиванов показали журналистам новый дом, позволив вживую оценить фактурную материальность получившегося здания.

Травертиновые колонны коренастого дорического ордера перед входом, с настоящими широкими, дугообразными каннелюрами – почти как в Пестуме. Шершавый руст цокольного яруса, по всем правилам суперпозиции поступательно облегченный выше. Традиционные львиные морды на замковых камнях, выше, на фасадах – цветки-квадрифолии, напоминающие о другой постройке бюро, здании в Ковенском переулке (там – вставки в виде fleure de lys). Тот же, только сильнее полированный, травертин в холле, дерево, орнамент, латинская надпись бронзовыми буквами на полу, огромная антикварная люстра. Сталинская архитектура использовала материалы подешевле. Похожим образом могло бы выглядеть ар-деко Петербурга, если бы, скажем, не революция (или переворот?) 1917 года – дом как будто наверстывает сразу два качества: качество классицизирующей пластики и каменного, натурального материала.
Вид цокольного этажа со стороны улицы Победы. Дом на ул. Победы, 5 © Евгений Герасимов и партнеры
Вид цокольного этажа со стороны улицы Победы. Дом на ул. Победы, 5 © Евгений Герасимов и партнеры
Дом на ул. Победы, 5. Архитектор «Евгений Герасимов и партнеры». 2014. Фотография предоставлена LEGENDA Intelligent Development
Дом на ул. Победы, 5. Архитектор «Евгений Герасимов и партнеры». 2014. Фотография предоставлена LEGENDA Intelligent Development
Многоквартирный дом на ул. Победы, 5 © Евгений Герасимов и партнеры
Многоквартирный дом на ул. Победы, 5 © Евгений Герасимов и партнеры
Дом на ул. Победы, 5. Архитектор «Евгений Герасимов и партнеры». 2014. Фотография предоставлена LEGENDA Intelligent Development
Дом на ул. Победы, 5. Архитектор «Евгений Герасимов и партнеры». 2014. Фотография предоставлена LEGENDA Intelligent Development
Жилой дом «Победы, 5», 2014 © LEGENDA Intelligent Development
Жилой дом «Победы, 5», 2014 © LEGENDA Intelligent Development

Впрочем, он очень многое впитал из окружения: достаточно пройтись по соседнему Московскому проспекту, чтобы увидеть похожую суперпозицию руста, заимствованную архитекторами тридцатых годов XX века у Микелоццо, рельефные вставки, похожие на обелиски пинакли над карнизами. Дом вполне может быть понят через сталинское окружение, и тогда оказывается, что высокие, трехэтажные тяги верха перекликаются с рядом внушительных колонн Дома Советов архитектора Ноя Троцкого на Московской площади. Таким образом нередко поступали архитекторы в течение более чем трехсот лет: находили зацепки в окружающих зданиях, воспроизводили узнаваемые элементы и встраивали свое произведение в ряд соседей. Новый дом воплощает идеи сталинской архитектуры Московского района в новом, современном качестве, полируя и улучшая, но твердо привязываясь к основе. Впрочем, об этом же говорили и создатели здания на экскурсии.
***

В тридцатые годы Московский район планировалось сделать новым, советским центром города, – рассказали участникам тура, – но эксперимент не был доведен до конца, даже не все улицы тогда получили свои названия. Между тем этот тихий и по-своему следующий комфортным принципам «нового урбанизма» район сейчас стал одним из самых привлекательных: благодаря хорошему жилфонду, развитой социальной и транспортной инфраструктуре и сравнительной близости исторического центра. Что и стало причиной появления здесь дома премиум-класса.

Василий Селиванов рассказал, что история дома началась в 2011 году, когда компания приобрела участок №5, один из последних на красных линиях парадной части Московского района; вскоре бюро Евгения Герасимова приступило к проектированию. «Конечно, было принципиальное понимание, что дом должен быть в неоклассическом стиле – так называемом «сталинском ампире». Мы с самого начала с Евгением Львовичем (Герасимовым – К.С.) договорились, что это должна быть такая честная, качественная, породистая архитектура. И наш дом оказывается редким исключением, когда посторойка в точности соответствует задумке и первым эскизам», – подчеркнул Селиванов.

Желание заказчика совпало с видением архитектора. «Мы как-то вместе сразу увидели дом, – говорит Евгений Герасимов. – Для нас было очевидно, что Московский район, который в представлении многих ассоциируется со сталинской архитектурой – одно из самых удачных мест для переосмысления ее стилистики. Сложность и, с другой стороны, творческая задача состояла в том, чтобы сделать сталинский дом тринадцатиэтажной высоты».
Дом на ул. Победы, 5. Архитектор «Евгений Герасимов и партнеры». 2014. Фотография предоставлена LEGENDA Intelligent Development
Дом на ул. Победы, 5. Архитектор «Евгений Герасимов и партнеры». 2014. Фотография предоставлена LEGENDA Intelligent Development
Дом на ул. Победы, 5. Архитектор «Евгений Герасимов и партнеры». 2014. Фотография предоставлена LEGENDA Intelligent Development
Дом на ул. Победы, 5. Архитектор «Евгений Герасимов и партнеры». 2014. Фотография предоставлена LEGENDA Intelligent Development

Для бюро Евгения Герасимова это первый опыт работы с компанией Legenda Development, однако проекты в исторических стилях бюро делает не впервые. «Основанная на ордерной системе традиционная архитектура, в противовес модернистской, составляет значительную часть нашей творческой деятельности. Мне, как руководителю компании, и архитекторам, которые со мной работают, интересно проводить поиск в обоих направлениях: как в области современного формообразовании, так и в части переосмысления исторического наследия», – поясняет архитектор свою позицию.

Говоря об особенностях дома, Василий Селиванов упомянул о необходимой для жилья элитного сегмента дизайнерской и планировочной свободе, которая достигается отсутствием в квартирах несущих стен: вся нагрузка здания ложится на ребра жесткости. Однако «квартирография» дома позволяет избежать перепланировок – проектом предусмотрено 16 типов и подтипов решений для квартир.

Особое внимание создатели дома уделили деталям как снаружи, так и внутри. Люстра входного холла, по словам Василия Селиванова – «настоящий кусочек истории», ее спасли из здания ДК имени Первой Пятилетки, снесенного для строительства второй сцены Мариинского театра. В это время архитекторы работали с эскизами интерьеров дома и специально для большой люстры из ДК спроектировали вестибюль высоким, двусветным.

Говоря об итогах двухлетней работы, Евгений Герасимов особое внимание уделяет качеству. «Мы говорим, что архитектура может быть разной, но качество – это то, что нам нужно, чего нам сегодня не хватает, а вопрос стиля можно считать вторым. Всё имеет право на жизнь, главное, чтобы, работая с любыми стилями, мы стремились к максимальному качеству. Здесь его можно ощутить буквально: вот стойка ресепшена, вот почтовые ящики, вот двери, вот лифты, вот люстра, вот витражи работы выпускников Академии Художеств под руководством Андрея Журавлева, вот скульптура, опять-таки, выпускника академии Влада Маначинского. Это не имитация: настоящее дерево, камень, латунь. Посмотрите на цоколь, который делался сначала на станках, потом вручную. Каждый камень неповторим».
Дом на ул. Победы, 5. Архитектор «Евгений Герасимов и партнеры». 2014. Фотография предоставлена LEGENDA Intelligent Development
Дом на ул. Победы, 5. Архитектор «Евгений Герасимов и партнеры». 2014. Фотография предоставлена LEGENDA Intelligent Development

Даже название дома вписывается в общую респектабельную стилистику. Девелоперы намеренно не стали придумывать для проекта дополнительное экстра-имя, как это принято сегодня на рынке недвижимости, оставив в качестве риелторского названия адрес. «Адрес, который есть, уже лучше не придумать – улица Победы, дом 5. Все этим задается. Есть в городе Адреса и мы надеемся, что это тоже станет адресом с большой буквы», говорит Селиванов. «Дом на улице Победы, тема победы, именно в ее античной транскрипции, геральдика Древнего Рима, тот синтез искусств, который мы видим – это и цвет, и скульптура, это и шрифты, всё здесь сошлось», – добавляет Евгений Герасимов.
Дом на ул. Победы, 5. Архитектор «Евгений Герасимов и партнеры». 2014. Фотография предоставлена LEGENDA Intelligent Development
Дом на ул. Победы, 5. Архитектор «Евгений Герасимов и партнеры». 2014. Фотография предоставлена LEGENDA Intelligent Development
Вестибюль со стойкой консьержа. Дом на ул. Победы, 5 © Евгений Герасимов и партнеры
Вестибюль со стойкой консьержа. Дом на ул. Победы, 5 © Евгений Герасимов и партнеры
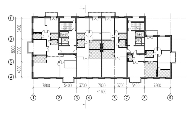
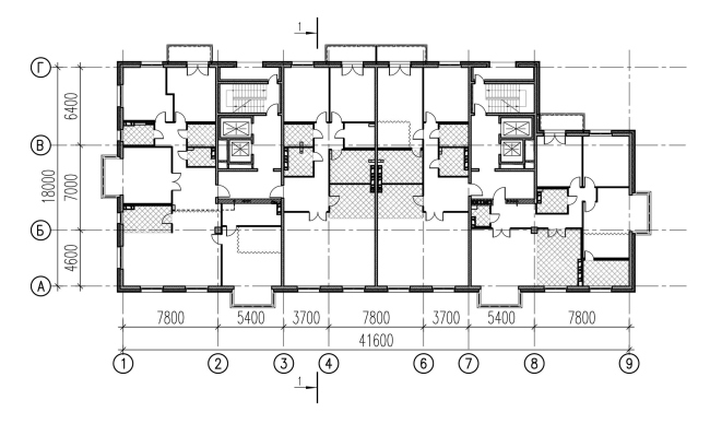
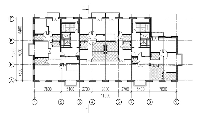
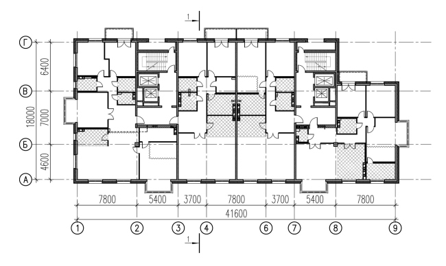
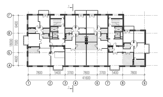
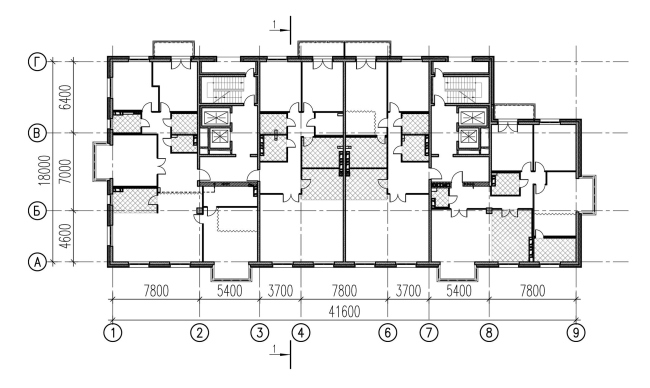
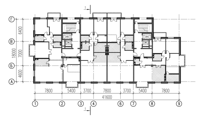
План типового этажа.  Дом на ул. Победы, 5 © Евгений Герасимов и партнеры
План типового этажа. Дом на ул. Победы, 5 © Евгений Герасимов и партнеры
Эскиз интерьера вестибюля. Дом на ул. Победы, 5 © Евгений Герасимов и партнеры
Эскиз интерьера вестибюля. Дом на ул. Победы, 5 © Евгений Герасимов и партнеры
Дом на ул. Победы, 5. Архитектор «Евгений Герасимов и партнеры». 2014. Фотография предоставлена LEGENDA Intelligent Development
Дом на ул. Победы, 5. Архитектор «Евгений Герасимов и партнеры». 2014. Фотография предоставлена LEGENDA Intelligent Development
Дом на ул. Победы, 5. Архитектор «Евгений Герасимов и партнеры». 2014. Фотография предоставлена Legenda Development
Дом на ул. Победы, 5. Архитектор «Евгений Герасимов и партнеры». 2014. Фотография предоставлена Legenda Development
Дом на ул. Победы, 5. Архитектор «Евгений Герасимов и партнеры». 2014. Фотография предоставлена LEGENDA Intelligent Development
Дом на ул. Победы, 5. Архитектор «Евгений Герасимов и партнеры». 2014. Фотография предоставлена LEGENDA Intelligent Development
Дом на ул. Победы, 5. Архитектор «Евгений Герасимов и партнеры». 2014. Фотография предоставлена LEGENDA Intelligent Development
Дом на ул. Победы, 5. Архитектор «Евгений Герасимов и партнеры». 2014. Фотография предоставлена LEGENDA Intelligent Development