Размещено на портале Архи.ру (www.archi.ru)

17.02.2015

Размышление на тему Запада

Нина Фролова
Объект:
Музей Occidens
Адрес:
Испания, None, Памплона.
Мастерская:
Vaillo+Irigaray

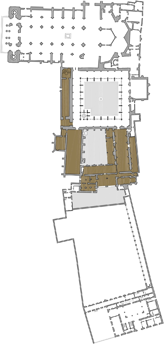
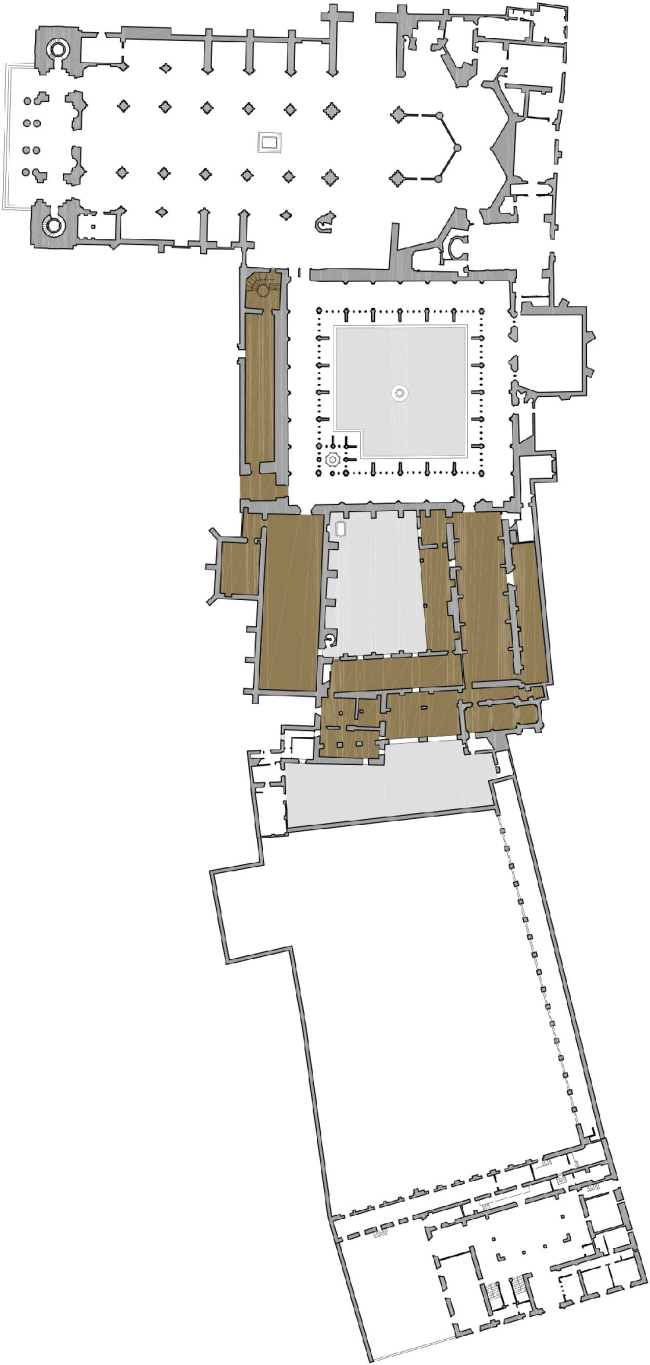
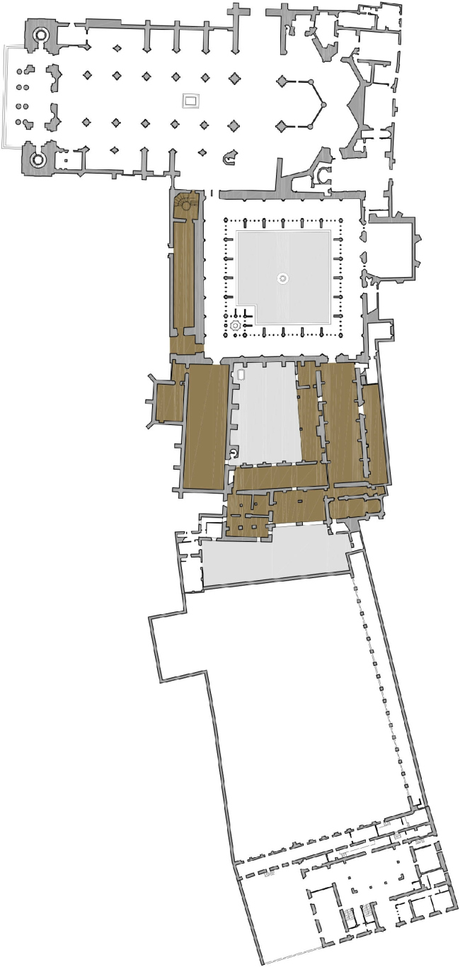
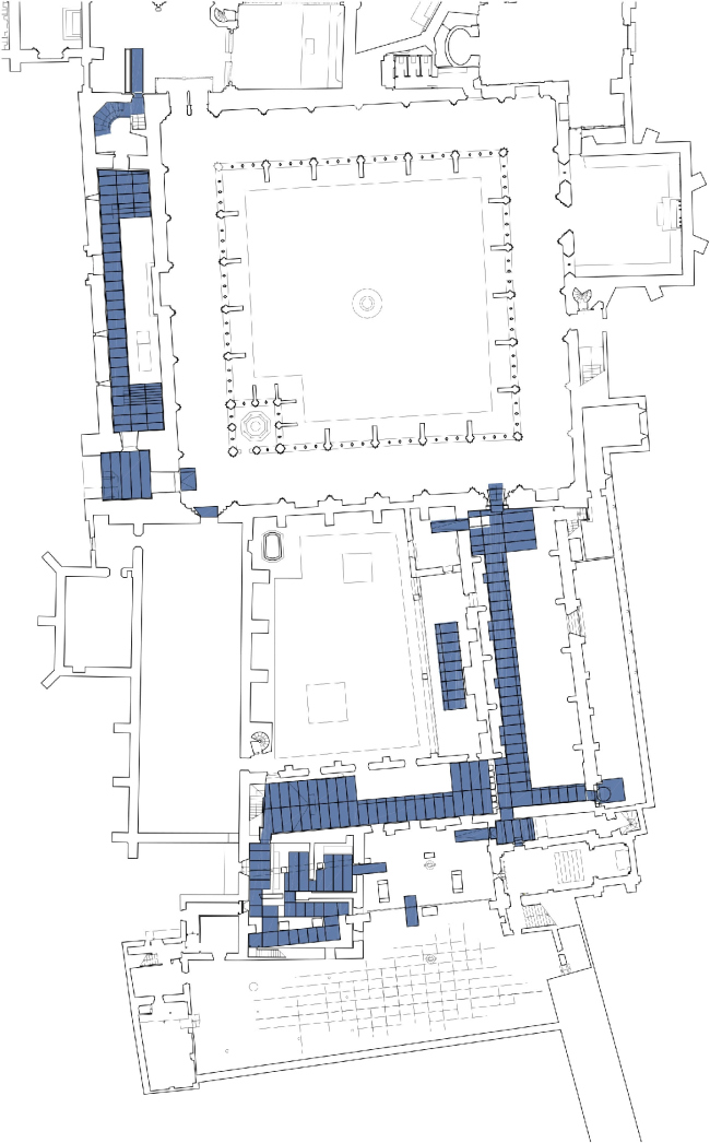
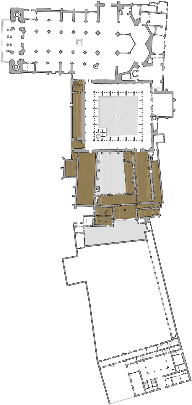
Музей Occidens в соборе Памплоны на севере Испании по проекту Vaillo+Irigaray Architects.

Музей Occidens © Rubén P. Bescós
 www.rubenpb.com
Музей Occidens © Rubén P. Bescós www.rubenpb.com

Музей, получивший в 2014 специальную премию от Европейского музейного форума в рамках European Museum of the Year Award – не совсем обычный представитель этого типа учреждения. По сути – это постоянная экспозиция музея местного диоцеза, осторожно встроенная в кафедральный собор. Новые компоненты, разработанные Vaillo+Irigaray Architects вплоть до графического дизайна, существуют в диалоге с разновременными частями сооружения, вплоть до находящихся в границах его стен фундаментах построек II века до н.э.
 
Музей Occidens © Rubén P. Bescós
 www.rubenpb.com
Музей Occidens © Rubén P. Bescós www.rubenpb.com

При этом экспозиция посвящена не религиозному искусству, что можно было бы ожидать при заказчике – Памплонской архиепархии, а Западу, но не как географическому понятию или цивилизации, а «территории сознания, горизонте человечества, основанном на понятиях свободы, солидарности и человеческого достоинства». Экспозиция охватывает несколько «корневых» цивилизаций, из которых выросло знакомое нам понятие Запада – античную, иудейскую, германскую, прослеживает его формирование в Средние века и расцвет в Новое время. Не забыты и западные достижения – демократия, критический рационализм, основанное на главенстве закона государство, основанная на частной собственности свободная экономика, свобода совести, права человека… Однако в финале задается вопрос: и что теперь? Как мы встретим будущее?
 
Музей Occidens © Rubén P. Bescós
 www.rubenpb.com
Музей Occidens © Rubén P. Bescós www.rubenpb.com

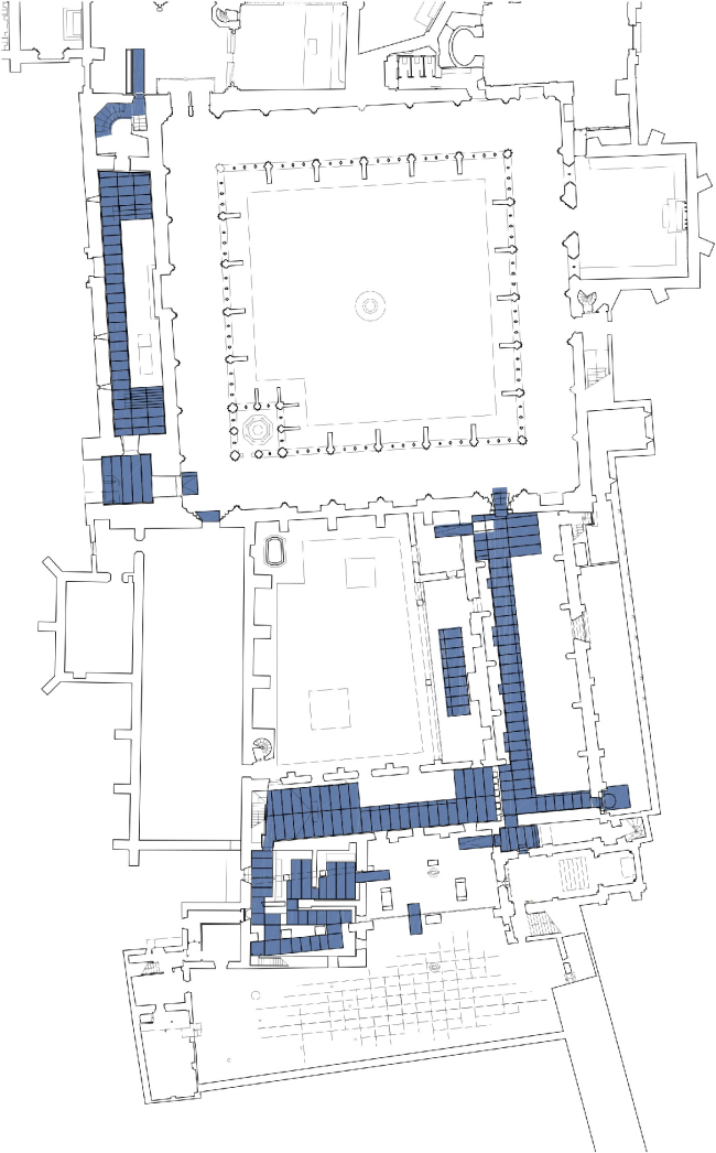
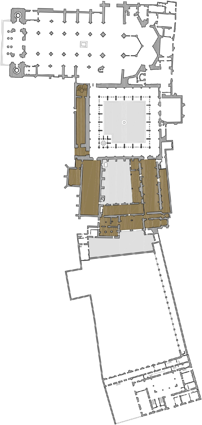
Единство экспозиции, ведущей зрителя сквозь разные помещения и разные эпохи, архитекторы подчеркнули с помощью пластин из черной стали толщиной в 1 сантиметр. Они выступают то в виде мостика или вымостки, то витрины или скамьи; в них пробиты тексты, там же установлено освещение. Проект бережно относится к тысячелетним сооружениям, с которыми он соседствует (кроме ныне существующего собора, строившегося с XIV по XVIII век, сохранились остатки романского дворца XI, архиепископской резиденции XII столетий и готического дворца архидиакона XIV–XVI вв.) и почти к ним не «прикасается».
Музей Occidens © Rubén P. Bescós
 www.rubenpb.com
Музей Occidens © Rubén P. Bescós www.rubenpb.com

Сама же идея выставки схожа с кинематографом: повествование строится на смене кадров и разных уровней прочтения – знаках, образах, объектах, звуках, текстах, видеопроекциях, кодах, запахах.



 
Музей Occidens © Rubén P. Bescós
 www.rubenpb.com
Музей Occidens © Rubén P. Bescós www.rubenpb.com
Музей Occidens © Rubén P. Bescós
 www.rubenpb.com
Музей Occidens © Rubén P. Bescós www.rubenpb.com
Музей Occidens © Rubén P. Bescós
 www.rubenpb.com
Музей Occidens © Rubén P. Bescós www.rubenpb.com
Музей Occidens © Rubén P. Bescós
 www.rubenpb.com
Музей Occidens © Rubén P. Bescós www.rubenpb.com
Музей Occidens © Rubén P. Bescós
 www.rubenpb.com
Музей Occidens © Rubén P. Bescós www.rubenpb.com
Музей Occidens © Rubén P. Bescós
 www.rubenpb.com
Музей Occidens © Rubén P. Bescós www.rubenpb.com
Музей Occidens © Rubén P. Bescós
 www.rubenpb.com
Музей Occidens © Rubén P. Bescós www.rubenpb.com
Музей Occidens © Rubén P. Bescós
 www.rubenpb.com
Музей Occidens © Rubén P. Bescós www.rubenpb.com
Музей Occidens © Rubén P. Bescós
 www.rubenpb.com
Музей Occidens © Rubén P. Bescós www.rubenpb.com
Музей Occidens © Rubén P. Bescós
 www.rubenpb.com
Музей Occidens © Rubén P. Bescós www.rubenpb.com
Музей Occidens © Rubén P. Bescós
 www.rubenpb.com
Музей Occidens © Rubén P. Bescós www.rubenpb.com
Музей Occidens © Rubén P. Bescós
 www.rubenpb.com
Музей Occidens © Rubén P. Bescós www.rubenpb.com
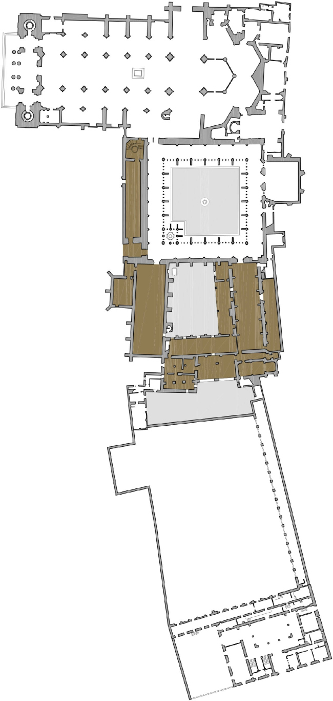
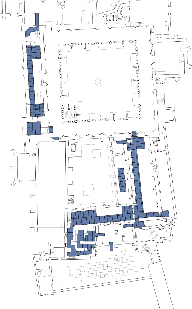
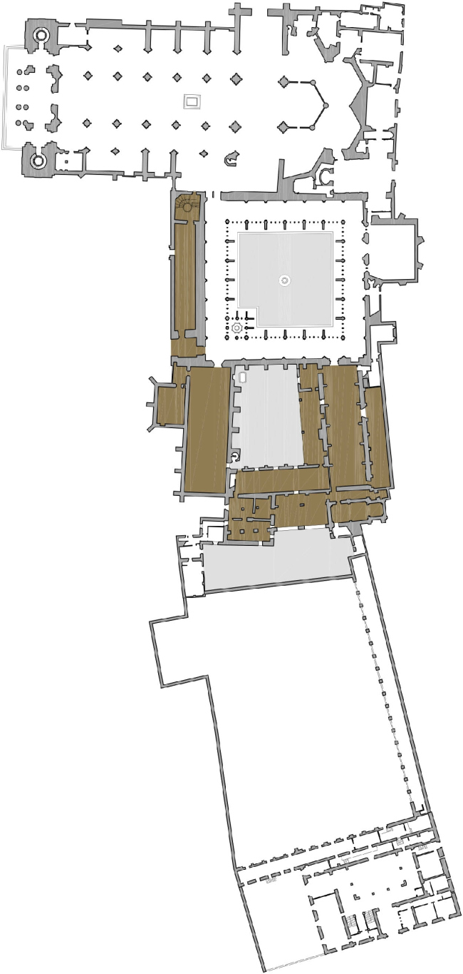
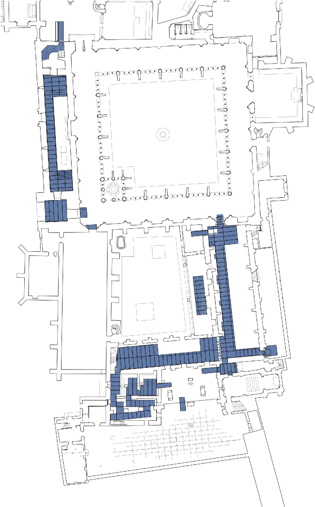
Музей Occidens © Vaillo+Irigaray Architects
Музей Occidens © Vaillo+Irigaray Architects
Музей Occidens © Vaillo+Irigaray Architects
Музей Occidens © Vaillo+Irigaray Architects
Музей Occidens © Vaillo+Irigaray Architects
Музей Occidens © Vaillo+Irigaray Architects
Музей Occidens © Vaillo+Irigaray Architects
Музей Occidens © Vaillo+Irigaray Architects
Музей Occidens © Vaillo+Irigaray Architects
Музей Occidens © Vaillo+Irigaray Architects
Музей Occidens © Vaillo+Irigaray Architects
Музей Occidens © Vaillo+Irigaray Architects
Музей Occidens © Vaillo+Irigaray Architects
Музей Occidens © Vaillo+Irigaray Architects