Размещено на портале Архи.ру (www.archi.ru)

12.02.2015

«Спортмастер» и «O’stin»: второй тур

Объект:
Конкурсная концепция штаб-квартир компаний «Спортмастер» и «O′stin»
Адрес:
Россия, Москва. 3-я Магистральная ул., 18
Конкурсная концепция штаб-квартир компаний «Спортмастер» и «O′stin»
Адрес:
Россия, Москва. 3-я Магистральная ул., 18
Конкурсная концепция штаб-квартир компаний «Спортмастер» и «O′stin»
Адрес:
Россия, Москва. 3-я Магистральная ул., 18
Авторский коллектив:
Георгий Тюгаев, Александр Никульшин

Еще раз возвращаясь к проектам конкурса на штаб-квартиры компаний «Спортмастер» и «O′stin», показываем доработанные во втором туре проекты всех трех финалистов.

Конкурс был запущен в сентябре 2014 года, в декабре жюри объявило промежуточные результаты и отправило проекты трех финалистов на доработку. В начале февраля организаторы объявили победителя конкурса и обнародовали три итоговых проекта. Публикуем итоговый рейтинг финалистов.

Участок проектирования (3-я Магистральная ул., 18) расположен в полутора километрах от Москвы-Сити, рядом со Звенигородским шоссе, и окружен промзоной «Магистральных улиц». Рядом – железнодорожна станция «Пресня-товарная». 

***
 
Первое место
ТПО «Резерв» (Россия)
Авторский коллектив: Владимир Плоткин, Елена Кузнецова, Юрий Фадеев, Александра Догадкина, Дмитрий Масаков. Менеджер проекта Вадим Семенов. Макет Евгения Михайлова
Концепции штаб-квартир компаний «Спортмастер» и «O’stin». Авторы: ТПО «Резерв»
Концепции штаб-квартир компаний «Спортмастер» и «O’stin». Авторы: ТПО «Резерв»

Идея превратить логотипы компаний «Спортмастер» и ‘O’stin’ в прообразы одновременно объемно-пространственного решения зданий их офисов и рисунка фасадов – проста, лаконична и элегантна. Достаточно посмотреть на эскизы поисков «формы и образа» и многое становится понятно: динамика объемов, повторяемость элементов и тонко продуманные ритмические акценты. Стилизованный бегущий человек задал систему координат для «взлетающих» объемов «Спортмастера», а вот буквенный логотип «O′stin» сформулировал строгий прямоугольный объем второго блока, останавливающий стремительное движение своего vis-à-vis. Несложно заметить, что по сравнению с проектом первого тура объем офиса «Спортмастера» несколько изменился: если раньше в его нижней части можно было увидеть фигуру, почти буквально похожую на логотип компании, то теперь образу бегущего человека уподоблено все здание в целом: кажется, что решетчатый верх скользит по пандусу стеклянного низа.

Те же базовые, заимствованные из логотипов формы: стилизованные ноги бегущего человека «Спормастера» и красная точка ‘O’stin’ – стали основой для орнамента, покрывающего фасады – рисунки взаимопроникают и отражаются, превращая материю стен в подвижную декорацию, которая изменяется по ходу движения зрителя. Фирменная стилистика, как это и принято в подобных случаях, также активно использована в оформлении внутренних пространств.

Два корпуса разделены проездом 1 Магистрального тупика, главные входы расположены друг напротив друга и разделены пятьюдесятью восемью метрами уличного пространства. Подъезды для большегрузного транспорта, наоборот, скрыты от глаз и не мешают восприятию фасадов.
Определение ассоциативного ряда бренда. Концепции штаб-квартир компаний «Спортмастер» и «O’stin». Авторы: ТПО «Резерв»
Определение ассоциативного ряда бренда. Концепции штаб-квартир компаний «Спортмастер» и «O’stin». Авторы: ТПО «Резерв»
Эскиз-заставка хорошо демонстрирует взаимосвязанность двух объемов. Концепции штаб-квартир компаний «Спортмастер» и «O’stin». Авторы: ТПО «Резерв»
Эскиз-заставка хорошо демонстрирует взаимосвязанность двух объемов. Концепции штаб-квартир компаний «Спортмастер» и «O’stin». Авторы: ТПО «Резерв»
Концепции штаб-квартир компаний «Спортмастер» и «O’stin». Авторы: ТПО «Резерв»
Концепции штаб-квартир компаний «Спортмастер» и «O’stin». Авторы: ТПО «Резерв»
Концепции штаб-квартир компаний «Спортмастер» и «O’stin». Авторы: ТПО «Резерв»
Концепции штаб-квартир компаний «Спортмастер» и «O’stin». Авторы: ТПО «Резерв»
Концепции штаб-квартир компаний «Спортмастер» и «O’stin». Авторы: ТПО «Резерв»
Концепции штаб-квартир компаний «Спортмастер» и «O’stin». Авторы: ТПО «Резерв»
Концепции штаб-квартир компаний «Спортмастер» и «O’stin». Авторы: ТПО «Резерв»
Концепции штаб-квартир компаний «Спортмастер» и «O’stin». Авторы: ТПО «Резерв»
Концепции штаб-квартир компаний «Спортмастер» и «O’stin». Авторы: ТПО «Резерв»
Концепции штаб-квартир компаний «Спортмастер» и «O’stin». Авторы: ТПО «Резерв»
Планы типовых офисных этажей (7 этаж). Концепции штаб-квартир компаний «Спортмастер» и «O’stin». Авторы: ТПО «Резерв»
Планы типовых офисных этажей (7 этаж). Концепции штаб-квартир компаний «Спортмастер» и «O’stin». Авторы: ТПО «Резерв»
Жюри особенно впечатлил макет комплекса. Концепции штаб-квартир компаний «Спортмастер» и «O’stin». Фотография © ТПО «Резерв», Юрий Фадеев
Жюри особенно впечатлил макет комплекса. Концепции штаб-квартир компаний «Спортмастер» и «O’stin». Фотография © ТПО «Резерв», Юрий Фадеев
Макет. Концепции штаб-квартир компаний «Спортмастер» и «O’stin». Фотография © ТПО «Резерв», Юрий Фадеев
Макет. Концепции штаб-квартир компаний «Спортмастер» и «O’stin». Фотография © ТПО «Резерв», Юрий Фадеев
Макет. Концепции штаб-квартир компаний «Спортмастер» и «O’stin». Фотография © ТПО «Резерв», Юрий Фадеев
Макет. Концепции штаб-квартир компаний «Спортмастер» и «O’stin». Фотография © ТПО «Резерв», Юрий Фадеев
Макет. Концепции штаб-квартир компаний «Спортмастер» и «O’stin». Фотография © ТПО «Резерв», Юрий Фадеев
Макет. Концепции штаб-квартир компаний «Спортмастер» и «O’stin». Фотография © ТПО «Резерв», Юрий Фадеев
Макет. Концепции штаб-квартир компаний «Спортмастер» и «O’stin». Фотография © ТПО «Резерв», Юрий Фадеев
Макет. Концепции штаб-квартир компаний «Спортмастер» и «O’stin». Фотография © ТПО «Резерв», Юрий Фадеев
Концепции штаб-квартир компаний «Спортмастер» и «O’stin». Авторы: ТПО «Резерв»
Концепции штаб-квартир компаний «Спортмастер» и «O’stin». Авторы: ТПО «Резерв»
Концепции штаб-квартир компаний «Спортмастер» и «O’stin». Авторы: ТПО «Резерв»
Концепции штаб-квартир компаний «Спортмастер» и «O’stin». Авторы: ТПО «Резерв»
Концепции штаб-квартир компаний «Спортмастер» и «O’stin». Авторы: ТПО «Резерв»
Концепции штаб-квартир компаний «Спортмастер» и «O’stin». Авторы: ТПО «Резерв»
Концепции штаб-квартир компаний «Спортмастер» и «O’stin». Авторы: ТПО «Резерв»
Концепции штаб-квартир компаний «Спортмастер» и «O’stin». Авторы: ТПО «Резерв»

 
***
 
Второе место
UNK project (Россия)
Руководитель авторского коллектива Юлий Борисов, ГАП А. Шмелев, руководитель проекта К. Акатов; архитекторы Т. Шмелева, Г. Хамзина, Н. Сакс, О. Полеткина, Л. Маттана, А. Луконская; 3D визуализаторы: С. Дюкарев, А. Юреско
Концепции штаб-квартир компаний «Спортмастер» и «O’stin». Авторы: UNK project
Концепции штаб-квартир компаний «Спортмастер» и «O’stin». Авторы: UNK project

Два наклонных, слегка ограненных стеклянных параллелепипеда стали, по замыслу архитекторов, образным воплощением динамики успешного развития компаний, их согласованного целенаправленного движения вперед.

Динамика композиции усилена тем, что четко структурированные внешне и внутренне офисные блоки подняты на V-образных опорах не на стилобатную часть, а выше, над ней. Что формирует дополнительные панорамные виды, которые позволяют интенсивно интегрировать новый комплекс в прилегающие городские пространства. На ту же идею работает и панорамное остекление, с одной стороны, растворяя вновь возникающие объемы в привычных городских ландшафтах, с другой, втягивая эти самые ландшафты в офисные интерьеры – согласно замыслу авторов, ансамбль должен задать вектор дальнейшего развития территории.
Концепции штаб-квартир компаний «Спортмастер» и «O’stin». Авторы: UNK project
Концепции штаб-квартир компаний «Спортмастер» и «O’stin». Авторы: UNK project
Концепции штаб-квартир компаний «Спортмастер» и «O’stin». Авторы: UNK project
Концепции штаб-квартир компаний «Спортмастер» и «O’stin». Авторы: UNK project
Концепции штаб-квартир компаний «Спортмастер» и «O’stin». Авторы: UNK project
Концепции штаб-квартир компаний «Спортмастер» и «O’stin». Авторы: UNK project
Концепции штаб-квартир компаний «Спортмастер» и «O’stin». Авторы: UNK project
Концепции штаб-квартир компаний «Спортмастер» и «O’stin». Авторы: UNK project
Концепции штаб-квартир компаний «Спортмастер» и «O’stin». Авторы: UNK project
Концепции штаб-квартир компаний «Спортмастер» и «O’stin». Авторы: UNK project
***
 
Третье место
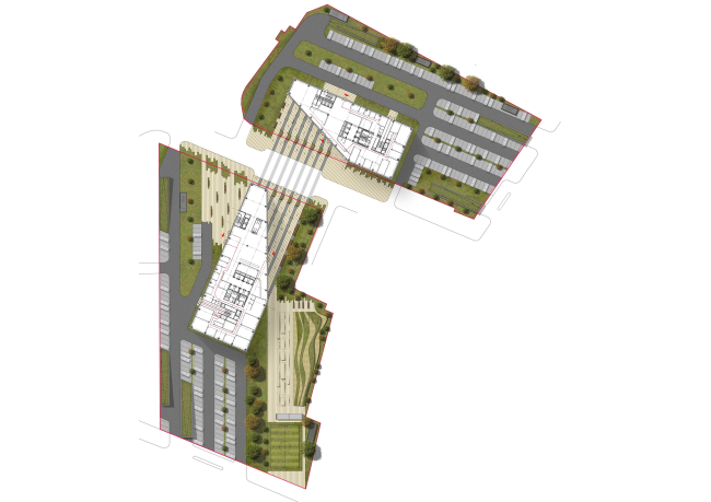
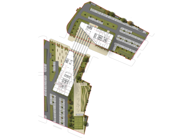
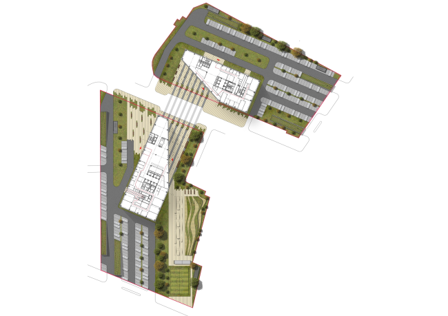
Aukett Swanke (Великобритания, московский филиал)
Авторский коллектив: Георгий Тюгаев, Александр Никульшин
Концепции штаб-квартир компаний «Спортмастер» и «O’stin». Авторы: Aukett Swanke
Концепции штаб-квартир компаний «Спортмастер» и «O’stin». Авторы: Aukett Swanke

Две тонкие пластины фланкируют панораму московского Сити. При вечернем освещении впечатление усиливается: лицевые поверхности пластин остаются холодно-серыми, торцевые же светятся теплым розовато-желтым светом.

При приближении становится очевидно, что здесь работают не две пластины, а пара почти идентичных трапециевидных в плане объемов, решенных как две половинки целого. Так формализуется визуальный образ единого бизнеса, разделенного на две части для более эффективного управления. А ключевые элементы концепции – зауженные торцы, те самые, что превращаются в светящуюся рамку предрассветных панорам, и внутренние фасады-витрины, углы которых подсечены. Что позволяет избежать эффекта «коробок» и скрыть за узкими «гранями» реальный объем зданий.
Концепции штаб-квартир компаний «Спортмастер» и «O’stin». Авторы: Aukett Swanke
Концепции штаб-квартир компаний «Спортмастер» и «O’stin». Авторы: Aukett Swanke
Концепции штаб-квартир компаний «Спортмастер» и «O’stin». Авторы: Aukett Swanke
Концепции штаб-квартир компаний «Спортмастер» и «O’stin». Авторы: Aukett Swanke
Концепции штаб-квартир компаний «Спортмастер» и «O’stin». Авторы: Aukett Swanke
Концепции штаб-квартир компаний «Спортмастер» и «O’stin». Авторы: Aukett Swanke
Концепции штаб-квартир компаний «Спортмастер» и «O’stin». Авторы: Aukett Swanke
Концепции штаб-квартир компаний «Спортмастер» и «O’stin». Авторы: Aukett Swanke
Концепции штаб-квартир компаний «Спортмастер» и «O’stin». Авторы: Aukett Swanke
Концепции штаб-квартир компаний «Спортмастер» и «O’stin». Авторы: Aukett Swanke
***
Жюри конкурса
  • Кузнецов Сергей Олегович, главный архитектор города Москвы, первый заместитель председателя Комитета по архитектуре и градостроительству города Москвы;
  • Гнездилов Андрей Леонидович, главный архитектор ГУП «Научно-исследовательский и проектный институт Генерального плана города Москвы»;
  • Чобан Сергей Энверович, руководящий партнер архитектурного бюро «SPEECH»
  • Надточий Антон Геннадьевич, главный архитектор бюро «Атриум»
  • Ляшенко Николай Георгиевич, руководитель и совладелец архитектурного бюро «Цимайло, Ляшенко & Партнёры»;
  • Артемьев Олег Владимирович, президент ООО «Высота Инжиниринг»;
  • Дойхен Дмитрий Юрьевич, председатель совета директоров ГК «Спортмастер»
  • Фартушняк Николай Алексеевич, президент ГК «Спортмастер»