Размещено на портале Архи.ру (www.archi.ru)

04.02.2015

В три приема

Нина Фролова
Объект:
Ратуша Утрехта
Адрес:
Нидерланды, None, Утрехт. Stadsplateau 1
Мастерская:
Kraaijvanger

Новая Ратуша в Утрехте спроектирована мастерской Kraaijvanger.

Ратуша Утрехта © Stijn Poelstra
Ратуша Утрехта © Stijn Poelstra

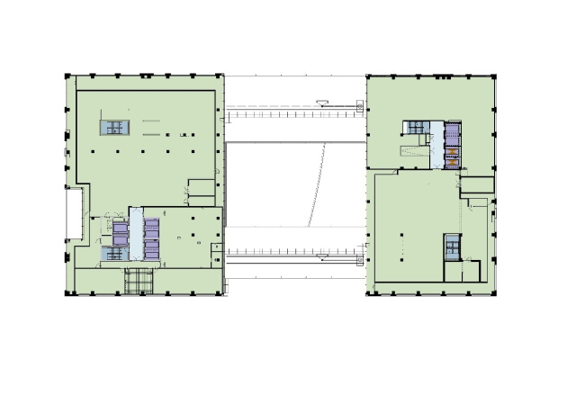
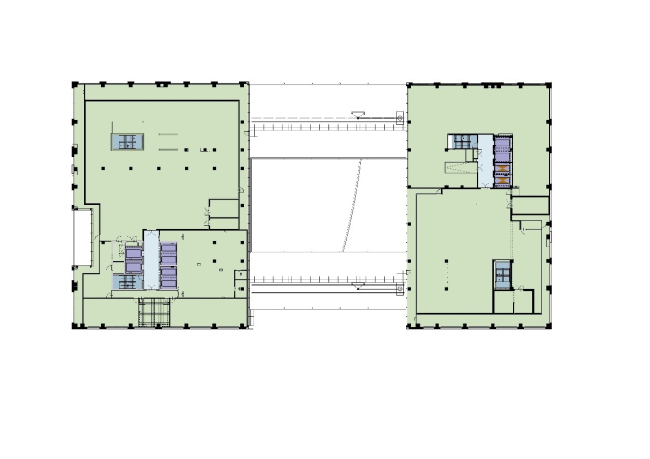
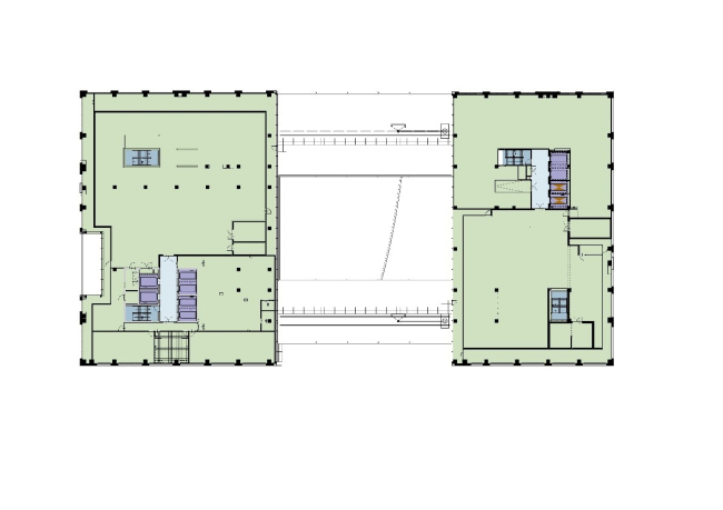
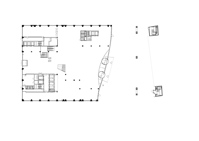
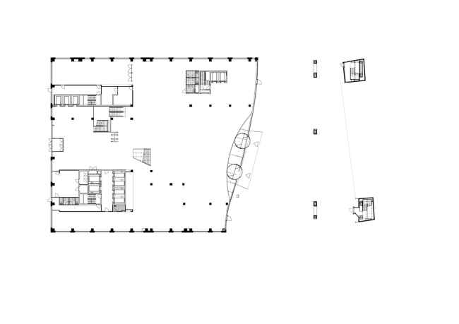
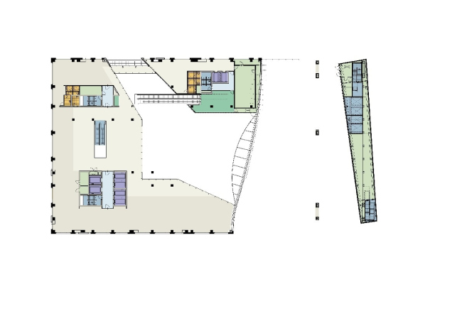
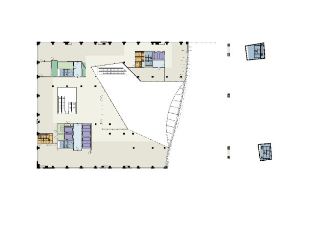
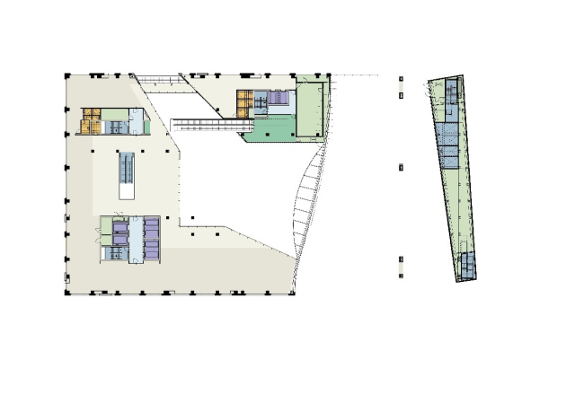
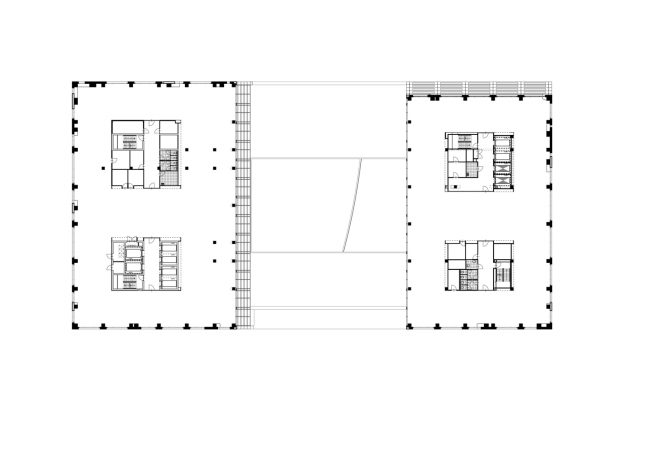
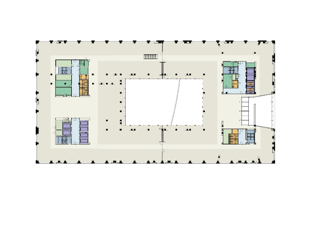
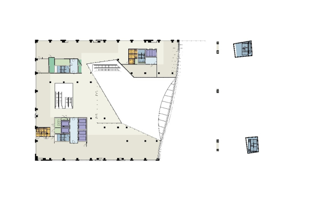
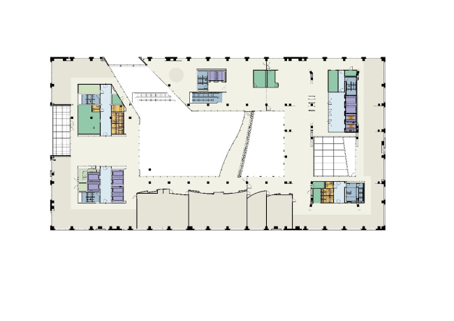
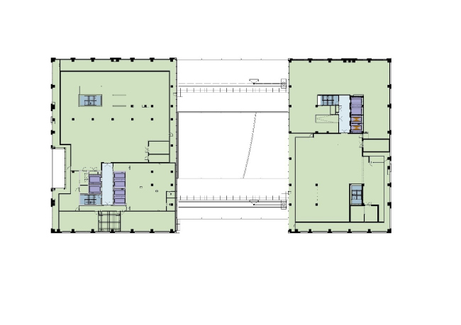
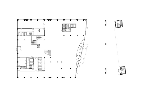
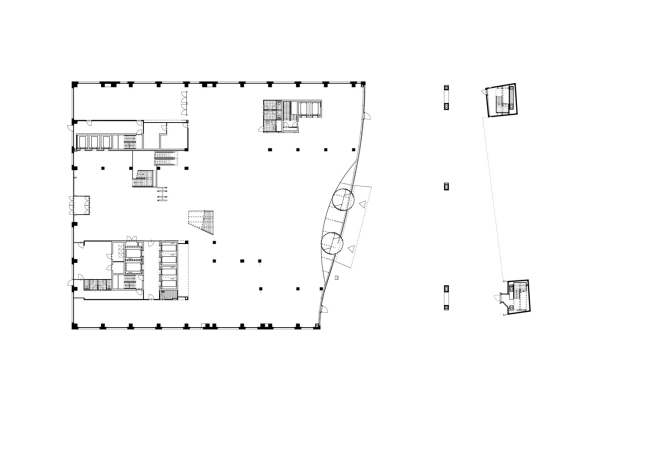
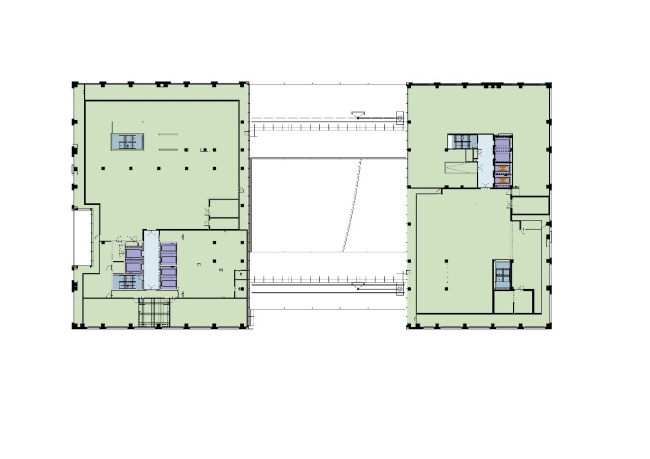
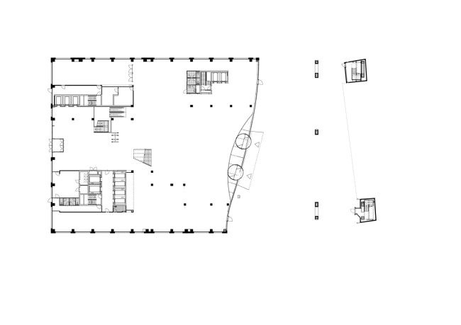
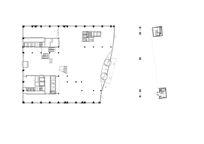
Здание общей площадью 64 000 м2 расположено в оживленной части города – рядом с городским вокзалом. Однако эта близость создала сложности для архитекторов: пространства там немного, поэтому Ратуша частично нависает над вокзалом, кроме того, оба эти здания должны были быть доступны с «плато», перекрывающего железнодорожные пути и платформы. Помимо этого, на уровне земли устроен пересадочный узел для автобусов и скоростного трамвая, который также пришлось «обходить» бюро Kraaijvanger.
 
Ратуша Утрехта © Stijn Poelstra
Ратуша Утрехта © Stijn Poelstra

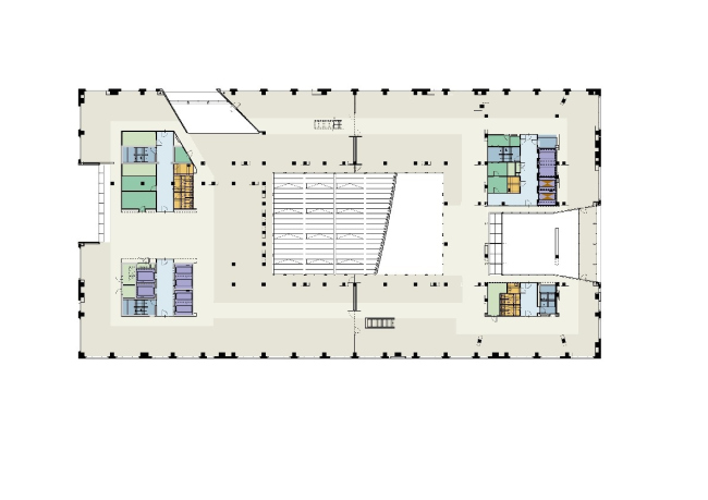
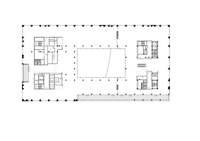
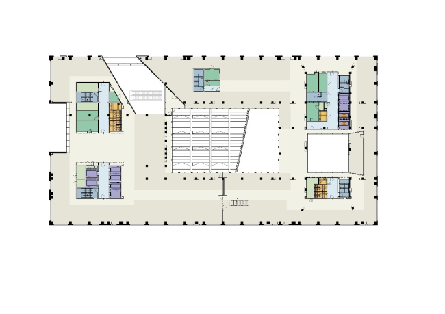
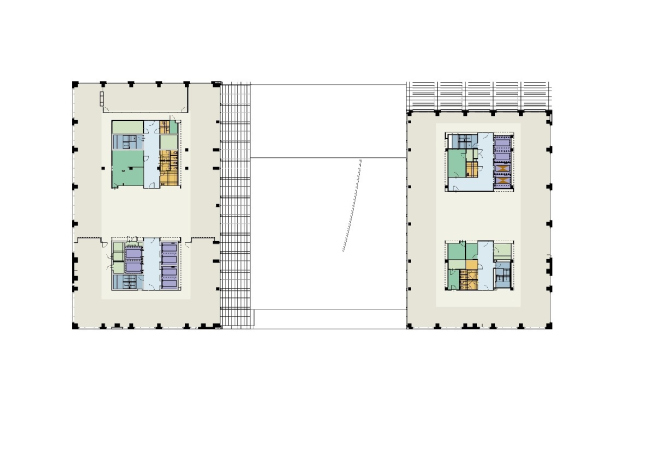
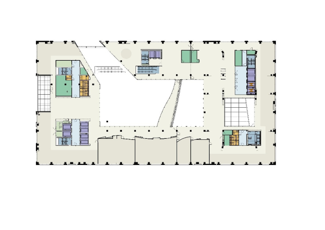
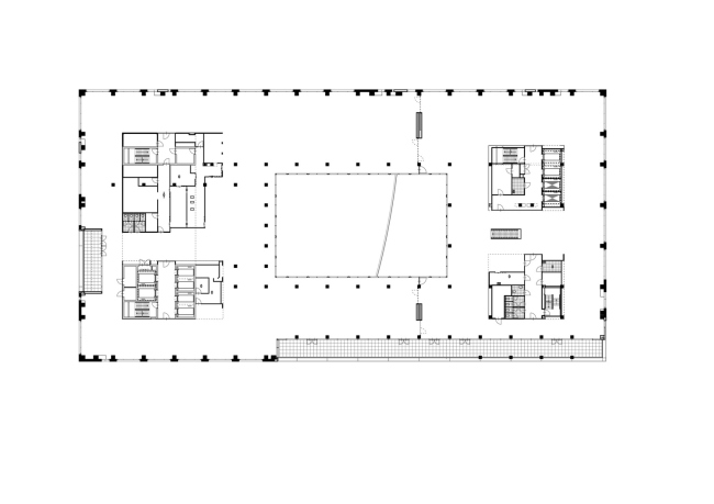
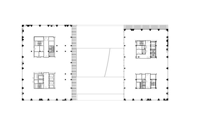
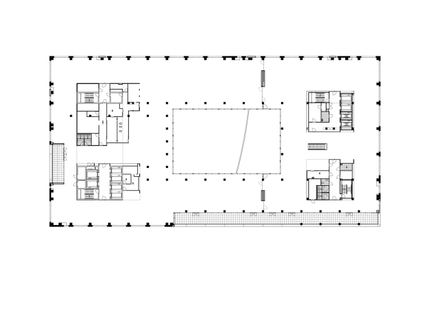
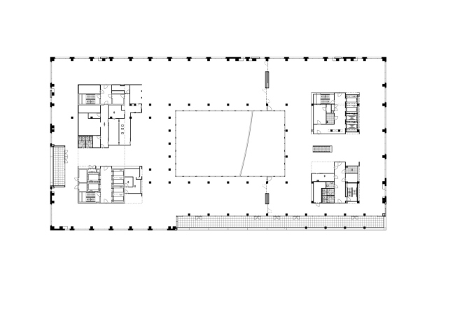
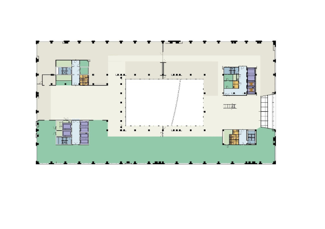
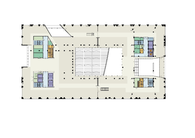
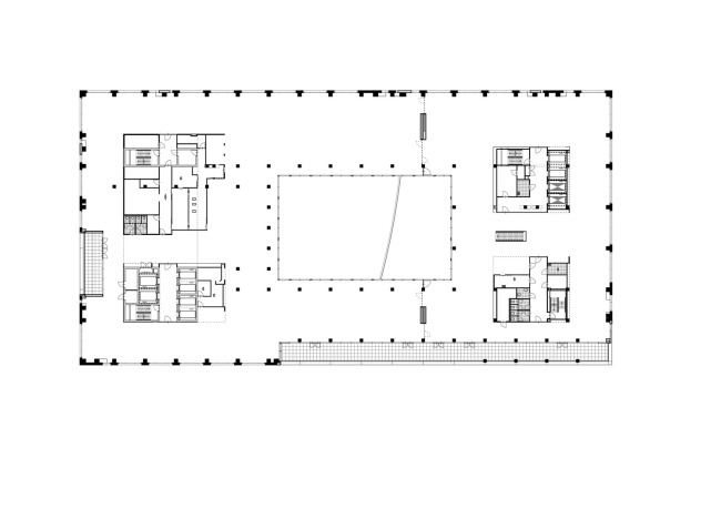
В результате, подиум здания утрехтского муниципалитета (это 3 нижних надземных яруса) занят паркингом и техническими помещениями, а над ним начинается общественная зона, сгруппированная вокруг атриума с вестибюлем. Главный вход в Ратушу устроен с поднятого на подиум «центрального бульвара», соединяющего две части города, разрезанные железнодорожными путями.
Ратуша Утрехта © Stijn Poelstra
Ратуша Утрехта © Stijn Poelstra

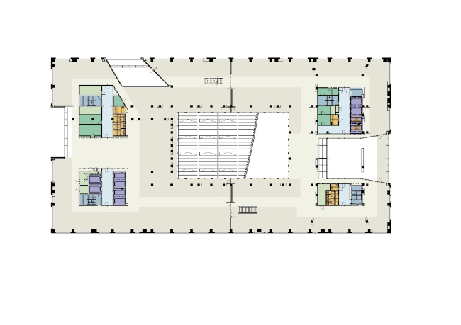
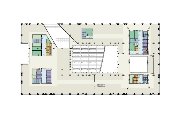
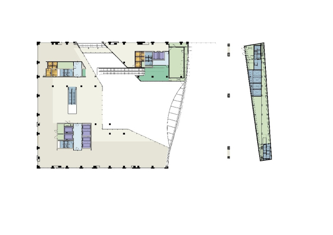
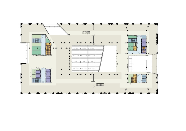
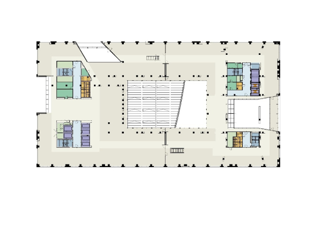
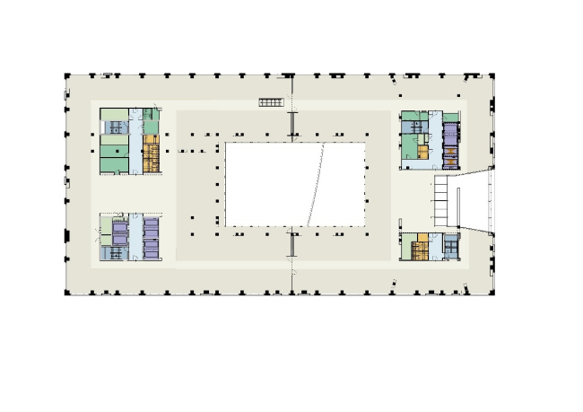
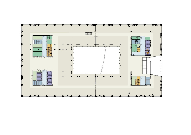
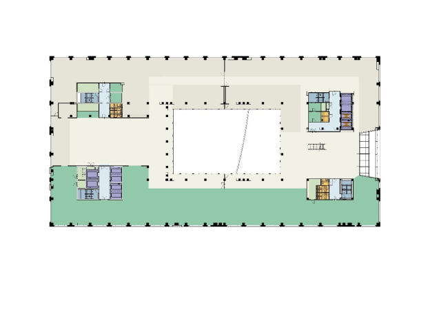
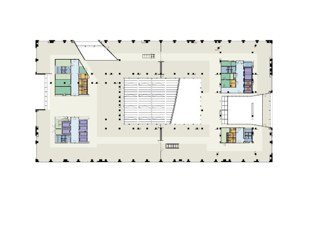
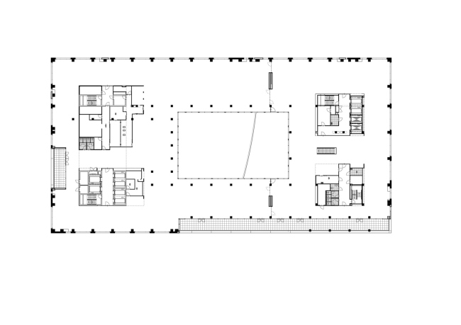
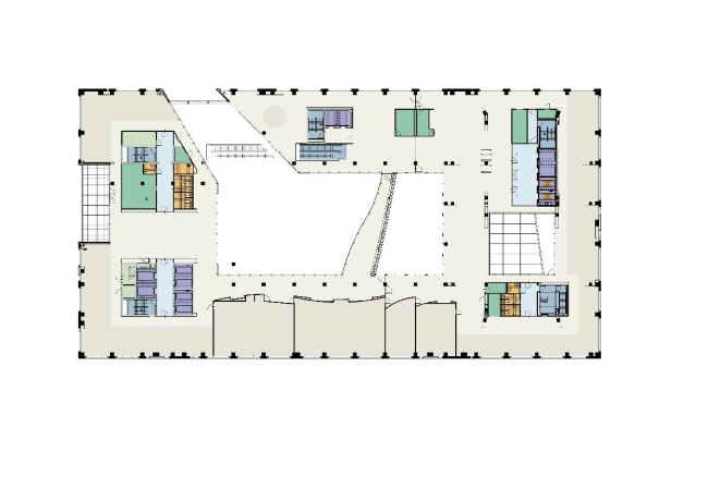
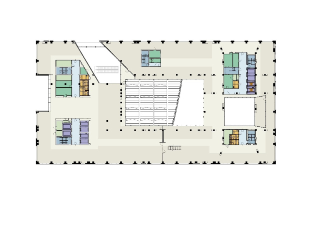
Пять общественных ярусов вокруг атриума чуть сдвинуты друг относительно друга, что создает дополнительные перспективы и оживляет пространство. Архитекторы стремились избежать ожидаемой ассоциации их масштабной постройки с «оплотом бюрократии», поэтому наполнили ее светом и визуально связали верхние, офисные этажи с открытыми горожанам нижние. Внизу также устроены зимний сад с субтропическими растениями и «окно» высотой в 4 этажа.
 
Ратуша Утрехта © Stijn Poelstra
Ратуша Утрехта © Stijn Poelstra

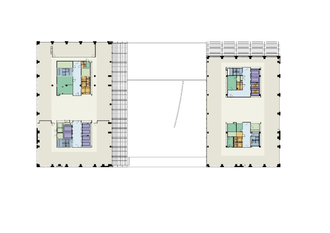
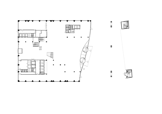
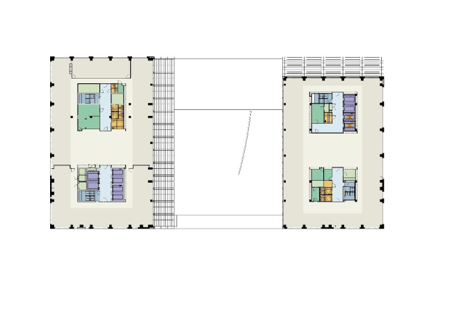
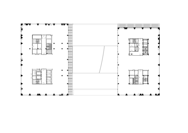
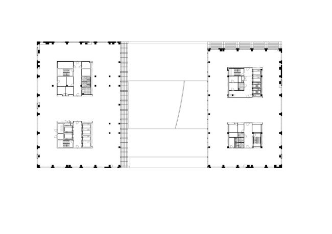
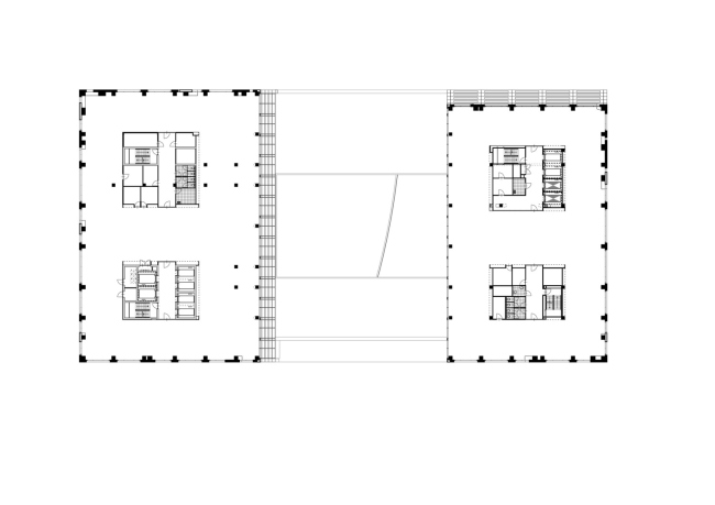
«Атриумная» часть постройки делит участок с вокзалом. Над ней помещен более широкий прямоугольный в плане «слой», который затем разделяется на две башни. Количество колонн намеренно уменьшено, так, южную башню поддерживают всего три опоры. Расчеркивающие фасады распоры оживляют их прямоугольную сетку.
 
Ратуша Утрехта © Stijn Poelstra
Ратуша Утрехта © Stijn Poelstra

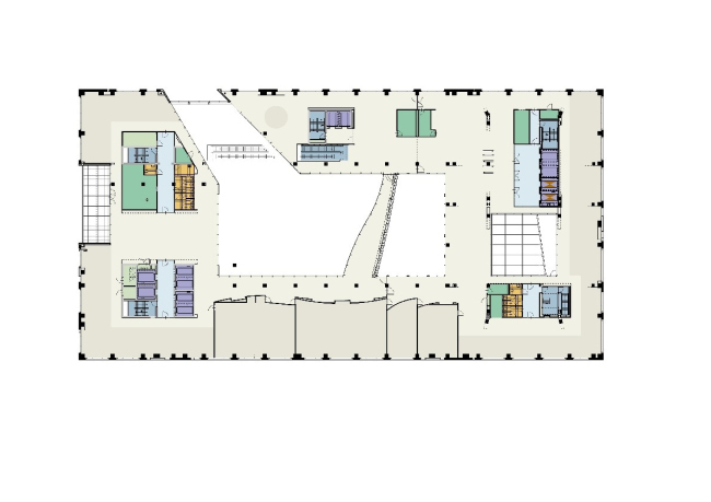
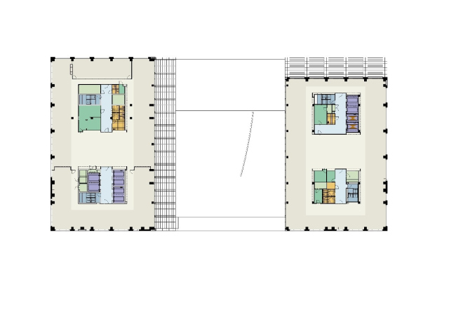
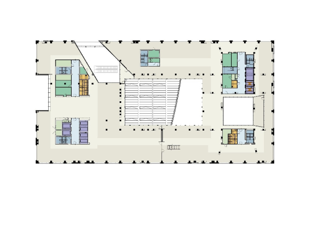
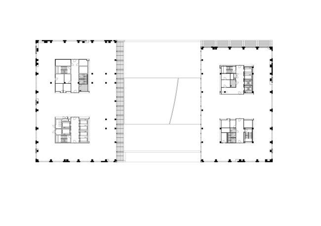
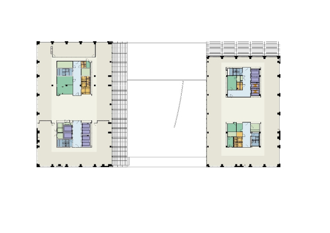
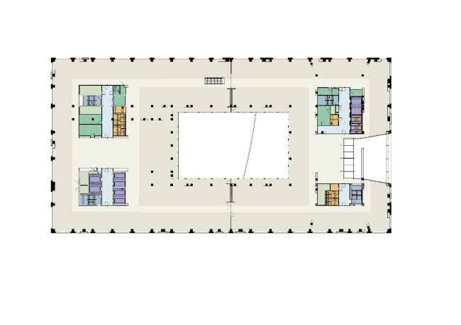
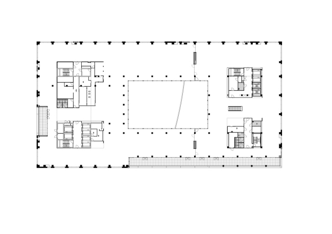
Глубокий план Ратуши потребовал устройства многочисленных «выемок», атриумов, внутренних дворов и общественных зон с повышенным потолками (на 6-м, 11-м и 21-м этажах), чтобы обеспечить все пространства естественным освещением. Получившаяся в итоге разной у каждого этажа планировка ломает привычное представление об административном здании как о череде безликих типовых этажей с такими же безликими чиновниками в бессчетных кабинетах.
 
Ратуша Утрехта © Stijn Poelstra
Ратуша Утрехта © Stijn Poelstra
Ратуша Утрехта © Stijn Poelstra
Ратуша Утрехта © Stijn Poelstra
Ратуша Утрехта © Stijn Poelstra
Ратуша Утрехта © Stijn Poelstra
Ратуша Утрехта © Stijn Poelstra
Ратуша Утрехта © Stijn Poelstra
Ратуша Утрехта © Stijn Poelstra
Ратуша Утрехта © Stijn Poelstra
Ратуша Утрехта © Stijn Poelstra
Ратуша Утрехта © Stijn Poelstra
Ратуша Утрехта © Stijn Poelstra
Ратуша Утрехта © Stijn Poelstra
Ратуша Утрехта © Stijn Poelstra
Ратуша Утрехта © Stijn Poelstra
Ратуша Утрехта © Stijn Poelstra
Ратуша Утрехта © Stijn Poelstra
Ратуша Утрехта © Stijn Poelstra
Ратуша Утрехта © Stijn Poelstra
Ратуша Утрехта © Stijn Poelstra
Ратуша Утрехта © Stijn Poelstra
Ратуша Утрехта © Stijn Poelstra
Ратуша Утрехта © Stijn Poelstra
Ратуша Утрехта © Stijn Poelstra
Ратуша Утрехта © Stijn Poelstra
Ратуша Утрехта © Stijn Poelstra
Ратуша Утрехта © Stijn Poelstra
Ратуша Утрехта © Stijn Poelstra
Ратуша Утрехта © Stijn Poelstra
Ратуша Утрехта © Stijn Poelstra
Ратуша Утрехта © Stijn Poelstra
Ратуша Утрехта © Stijn Poelstra
Ратуша Утрехта © Stijn Poelstra
Ратуша Утрехта © Stijn Poelstra
Ратуша Утрехта © Stijn Poelstra
Ратуша Утрехта © Stijn Poelstra
Ратуша Утрехта © Stijn Poelstra
Ратуша Утрехта © Stijn Poelstra
Ратуша Утрехта © Stijn Poelstra
Ратуша Утрехта © Stijn Poelstra
Ратуша Утрехта © Stijn Poelstra
Ратуша Утрехта © Stijn Poelstra
Ратуша Утрехта © Stijn Poelstra
Ратуша Утрехта © Stijn Poelstra
Ратуша Утрехта © Stijn Poelstra
Ратуша Утрехта © Stijn Poelstra
Ратуша Утрехта © Stijn Poelstra
Ратуша Утрехта © Stijn Poelstra
Ратуша Утрехта © Stijn Poelstra
Ратуша Утрехта © Stijn Poelstra
Ратуша Утрехта © Stijn Poelstra
Ратуша Утрехта © Stijn Poelstra
Ратуша Утрехта © Stijn Poelstra
Ратуша Утрехта © Stijn Poelstra
Ратуша Утрехта © Stijn Poelstra
Ратуша Утрехта © Stijn Poelstra
Ратуша Утрехта © Stijn Poelstra
Ратуша Утрехта © Stijn Poelstra
Ратуша Утрехта © Stijn Poelstra
Ратуша Утрехта © Stijn Poelstra
Ратуша Утрехта © Stijn Poelstra
Ратуша Утрехта © Stijn Poelstra
Ратуша Утрехта © Stijn Poelstra
Ратуша Утрехта © Stijn Poelstra
Ратуша Утрехта © Stijn Poelstra
Ратуша Утрехта © Stijn Poelstra
Ратуша Утрехта © Stijn Poelstra
Ратуша Утрехта © Stijn Poelstra
Ратуша Утрехта © Stijn Poelstra
Ратуша Утрехта © Stijn Poelstra
Ратуша Утрехта © Stijn Poelstra
Ратуша Утрехта © Stijn Poelstra
Ратуша Утрехта © Stijn Poelstra
Ратуша Утрехта © Stijn Poelstra
Ратуша Утрехта © Stijn Poelstra
Ратуша Утрехта © Stijn Poelstra
Ратуша Утрехта © Stijn Poelstra
Ратуша Утрехта © Stijn Poelstra
Ратуша Утрехта © Stijn Poelstra
Ратуша Утрехта © Stijn Poelstra
Ратуша Утрехта © Stijn Poelstra
Ратуша Утрехта © Stijn Poelstra
Ратуша Утрехта © Stijn Poelstra
Ратуша Утрехта © Stijn Poelstra
Ратуша Утрехта © Stijn Poelstra
Ратуша Утрехта © Stijn Poelstra
Ратуша Утрехта © Stijn Poelstra
Ратуша Утрехта © Stijn Poelstra
Ратуша Утрехта © Stijn Poelstra
Ратуша Утрехта © Stijn Poelstra
Ратуша Утрехта © Stijn Poelstra
Ратуша Утрехта © Stijn Poelstra
Ратуша Утрехта © Stijn Poelstra
Ратуша Утрехта © Stijn Poelstra
Ратуша Утрехта © Stijn Poelstra
Ратуша Утрехта © Stijn Poelstra
Ратуша Утрехта © Stijn Poelstra
Ратуша Утрехта © Stijn Poelstra
Ратуша Утрехта © Stijn Poelstra
Ратуша Утрехта © Stijn Poelstra
Ратуша Утрехта © Stijn Poelstra
Ратуша Утрехта © Stijn Poelstra
Ратуша Утрехта © Stijn Poelstra
Ратуша Утрехта © Stijn Poelstra
Ратуша Утрехта © Stijn Poelstra
Ратуша Утрехта © Stijn Poelstra
Ратуша Утрехта © Stijn Poelstra
Ратуша Утрехта © Stijn Poelstra
Ратуша Утрехта © Stijn Poelstra
Ратуша Утрехта © Stijn Poelstra
Ратуша Утрехта © Stijn Poelstra
Ратуша Утрехта © Stijn Poelstra
Ратуша Утрехта © Stijn Poelstra
Ратуша Утрехта © Stijn Poelstra
Ратуша Утрехта © Stijn Poelstra
Ратуша Утрехта © Stijn Poelstra
Ратуша Утрехта © Stijn Poelstra
Ратуша Утрехта © Stijn Poelstra
Ратуша Утрехта © Stijn Poelstra
Ратуша Утрехта © Stijn Poelstra
Ратуша Утрехта © Stijn Poelstra
Ратуша Утрехта © Stijn Poelstra
Ратуша Утрехта © Stijn Poelstra
Ратуша Утрехта © Stijn Poelstra
Ратуша Утрехта © Stijn Poelstra
Ратуша Утрехта © Kraaijvanger
Ратуша Утрехта © Kraaijvanger
Ратуша Утрехта © Kraaijvanger
Ратуша Утрехта © Kraaijvanger
Ратуша Утрехта © Kraaijvanger
Ратуша Утрехта © Kraaijvanger
Ратуша Утрехта © Kraaijvanger
Ратуша Утрехта © Kraaijvanger
Ратуша Утрехта © Kraaijvanger
Ратуша Утрехта © Kraaijvanger
Ратуша Утрехта © Kraaijvanger
Ратуша Утрехта © Kraaijvanger
Ратуша Утрехта © Kraaijvanger
Ратуша Утрехта © Kraaijvanger
Ратуша Утрехта © Kraaijvanger
Ратуша Утрехта © Kraaijvanger
Ратуша Утрехта © Kraaijvanger
Ратуша Утрехта © Kraaijvanger
Ратуша Утрехта © Kraaijvanger
Ратуша Утрехта © Kraaijvanger
Ратуша Утрехта © Kraaijvanger
Ратуша Утрехта © Kraaijvanger
Ратуша Утрехта © Kraaijvanger
Ратуша Утрехта © Kraaijvanger
Ратуша Утрехта © Kraaijvanger
Ратуша Утрехта © Kraaijvanger
Ратуша Утрехта © Kraaijvanger
Ратуша Утрехта © Kraaijvanger
Ратуша Утрехта © Kraaijvanger
Ратуша Утрехта © Kraaijvanger
Ратуша Утрехта © Kraaijvanger
Ратуша Утрехта © Kraaijvanger
Ратуша Утрехта © Kraaijvanger
Ратуша Утрехта © Kraaijvanger
Ратуша Утрехта © Kraaijvanger
Ратуша Утрехта © Kraaijvanger
Ратуша Утрехта © Kraaijvanger
Ратуша Утрехта © Kraaijvanger
Ратуша Утрехта © Kraaijvanger
Ратуша Утрехта © Kraaijvanger
Ратуша Утрехта © Kraaijvanger
Ратуша Утрехта © Kraaijvanger
Ратуша Утрехта © Kraaijvanger
Ратуша Утрехта © Kraaijvanger
Ратуша Утрехта © Kraaijvanger
Ратуша Утрехта © Kraaijvanger
Ратуша Утрехта © Kraaijvanger
Ратуша Утрехта © Kraaijvanger
Ратуша Утрехта © Kraaijvanger
Ратуша Утрехта © Kraaijvanger
Ратуша Утрехта © Kraaijvanger
Ратуша Утрехта © Kraaijvanger
Ратуша Утрехта © Kraaijvanger
Ратуша Утрехта © Kraaijvanger