Размещено на портале Архи.ру (www.archi.ru)

11.02.2015

В два слоя

Анна Мартовицкая
Объект:
Концепция жилого дома во 2-ом Донском проезде
Адрес:
Россия, Москва. 2-ой Донской проезд, вл. 5, к. 1, вл. 5, к. 1, стр. 1
Архитектор:
Сергей Скуратов
Мастерская:
Сергей Скуратов ARCHITECTS
Авторский коллектив:
Сергей Скуратов – творческий руководитель, Иван Ильин – главный архитектор проекта, Н. Демидов, при участии: И. Голубев, Е. Королев

В квартале от Донского монастыря Сергей Скуратов спроектировал двухчастный жилой дом, в облике которого архитектор развивает свою любимую тему диалога материалов.

Южный фасад с высоты птичьего полета © Сергей Скуратов ARCHITECTS
Южный фасад с высоты птичьего полета © Сергей Скуратов ARCHITECTS

Участок, на котором строится жилой дом, находится между Донским монастырем и Ленинским проспектом. От шумной трассы стены монастыря отделены тремя кварталами, из которых лишь центральный имеет в плане классическую форму прямоугольника. И именно в нем, ограниченном улицами Стасовой и Орджоникидзе, а также двумя проездами – 2-ым Донским и 3-им Донским, – расположен участок, предназначенный для строительства жилого комплекса. Впрочем, четкая геометрия квартала мало сказалась на характере его застройки: разные эпохи оставили после себя довольно хаотичное наследство. Тут и школа, и трансформаторная подстанция, и типовая девятиэтажка, и сразу несколько общежитий текстильного института, причем последние имеют заслуженного «старшего брата» – «дом-коммуна» архитектора И. Николаева (1930 г.) расположен всего в ста метрах. Стесненность и затененность – вот два определения, которые в первую очередь приходят в голову при знакомстве с участком, и Сергей Скуратов признается, что долго решался, браться ли за него. Победить сомнения помогли… деревья – высокие и очень немолодые, они растут почти по всему периметру участка, создавая естественную ширму и тем самым гарантируя хоть какую-то приватность как самому архитектурному сооружению, так и его будущим обитателям.
Расположение объекта в районе © Сергей Скуратов ARCHITECTS
Расположение объекта в районе © Сергей Скуратов ARCHITECTS

Именно эти деревья стали для архитектора «неразменным капиталом» и отправной точкой в поисках облика будущего жилого комплекса. Объект получил симметричную композицию из двух шестиэтажных корпусов, разнесенных по противоположным сторонам условного прямоугольника и объединенных стилобатом. А поскольку деревья все же обступают участок не со всех четырех сторон, архитектор смещает основной объем стилобата с эксплуатируемой кровлей к его южной, наиболее затененной стороне. Визави этого одноэтажного корпуса становится въезд в подземный паркинг, ни в какой дополнительной ширме не нуждающийся. «Расстановка объемов по диагонали участка позволила органично вписать новый объект в сложившуюся городскую ткань, соблюдя и требования инсоляции, и оптимальный масштаб самой застройки», – комментирует Сергей Скуратов решение генерального плана. Интересно, кстати, что к наиболее густо обсаженной деревьями юго-восточной оконечности участка архитектор обращает стилобат острым углом, тем самым максимально приближая фасады к стволам, тогда как противоположный угол нарочито скруглен: следуя конфигурации рампы, он дает очень корректный и в то же время достойный ответ на близость внутриквартального проезда, придавая геометрии фасада дружелюбный, но абсолютно самодостаточный характер.
Восточный фасад. Вход © Сергей Скуратов ARCHITECTS
Восточный фасад. Вход © Сергей Скуратов ARCHITECTS
Восточный фасад с высоты птичьего полета © Сергей Скуратов ARCHITECTS
Восточный фасад с высоты птичьего полета © Сергей Скуратов ARCHITECTS

Скругляет Скуратов и углы самих корпусов, как бы оплавляя грани параллелепипедов там, где они сближаются теснее всего. Этот прием может напомнить другую работу архитектора – проект также двухчастного дома на проспекте Вернадского, который так и остался на бумаге. Там корпуса тоже съезжались над стилобатом, и для того, чтобы смягчить эту довольно брутальную тектонику, Сергей Скуратов делал фасады абсолютно стеклянными, а углы заметно скруглял.

Роднит эти проекты и решение фасадов: в обоих случаях архитектор делит их на «внешние» и «внутренние», делая первые нарочито осязаемыми, а вторые, наоборот, эфемерными. Правда, если на проспекте Вернадского антитеза была разыграна с помощью пары клинкерный кирпич – стекло с частичным напылением, то на этот раз роль «кожуры» выполняет атмосферостойкая сталь в защитной окисной пленке, придающей ей неразмываемую бархатистую текстуру ржавчины. Причем это не статичный облицовочный материал, а ставни, заполненные сплошной решеткой вертикальных жалюзи. Иными словами, здесь «кожура» способна кардинально менять свой характер в зависимости как от погоды и освещения, так и просто от угла зрения: жалюзи и их более эфемерное отражение в стекле создают эффекты муаровых волн и видимый градиент, переход от почти зеркального, растворяющегося в отражении до материального, ярко-ржавого фасада. На уже упомянутом скругленном уличном фасаде это особенно важно: придуманная архитектором броня словно растягивается на сгибе, истончается практически полностью, подчеркивая условность тезиса «мой дом – моя крепость» в современном мегаполисе.
Северный фасад с высоты птичьего полета © Сергей Скуратов ARCHITECTS
Северный фасад с высоты птичьего полета © Сергей Скуратов ARCHITECTS
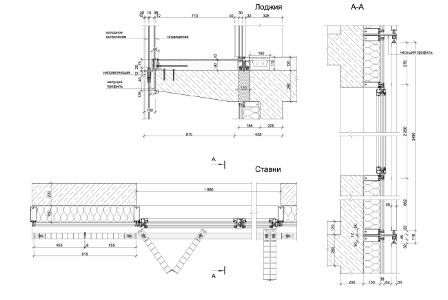
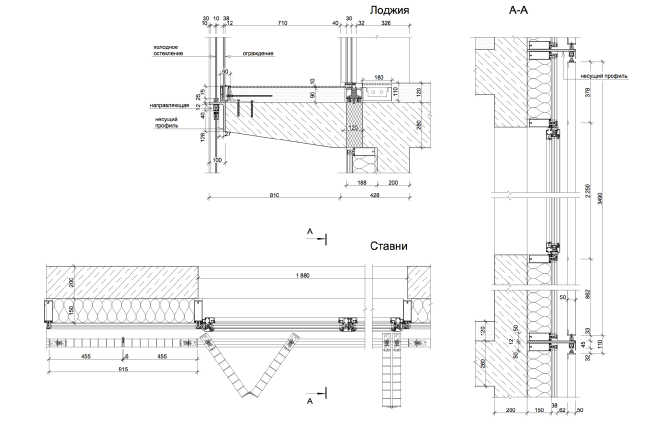
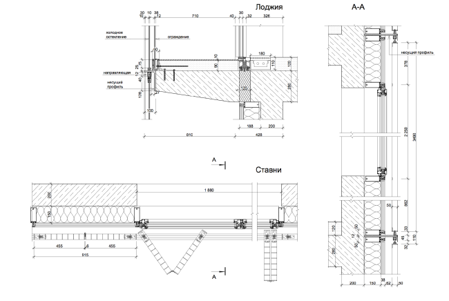
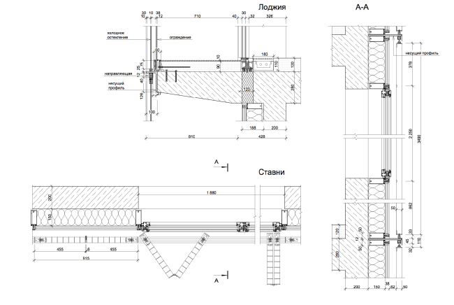
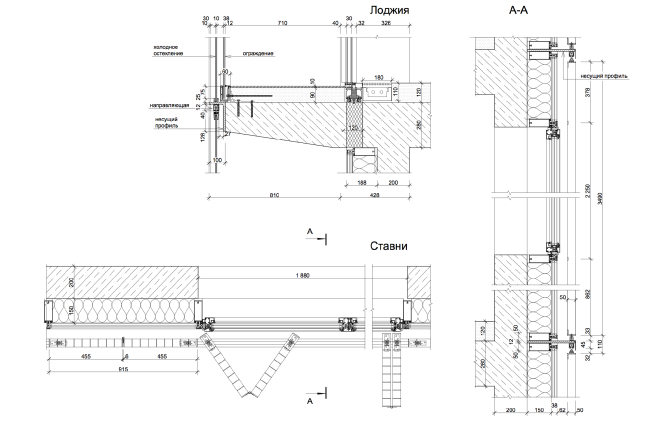
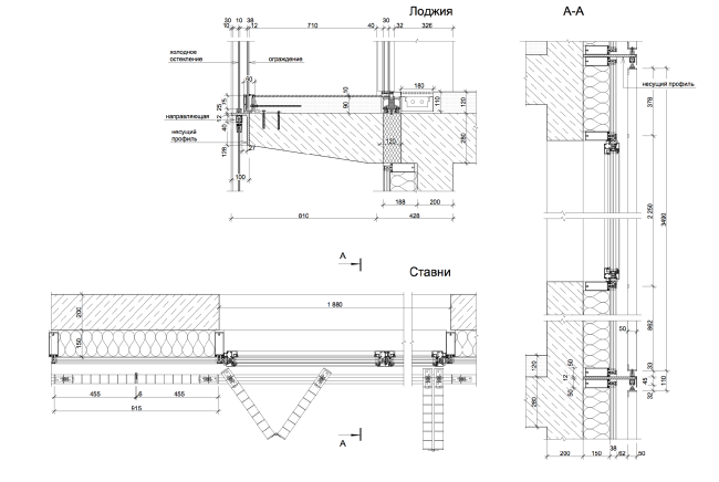
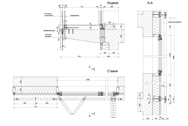
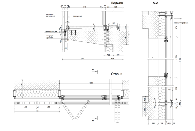
Детали фасада: конструкция ставен © Сергей Скуратов ARCHITECTS
Детали фасада: конструкция ставен © Сергей Скуратов ARCHITECTS
Фрагменты закрытых фасадов © Сергей Скуратов ARCHITECTS
Фрагменты закрытых фасадов © Сергей Скуратов ARCHITECTS
Фрагменты открытых фасадов © Сергей Скуратов ARCHITECTS
Фрагменты открытых фасадов © Сергей Скуратов ARCHITECTS
Восточный фасад. Ставни закрыты © Сергей Скуратов ARCHITECTS
Восточный фасад. Ставни закрыты © Сергей Скуратов ARCHITECTS
Восточный фасад. Ставни открыты © Сергей Скуратов ARCHITECTS
Восточный фасад. Ставни открыты © Сергей Скуратов ARCHITECTS
Южный фасад. Ставни закрыты © Сергей Скуратов ARCHITECTS
Южный фасад. Ставни закрыты © Сергей Скуратов ARCHITECTS
Южный фасад. Ставни открыты © Сергей Скуратов ARCHITECTS
Южный фасад. Ставни открыты © Сергей Скуратов ARCHITECTS

Двухслойными выполнены и внутренние фасады обоих корпусов – та самая беззащитная «мякоть», которой они обращены к кровле стилобата и внутреннему дворику. Внешний слой здесь – это остекление лоджий, окрашенное градиентно от молочно-белого до прозрачного, а внутренний – собственно стены, представляющие собой сочетание окон максимального размера с зеркальным стеклом и простенков из зеркального стемалита.
Южный фасад © Сергей Скуратов ARCHITECTS
Южный фасад © Сергей Скуратов ARCHITECTS
Западный фасад. Въездные ворота © Сергей Скуратов ARCHITECTS
Западный фасад. Въездные ворота © Сергей Скуратов ARCHITECTS
Благоустройство двора © Сергей Скуратов ARCHITECTS
Благоустройство двора © Сергей Скуратов ARCHITECTS

Это во всех смыслах очень скуратовский дом. В нем в избытке обнаруживается все то, что свойственно работам этого архитектора – и нетривиальная, но узнаваемо строгая геометрия, и безошибочно найденный контраст материалов, и досконально использованные возможности участка. А еще, конечно, столь ценимое им ощущение «живого» фасада. Только раньше последнее создавалось, в основном, за счет материала – кирпичной кладки или красиво старящейся меди, – а теперь Скуратов, если можно так выразиться, подключил к материалам механизмы. Каждая из ставень, равно как и любое раздвижное стекло, здесь может быть открыто и вручную, и автоматически, – по замыслу архитектора, подобное разнообразие сценариев наилучшим образом гарантирует постоянную изменяемость фасадов. Здание-аттракцион или точно найденный образ средового объекта? Безусловно, второе: жилой комплекс находится в постоянном, но совершенно ненавязчивом диалоге со своим окружением, фиксируя и гармонизируя квартал, который раньше был частью невнятного градостроительного «шума».
 
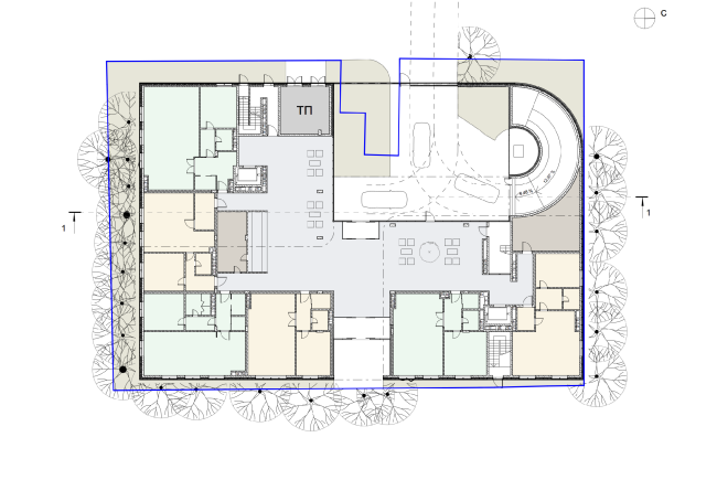
Генеральный план © Сергей Скуратов ARCHITECTS
Генеральный план © Сергей Скуратов ARCHITECTS
Ситуационный план © Сергей Скуратов ARCHITECTS
Ситуационный план © Сергей Скуратов ARCHITECTS
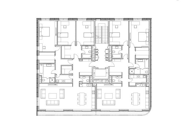
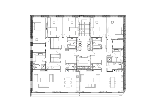
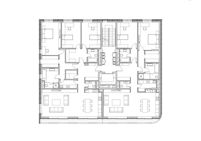
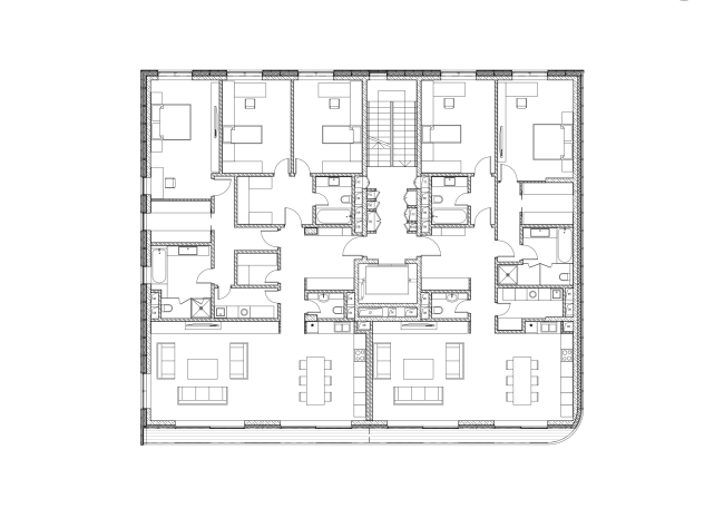
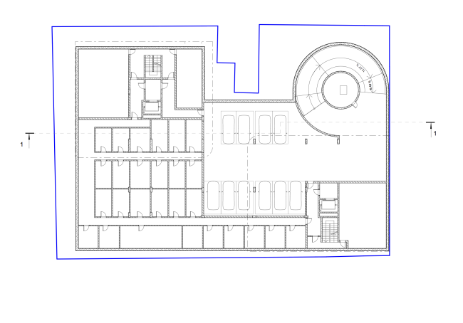
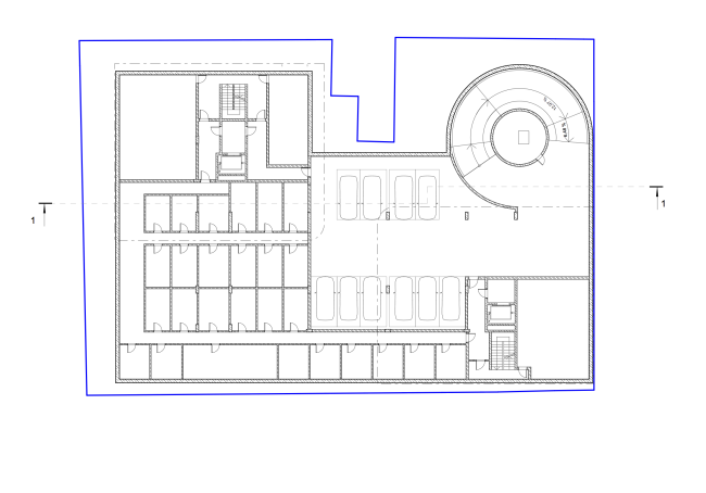
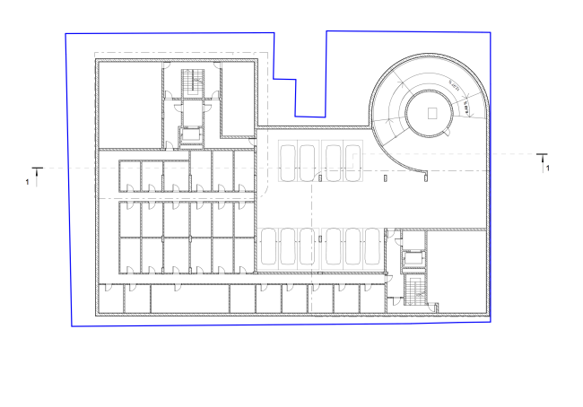
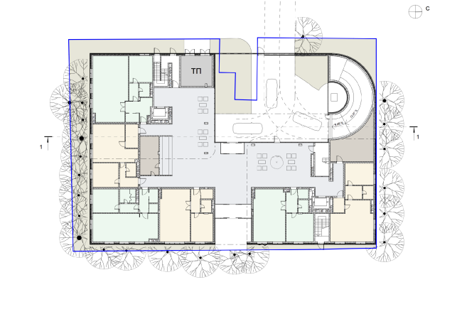
План 1-6 этажей © Сергей Скуратов ARCHITECTS
План 1-6 этажей © Сергей Скуратов ARCHITECTS
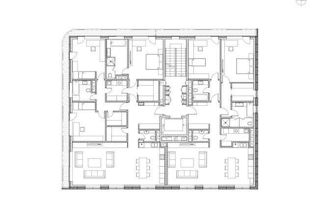
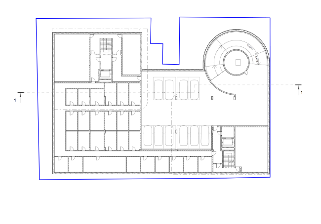
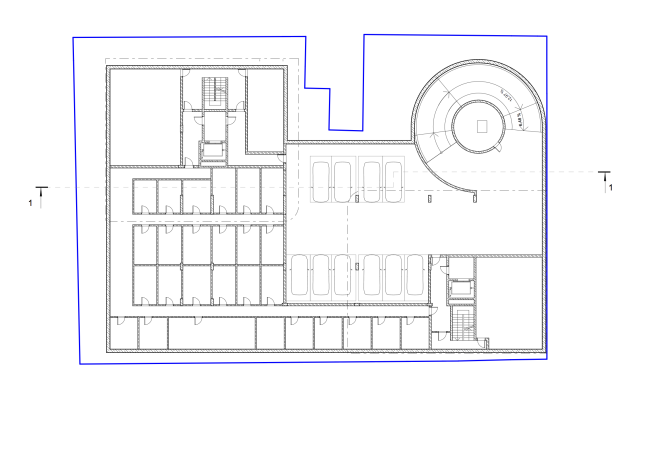
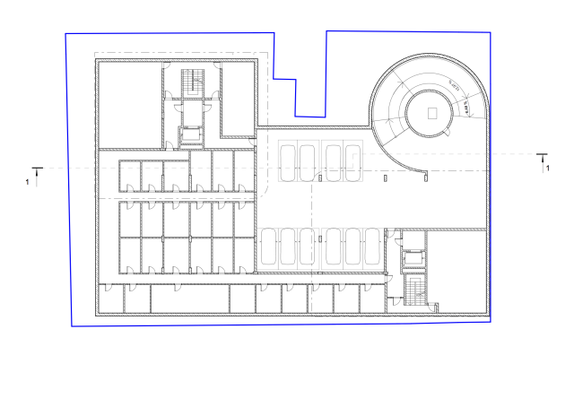
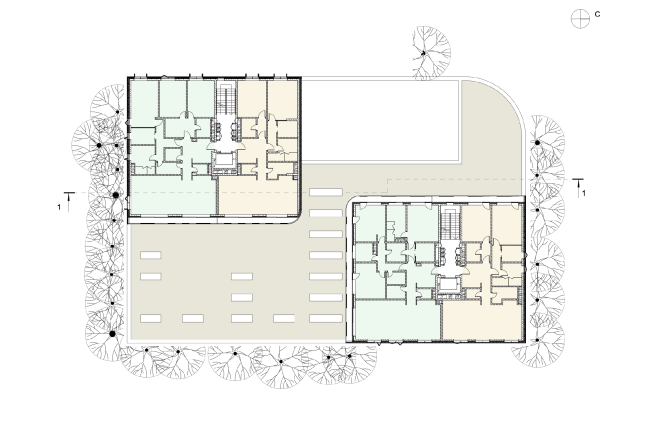
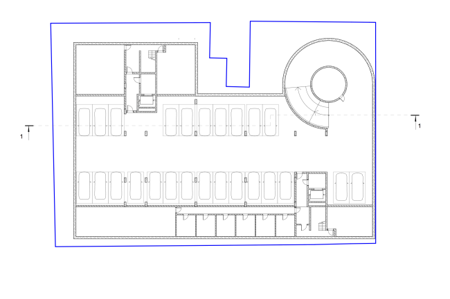
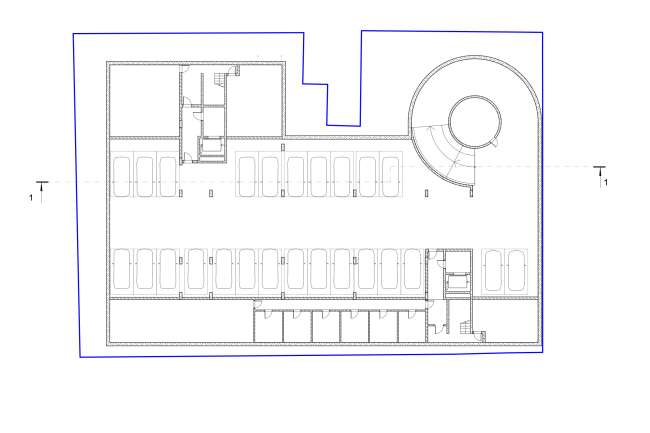
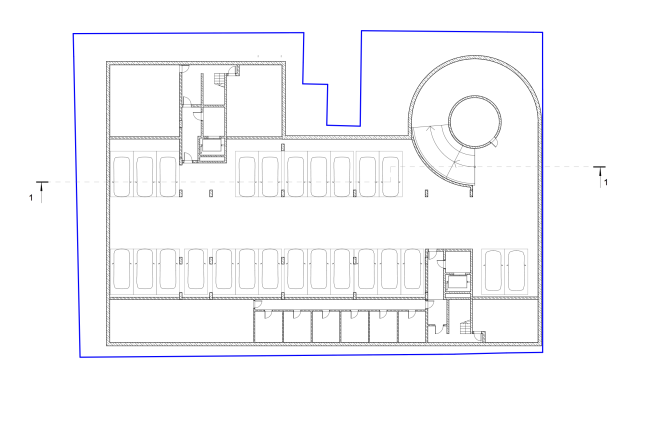
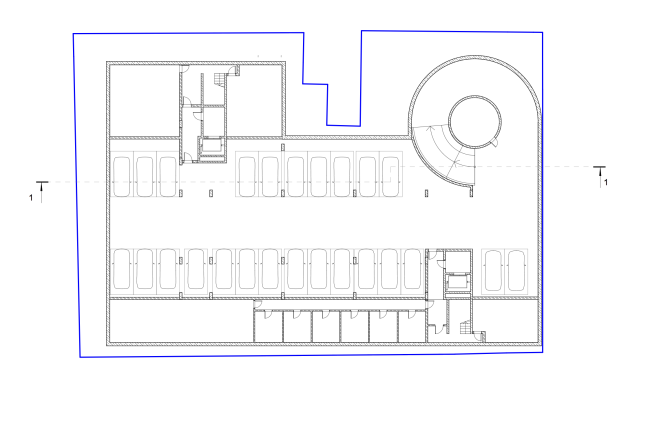
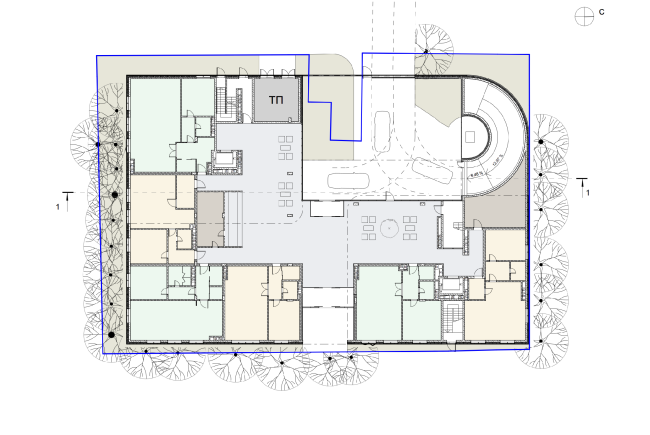
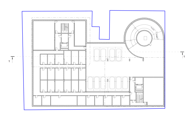
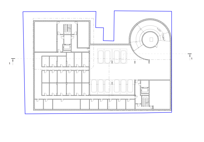
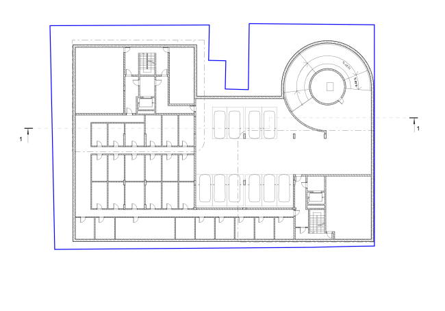
План 1 этажа © Сергей Скуратов ARCHITECTS
План 1 этажа © Сергей Скуратов ARCHITECTS
Разрез 1-1 © Сергей Скуратов ARCHITECTS
Разрез 1-1 © Сергей Скуратов ARCHITECTS
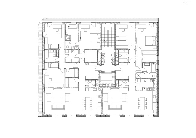
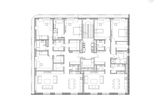
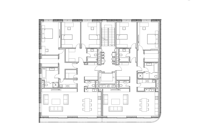
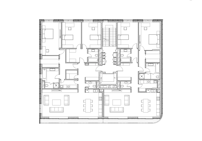
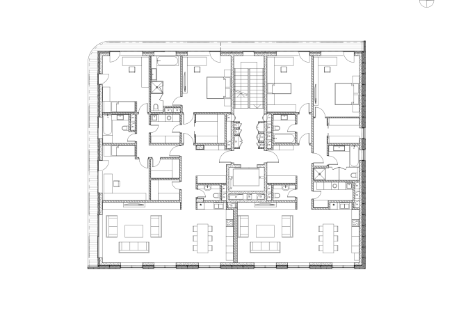
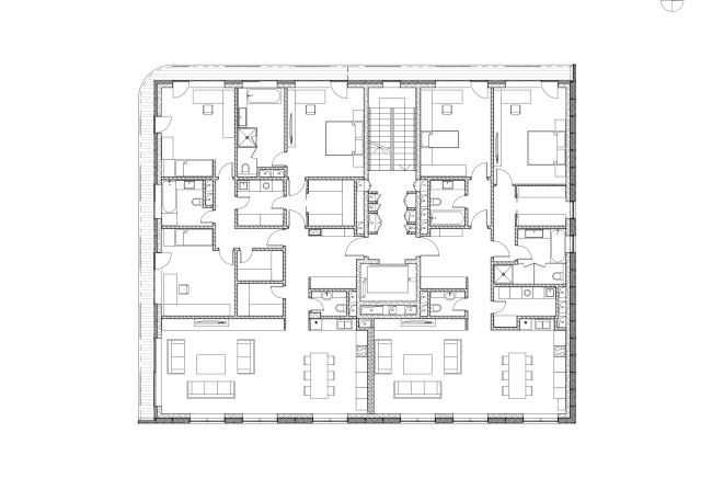
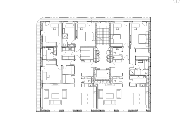
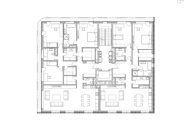
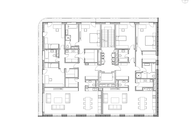
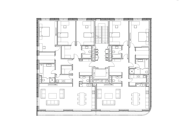
План квартир секции 1 © Сергей Скуратов ARCHITECTS
План квартир секции 1 © Сергей Скуратов ARCHITECTS
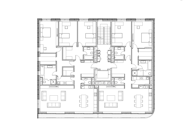
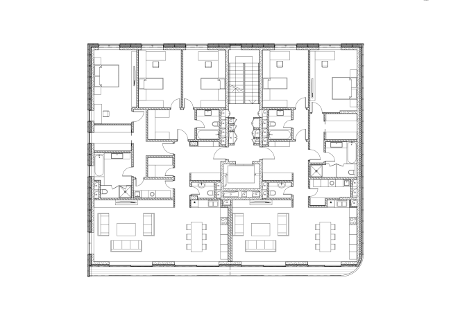
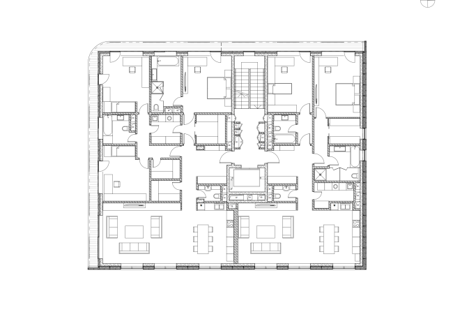
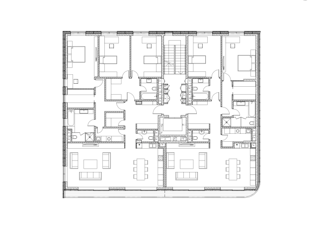
План квартир секции 2 © Сергей Скуратов ARCHITECTS
План квартир секции 2 © Сергей Скуратов ARCHITECTS
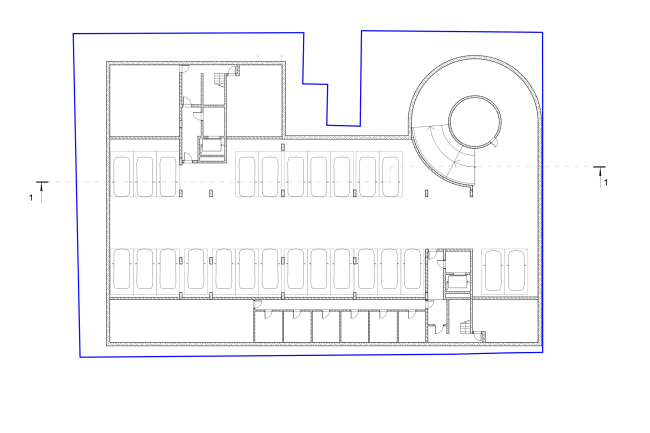
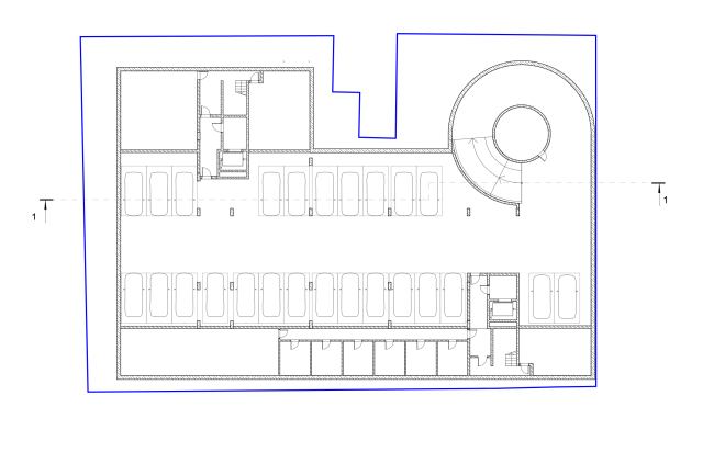
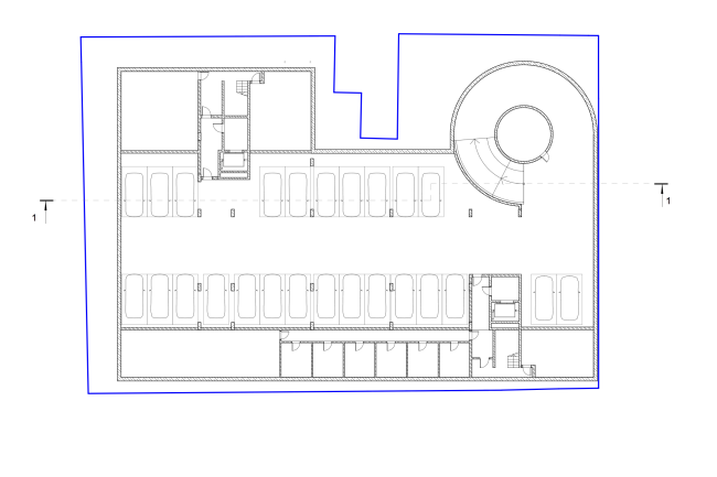
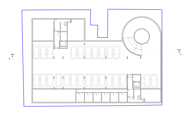
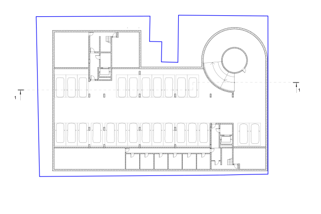
План -1 этажа © Сергей Скуратов ARCHITECTS
План -1 этажа © Сергей Скуратов ARCHITECTS
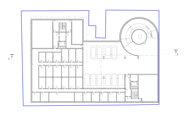
План -2 этажа © Сергей Скуратов ARCHITECTS
План -2 этажа © Сергей Скуратов ARCHITECTS