Размещено на портале Архи.ру (www.archi.ru)

30.01.2015

Кристаллизация пространства

Объект:
Лофт-апартаменты с «патио» на территории бывшего завода «Кристалл»
Адрес:
Россия, Москва.

Названы имена победителей открытого конкурса на разработку дизайн-проектов лофт-апартаментов на территории бывшего завода «Кристалл в Москве».

Квартал «Город Кристалл» создается в парковой зоне на восточном берегу Яузы, на территории бывшего завода «Кри­сталл». Флаг­ма­на­ми про­ек­та должны стать арт-кластер и лофт-апар­та­мен­ты трех категорий: лофт «с патио», лофт «компактный» и лофт «мансарда». Жюри выбрало лучший дизайн-проект для каждого из этих типов.

 

***
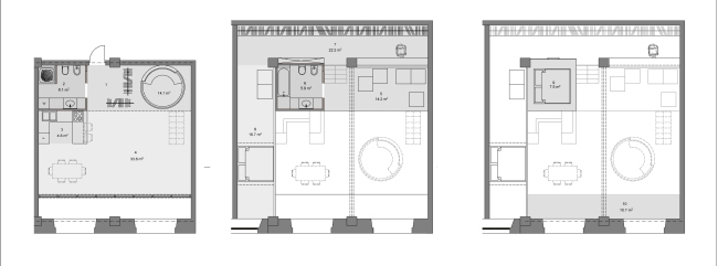
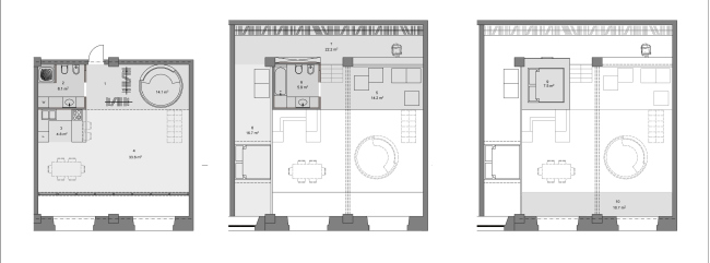
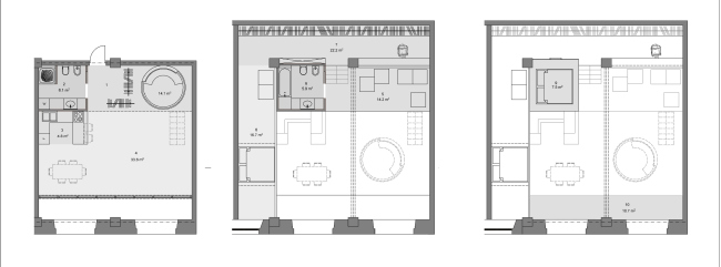
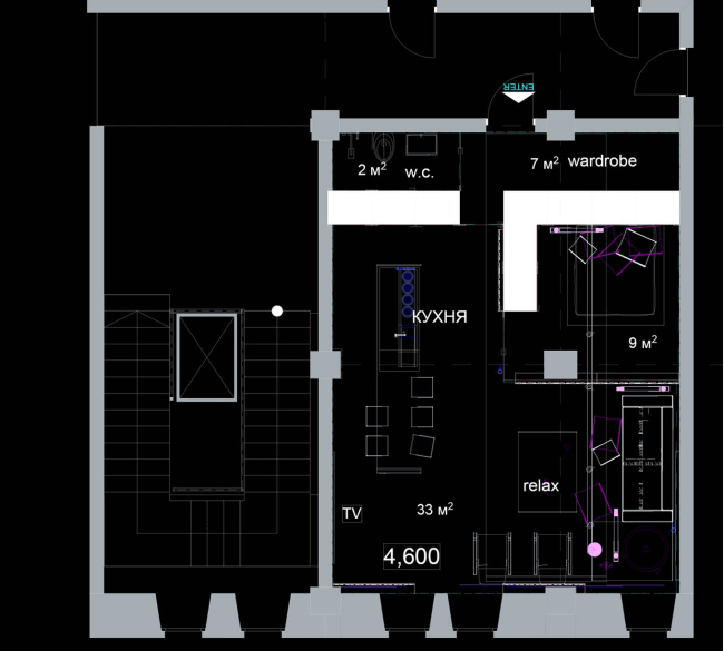
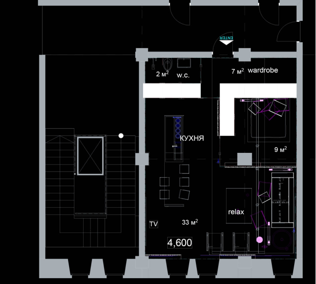
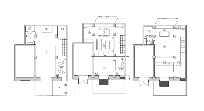
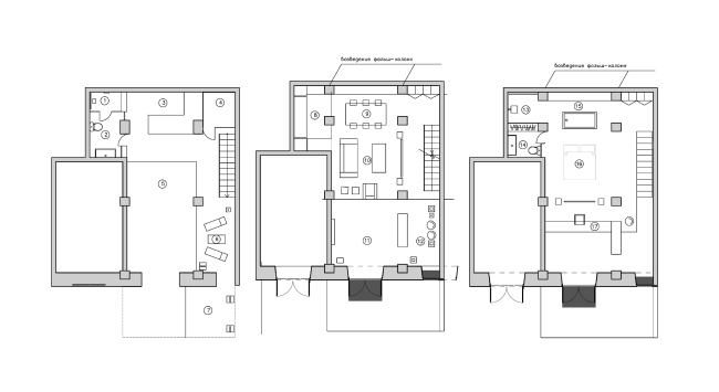
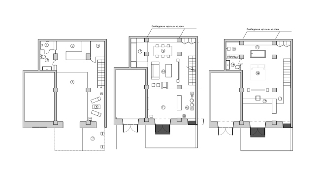
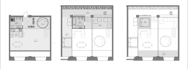
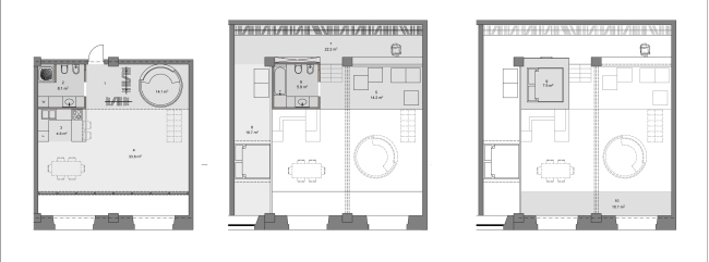
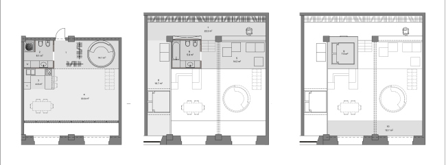
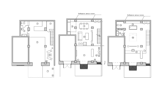
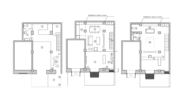
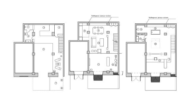
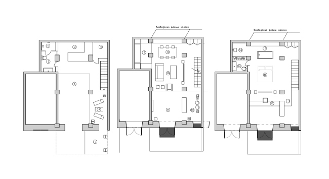
Победитель в категории лофт «с патио»
АИ Студия
Победитель в категории лофт «с патио». АИ Студия
Победитель в категории лофт «с патио». АИ Студия

Особенностью этого лофта является цокольный этаж с расположенным перед ним приямком, в который ведет отдельный вход. Жюри отметило прекрасную работу с пространством, раскрытым здесь в полной мере как чистое, светлое, учитывающее историческую ценность здания и атрибуты настоящего лофта – кирпичные стены, своды Монье и особую эстетику места. На нижнем уровне расположена спальня с санузлом, выше – кухня и гостиная. Для организации пространства было применено минимальное количество перегородок – исключительно для изоляции приватных зон. Это позволило «завести» солнечный свет максимально глубоко в интерьер.

Победитель в категории лофт «с патио». АИ Студия
Победитель в категории лофт «с патио». АИ Студия
Победитель в категории лофт «с патио». АИ Студия
Победитель в категории лофт «с патио». АИ Студия
Победитель в категории лофт «с патио». АИ Студия
Победитель в категории лофт «с патио». АИ Студия


 
***

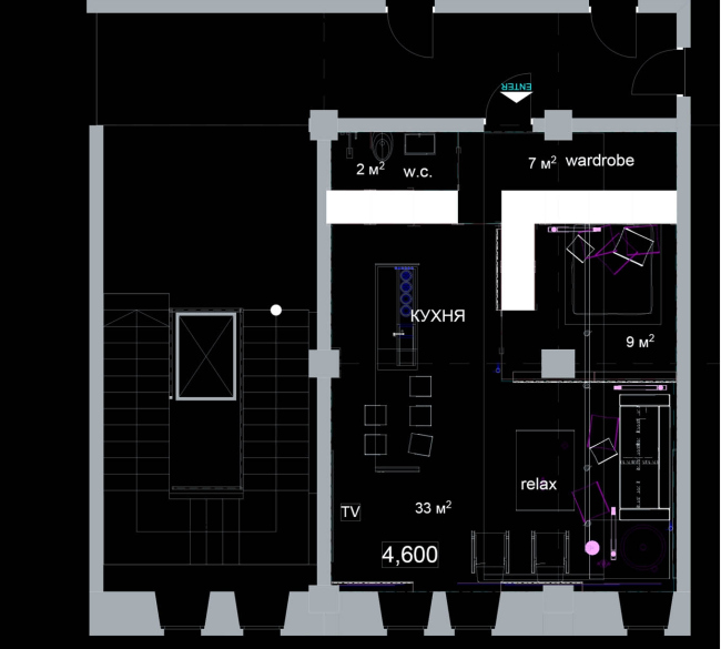
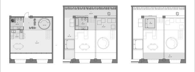
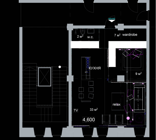
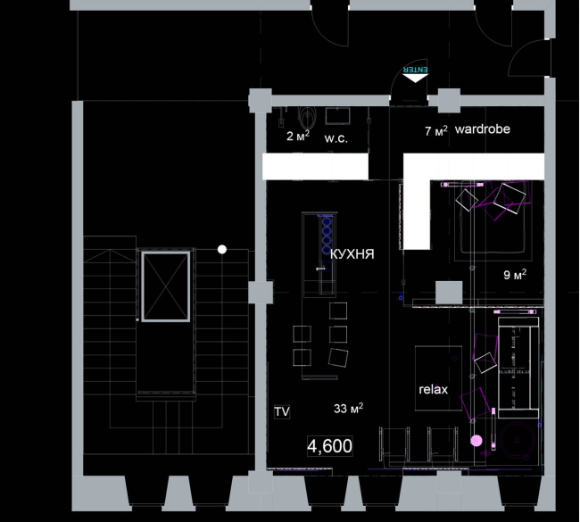
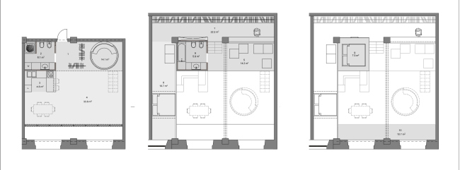
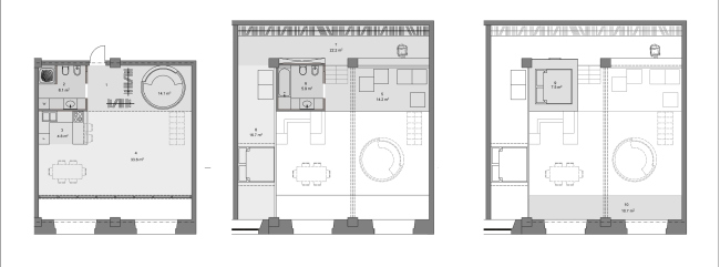
Победитель в категории лофт «компактный»
ARCHPOINT
Победитель в категории лофт «компактный». Бюро ARCHPOINT
Победитель в категории лофт «компактный». Бюро ARCHPOINT
Отличительная черта этого лофта – его небольшая площадь: всего 57 м2. Проект-победитель был выбран за наиболее логичную планировку: там выделено несколько функциональных зон, но при этом сохранена характерная для лофтов открытость плана. В отделке стен и пола авторы решили использовать натуральное дерево: из него предлагается выполнить двери, перегородки и кухню. Применен принцип «перетекания» пространства: от входа начинается гардероб, который переходит в кухню и гостиную. Спальня отделена от основного пространства двумя деревянными дверьми. Если их закрыть, она становится автономной, а двери при этом составляют единую стену.

Победитель в категории лофт «компактный». Бюро ARCHPOINT
Победитель в категории лофт «компактный». Бюро ARCHPOINT
Победитель в категории лофт «компактный». Бюро ARCHPOINT
Победитель в категории лофт «компактный». Бюро ARCHPOINT


 
***

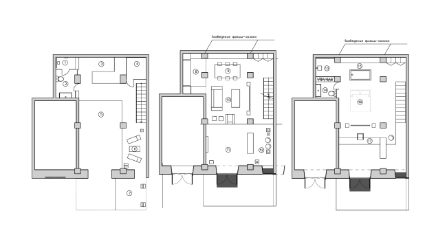
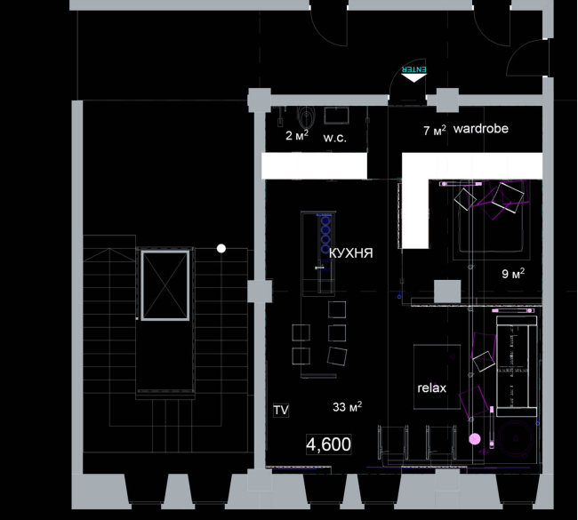
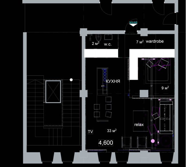
Победитель в категории лофт «мансарда»
АИ Студия
Победитель в категории лофт «мансарда». АИ Студия
Победитель в категории лофт «мансарда». АИ Студия
По замыслу архитекторов, примерно половина лофта решена как огромное двусветное пространство, а все функциональные зоны встроены в отдельный трехуровневый объем, соединенный винтовой лестницей. На первом уровне расположено главное помещение – гостиная, а также кухня, прихожая и санузел. На втором – детская. На третьем – спальня с большим открытым санузлом.

Победитель в категории лофт «мансарда». АИ Студия
Победитель в категории лофт «мансарда». АИ Студия
Победитель в категории лофт «мансарда». АИ Студия
Победитель в категории лофт «мансарда». АИ Студия

***
Проекты финалистов конкурса


Mama Ro
Лофт «с патио»
Проект лофта «с патио». Mama Ro
Проект лофта «с патио». Mama Ro
Проект лофта «с патио». Mama Ro
Проект лофта «с патио». Mama Ro
 
Консорциум ArchCLOUD, член консорциума – Студия визуализации «Архирост»
Лофт «с патио»
Проект лофта «с патио». Консорциум ArchCLOUD, член консорциума – Студия визуализации «Архирост»
Проект лофта «с патио». Консорциум ArchCLOUD, член консорциума – Студия визуализации «Архирост»
Проект лофта «с патио». Консорциум ArchCLOUD, член консорциума – Студия визуализации «Архирост»
Проект лофта «с патио». Консорциум ArchCLOUD, член консорциума – Студия визуализации «Архирост»


A R C H. 6 2 5
Лофт «с патио»
Проект лофта «с патио». A R C H. 6 2 5
Проект лофта «с патио». A R C H. 6 2 5
Проект лофта «с патио». A R C H. 6 2 5
Проект лофта «с патио». A R C H. 6 2 5


ARCHPOINT
Лофт «с патио»
Проект лофта «с патио». ARCHPOINT
Проект лофта «с патио». ARCHPOINT
Проект лофта «с патио». ARCHPOINT
Проект лофта «с патио». ARCHPOINT


S A V V Y
Лофт «с патио»
Проект лофта «с патио». S A V V Y
Проект лофта «с патио». S A V V Y
Проект лофта «с патио». S A V V Y
Проект лофта «с патио». S A V V Y

***

Mama Ro
Лофт «компактный»
Проект лофта «компактный». Mama Ro
Проект лофта «компактный». Mama Ro
Проект лофта «компактный». Mama Ro
Проект лофта «компактный». Mama Ro


Консорциум ArchCLOUD, член консорциума – Студия визуализации «Архирост»
Лофт «компактный»
Проект лофта «компактный». Консорциум ArchCLOUD, член консорциума – Студия визуализации «Архирост»
Проект лофта «компактный». Консорциум ArchCLOUD, член консорциума – Студия визуализации «Архирост»
Проект лофта «компактный». Консорциум ArchCLOUD, член консорциума – Студия визуализации «Архирост»
Проект лофта «компактный». Консорциум ArchCLOUD, член консорциума – Студия визуализации «Архирост»


АИ Студия
Лофт «компактный»
Проект лофта «компактный». АИ Студия
Проект лофта «компактный». АИ Студия
Проект лофта «компактный». АИ Студия
Проект лофта «компактный». АИ Студия


A R C H. 6 2 5
Лофт «компактный»
Проект лофта «компактный». A R C H. 6 2 5
Проект лофта «компактный». A R C H. 6 2 5
Проект лофта «компактный». A R C H. 6 2 5
Проект лофта «компактный». A R C H. 6 2 5


S A V V Y
Лофт «компактный»
Проект лофта «компактный». S A V V Y
Проект лофта «компактный». S A V V Y
Проект лофта «компактный». S A V V Y
Проект лофта «компактный». S A V V Y

***


Mama Ro
Лофт «мансарда»
Проект лофта «мансарда». Mama Ro
Проект лофта «мансарда». Mama Ro
Проект лофта «мансарда». Mama Ro
Проект лофта «мансарда». Mama Ro


Консорциум ArchCLOUD, член консорциума – Студия визуализации «Архирост»
Лофт «мансарда»
Проект лофта «мансарда». Консорциум ArchCLOUD, член консорциума – Студия визуализации «Архирост»
Проект лофта «мансарда». Консорциум ArchCLOUD, член консорциума – Студия визуализации «Архирост»
Проект лофта «мансарда». Консорциум ArchCLOUD, член консорциума – Студия визуализации «Архирост»
Проект лофта «мансарда». Консорциум ArchCLOUD, член консорциума – Студия визуализации «Архирост»


A R C H. 6 2 5
Лофт «мансарда»
Проект лофта «мансарда». A R C H. 6 2 5
Проект лофта «мансарда». A R C H. 6 2 5
Проект лофта «мансарда». A R C H. 6 2 5
Проект лофта «мансарда». A R C H. 6 2 5


ARCHPOINT
Лофт «мансарда»
Проект лофта «мансарда». ARCHPOINT
Проект лофта «мансарда». ARCHPOINT
Проект лофта «мансарда». ARCHPOINT
Проект лофта «мансарда». ARCHPOINT


S A V V Y
Лофт «мансарда»
Проект лофта «мансарда». S A V V Y
Проект лофта «мансарда». S A V V Y
Проект лофта «мансарда». S A V V Y
Проект лофта «мансарда». S A V V Y

***
Жюри конкурса
  • Яков Литвинов, генеральный директор «КРАЙС Девелопмент»;
  • Никита Токарев, директор Архитектурной школы МАРШ, член правления Союза Московских Архитекторов;
  • Антон Кочуркин, архитектор, куратор «Архстояния», руководитель архитектурного бюро 8L;
  • Сергей Семенов, дизайнер, основатель и арт-директор студии FineObjects;
  • Ольга Сергеева, главный редактор журнала Seasons of Life, генеральный директор Seasons Project;
  • Николай Миловидов, соучредитель архитектурного бюро UNK-project;
  • Алекс Столярик, директор образовательной программы «Новые лидеры территориального развития», руководитель творческого кластера «Кристалл», «КРАЙС-Девелопмент»;
  • Алексей Пруперс, совладелец «СБФ», президент Mercedes Benz Classic Club Russia;
  • Марина Юшкевич, историк искусства, специалист по современной архитектуре, журналист;
  • Надежда Зотова, дизайнер интерьеров, основатель проекта Enjoy Home;
  • Владимир Кузьмин, руководитель студии «Поле-Дизайн»;
  • Константин Ходнев, партнер, Архитектурная группа «ДНК»;
  • Николай Семенов, event-продюсер, режиссер.

***
Во ходе пресс-конференции организаторы объявили новый открытый конкурс: на разработку концепции развития общественных пространств «Города Кристалл», который завершится 14 мая 2015 года. Предметом конкурса стали «входная площадь и городские улочки», «зона фонтана и павильона «Сады-огороды», а также «зеленая площадь и зона железной дороги».

Инициатор обоих конкурсов – «КРАЙС Девелопмент», организатор – «Агентство стратегического развития «ЦЕНТР». Официальная страница конкурсов kristall.centeragency.org