Размещено на портале Архи.ру (www.archi.ru)

27.01.2015

Дети в подземелье

Анна Старостина
Объект:
Вилла R
Адрес:
Дания, None, Орхус.
Мастерская:
C. F. Møller

Серьезные ограничения лишь спровоцировали творческую фантазию архитекторов C.F. Møller, одного из старейших скандинавских бюро, и помогли им создать смелый проект Villa R.

Вилла R © Julian Weyer
Вилла R © Julian Weyer

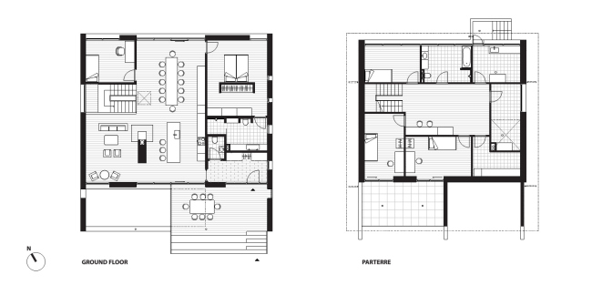
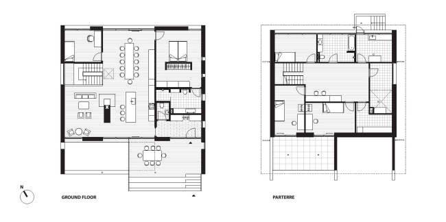
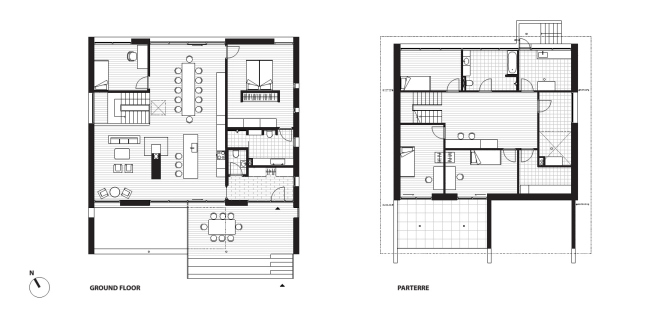
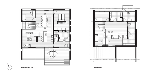
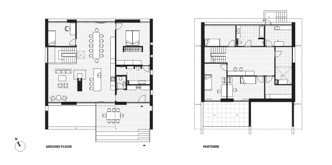
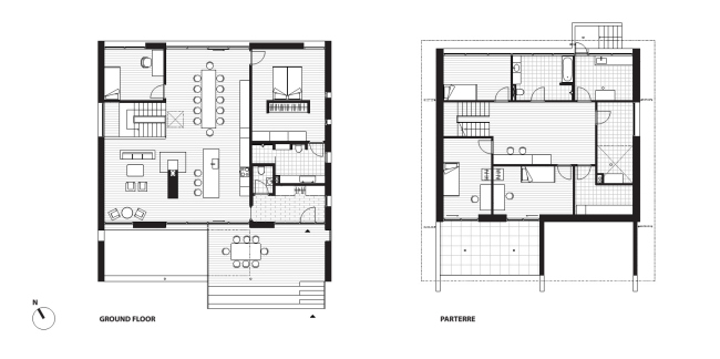
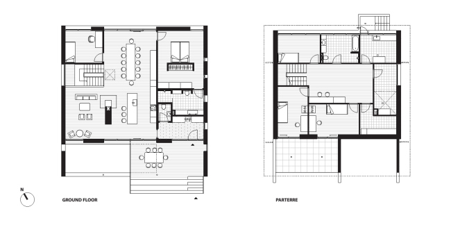
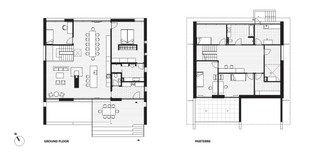
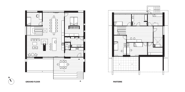
Относительно небольшой дом площадью 300 м2 расположен на окраине датского города Орхус, максимально близко к опушке лесного массива. По местным нормам владельцы не имели права возвести постройку выше одного этажа и занять под нее более 20% площади участка. Заказчику, тем не менее, необходим был просторный и удобный дом для семьи с тремя детьми. Все эти сложности архитекторы в результате с успехом обратили во благо.
 
Вилла R © Julian Weyer
Вилла R © Julian Weyer

Почти квадратный объем поставлен в самом дальнем конце участка. Его крыша, переходящая и на две боковые стены, покрыта темными пластинами патинированного цинка, а обращенные к лесу и ко входу фасады имеют сплошной фронт остекления. Такое решение позволило тесно связать внутреннее пространство и окружающую природу: солнечный свет почти беспрепятственно проникает внутрь, а меняющиеся в зависимости от времени года кроны деревьев становятся эффектной динамичной декорацией. Ландшафтным дизайном занималось бюро Kragh & Berglund.
 
Вилла R © Julian Weyer
Вилла R © Julian Weyer

Основной вход предваряет приподнятая дощатая терраса, ступени которой могут служить и своеобразной зоной отдыха. Больше половины верхнего этажа занимает просторная гостиная, совмещенная с кухней. Кроме нее на этом уровне находится спальня хозяев и небольшая гостевая комната, занявшая дальний угол за лестницей. Цветовая гамма интерьера, в полном соответствии с принципами скандинавской архитектуры, очень спокойная и светлая, лишенная ярких акцентов и не перегруженная деталями.
 
Вилла R © Julian Weyer
Вилла R © Julian Weyer

Чтобы соблюсти высотные ограничения, архитекторы «утопили» постройку и нижнюю, «полуподземную» часть отвели детям. Но созданные ими условия, конечно же, ничем не напоминают склепы из повести Короленко. В центре расположена игровая зона, а вокруг нее – три светлые спальни, ванная и подсобные помещения. Две спальни выходят на основной фасад, в низкий мощеный двор. Благодаря специальному «окну» в навесе крыши здесь также всегда много солнца.
Вилла R © Julian Weyer
Вилла R © Julian Weyer
Вилла R © Julian Weyer
Вилла R © Julian Weyer
Вилла R © Julian Weyer
Вилла R © Julian Weyer
Вилла R © Julian Weyer
Вилла R © Julian Weyer
Вилла R © Julian Weyer
Вилла R © Julian Weyer
Вилла R © Julian Weyer
Вилла R © Julian Weyer
Вилла R © Julian Weyer
Вилла R © Julian Weyer
Вилла R © Julian Weyer
Вилла R © Julian Weyer
Вилла R © Julian Weyer
Вилла R © Julian Weyer
Вилла R © Julian Weyer
Вилла R © Julian Weyer
Вилла R © Julian Weyer
Вилла R © Julian Weyer
Вилла R © Julian Weyer
Вилла R © Julian Weyer
Вилла R © Julian Weyer
Вилла R © Julian Weyer
Вилла R © Julian Weyer
Вилла R © Julian Weyer
Вилла R © Julian Weyer
Вилла R © Julian Weyer
Вилла R © Julian Weyer
Вилла R © Julian Weyer
Вилла R © Julian Weyer
Вилла R © Julian Weyer
Вилла R © Julian Weyer
Вилла R © Julian Weyer
Вилла R © Julian Weyer
Вилла R © Julian Weyer
Вилла R © Julian Weyer
Вилла R © Julian Weyer
Вилла R © Julian Weyer
Вилла R © Julian Weyer
Вилла R © Julian Weyer
Вилла R © Julian Weyer
Вилла R © Julian Weyer
Вилла R © Julian Weyer
Вилла R © Julian Weyer
Вилла R © Julian Weyer