Размещено на портале Архи.ру (www.archi.ru)

26.01.2015

Площадь среди полей

Нина Фролова
Объект:
Технологический парк Обидуша
Адрес:
Португалия, None, Обидуш.

Технологический парк в португальском городе Обидуше, спроектированный архитектором Жоржи Меалья.

Технологический парк Обидуша © João Morgado - Architecture Photography
Технологический парк Обидуша © João Morgado - Architecture Photography

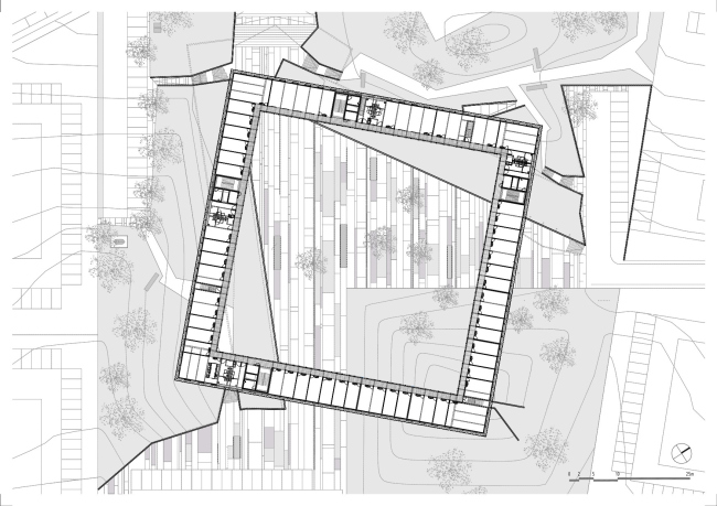
Обидуш – небольшой исторический город в центральной Португалии, окруженный лесами и сельскохозяйственными угодьями. Для строительства рядом технологического парка был выбран участок «в чистом поле», где до того складировались материалы для строительства крупной автомагистрали. При этом заказчики хотели получить не только главный корпус парка, но и «пьяццу».
 
Технологический парк Обидуша © João Morgado - Architecture Photography
Технологический парк Обидуша © João Morgado - Architecture Photography

Архитекторы обратились к историческим примерам таких площадей, но все они определены городским окружением – окаймляющими их зданиями разных функций. Сельская местность близ Обидуша ничего подобного предоставить не могла, поэтому Меалья и его коллеги нашли другие, местные образцы. Первый из них – террейро, «двор» – деревенская площадь, где проходят праздники, ярмарки, концерты и т.д. Он может быть окружен зданиями, но часто это – ничем формально не ограниченное пространство. Вторым прототипом стал монастырский клуатр, т.к. расположение общественного пространства в центре комплекса архитекторы посчитали удачным решением: сотрудники компаний-резидентов технопарка будут чаще общаться, обмениваясь идеями, если их пути будут пересекаться во внутреннем дворе.
 
Технологический парк Обидуша © João Morgado - Architecture Photography
Технологический парк Обидуша © João Morgado - Architecture Photography

Также окрестные монастыри и крупные фермы «предложили» вариант оптимального взаимодействия нового здания с ландшафтом: вытянутое по горизонтали здание-«полоса» минимально нарушает красоту пейзажа.
 
Технологический парк Обидуша © João Morgado - Architecture Photography
Технологический парк Обидуша © João Morgado - Architecture Photography

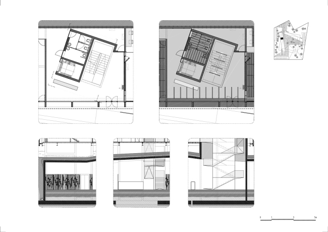
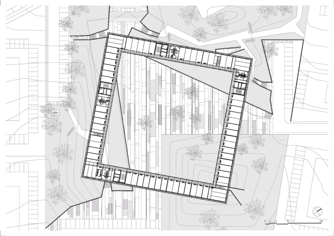
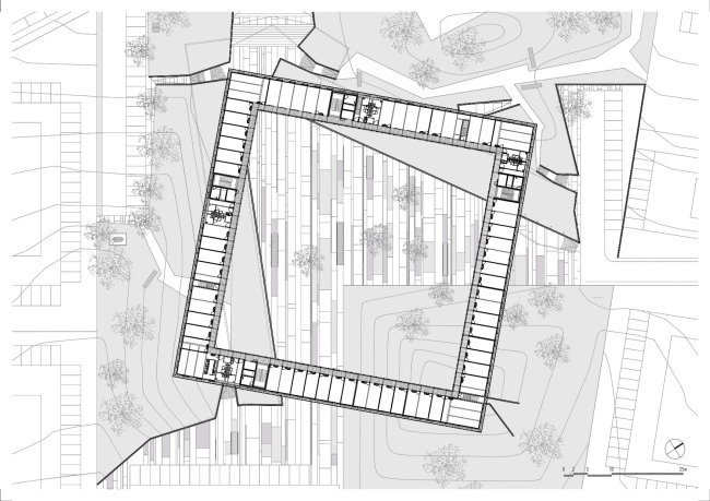
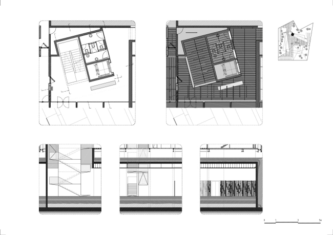
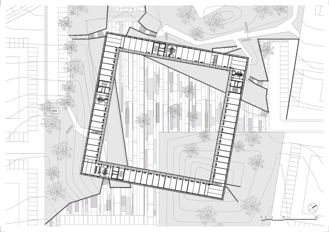
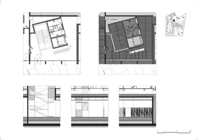
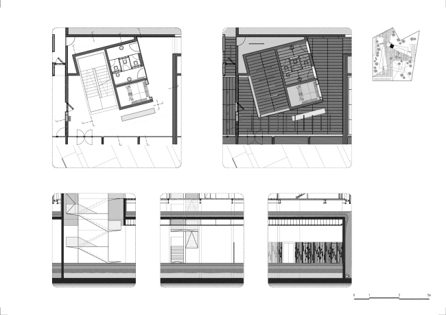
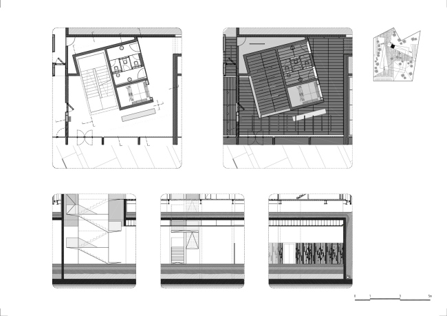
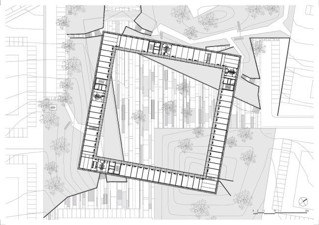
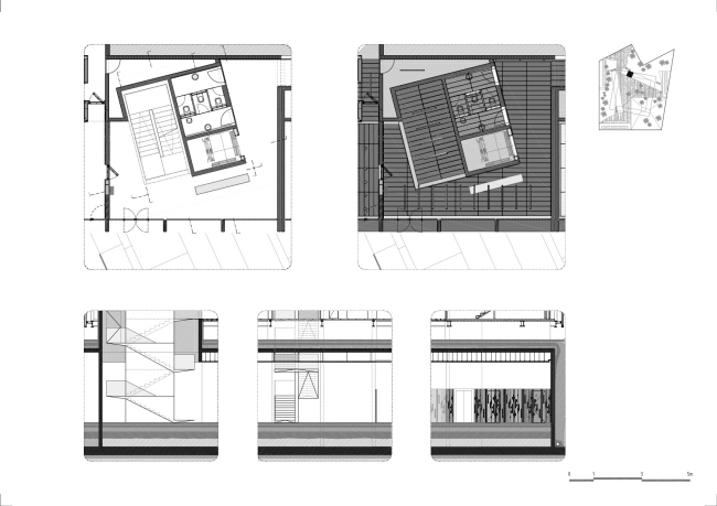
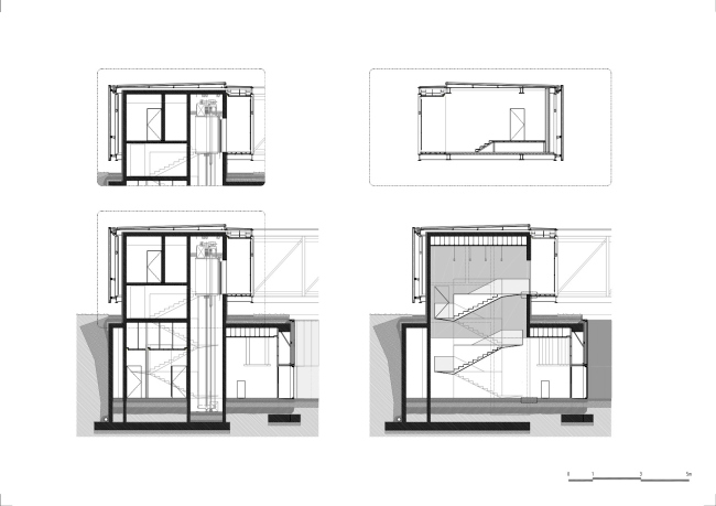
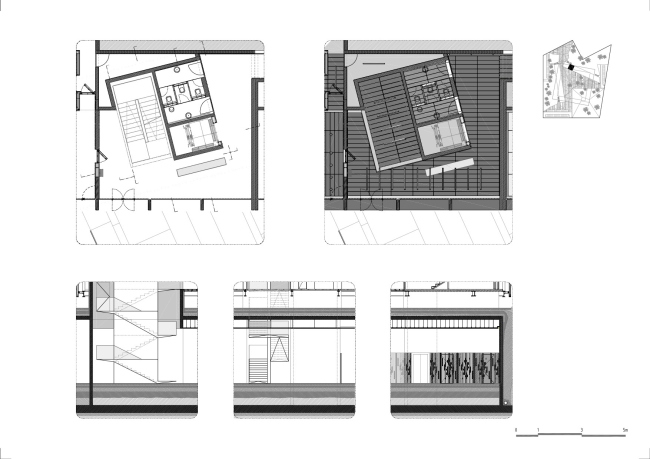
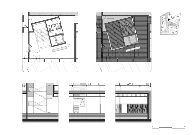
В результате, «пьяцца» стала двором, где вымостка местами уступает место траве, создавая «природный» эффект. Г-образный объем первого этажа утоплен в землю, а из вынутой при строительстве почвы был насыпан ограждающий двор холм. Основной объем постройки – это квадратная в плане «рама» с шестью «опорными» точками.
 
Технологический парк Обидуша © João Morgado - Architecture Photography
Технологический парк Обидуша © João Morgado - Architecture Photography

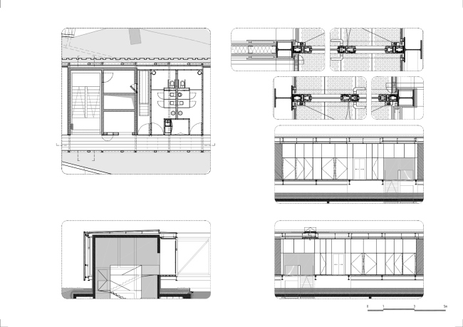
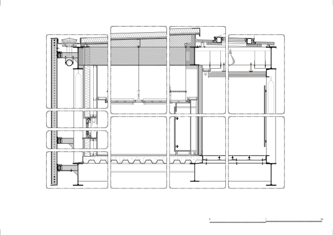
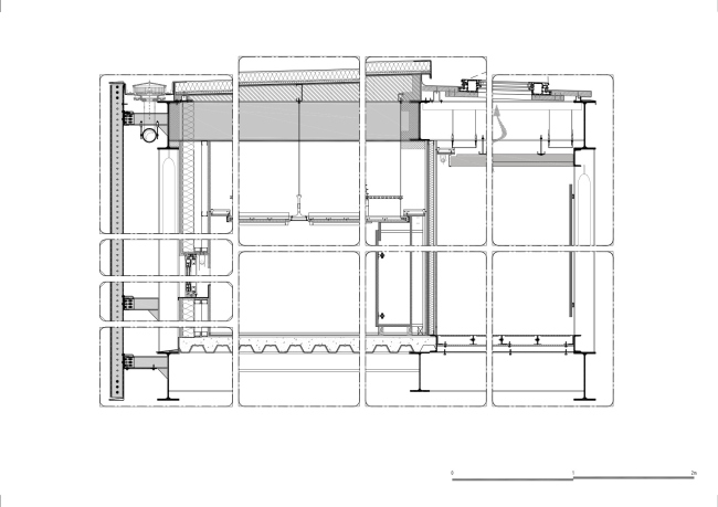
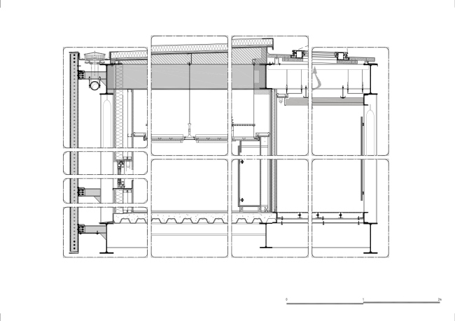
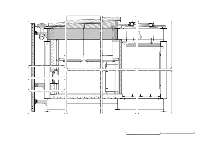
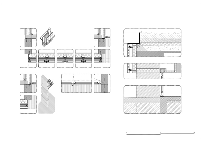
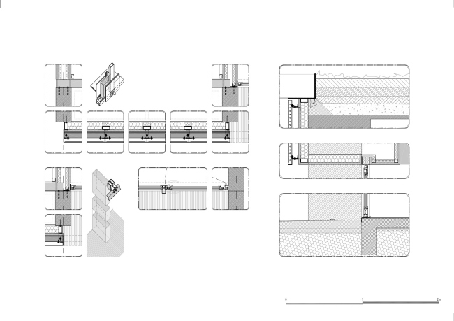
В нижней части постройки расположены пространства общего пользования: многофункциональный зал Fablab, небольшая столовая, магазины и главные технические помещения. В «раме» размещаются офисы компаний-резидентов. Все пространства технопарка спланированы по единому модулю и потому легко могут поменять конфигурацию, если потребности резидентов изменятся.
 
Технологический парк Обидуша © João Morgado - Architecture Photography
Технологический парк Обидуша © João Morgado - Architecture Photography

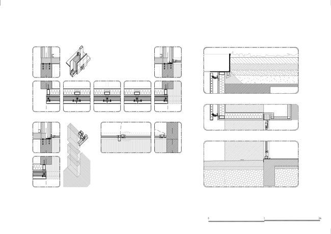
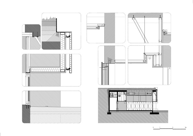
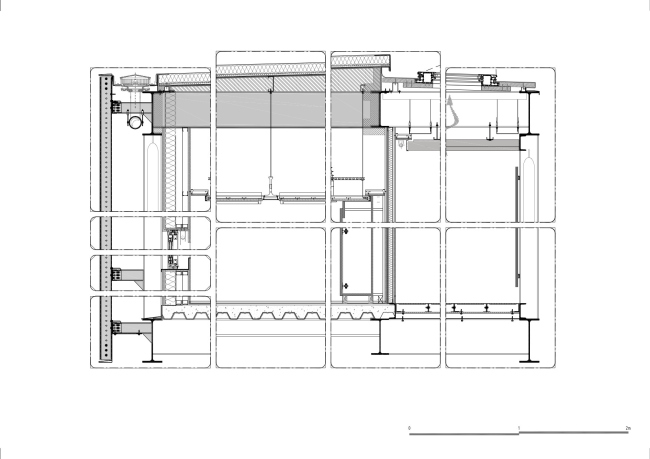
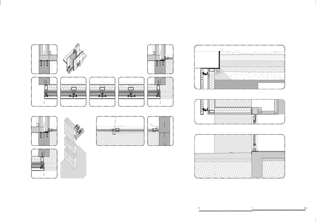
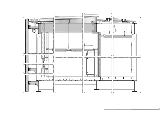
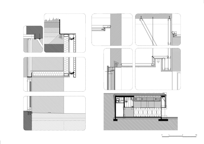
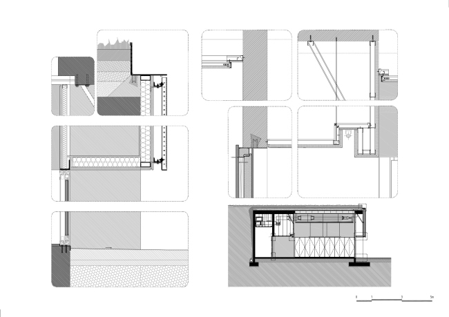
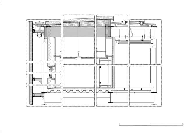
Нижняя часть постройки выполнена из грубого бетона и стали кортен с небольшим включением дерева: эти «тяжелые» материалы подчеркивают земной, «теллурический» характер этой зоны. Офисная часть, напротив, кажется светлой и легкой: это впечатление создают белые стальные фермы и перфорированные панели, а также остекление.

 
Технологический парк Обидуша © João Morgado - Architecture Photography
Технологический парк Обидуша © João Morgado - Architecture Photography
Технологический парк Обидуша © João Morgado - Architecture Photography
Технологический парк Обидуша © João Morgado - Architecture Photography
Технологический парк Обидуша © João Morgado - Architecture Photography
Технологический парк Обидуша © João Morgado - Architecture Photography
Технологический парк Обидуша © João Morgado - Architecture Photography
Технологический парк Обидуша © João Morgado - Architecture Photography
Технологический парк Обидуша © João Morgado - Architecture Photography
Технологический парк Обидуша © João Morgado - Architecture Photography
Технологический парк Обидуша © João Morgado - Architecture Photography
Технологический парк Обидуша © João Morgado - Architecture Photography
Технологический парк Обидуша © João Morgado - Architecture Photography
Технологический парк Обидуша © João Morgado - Architecture Photography
Технологический парк Обидуша © João Morgado - Architecture Photography
Технологический парк Обидуша © João Morgado - Architecture Photography
Технологический парк Обидуша © João Morgado - Architecture Photography
Технологический парк Обидуша © João Morgado - Architecture Photography
Технологический парк Обидуша © João Morgado - Architecture Photography
Технологический парк Обидуша © João Morgado - Architecture Photography
Технологический парк Обидуша © João Morgado - Architecture Photography
Технологический парк Обидуша © João Morgado - Architecture Photography
Технологический парк Обидуша © João Morgado - Architecture Photography
Технологический парк Обидуша © João Morgado - Architecture Photography
Технологический парк Обидуша © João Morgado - Architecture Photography
Технологический парк Обидуша © João Morgado - Architecture Photography
Технологический парк Обидуша © João Morgado - Architecture Photography
Технологический парк Обидуша © João Morgado - Architecture Photography
Технологический парк Обидуша © João Morgado - Architecture Photography
Технологический парк Обидуша © João Morgado - Architecture Photography
Технологический парк Обидуша © João Morgado - Architecture Photography
Технологический парк Обидуша © João Morgado - Architecture Photography
Технологический парк Обидуша © João Morgado - Architecture Photography
Технологический парк Обидуша © João Morgado - Architecture Photography
Технологический парк Обидуша © João Morgado - Architecture Photography
Технологический парк Обидуша © João Morgado - Architecture Photography
Технологический парк Обидуша © João Morgado - Architecture Photography
Технологический парк Обидуша © João Morgado - Architecture Photography
Технологический парк Обидуша © João Morgado - Architecture Photography
Технологический парк Обидуша © João Morgado - Architecture Photography
Технологический парк Обидуша © João Morgado - Architecture Photography
Технологический парк Обидуша © João Morgado - Architecture Photography
Технологический парк Обидуша © João Morgado - Architecture Photography
Технологический парк Обидуша © João Morgado - Architecture Photography
Технологический парк Обидуша © João Morgado - Architecture Photography
Технологический парк Обидуша © João Morgado - Architecture Photography
Технологический парк Обидуша © João Morgado - Architecture Photography
Технологический парк Обидуша © João Morgado - Architecture Photography
Технологический парк Обидуша © João Morgado - Architecture Photography
Технологический парк Обидуша © João Morgado - Architecture Photography
Технологический парк Обидуша © João Morgado - Architecture Photography
Технологический парк Обидуша © João Morgado - Architecture Photography
Технологический парк Обидуша © João Morgado - Architecture Photography
Технологический парк Обидуша © João Morgado - Architecture Photography
Технологический парк Обидуша © João Morgado - Architecture Photography
Технологический парк Обидуша © João Morgado - Architecture Photography
Технологический парк Обидуша © João Morgado - Architecture Photography
Технологический парк Обидуша © João Morgado - Architecture Photography
Технологический парк Обидуша © João Morgado - Architecture Photography
Технологический парк Обидуша © João Morgado - Architecture Photography
Технологический парк Обидуша © João Morgado - Architecture Photography
Технологический парк Обидуша © João Morgado - Architecture Photography
Технологический парк Обидуша © João Morgado - Architecture Photography
Технологический парк Обидуша © João Morgado - Architecture Photography
Технологический парк Обидуша © João Morgado - Architecture Photography
Технологический парк Обидуша © João Morgado - Architecture Photography
Технологический парк Обидуша © João Morgado - Architecture Photography
Технологический парк Обидуша © João Morgado - Architecture Photography
Технологический парк Обидуша © João Morgado - Architecture Photography
Технологический парк Обидуша © João Morgado - Architecture Photography
Технологический парк Обидуша © João Morgado - Architecture Photography
Технологический парк Обидуша © João Morgado - Architecture Photography
Технологический парк Обидуша © João Morgado - Architecture Photography
Технологический парк Обидуша © João Morgado - Architecture Photography
Технологический парк Обидуша © João Morgado - Architecture Photography
Технологический парк Обидуша © João Morgado - Architecture Photography
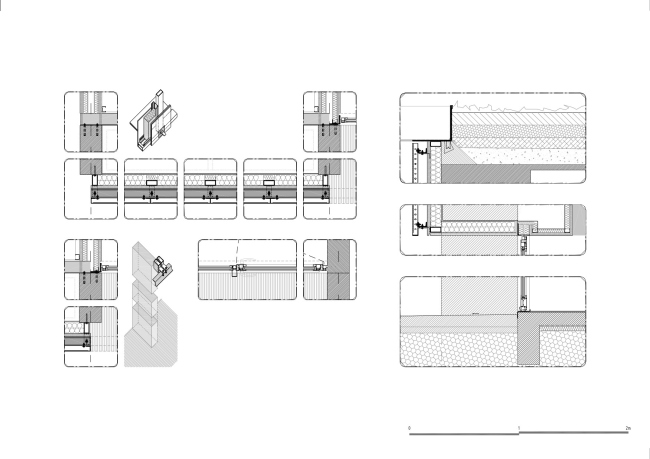
Технологический парк Обидуша © Jorge Mealha
Технологический парк Обидуша © Jorge Mealha
Технологический парк Обидуша © Jorge Mealha
Технологический парк Обидуша © Jorge Mealha
Технологический парк Обидуша © Jorge Mealha
Технологический парк Обидуша © Jorge Mealha
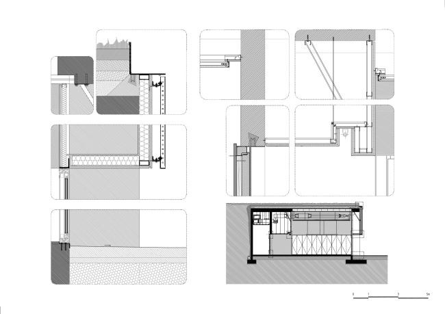
Технологический парк Обидуша © Jorge Mealha
Технологический парк Обидуша © Jorge Mealha
Технологический парк Обидуша © Jorge Mealha
Технологический парк Обидуша © Jorge Mealha
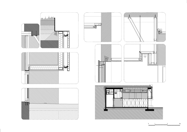
Технологический парк Обидуша © Jorge Mealha
Технологический парк Обидуша © Jorge Mealha
Технологический парк Обидуша © Jorge Mealha
Технологический парк Обидуша © Jorge Mealha
Технологический парк Обидуша © Jorge Mealha
Технологический парк Обидуша © Jorge Mealha
Технологический парк Обидуша © Jorge Mealha
Технологический парк Обидуша © Jorge Mealha
Технологический парк Обидуша © Jorge Mealha
Технологический парк Обидуша © Jorge Mealha
Технологический парк Обидуша © Jorge Mealha
Технологический парк Обидуша © Jorge Mealha
Технологический парк Обидуша © Jorge Mealha
Технологический парк Обидуша © Jorge Mealha
Технологический парк Обидуша © Jorge Mealha
Технологический парк Обидуша © Jorge Mealha
Технологический парк Обидуша © Jorge Mealha
Технологический парк Обидуша © Jorge Mealha
Технологический парк Обидуша © Jorge Mealha
Технологический парк Обидуша © Jorge Mealha
Технологический парк Обидуша © Jorge Mealha
Технологический парк Обидуша © Jorge Mealha
Технологический парк Обидуша © Jorge Mealha
Технологический парк Обидуша © Jorge Mealha
Технологический парк Обидуша © Jorge Mealha
Технологический парк Обидуша © Jorge Mealha
Технологический парк Обидуша © Jorge Mealha
Технологический парк Обидуша © Jorge Mealha
Технологический парк Обидуша © Jorge Mealha
Технологический парк Обидуша © Jorge Mealha
Технологический парк Обидуша © Jorge Mealha
Технологический парк Обидуша © Jorge Mealha