Размещено на портале Архи.ру (www.archi.ru)

23.01.2015

Обучающая экосистема

Нина Фролова
Объект:
Начальная школа наук и биоразнообразия
Адрес:
Франция, None, Париж.
Мастерская:
ChartierDalix

В Париже построена в прямом и переносном смысле «зеленая» начальная школа по проекту бюро Chartier Dalix.

Начальная школа наук и биоразнообразия © P. Guignard SAEM Val de Seine Aménagement
Начальная школа наук и биоразнообразия © P. Guignard SAEM Val de Seine Aménagement

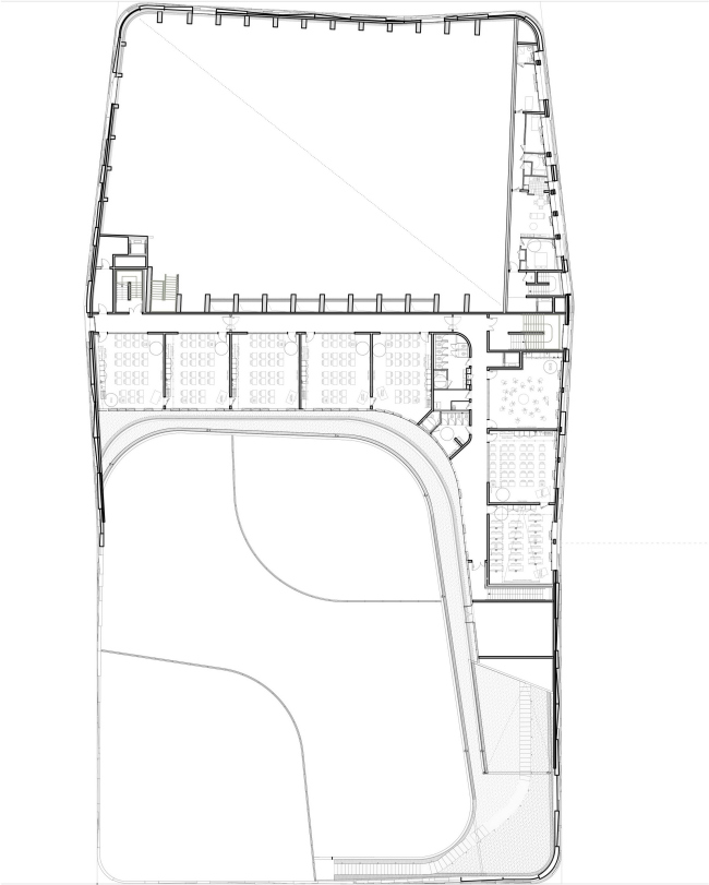
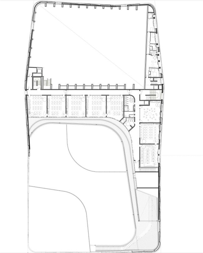
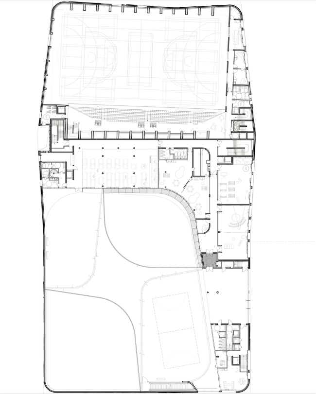
Комплекс, совмещающий детский сад и начальную школу со спортзалом для местных жителей, появился в пригороде Парижа Булонь-Бийанкур, на бывшей территории завода Renault, ныне занятой плотной застройкой – жилой и офисной.
 
Начальная школа наук и биоразнообразия © Cyrille Weiner
Начальная школа наук и биоразнообразия © Cyrille Weiner

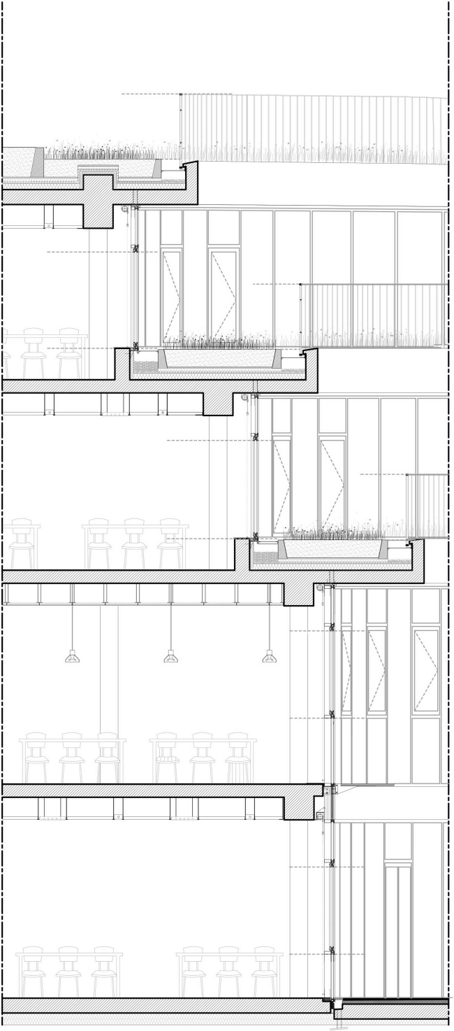
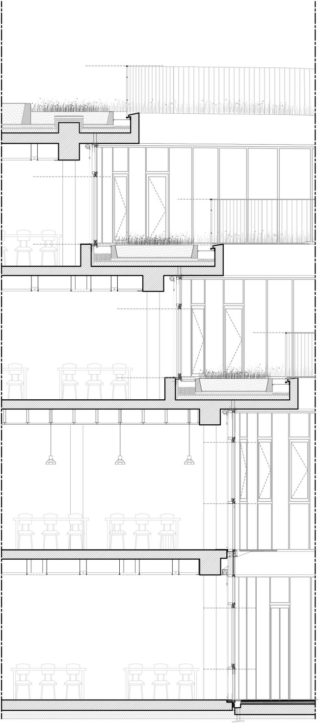
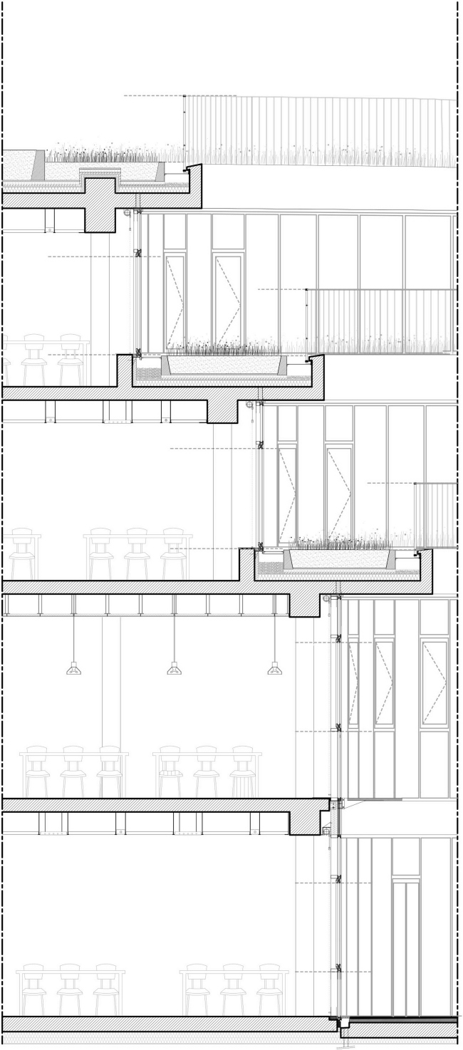
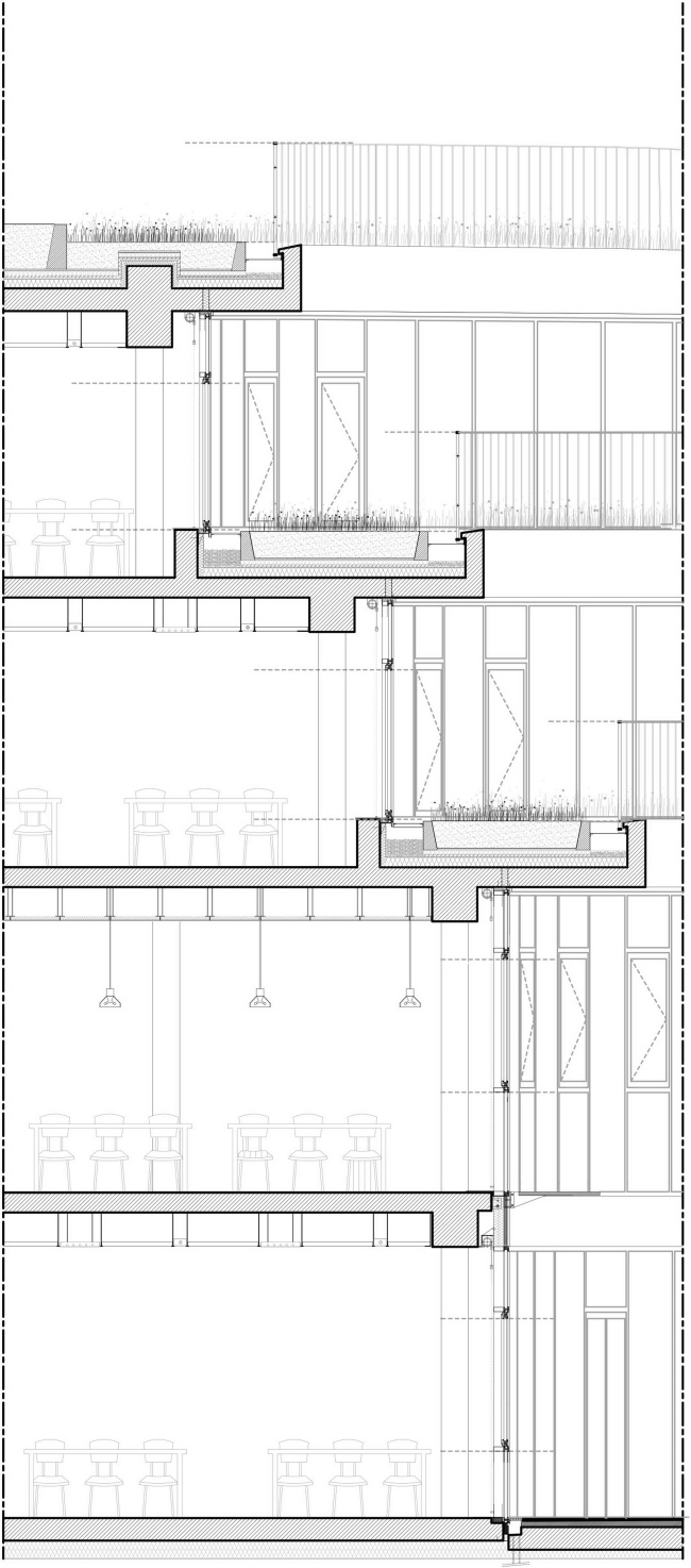
Архитекторы стремились вернуть биоразнообразие в городские кварталы, создав там для этого полноценную экосистему, которая бы не только повышала качество среды, но и служила «наглядным пособием» для детей. Поэтому Начальная школа наук и биоразнообразия снабжена «минеральной стеной» и озелененной крышей.
 
Начальная школа наук и биоразнообразия © David Foessel
Начальная школа наук и биоразнообразия © David Foessel

«Минеральные» фасады составлены из выступающих бетонных блоков с гладкой передней поверхностью и фактурными боковыми: эти неровности направляют потоки дождевой воды по торцам блоков. Помимо этого, в блоках предусмотрены выемки для высадки папоротников и мха, а также отверстия, где могут поселиться насекомые и летучие мыши, устроить гнезда птицы – ласточки, стрижи, скворцы, пустельги, горихвостки, малиновки. До высоты в 2 метра фасады оставлены более гладкими – чтобы затруднить подъем вверх хищным животным и злоумышленникам.
 
Начальная школа наук и биоразнообразия © David Foessel
Начальная школа наук и биоразнообразия © David Foessel

Крыша здания поделена на две части – «степную» со слоем земли в 50 см, и лесную и кустарниковую с метровым слоем почвы. Эти растения обеспечат пищей обитателей фасадов и кровли. Кроме того, этот искусственный ландшафт украсил вид из окон офисных и жилых корпусов, окружающих школу Chartier Dalix.
 
Начальная школа наук и биоразнообразия © David Foessel
Начальная школа наук и биоразнообразия © David Foessel

Архитекторы придали своему зданию «эластичную» форму, которой «обтянута» его разнообразная программа – детский сад (7 классных комнат, столовая и досуговый центр) и начальная школа (11 классов, столовая и досуговый центр), две игровые площадки – для малышей и школьников, соответственно, а также общедоступный спортивный зал, где при проведении соревнований могут разместиться 250 зрителей. Также имеются административные помещения и парковка для сотрудников.
Начальная школа наук и биоразнообразия © Cyrille Weiner
Начальная школа наук и биоразнообразия © Cyrille Weiner
Начальная школа наук и биоразнообразия © David Foessel
Начальная школа наук и биоразнообразия © David Foessel
Начальная школа наук и биоразнообразия © David Foessel
Начальная школа наук и биоразнообразия © David Foessel
Начальная школа наук и биоразнообразия © Cyrille Weiner
Начальная школа наук и биоразнообразия © Cyrille Weiner
Начальная школа наук и биоразнообразия © Cyrille Weiner
Начальная школа наук и биоразнообразия © Cyrille Weiner
Начальная школа наук и биоразнообразия © David Foessel
Начальная школа наук и биоразнообразия © David Foessel
Начальная школа наук и биоразнообразия © Cyrille Weiner
Начальная школа наук и биоразнообразия © Cyrille Weiner
Начальная школа наук и биоразнообразия. «Эволюция» озеленения © Chartier Dalix architectes
Начальная школа наук и биоразнообразия. «Эволюция» озеленения © Chartier Dalix architectes
Начальная школа наук и биоразнообразия. «Эволюция» озеленения © Chartier Dalix architectes
Начальная школа наук и биоразнообразия. «Эволюция» озеленения © Chartier Dalix architectes
Начальная школа наук и биоразнообразия © Chartier Dalix architectes
Начальная школа наук и биоразнообразия © Chartier Dalix architectes
Начальная школа наук и биоразнообразия © Chartier Dalix architectes
Начальная школа наук и биоразнообразия © Chartier Dalix architectes
Начальная школа наук и биоразнообразия © Chartier Dalix architectes
Начальная школа наук и биоразнообразия © Chartier Dalix architectes
Начальная школа наук и биоразнообразия © Chartier Dalix architectes
Начальная школа наук и биоразнообразия © Chartier Dalix architectes
Начальная школа наук и биоразнообразия © Chartier Dalix architectes
Начальная школа наук и биоразнообразия © Chartier Dalix architectes
Начальная школа наук и биоразнообразия © Chartier Dalix architectes
Начальная школа наук и биоразнообразия © Chartier Dalix architectes
Начальная школа наук и биоразнообразия © Chartier Dalix architectes
Начальная школа наук и биоразнообразия © Chartier Dalix architectes
Начальная школа наук и биоразнообразия © Chartier Dalix architectes
Начальная школа наук и биоразнообразия © Chartier Dalix architectes
Начальная школа наук и биоразнообразия © Chartier Dalix architectes
Начальная школа наук и биоразнообразия © Chartier Dalix architectes
Начальная школа наук и биоразнообразия © Chartier Dalix architectes
Начальная школа наук и биоразнообразия © Chartier Dalix architectes
Начальная школа наук и биоразнообразия © Chartier Dalix architectes
Начальная школа наук и биоразнообразия © Chartier Dalix architectes
Начальная школа наук и биоразнообразия © Chartier Dalix architectes
Начальная школа наук и биоразнообразия © Chartier Dalix architectes
Начальная школа наук и биоразнообразия © Chartier Dalix architectes
Начальная школа наук и биоразнообразия © Chartier Dalix architectes
Начальная школа наук и биоразнообразия © Chartier Dalix architectes
Начальная школа наук и биоразнообразия © Chartier Dalix architectes
Начальная школа наук и биоразнообразия © Chartier Dalix architectes
Начальная школа наук и биоразнообразия © Chartier Dalix architectes
Начальная школа наук и биоразнообразия © Chartier Dalix architectes
Начальная школа наук и биоразнообразия © Chartier Dalix architectes
Начальная школа наук и биоразнообразия © Chartier Dalix architectes
Начальная школа наук и биоразнообразия © Chartier Dalix architectes
Начальная школа наук и биоразнообразия © Chartier Dalix architectes
Начальная школа наук и биоразнообразия © Chartier Dalix architectes