Размещено на портале Архи.ру (www.archi.ru)

20.01.2015

Точка слияния

Нина Фролова
Объект:
Музей Конфлуанс
Адрес:
Франция, None, Лион.
Мастерская:
Coop Himmelb(l)au

В Лионе открылся естественнонаучный Музей Конфлуанс, спроектированный бюро Coop Himmelb(l)au.

Музей Конфлуанс © Duccio Malagamba
Музей Конфлуанс © Duccio Malagamba

Австрийские архитекторы выиграли конкурс на этот проект еще в 2001, и его реализация шла непросто: процесс строительства прерывался на два года, а его первая очередь включала в себя исключительно сооружение свайного фундамента (общая длина вбитых свай составила 536 м). Они были необходимыми, так как музей возведен на слабом прибрежном грунте – в месте слияния Роны и Соны. Confluence переводится как «слияние»; также это название всего прилегающего к «стрелке» (point de confluence, «точке слияния») района.
 
Музей Конфлуанс © Duccio Malagamba
Музей Конфлуанс © Duccio Malagamba

Музей – важное сооружение в масштабе города: заметное местоположение делает его «маяком» и символом всего нового района Конфлуанс – бывшей промзоны-полуострова недалеко от центра Лиона, которая сейчас застраивается учреждениями культуры, офисными и жилыми корпусами по проектам видных архитекторов.
 
Музей Конфлуанс © Duccio Malagamba
Музей Конфлуанс © Duccio Malagamba

Постройка Coop Himmelb(l)au находится на оживленных пешеходных маршрутах, поэтому, чтобы не создавать препятствие для движения горожан, здание приподнято над землей, а под ним находится «плаза» с закусочной.
 
Музей Конфлуанс © Duccio Malagamba
Музей Конфлуанс © Duccio Malagamba

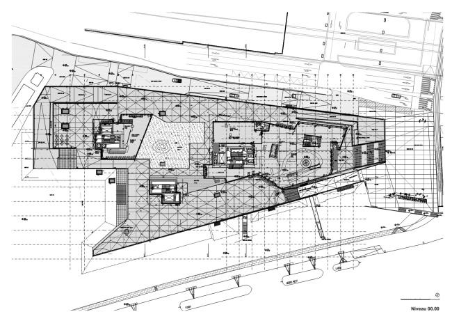
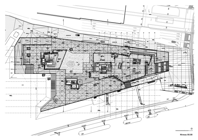
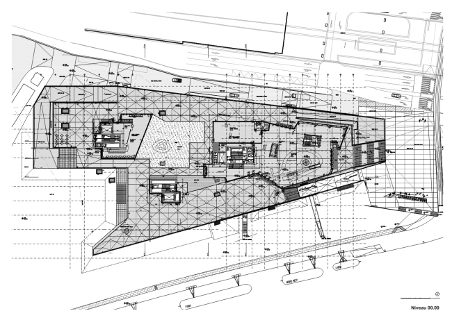
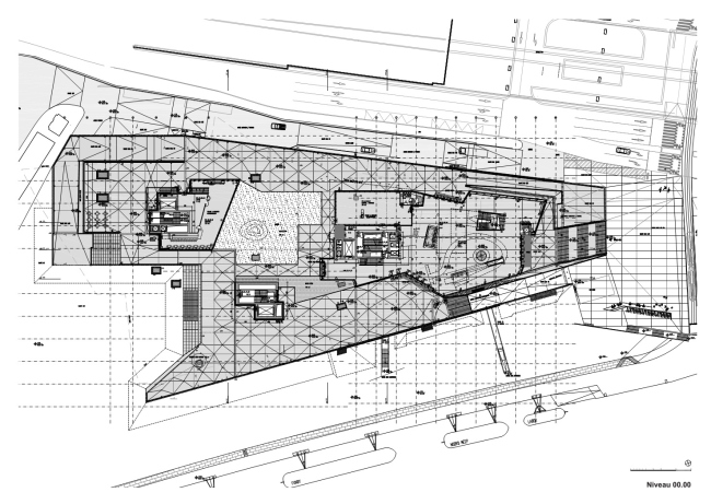
Музей Конфлуанс состоит из трех частей. «Цоколь», на котором размещена упомянутая «плаза», вмещает два аудитории (на 327 и 122 места, соответственно), помещения для занятий учеников из близлежащих школ, запасники и мастерские, переговорные. Остекленный «Кристалл» – это вестибюль с спиральным пандусом, лестницей и лифтами, а также книжным магазином. Третий, самый важный объем – «Облако» из нержавеющей стали с несущей конструкцией типа моста. Там находятся 9 залов (4 для постоянной и 5 для временной экспозиции) и «общественные» мастерские; на верхнем уровне помещены офисы администрации, а на крыше – кафе и солнечные батареи. «Летящие» консольные выносы постройки вдохновлены сливающимися рядом водными потоками.
 
Музей Конфлуанс © Duccio Malagamba
Музей Конфлуанс © Duccio Malagamba

Бюджет проекта составил 185 млн евро (3980 евро за квадратный метр).

 
Музей Конфлуанс © Duccio Malagamba
Музей Конфлуанс © Duccio Malagamba
Музей Конфлуанс © Duccio Malagamba
Музей Конфлуанс © Duccio Malagamba
Музей Конфлуанс © Duccio Malagamba
Музей Конфлуанс © Duccio Malagamba
Музей Конфлуанс © Duccio Malagamba
Музей Конфлуанс © Duccio Malagamba
Музей Конфлуанс © Duccio Malagamba
Музей Конфлуанс © Duccio Malagamba
Музей Конфлуанс © Duccio Malagamba
Музей Конфлуанс © Duccio Malagamba
Музей Конфлуанс © Duccio Malagamba
Музей Конфлуанс © Duccio Malagamba
Музей Конфлуанс © Duccio Malagamba
Музей Конфлуанс © Duccio Malagamba
Музей Конфлуанс © Duccio Malagamba
Музей Конфлуанс © Duccio Malagamba
Музей Конфлуанс © Duccio Malagamba
Музей Конфлуанс © Duccio Malagamba
Музей Конфлуанс © COOP HIMMELB(L)AU
Музей Конфлуанс © COOP HIMMELB(L)AU
Музей Конфлуанс © COOP HIMMELB(L)AU
Музей Конфлуанс © COOP HIMMELB(L)AU
Музей Конфлуанс © COOP HIMMELB(L)AU
Музей Конфлуанс © COOP HIMMELB(L)AU
Музей Конфлуанс © COOP HIMMELB(L)AU
Музей Конфлуанс © COOP HIMMELB(L)AU
Музей Конфлуанс © COOP HIMMELB(L)AU
Музей Конфлуанс © COOP HIMMELB(L)AU
Музей Конфлуанс © COOP HIMMELB(L)AU
Музей Конфлуанс © COOP HIMMELB(L)AU