Размещено на портале Архи.ру (www.archi.ru)

16.01.2015

Фасадный переплет

Нина Фролова
Объект:
Культурный центр Väven
Адрес:
Швеция, None, Умео.
Мастерская:
Snøhetta
White

В Умео на севере Швеции построен культурный центр Väven по проекту бюро Snøhetta.

Культурный центр Väven © Åke E:son Lindman
Культурный центр Väven © Åke E:son Lindman

Väven, спроектированный норвежским бюро совместно со шведской мастерской White, занимает квартал в центре города, рядом с парком ратуши. Его появление – часть программы реконструкции прибрежной зоны реки Уме; он граничит с новой набережной и продолжает эту общественную зону своей разнообразной общественной программой.
 
Культурный центр Väven © Åke E:son Lindman
Культурный центр Väven © Åke E:son Lindman

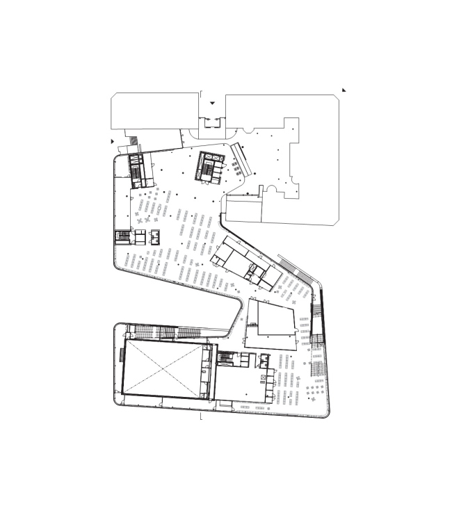
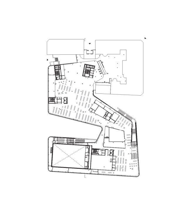
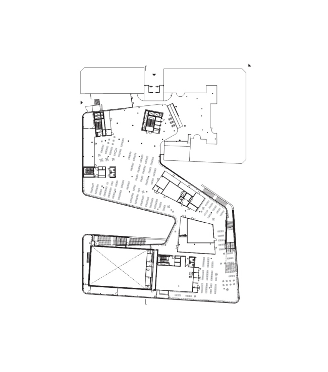
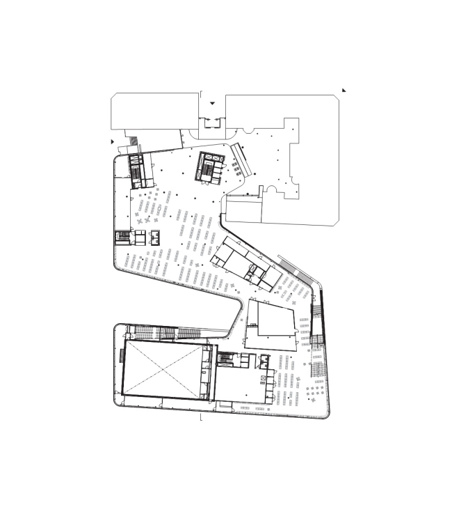
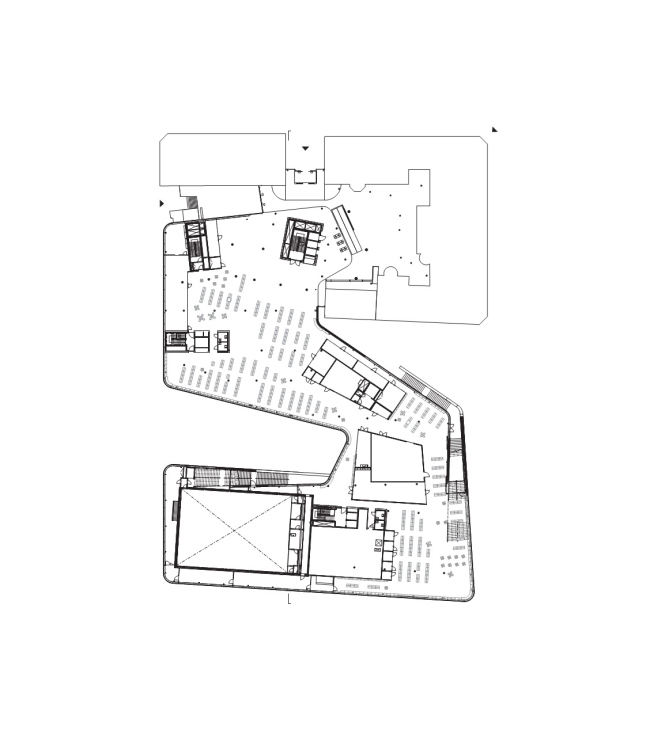
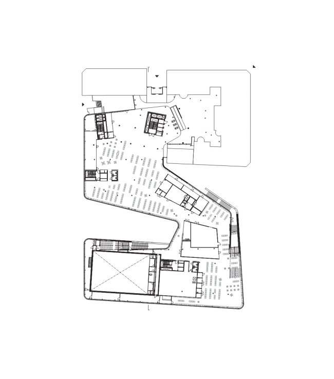
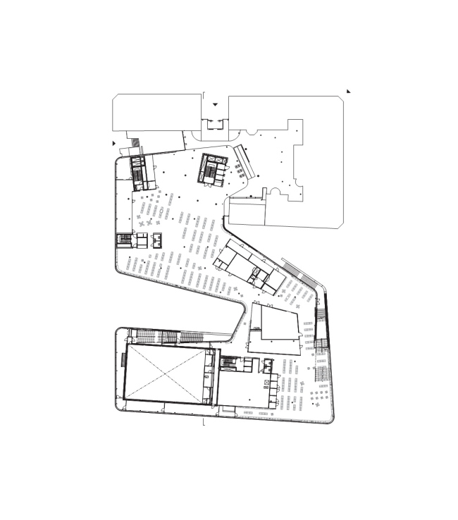
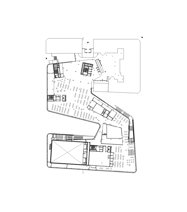
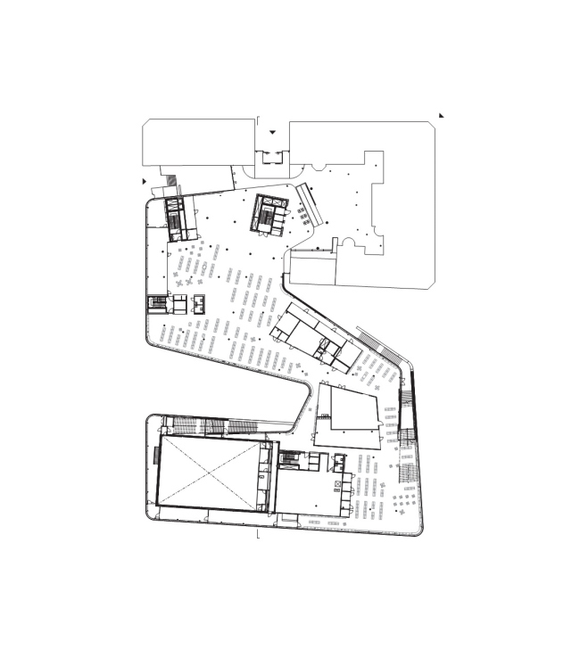
Väven в переводе со шведского означает «переплетение» – это название напоминает о том, что в культурном центре объединены городская библиотека, зал для спектаклей, концертов и конференций типа black box, кинозалы, пространства для разнообразных культурных и общественных мероприятий меньшего масштаба, Музей истории женщин, а также отель, кафе и бары.
 
Культурный центр Väven © Åke E:son Lindman
Культурный центр Väven © Åke E:son Lindman

Мотив «плетения» отражен также и на фасадах: темные остекленные участки как будто сплетаются с светлыми непрозрачными панелями, образуя яркое графичное решение, которое также отсылает к рисунку коры березы – типичного для севера Швеции дерева.
Культурный центр Väven © Åke E:son Lindman
Культурный центр Väven © Åke E:son Lindman
Культурный центр Väven © Åke E:son Lindman
Культурный центр Väven © Åke E:son Lindman
Культурный центр Väven © Åke E:son Lindman
Культурный центр Väven © Åke E:son Lindman
Культурный центр Väven © Åke E:son Lindman
Культурный центр Väven © Åke E:son Lindman
Культурный центр Väven © Åke E:son Lindman
Культурный центр Väven © Åke E:son Lindman
Культурный центр Väven © Åke E:son Lindman
Культурный центр Väven © Åke E:son Lindman
Культурный центр Väven © Åke E:son Lindman
Культурный центр Väven © Åke E:son Lindman
Культурный центр Väven © Åke E:son Lindman
Культурный центр Väven © Åke E:son Lindman
Культурный центр Väven © Åke E:son Lindman
Культурный центр Väven © Åke E:son Lindman
Культурный центр Väven © Åke E:son Lindman
Культурный центр Väven © Åke E:son Lindman
Культурный центр Väven © Åke E:son Lindman
Культурный центр Väven © Åke E:son Lindman
Культурный центр Väven © Åke E:son Lindman
Культурный центр Väven © Åke E:son Lindman
Культурный центр Väven © Åke E:son Lindman
Культурный центр Väven © Åke E:son Lindman
Культурный центр Väven © Åke E:son Lindman
Культурный центр Väven © Åke E:son Lindman
Культурный центр Väven © Åke E:son Lindman
Культурный центр Väven © Åke E:son Lindman
Культурный центр Väven © Snøhetta & White Arkitekter AB
Культурный центр Väven © Snøhetta & White Arkitekter AB
Культурный центр Väven © Snøhetta & White Arkitekter AB
Культурный центр Väven © Snøhetta & White Arkitekter AB
Культурный центр Väven © Snøhetta & White Arkitekter AB
Культурный центр Väven © Snøhetta & White Arkitekter AB
Культурный центр Väven © Snøhetta & White Arkitekter AB
Культурный центр Väven © Snøhetta & White Arkitekter AB
Культурный центр Väven © Snøhetta & White Arkitekter AB
Культурный центр Väven © Snøhetta & White Arkitekter AB
Культурный центр Väven © Snøhetta & White Arkitekter AB
Культурный центр Väven © Snøhetta & White Arkitekter AB
Культурный центр Väven © Snøhetta & White Arkitekter AB
Культурный центр Väven © Snøhetta & White Arkitekter AB
Культурный центр Väven © Snøhetta & White Arkitekter AB
Культурный центр Väven © Snøhetta & White Arkitekter AB
Культурный центр Väven © Snøhetta & White Arkitekter AB
Культурный центр Väven © Snøhetta & White Arkitekter AB
Культурный центр Väven © Snøhetta & White Arkitekter AB
Культурный центр Väven © Snøhetta & White Arkitekter AB