Размещено на портале Архи.ру (www.archi.ru)

13.05.2008

Стихийный частный мир

Мария Фадеева
Объект:
Индивидуальный жилой дом, Никольская слобода
Адрес:
Россия, Московская область , поселок Никольская слобода
Мастерская:
PANACOM
Авторский коллектив:
Никита Токарев, Арсений Леонович

Для своего нового проекта в «Николиной слободе» бюро «Панаком» предлагает стройную легенду, присвоив 4-м объемам постройки характеристики четырех стихий. Получилась декоративно обработанная картина мира, удивительно приятная в своей статичности. Архитекторы вернулись к присущему им ранее строгому стилю, разбавив его бетонным узорочьем и орнаментальной аппликацией

Индивидуальный жилой дом, Никольская слобода
Индивидуальный жилой дом, Никольская слобода
© PANACOM

Простой и ясный сценарий подсказал структуру автономных блоков помещений: хозяйские, гостевые и оздоровительные. Архитекторы, выделив их в отдельные объемы, добавили еще один – входную стеклянную башню-атриум. Блок с бассейном приравняли к водной стихии, гостевой блок с кабинетом и отдельным входом – к спокойной земле, хозяйскую зону с камином в двусветном пространстве – к огненному очагу. Вместо традиционной четвертой стихии ветра, в доме появился более инертный «воздух», представленный тем самым стеклянным входом. Как в реальном мире воздух соприкасается со всеми другими стихиями никак не влияя на них, но объединяя, так и входной атриум собирает остальные три объема в единую композицию. Его интерьер планируется сделать почти уличным, с фонтаном, скамьей и центральной лестницей.

Каменная отделка всех объемов будет врезаться в этот стеклянный параллелепипед, так что в результате получится небольшой крытый дворик, своим масштабом и устройством отчего-то напоминающий иллюстрации из жизни древнего Рима. Учитывая, что центральная лестница предназначена в том числе и для обслуживающего персонала, в гостиной  части дома  появился собственный подъем на второй этаж. В связи с этим не кажется странным предложение заказчика оформить  античные фрагменты архитектурных деталей в массиве стен – пространство позволяет и интригует.

Во избежание перегрева застекольного пространства и большей образности атриума-«воздуха», авторы предложили нанести на стены геометрический рисунок a’la  кольчуга –  получились этакие пузырьки. Правда, архитекторы полагают, что в ходе дальнейшей разработки они могут видоизмениться. Другое дело, что вне зависимости от окончательного орнаментального мотива его решили распространить на все функциональные блоки – воздух ведь куда угодно может просочиться.

В итоге он появился на некоторых окнах, а также в виде массивных бетонных пергол. Ими прикрыты более приватные зоны: окна санузлов, столовая, часть балкона. «Стихийность» же остальных объемов планируется выразить в отделке: снаружи будет использован один вид камня, но с разной фактурой – так, «земля» будет более шероховатой, а «вода» совсем гладкой. Большое разнообразие материалов, соотнесенных с той или иной стихией обещают в интерьерах, которые на стадии концепции только появляются. Таким образом, хозяева получат свой собственный законченный мир в окружении большого сада, в котором даже гараж планируется закопать внутрь холма.

Индивидуальный жилой дом, Никольская слобода
Индивидуальный жилой дом, Никольская слобода
© PANACOM
Индивидуальный жилой дом, Никольская слобода
Индивидуальный жилой дом, Никольская слобода
© PANACOM
Индивидуальный жилой дом, Никольская слобода
Индивидуальный жилой дом, Никольская слобода
© PANACOM
Индивидуальный жилой дом, Никольская слобода
Индивидуальный жилой дом, Никольская слобода
© PANACOM
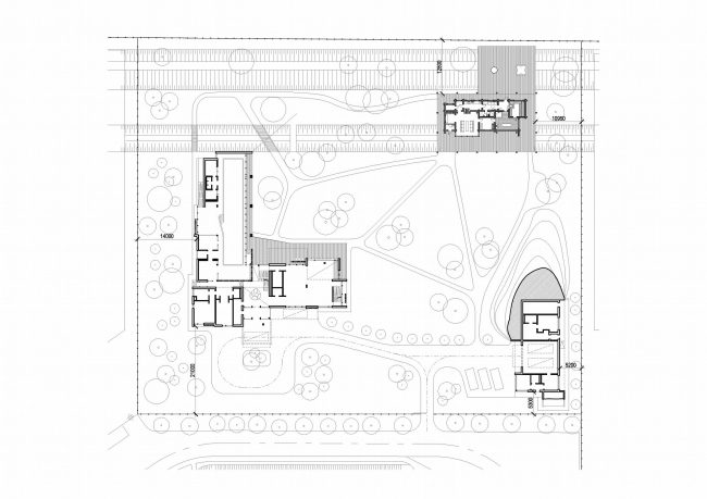
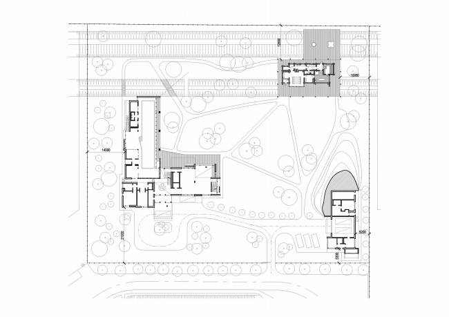
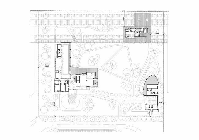
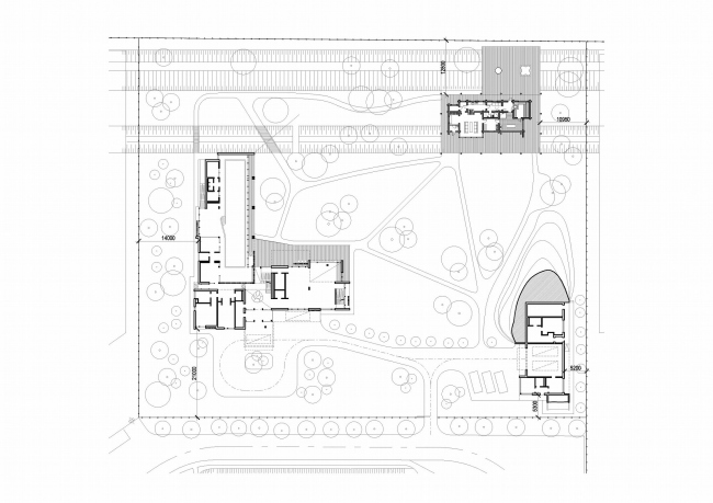
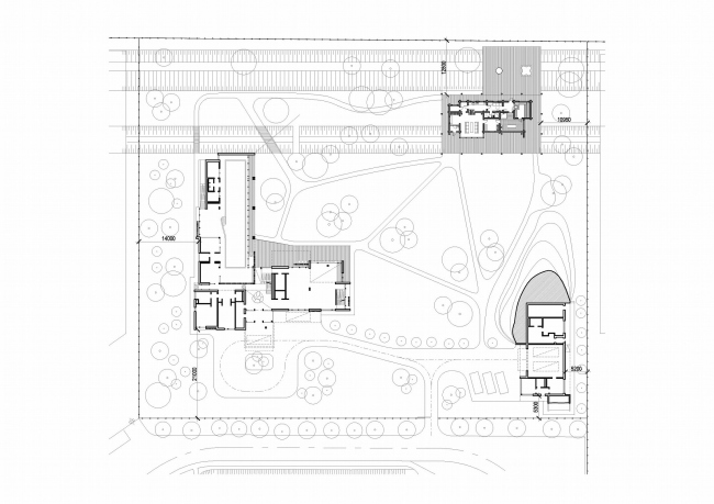
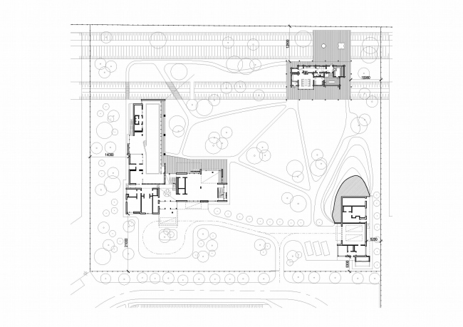
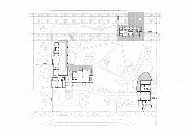
Индивидуальный жилой дом, Никольская слобода. Генплан участка
Индивидуальный жилой дом, Никольская слобода. Генплан участка
© PANACOM
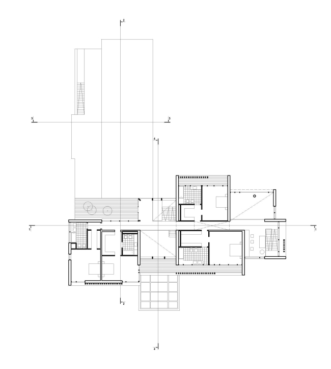
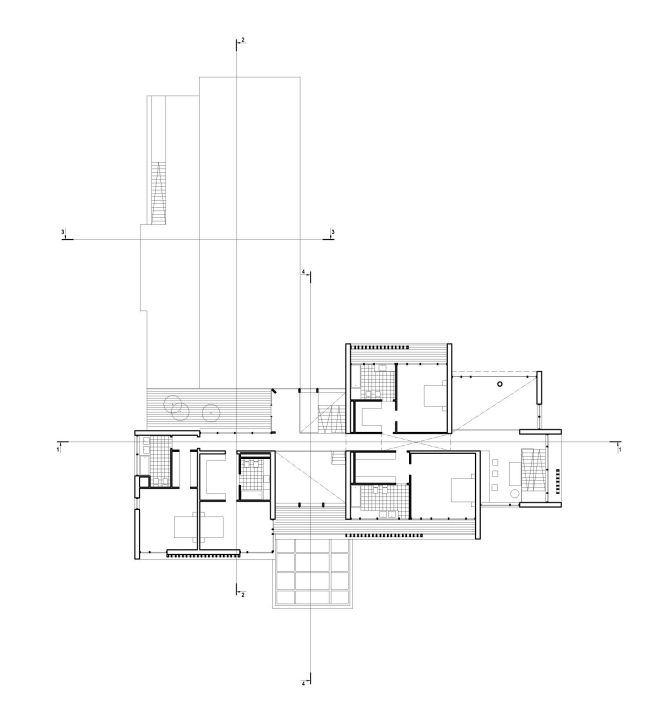
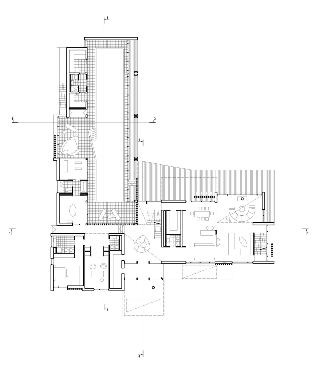
Индивидуальный жилой дом, Никольская слобода. Первый ярус
Индивидуальный жилой дом, Никольская слобода. Первый ярус
© PANACOM
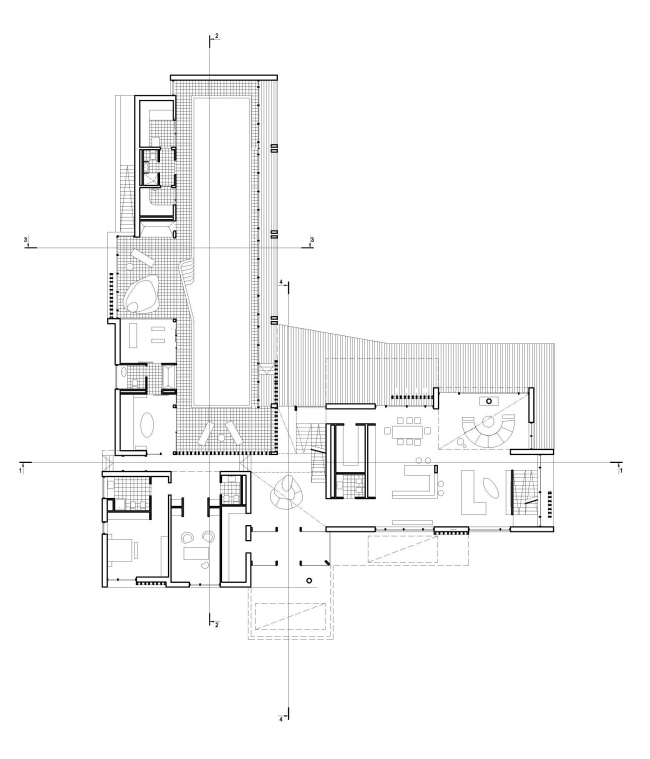
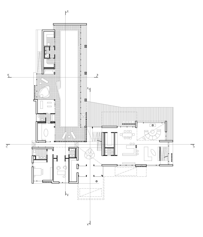
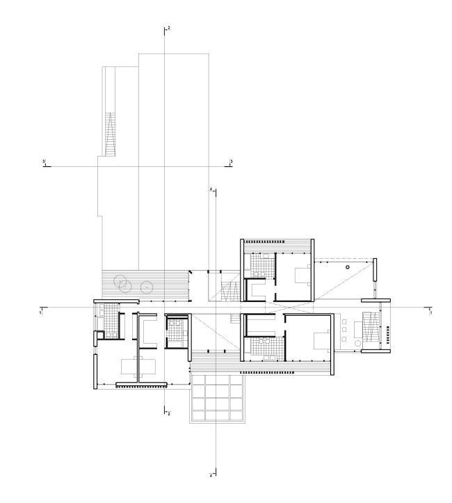
Индивидуальный жилой дом, Никольская слобода. Второй ярус
Индивидуальный жилой дом, Никольская слобода. Второй ярус
© PANACOM
Индивидуальный жилой дом, Никольская слобода. Разрез 1
Индивидуальный жилой дом, Никольская слобода. Разрез 1
© PANACOM
Индивидуальный жилой дом, Никольская слобода. Разрез 2
Индивидуальный жилой дом, Никольская слобода. Разрез 2
© PANACOM
Индивидуальный жилой дом, Никольская слобода. Разрез 3
Индивидуальный жилой дом, Никольская слобода. Разрез 3
© PANACOM
Индивидуальный жилой дом, Никольская слобода. Разрез 4
Индивидуальный жилой дом, Никольская слобода. Разрез 4
© PANACOM