Размещено на портале Архи.ру (www.archi.ru)

30.12.2014

Новая жизнь типографии

Екатерина Ровнова
Объект:
Мастерская PCA
Адрес:
Франция, None, Париж. 56/58 rue Vieille du Temple

Архитектурное бюро Филиппа Кьямбаретты реконструировало старую парижскую типографию под свой новый офис.

Мастерская PCA | Philippe Chiambaretta Architecte © PCA
Мастерская PCA | Philippe Chiambaretta Architecte © PCA

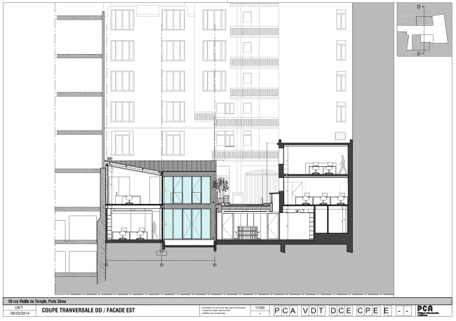
Полуразрушенная типография 1950-х годов в знаменитом квартале Маре обрела новую жизнь в качестве штаб-квартиры бюро PCA / Philippe Chiambaretta Architecte.
 
Мастерская PCA | Philippe Chiambaretta Architecte © PCA
Мастерская PCA | Philippe Chiambaretta Architecte © PCA

Старое здание было частично разобрано, но основные конструктивные элементы остались: например, двухскатная крыша все так же определяет внешний облик, а рампы, когда-то использовавшиеся для транспортировки печатной продукции, стали лестницами.
 
Мастерская PCA | Philippe Chiambaretta Architecte © PCA
Мастерская PCA | Philippe Chiambaretta Architecte © PCA

Новое двухэтажное пространство формируется вокруг открытого внутреннего дворика с деревянным настилом, где размещены столы и небольшие деревья. Сплошное остекление наполняет светом внутреннее пространство, а черные оконные переплеты и панели облицовки фасада подчеркивают белизну интерьера.
 
Мастерская PCA | Philippe Chiambaretta Architecte © PCA
Мастерская PCA | Philippe Chiambaretta Architecte © PCA

Представление архитекторов о важности прозрачности и коммуникации в процессе работы воплотилось в больших открытых пространствах, где сохранены разнообразные «приватные» зоны – библиотека и несколько переговорных комнат. Этот принцип помогает создать благоприятную атмосферу как для совместной работы над проектами, так и для необходимых уединения и концентрации.
 
Мастерская PCA | Philippe Chiambaretta Architecte © PCA
Мастерская PCA | Philippe Chiambaretta Architecte © PCA
Мастерская PCA | Philippe Chiambaretta Architecte © PCA
Мастерская PCA | Philippe Chiambaretta Architecte © PCA
Мастерская PCA | Philippe Chiambaretta Architecte © PCA
Мастерская PCA | Philippe Chiambaretta Architecte © PCA
Мастерская PCA | Philippe Chiambaretta Architecte © PCA
Мастерская PCA | Philippe Chiambaretta Architecte © PCA
Мастерская PCA | Philippe Chiambaretta Architecte © PCA
Мастерская PCA | Philippe Chiambaretta Architecte © PCA
Мастерская PCA | Philippe Chiambaretta Architecte © PCA
Мастерская PCA | Philippe Chiambaretta Architecte © PCA
Мастерская PCA | Philippe Chiambaretta Architecte © PCA
Мастерская PCA | Philippe Chiambaretta Architecte © PCA
Мастерская PCA | Philippe Chiambaretta Architecte © PCA
Мастерская PCA | Philippe Chiambaretta Architecte © PCA
Мастерская PCA | Philippe Chiambaretta Architecte © PCA
Мастерская PCA | Philippe Chiambaretta Architecte © PCA
Мастерская PCA | Philippe Chiambaretta Architecte © PCA
Мастерская PCA | Philippe Chiambaretta Architecte © PCA
Мастерская PCA | Philippe Chiambaretta Architecte © PCA
Мастерская PCA | Philippe Chiambaretta Architecte © PCA
Мастерская PCA | Philippe Chiambaretta Architecte © PCA
Мастерская PCA | Philippe Chiambaretta Architecte © PCA
Мастерская PCA | Philippe Chiambaretta Architecte © PCA
Мастерская PCA | Philippe Chiambaretta Architecte © PCA
Мастерская PCA | Philippe Chiambaretta Architecte © PCA
Мастерская PCA | Philippe Chiambaretta Architecte © PCA
Мастерская PCA | Philippe Chiambaretta Architecte © PCA
Мастерская PCA | Philippe Chiambaretta Architecte © PCA
Мастерская PCA | Philippe Chiambaretta Architecte © PCA
Мастерская PCA | Philippe Chiambaretta Architecte © PCA
Мастерская PCA | Philippe Chiambaretta Architecte © PCA
Мастерская PCA | Philippe Chiambaretta Architecte © PCA
Мастерская PCA | Philippe Chiambaretta Architecte © PCA
Мастерская PCA | Philippe Chiambaretta Architecte © PCA
Мастерская PCA | Philippe Chiambaretta Architecte © PCA
Мастерская PCA | Philippe Chiambaretta Architecte © PCA
Мастерская PCA | Philippe Chiambaretta Architecte © PCA
Мастерская PCA | Philippe Chiambaretta Architecte © PCA
Мастерская PCA | Philippe Chiambaretta Architecte © PCA
Мастерская PCA | Philippe Chiambaretta Architecte © PCA
Мастерская PCA | Philippe Chiambaretta Architecte © PCA
Мастерская PCA | Philippe Chiambaretta Architecte © PCA
Мастерская PCA | Philippe Chiambaretta Architecte © PCA
Мастерская PCA | Philippe Chiambaretta Architecte © PCA
Мастерская PCA | Philippe Chiambaretta Architecte © PCA
Мастерская PCA | Philippe Chiambaretta Architecte © PCA
Мастерская PCA | Philippe Chiambaretta Architecte © PCA
Мастерская PCA | Philippe Chiambaretta Architecte © PCA
Мастерская PCA | Philippe Chiambaretta Architecte © PCA
Мастерская PCA | Philippe Chiambaretta Architecte © PCA
Мастерская PCA | Philippe Chiambaretta Architecte © PCA
Мастерская PCA | Philippe Chiambaretta Architecte © PCA
Мастерская PCA | Philippe Chiambaretta Architecte © PCA
Мастерская PCA | Philippe Chiambaretta Architecte © PCA
Типография до реконструкции © PCA
Типография до реконструкции © PCA
Типография до реконструкции © PCA
Типография до реконструкции © PCA