Размещено на портале Архи.ру (www.archi.ru)

25.12.2014

Деревянный шпиль

Нина Фролова
Объект:
Общинная церковь в Кнарвике
Адрес:
Норвегия, None, Кнарвик.

В Кнарвике близ Бергена бюро Reiulf Ramstad Arkitekter возвело общинную церковь.

Общинная церковь в Кнарвике © Hundven-Clements Photography
Общинная церковь в Кнарвике © Hundven-Clements Photography

Обшитая снаружи и изнутри древесиной сосны (для фасадов она была искусственно состарена) церковь призвана напоминать о древних норвежских ставкирках – причем не только материалом, но и цельностью формы и ее устремленностью вверх.
 
Общинная церковь в Кнарвике © Hundven-Clements Photography
Общинная церковь в Кнарвике © Hundven-Clements Photography

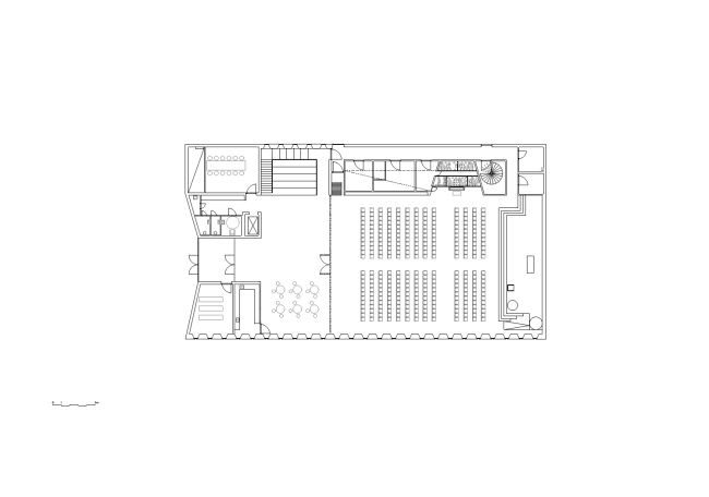
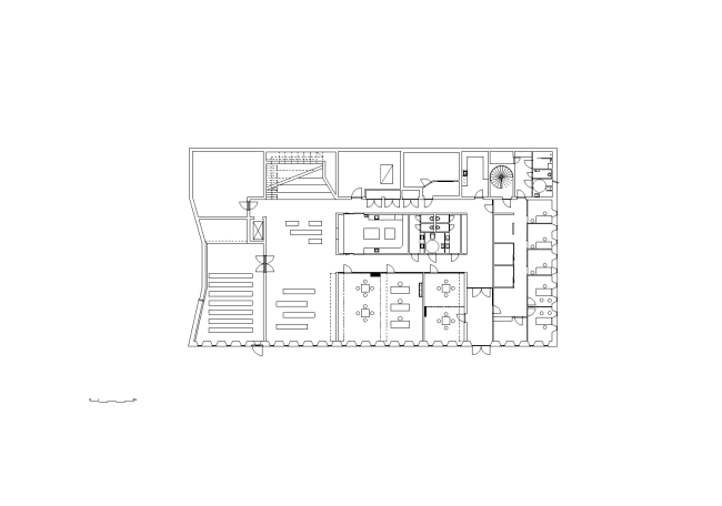
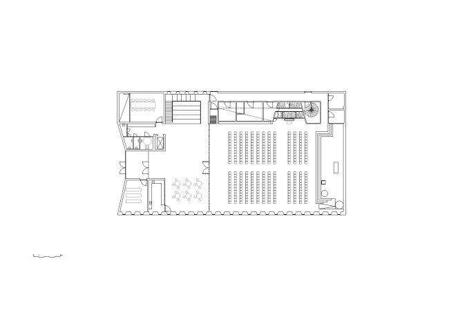
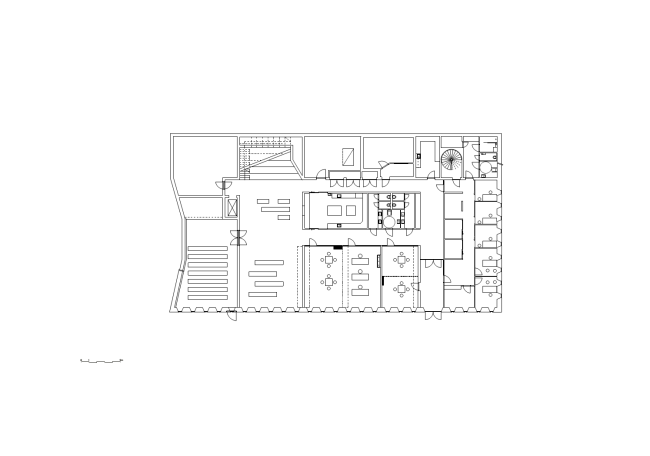
При функциональном прямоугольном плане сооружение кажется звездообразным благодаря сложному завершению, составленному из башни западного фасада (еще одна отсылка к традиции – теперь уже общей для всего западного христианства) и выступающих отдельными объемами перекрытий нефа и часовни.
 
Общинная церковь в Кнарвике © Hundven-Clements Photography
Общинная церковь в Кнарвике © Hundven-Clements Photography

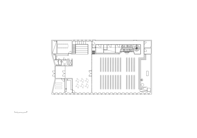
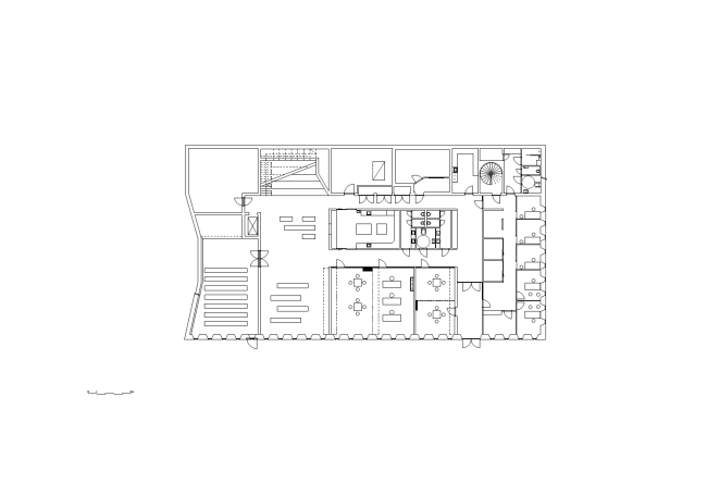
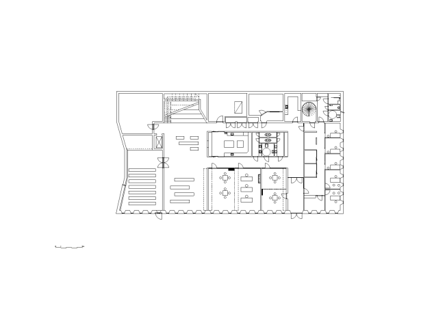
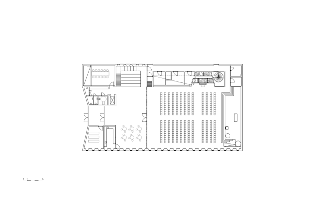
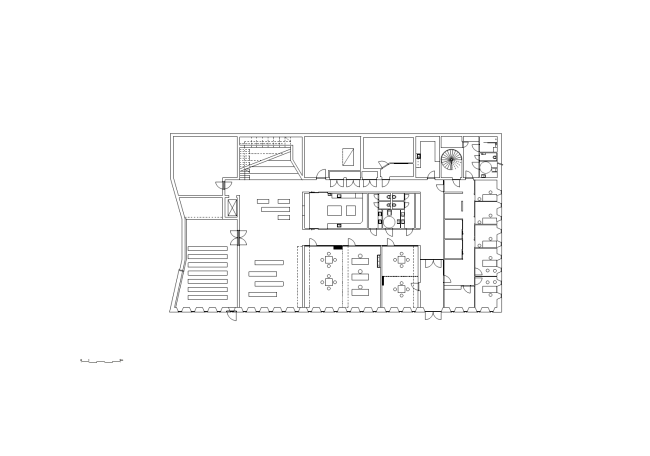
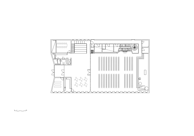
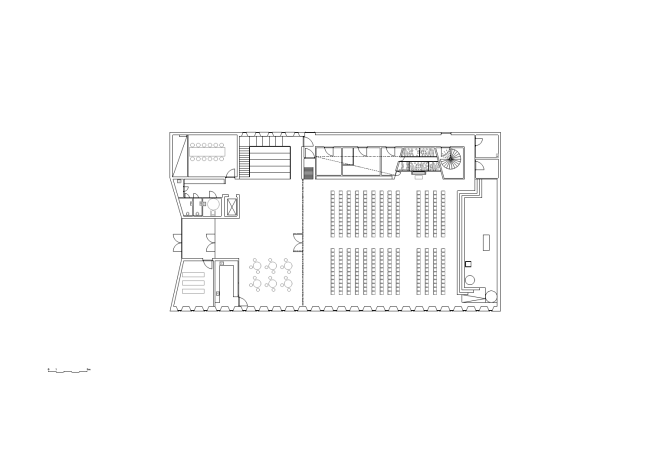
Церковь расположена на вересковой пустоши, на возвышающемся над центром Кнарвика холме. Издалека заметная, она играет роль не только религиозного, но и культурного центра общины: архитекторы изначально предусмотрели возможность ее использования для разнообразных собраний и концертов. Собственно неф можно увеличить за счет «внутренней площади», расположенного с запада пространства с лестницей, соединяющей церковный зал на втором этаже с административными и общественными помещениями внизу. Если раздвинуть стеклянные двери между «площадью» и нефом, то вместимость храма увеличится до 500 человек.
Общинная церковь в Кнарвике © Hundven-Clements Photography
Общинная церковь в Кнарвике © Hundven-Clements Photography
Общинная церковь в Кнарвике © Hundven-Clements Photography
Общинная церковь в Кнарвике © Hundven-Clements Photography
Общинная церковь в Кнарвике © Hundven-Clements Photography
Общинная церковь в Кнарвике © Hundven-Clements Photography
Общинная церковь в Кнарвике © Hundven-Clements Photography
Общинная церковь в Кнарвике © Hundven-Clements Photography
Общинная церковь в Кнарвике © Hundven-Clements Photography
Общинная церковь в Кнарвике © Hundven-Clements Photography
Общинная церковь в Кнарвике © Hundven-Clements Photography
Общинная церковь в Кнарвике © Hundven-Clements Photography
Общинная церковь в Кнарвике © Hundven-Clements Photography
Общинная церковь в Кнарвике © Hundven-Clements Photography
Общинная церковь в Кнарвике © Hundven-Clements Photography
Общинная церковь в Кнарвике © Hundven-Clements Photography
Общинная церковь в Кнарвике © Hundven-Clements Photography
Общинная церковь в Кнарвике © Hundven-Clements Photography
Общинная церковь в Кнарвике © Hundven-Clements Photography
Общинная церковь в Кнарвике © Hundven-Clements Photography
Общинная церковь в Кнарвике © Hundven-Clements Photography
Общинная церковь в Кнарвике © Hundven-Clements Photography
Общинная церковь в Кнарвике © Hundven-Clements Photography
Общинная церковь в Кнарвике © Hundven-Clements Photography
Общинная церковь в Кнарвике © Hundven-Clements Photography
Общинная церковь в Кнарвике © Hundven-Clements Photography
Общинная церковь в Кнарвике © Hundven-Clements Photography
Общинная церковь в Кнарвике © Hundven-Clements Photography
Общинная церковь в Кнарвике © Hundven-Clements Photography
Общинная церковь в Кнарвике © Hundven-Clements Photography
Общинная церковь в Кнарвике © Hundven-Clements Photography
Общинная церковь в Кнарвике © Hundven-Clements Photography
Общинная церковь в Кнарвике © Hundven-Clements Photography
Общинная церковь в Кнарвике © Hundven-Clements Photography
Общинная церковь в Кнарвике © Hundven-Clements Photography
Общинная церковь в Кнарвике © Hundven-Clements Photography
Общинная церковь в Кнарвике © Hundven-Clements Photography
Общинная церковь в Кнарвике © Hundven-Clements Photography
Общинная церковь в Кнарвике © RRA
Общинная церковь в Кнарвике © RRA
Общинная церковь в Кнарвике © RRA
Общинная церковь в Кнарвике © RRA
Общинная церковь в Кнарвике © RRA
Общинная церковь в Кнарвике © RRA
Общинная церковь в Кнарвике © RRA
Общинная церковь в Кнарвике © RRA
Общинная церковь в Кнарвике © RRA
Общинная церковь в Кнарвике © RRA
Общинная церковь в Кнарвике © RRA
Общинная церковь в Кнарвике © RRA
Общинная церковь в Кнарвике © RRA
Общинная церковь в Кнарвике © RRA
Общинная церковь в Кнарвике © RRA
Общинная церковь в Кнарвике © RRA
Общинная церковь в Кнарвике © RRA
Общинная церковь в Кнарвике © RRA
Общинная церковь в Кнарвике © RRA
Общинная церковь в Кнарвике © RRA