Размещено на портале Архи.ру (www.archi.ru)

22.12.2014

Полицейские и балерины

Нина Фролова
Объект:
Центр танца Charleroi Danses и отделение полиции
Адрес:
Бельгия, None, Шарлеруа.

В бельгийском Шарлеруа Жан Нувель спроектировал комплекс, объединивший центр балета и отделение полиции.

Центр танца Charleroi Danses и отделение полиции. Ateliers Jean Nouvel & MDW Architecture. Фото © Filip Dujardin
Центр танца Charleroi Danses и отделение полиции. Ateliers Jean Nouvel & MDW Architecture. Фото © Filip Dujardin

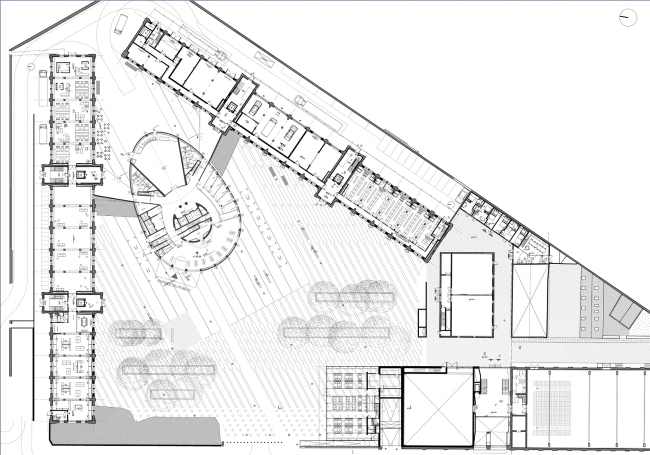
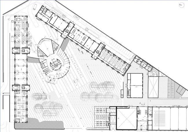
Пока в Санкт-Петербурге только собираются совместить театр танца и охранителей закона, в Шарлеруа подобный проект уже воплотили в жизнь – хотя и в более скромном масштабе. В реконструированном комплексе кавалерийских казарм XIX века были размещены главное городское отделение полиции, центр балета Charleroi Danses, выставочные залы местного музея искусств, а также доступные всем желающим новая площадь и закусочная, где, по замыслу архитекторов Ateliers Jean Nouvel и их бельгийских партнеров MDW architecture, должны встречаться полицейские, артисты балета, сотрудники близлежащих офисов, ученики местных школ и все остальные горожане.
 
Центр танца Charleroi Danses и отделение полиции. Ateliers Jean Nouvel & MDW Architecture. Фото © Filip Dujardin
Центр танца Charleroi Danses и отделение полиции. Ateliers Jean Nouvel & MDW Architecture. Фото © Filip Dujardin

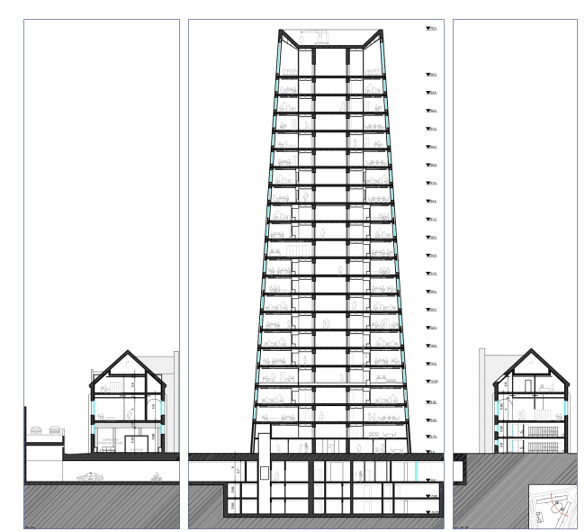
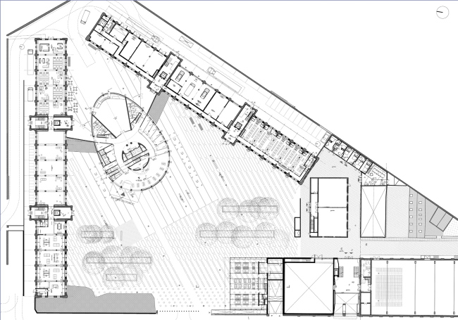
Полиция получила два исторических корпуса казарм, расположенные под углом друг к другу, а также полностью новую 75-метровую башню (20 этажей), облицованную синим кирпичом – в тон форме бельгийских правоохранителей. Ее планировка сделана гибкой, чтобы было несложно корректировать назначение помещений с течением времени. Кроме диспетчерского пункта, кризисного центра, зала совещаний и т. д. там имеется «престижная» переговорная на верхнем этаже, откуда открываются панорамные виды на город.
 
Центр танца Charleroi Danses и отделение полиции. Ateliers Jean Nouvel & MDW Architecture. Фото © Filip Dujardin
Центр танца Charleroi Danses и отделение полиции. Ateliers Jean Nouvel & MDW Architecture. Фото © Filip Dujardin

Башня с железобетонной несущей конструкцией и деревянным в своей основе фасадом соответствует стандарту «пассивного дома» (12 кВт⋅ч/м2/год), а реконструированные казармы – «низкого потребления энергии» (менее 35 кВт⋅ч/м2/год). Входящие в их состав бывшие конюшни вместили выставочные залы городского музея, а также пространство для проведения мероприятий и ведомственную столовую. Всего полицейское управление получило 30 727 м2 площади – не считая 11 431 м2 подземной парковки, но включая музейные залы.
Центр танца Charleroi Danses и отделение полиции. Ateliers Jean Nouvel & MDW Architecture. Фото © Lida Guan
Центр танца Charleroi Danses и отделение полиции. Ateliers Jean Nouvel & MDW Architecture. Фото © Lida Guan

Для нужд Charleroi Danses был приспособлен манеж, на крыше которого сооружены ярко-красное фойе с террасой. Внутри здания и рядом с ним размещены балетные студии, а также полностью новые жилые корпуса для приглашенных артистов. К манежу примыкает упоминавшееся выше «место встречи» ­– закусочная.
Центр танца Charleroi Danses и отделение полиции. Ateliers Jean Nouvel & MDW Architecture. Фото © Filip Dujardin
Центр танца Charleroi Danses и отделение полиции. Ateliers Jean Nouvel & MDW Architecture. Фото © Filip Dujardin

Центром комплекса стала пешеходная площадь, вымощенная кирпичом – главным материалом проекта. Вымостка из красного кирпича, вторящая историческим корпусам, у подножия башни сменяется синей – в цвет фасадов этого издалека заметного символа проекта.
 
Центр танца Charleroi Danses и отделение полиции. Ateliers Jean Nouvel & MDW Architecture. Фото © Lida Guan
Центр танца Charleroi Danses и отделение полиции. Ateliers Jean Nouvel & MDW Architecture. Фото © Lida Guan
Центр танца Charleroi Danses и отделение полиции. Ateliers Jean Nouvel & MDW Architecture. Фото © Filip Dujardin
Центр танца Charleroi Danses и отделение полиции. Ateliers Jean Nouvel & MDW Architecture. Фото © Filip Dujardin
Центр танца Charleroi Danses и отделение полиции. Ateliers Jean Nouvel & MDW Architecture. Фото © Lida Guan
Центр танца Charleroi Danses и отделение полиции. Ateliers Jean Nouvel & MDW Architecture. Фото © Lida Guan
Центр танца Charleroi Danses и отделение полиции © Ateliers Jean Nouvel & MDW Architecture
Центр танца Charleroi Danses и отделение полиции © Ateliers Jean Nouvel & MDW Architecture
Центр танца Charleroi Danses и отделение полиции © Ateliers Jean Nouvel & MDW Architecture
Центр танца Charleroi Danses и отделение полиции © Ateliers Jean Nouvel & MDW Architecture
Центр танца Charleroi Danses и отделение полиции © Ateliers Jean Nouvel & MDW Architecture
Центр танца Charleroi Danses и отделение полиции © Ateliers Jean Nouvel & MDW Architecture
Центр танца Charleroi Danses и отделение полиции © Ateliers Jean Nouvel & MDW Architecture
Центр танца Charleroi Danses и отделение полиции © Ateliers Jean Nouvel & MDW Architecture
Центр танца Charleroi Danses и отделение полиции © Ateliers Jean Nouvel & MDW Architecture
Центр танца Charleroi Danses и отделение полиции © Ateliers Jean Nouvel & MDW Architecture
Центр танца Charleroi Danses и отделение полиции © Ateliers Jean Nouvel & MDW Architecture
Центр танца Charleroi Danses и отделение полиции © Ateliers Jean Nouvel & MDW Architecture
Центр танца Charleroi Danses и отделение полиции © Ateliers Jean Nouvel & MDW Architecture
Центр танца Charleroi Danses и отделение полиции © Ateliers Jean Nouvel & MDW Architecture
Центр танца Charleroi Danses и отделение полиции © Ateliers Jean Nouvel & MDW Architecture
Центр танца Charleroi Danses и отделение полиции © Ateliers Jean Nouvel & MDW Architecture
Центр танца Charleroi Danses и отделение полиции © Ateliers Jean Nouvel & MDW Architecture
Центр танца Charleroi Danses и отделение полиции © Ateliers Jean Nouvel & MDW Architecture
Центр танца Charleroi Danses и отделение полиции © Ateliers Jean Nouvel & MDW Architecture
Центр танца Charleroi Danses и отделение полиции © Ateliers Jean Nouvel & MDW Architecture
Центр танца Charleroi Danses и отделение полиции © Ateliers Jean Nouvel & MDW Architecture
Центр танца Charleroi Danses и отделение полиции © Ateliers Jean Nouvel & MDW Architecture
Центр танца Charleroi Danses и отделение полиции © Ateliers Jean Nouvel & MDW Architecture
Центр танца Charleroi Danses и отделение полиции © Ateliers Jean Nouvel & MDW Architecture
Центр танца Charleroi Danses и отделение полиции © Ateliers Jean Nouvel & MDW Architecture
Центр танца Charleroi Danses и отделение полиции © Ateliers Jean Nouvel & MDW Architecture
Центр танца Charleroi Danses и отделение полиции © Ateliers Jean Nouvel & MDW Architecture
Центр танца Charleroi Danses и отделение полиции © Ateliers Jean Nouvel & MDW Architecture
Центр танца Charleroi Danses и отделение полиции © Ateliers Jean Nouvel & MDW Architecture
Центр танца Charleroi Danses и отделение полиции © Ateliers Jean Nouvel & MDW Architecture