Размещено на портале Архи.ру (www.archi.ru)

16.12.2014

История в новом прочтении

Елизавета Эбнер
Объект:
Отель Barrière Le Fouquet′s
Адрес:
Франция, None, Париж.

Отель Fouquet's Barrière в Париже, спроектированный Эдуаром Франсуа.

Отель Barrière Le Fouquet′s © Edouard François
Отель Barrière Le Fouquet′s © Edouard François

Последнее время мы с вами часто обсуждаем реновацию исторических зданий, и сегодня рассмотрим еще один важный и интересный пример такого рода, показывающий, что об истории можно грамотно говорить и современным языком.
 
Отель Barrière Le Fouquet′s © Floriane de Lassée
Отель Barrière Le Fouquet′s © Floriane de Lassée

Все началось с того, что Groupe Lucien Barrière, занимающаяся бизнесом в сфере гостиниц и казино, взяла на себя управление знаменитым парижским рестораном Le Fouquet. Но, так как основной сферой их деятельности были все же отели, они решили пристроить к ресторану гостиницу класса люкс, для чего выкупили целый городской квартал. Уточню: квартал находится в самой дорогой части Парижа, на углу Елисейских полей и авеню Георга V, напротив отелей «Принц Галльский» и «Георг V». В народе это место называют «золотым треугольником».
 
Отель Barrière Le Fouquet′s © Edouard François
Отель Barrière Le Fouquet′s © Edouard François

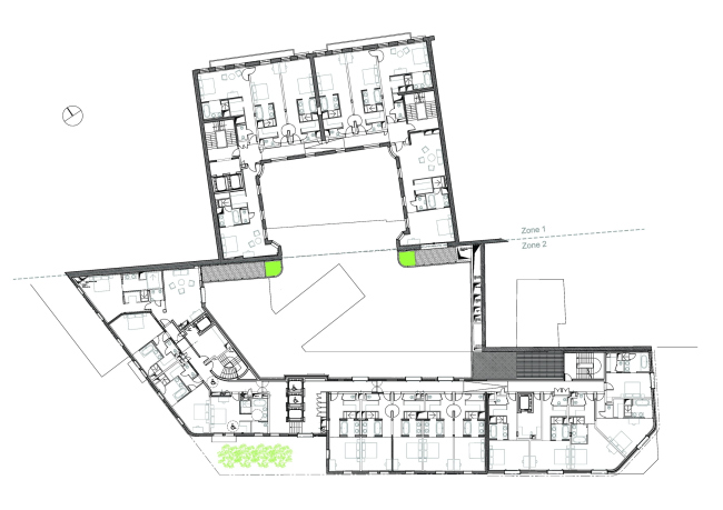
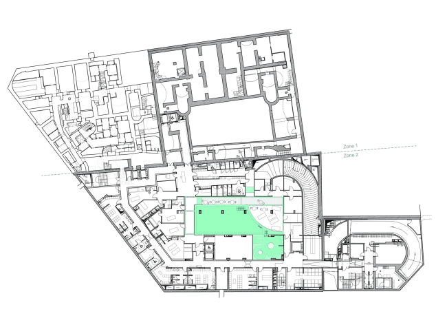
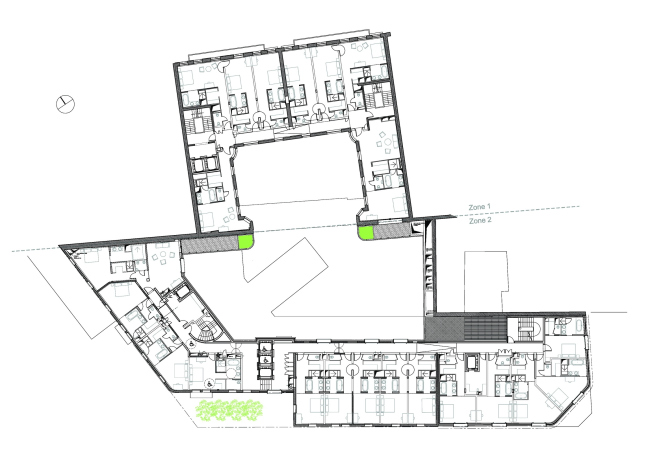
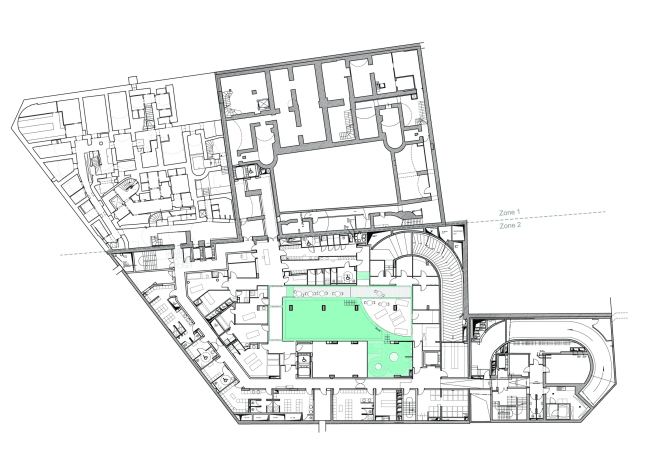
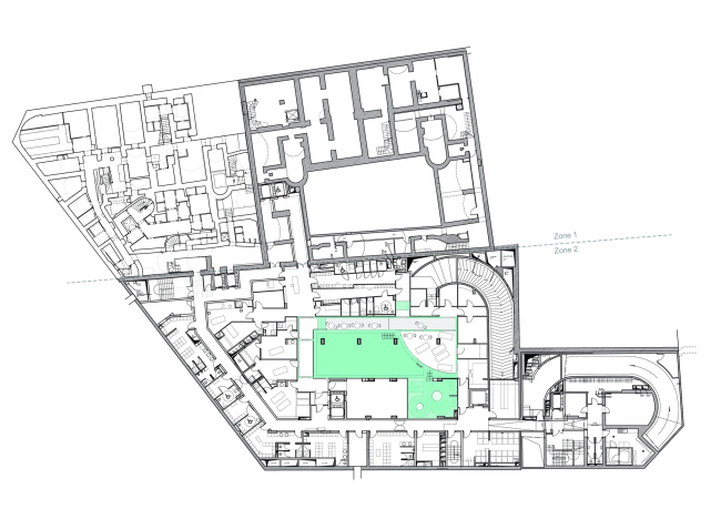
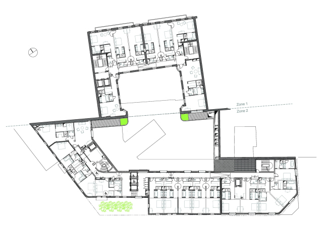
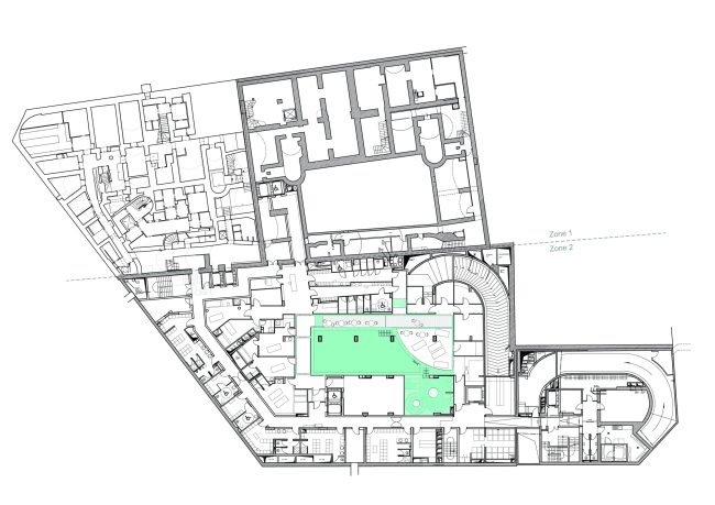
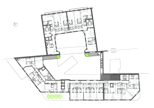
Основной проблемой было то, что формирующие квартал здания были выстроены в разных стилях, а заказчик хотел получить единый, узнаваемый, особенный образ. В задачу архитектора также входило объединение внутренних дворов в новый сад и создание террасы, с которой бы открывался вид на парижские крыши и Эйфелеву башню. Для решения таких важных и сложных задач был выбран архитектор Эдуар Франсуа, которому предстояло, реорганизовав площади в выкупленных зданиях, создать из них единый комплекс. А вот работой над интерьерами, в сотрудничестве с Эдуаром Франсуа, занимался уже другой человек – дизайнер Жак Гарсия.
 
Отель Barrière Le Fouquet′s © Edouard François
Отель Barrière Le Fouquet′s © Edouard François

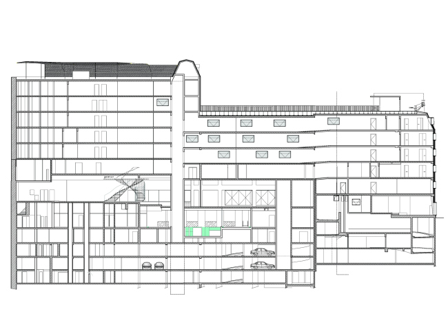
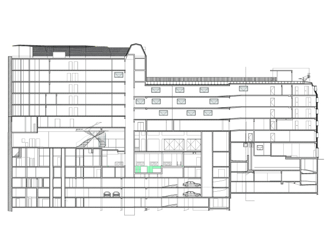
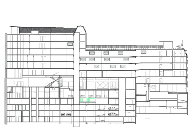
Приступив к реновации, Эдуард Франсуа действовал кардинально: он сносил внутренние стены и менял уровень пола для того, чтобы получить единые гостиничные площади со связанными между собой помещениями и широкими коридорами. По желанию заказчиков были созданы зона спа-центра и просторный сад во внутреннем дворе.
 
Отель Barrière Le Fouquet′s © Paul Raftery
Отель Barrière Le Fouquet′s © Paul Raftery

Но главный вопрос – об отсутствии единого внешнего облика отеля – так и оставался открытым. Из зданий квартала два – выходящие на Елисейские поля – принадлежали к «стилю барона Османа» и, кроме того, имели официальный статус памятников архитектуры. Два других, обращенные к авеню Георга V и улице Верне и появившиеся лишь в 1980, имитировали классическую парижскую архитектуру XIX века (это был так называемый неоосмановский стиль). Еще одно здание, постройка 1970 года с фасадом из коричневого стекла по улице Верне, вообще раньше была банком.
 
Отель Barrière Le Fouquet′s © Luc Boegly
Отель Barrière Le Fouquet′s © Luc Boegly

Клиент, кроме описанных выше требований, предоставлял зодчему карт-бланш и был согласен даже на полностью современное решение фасадов зданий, только бы они «работали» как единое целое. Карт-бланш, однако, совершенно не собирался предоставлять Комитет охраны памятников, для которого единственно возможным было решение фасадов в «неоосмановском стиле», имитирующем архитектуру XIX века. Что, конечно, можно понять, так как весь «золотой треугольник» состоит исключительно из исторических (и псевдоисторических) построек, и потому удачно спроектировать там большой комплекс в современном духе было бы крайне сложно.
 
Отель Barrière Le Fouquet′s © Edouard François
Отель Barrière Le Fouquet′s © Edouard François

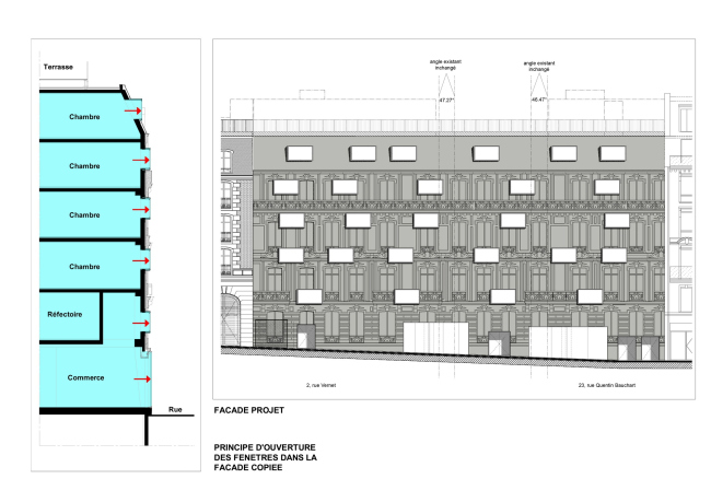
Однако Эдуар Франсуа нашел очень смелое, новаторское решение: он процитировал прекрасные образцы «османовской» архитектуры, однако сделал это совершенно современными средствами, отсканировав 90-метровые фасады ресторана Fouquet и отлив по созданной на основе «скана» форме новый фасад из серого бетона, изменив при этом лишь оригинальную глубину рельефов и, естественно, цвет. Для этого пришлось полностью снести стеклянный фасад бывшего банка – единственный компонент квартала в формах модернизма.
 
Отель Barrière Le Fouquet′s © Luc Boegly
Отель Barrière Le Fouquet′s © Luc Boegly

А дальше архитектор добавил прямоугольные, одинакового размера окна, очень простые и лаконичные, совершенно не поддерживающие историческую структуру нового фасада в «неоосмановском» стиле. Почему так? Архитектор объяснил подобное решение тем, что при объединении зданий из-за смещения уровней этажей понадобилось расположить оконные проемы по-новому, так как фасады больше не соответствовали внутренней структуре комплекса. В результате, получились окна-прямоугольники с отражающимся в них небом на фоне темно-серого, несколько мрачноватого «неоосмановского» фасада. В ночное время создается иной эффект: из окон льется яркий свет, а фасад почти исчезает: так проемы превращаются в парящие в воздухе частицы.
 
Отель Barrière Le Fouquet′s © Paul Raftery
Отель Barrière Le Fouquet′s © Paul Raftery

Кстати, технология Moulé-Troué, с помощью которой архитектор отливал новый фасад, была им запатентована (с французского языка этот термин можно перевести как «отлито и продырявлено»).
 
Отель Barrière Le Fouquet′s © Paul Raftery
Отель Barrière Le Fouquet′s © Paul Raftery

Проект реновации, выполненный Эдуаром Франсуа, мне очень нравится: он лишний раз подтверждает, что невыполнимых задач не бывает, и можно сделать прекрасный проект, даже будучи зажатым в очень жесткие «исторические» рамки в самом центре Парижа – угодив при этом клиентам и Комитету охраны памятников, а также – что самое главное – не изменив себе.
Отель Barrière Le Fouquet′s © Paul Raftery
Отель Barrière Le Fouquet′s © Paul Raftery
Отель Barrière Le Fouquet′s © Edouard François
Отель Barrière Le Fouquet′s © Edouard François
Отель Barrière Le Fouquet′s © Edouard François
Отель Barrière Le Fouquet′s © Edouard François
Отель Barrière Le Fouquet′s © Edouard François
Отель Barrière Le Fouquet′s © Edouard François
Отель Barrière Le Fouquet′s © Edouard François
Отель Barrière Le Fouquet′s © Edouard François
Отель Barrière Le Fouquet′s © Edouard François
Отель Barrière Le Fouquet′s © Edouard François
Отель Barrière Le Fouquet′s © Edouard François
Отель Barrière Le Fouquet′s © Edouard François
Отель Fouquet′s Barrière © Edouard François
Отель Fouquet′s Barrière © Edouard François
Отель Barrière Le Fouquet′s © Edouard François
Отель Barrière Le Fouquet′s © Edouard François
Отель Barrière Le Fouquet′s © Edouard François
Отель Barrière Le Fouquet′s © Edouard François