Размещено на портале Архи.ру (www.archi.ru)

15.12.2014

К старту готов!

Тарья Нурми
Объект:
Городской театр Куопио – реконструкция
Адрес:
Финляндия, None, Куопио.
Мастерская:
ALA

В Куопио открылся после реконструкции по проекту бюро ALA городской театр.

Городской театр Куопио – реконструкция © Tuomas Uusheimo
Городской театр Куопио – реконструкция © Tuomas Uusheimo

Куопио – это город среднего размера в Восточной Финляндии. В XIX веке он мог похвастаться видными деятелями культуры, такими, как философ, писатель, государственный муж и банкир Йохан Вильхельм Снеллман (Johan Vilhelm Snellman) и социально ответственная писательница и предпринимательница Минна Кант (Minna Canth). В прошлом столетии там также родилось несколько литераторов, чьи книги и пьесы прекрасно подходили для театра.
Городской театр Куопио – реконструкция © Tuomas Uusheimo
Городской театр Куопио – реконструкция © Tuomas Uusheimo

В 1960-е годы государственной политикой в Финляндии стало строительство новых городских театральных зданий для муниципальных трупп, и Куопио стал одним из городов, выигравших от такого начинания. Его театр был спроектирован архитекторами Хельмером Стенросом (Helmer Stenros) и Ристо-Вейкко Лууконеном (Risto-Veikko Luukkonen). Их друг, художник Лаури Альгрен (Lauri Ahlgren), сделал масштабную роспись «а секко» в главном фойе. Получившееся здание было маленьким шедевром модернизма из белого бетона, стекла и терракотовой плитки прекрасных оттенков.
Городской театр Куопио – реконструкция © Tuomas Uusheimo
Городской театр Куопио – реконструкция © Tuomas Uusheimo

Театр получил лучшее по тем временам оборудование и был, конечно, предметом гордости горожан. Там ставили и классику, и острые с политической точки зрения представления, и передовые в других аспектах спектакли. Позже в боковых пространствах был создан зрительный зал-студия.
Однако с наступлением нового тысячелетия театру потребовались ремонт и расширение. За годы постройка была несколько изменена городским Техническим отделом, и совсем не в лучшую сторону. Огромное количество 50-летнего оборудования также требовалось заменить – и все это должно было быть сделано с уважением к духу оригинала.
Городской театр Куопио – реконструкция © Tuomas Uusheimo
Городской театр Куопио – реконструкция © Tuomas Uusheimo

В 2008 ALA Architects выиграли конкурс на проект обновления и расширения этой постройки эпохи модернизма. Должна была быть сооружена новая сцена с собственным фойе, а технические помещения – реконструированы. Логистика подготовки постановок изменилась, поэтому большие театральные мастерские переехали в другое здание, а оставшимся по старому адресу швеям, шляпникам и портным были нужны лучшие, чем раньше, рабочие места с естественным светом.
Городской театр Куопио – реконструкция © Tuomas Uusheimo
Городской театр Куопио – реконструкция © Tuomas Uusheimo

Старые фойе и вестибюли, а также любимый публикой главный зал также было необходимо обновить, в том числе и с технической точки зрения. Однако архитекторам ALA царившая в театре атмосфера 60-х показалась очень приятной, и потому они действовали крайне осторожно.
Им повезло: вместо вынужденного сотрудничества с бюрократами из городского Технического отдела, они работали вместе с большим мастером «театрального дела» Юхой Вестманом (Juha Westman), который до того, к примеру, работал в Городском театре Хельсинки. Кроме того, отец Юхо Грёнхольма (Juho Grönholm), одного из партнеров ALA – легендарный специалист по театральной технике. Поэтому архитекторы никаким образом не могли бы упустить из виду функциональные требования «закулисной части» и собственно постановок.
Городской театр Куопио – реконструкция © Tuomas Uusheimo
Городской театр Куопио – реконструкция © Tuomas Uusheimo

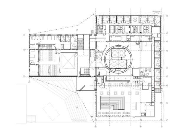
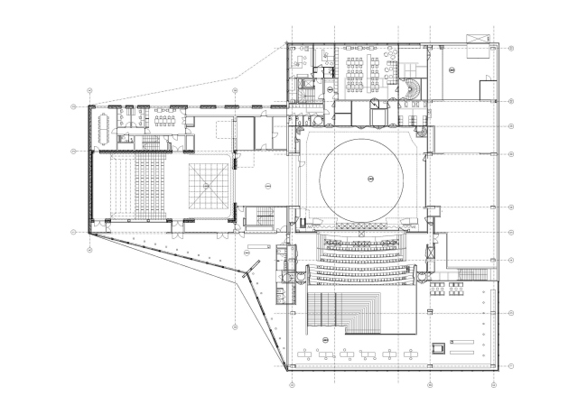
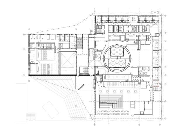
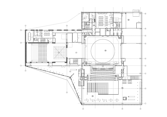
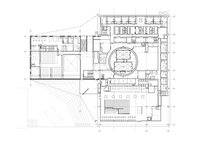
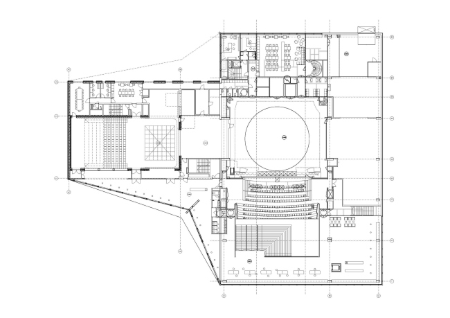
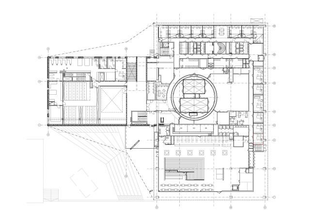
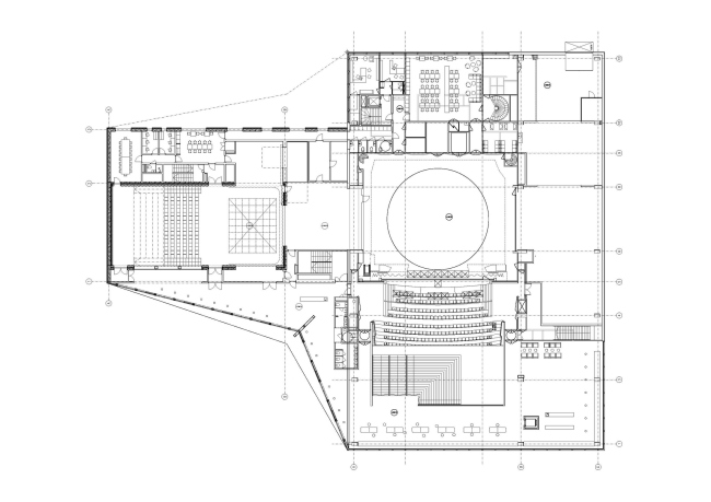
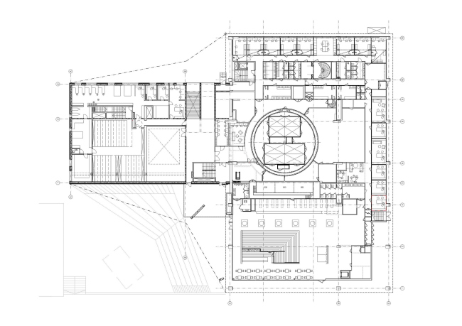
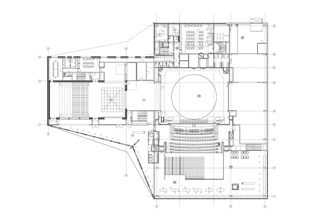
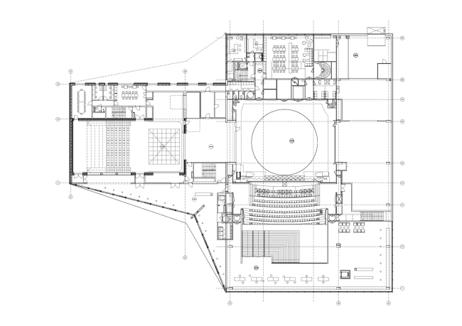
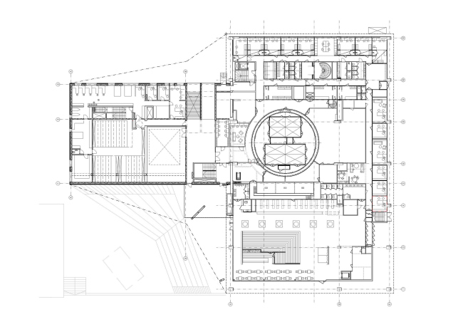
Сейчас театр получил увеличившуюся по высоте на 4 м башню колосников и новую пристройку с заднего фасада: за ее стенами из белого текстурированного бетона скрывается театр типа «блэк бокс». Эта сцена названа «Мария» в честь писательницы Марии Йотуни (Maria Jotuni). Потребность в новом фойе и новых входах для малой сцены была удовлетворена с помощью V-образного выноса типа моста, опирающегося на зигзагообразную стальной конструкцию. Ниже этого нового фойе, в саду у берега небольшого озера Валькейсенлампи устроен полуоткрытый, полузакрытый театр. У него нет специального назначения, но, так как в Куопио проходит Международный фестиваль танца и музыки, он вполне может пригодиться.
Городской театр Куопио – реконструкция © Tuomas Uusheimo
Городской театр Куопио – реконструкция © Tuomas Uusheimo

В старом вестибюле первого этажа вернулись к оригинальному оформлению с бетонным полом. Гардероб получил массивную минималистичную стойку из белого бетона и диваны, обитые белой кожей: и то, и другое спроектировано ALA.
Городской театр Куопио – реконструкция © Tuomas Uusheimo
Городской театр Куопио – реконструкция © Tuomas Uusheimo

В главном фойе на втором этаже воссоздали первоначальное ковровое покрытие «цвета львиной гривы», который был выбран в тон к росписи Альгрена. Основательные деревянные скамьи у окон были заменены схожими современными. Помимо очевидной функции, в них скрыты компоненты систем вентиляции и отопления.
Городской театр Куопио – реконструкция © Tuomas Uusheimo
Городской театр Куопио – реконструкция © Tuomas Uusheimo

Так как в наше время зрителям нужно больше напитков и закусок, чем в 1960-е, было добавлено два новых бара с рядами лаконичных белых столиков.
Стены зала «блэк бокс» повторяют рельеф его фасадов. Они перфорированы и покрыты краской «металлик». Главная сцена, названная «Минна» в честь Минны Кант, выглядит почти как раньше: перемены в технических пространствах и новая вентиляционная система почти незаметны, хотя уровень пола под зрительными рядами был поднят на 30 см.
Городской театр Куопио – реконструкция © Tuomas Uusheimo
Городской театр Куопио – реконструкция © Tuomas Uusheimo

Коллектив театра из 80 человек (20 из них – актеры), очевидно, доволен реконструкцией. Единственная проблема – подсветка наверху здания, которая кажется слишком яркой и «шанхайской», особенно для этого места: она приносит довольно броские цвета в изысканную и очень красивую среду – помимо прочего, из окон театра открываются прекрасные виды на озеро. Этот розово-фиолетово-красноватый кричаще-яркий колорит не был изначальной идее архитекторов. Кроме того, непродуманные дополнения вроде рекламных экранов уже нарушили ясность созданных ALA пространств. Но эти небольшие детали могут быть исправлены в режиме дружеского диалога.
Городской театр Куопио – реконструкция © Tuomas Uusheimo
Городской театр Куопио – реконструкция © Tuomas Uusheimo

Бюджет проекта составил порядка 27 млн евро. По нашим временам, это крупное вложение для среднего размера столицы одной из провинций Финляндии. Но – для сравнения: Центр исполнительских искусств «Кильден» тех же ALA в норвежском Кристиансанне стоил почти в 10 раз больше.
Городской театр Куопио – реконструкция © Tuomas Uusheimo
Городской театр Куопио – реконструкция © Tuomas Uusheimo

В дни, когда во многих небольших городах директора театра выбирают не за художественные, а за иные заслуги, стоит надеяться, что театр в Куопио сосредоточится не только на мюзиклах. Обновленное здание бросает вызов его труппе: пусть покажут, на что они способны. Для вечера открытия была выбрана новая пьеса родившейся в Куопио драматурга Сирпы Кяхкёнен (Sirpa Kähkönen), бросающая взгляд на жизнь другой финки – ныне высоко оцененной художницы Хелены Шерфбек (Helene Schjerfbeck). Пока, кажется, театр – в хороших руках.
Городской театр Куопио – реконструкция © Tuomas Uusheimo
Городской театр Куопио – реконструкция © Tuomas Uusheimo

В заключение напомним, что бюро ALA недавно получило еще два крупных проекта «возрождения» знаковых зданий. Одно из них – посольство Финляндии в Нью-Дели, а второе – выразительный Dipoli – конференц-центр кампуса университета Аалто в Отаниеми. Обе эти постройки – шедевры Реймы и Райли Пиетиля.
Городской театр Куопио – реконструкция © Tuomas Uusheimo
Городской театр Куопио – реконструкция © Tuomas Uusheimo
Городской театр Куопио – реконструкция © Tuomas Uusheimo
Городской театр Куопио – реконструкция © Tuomas Uusheimo
Городской театр Куопио – реконструкция © Tuomas Uusheimo
Городской театр Куопио – реконструкция © Tuomas Uusheimo
Городской театр Куопио – реконструкция © Tuomas Uusheimo
Городской театр Куопио – реконструкция © Tuomas Uusheimo
Городской театр Куопио – реконструкция © Tuomas Uusheimo
Городской театр Куопио – реконструкция © Tuomas Uusheimo
Городской театр Куопио – реконструкция © Tuomas Uusheimo
Городской театр Куопио – реконструкция © Tuomas Uusheimo
Городской театр Куопио – реконструкция © Tuomas Uusheimo
Городской театр Куопио – реконструкция © Tuomas Uusheimo
Городской театр Куопио – реконструкция © Tuomas Uusheimo
Городской театр Куопио – реконструкция © Tuomas Uusheimo
Городской театр Куопио – реконструкция © Tuomas Uusheimo
Городской театр Куопио – реконструкция © Tuomas Uusheimo
Городской театр Куопио – реконструкция © Tuomas Uusheimo
Городской театр Куопио – реконструкция © Tuomas Uusheimo
Городской театр Куопио – реконструкция © Tuomas Uusheimo
Городской театр Куопио – реконструкция © Tuomas Uusheimo
Городской театр Куопио – реконструкция © Tuomas Uusheimo
Городской театр Куопио – реконструкция © Tuomas Uusheimo
Городской театр Куопио – реконструкция © Tuomas Uusheimo
Городской театр Куопио – реконструкция © Tuomas Uusheimo
Городской театр Куопио – реконструкция © Tuomas Uusheimo
Городской театр Куопио – реконструкция © Tuomas Uusheimo
Городской театр Куопио – реконструкция © Tarja Nurmi
Городской театр Куопио – реконструкция © Tarja Nurmi
Городской театр Куопио – реконструкция © Tarja Nurmi
Городской театр Куопио – реконструкция © Tarja Nurmi
Городской театр Куопио – реконструкция © Tarja Nurmi
Городской театр Куопио – реконструкция © Tarja Nurmi
Городской театр Куопио – реконструкция © Tarja Nurmi
Городской театр Куопио – реконструкция © Tarja Nurmi
Городской театр Куопио – реконструкция © Tuomas Uusheimo
Городской театр Куопио – реконструкция © Tuomas Uusheimo
Городской театр Куопио – реконструкция © Tuomas Uusheimo
Городской театр Куопио – реконструкция © Tuomas Uusheimo
Городской театр Куопио – реконструкция © Tuomas Uusheimo
Городской театр Куопио – реконструкция © Tuomas Uusheimo
Городской театр Куопио – реконструкция © Tuomas Uusheimo
Городской театр Куопио – реконструкция © Tuomas Uusheimo
Городской театр Куопио – реконструкция © Tuomas Uusheimo
Городской театр Куопио – реконструкция © Tuomas Uusheimo
Городской театр Куопио – реконструкция © Tuomas Uusheimo
Городской театр Куопио – реконструкция © Tuomas Uusheimo
Городской театр Куопио – реконструкция © Tuomas Uusheimo
Городской театр Куопио – реконструкция © Tuomas Uusheimo
Городской театр Куопио – реконструкция © ALA Architects
Городской театр Куопио – реконструкция © ALA Architects
Городской театр Куопио – реконструкция © ALA Architects
Городской театр Куопио – реконструкция © ALA Architects
Городской театр Куопио – реконструкция © ALA Architects
Городской театр Куопио – реконструкция © ALA Architects
Городской театр Куопио – реконструкция © ALA Architects
Городской театр Куопио – реконструкция © ALA Architects
Городской театр Куопио – реконструкция © ALA Architects
Городской театр Куопио – реконструкция © ALA Architects
Городской театр Куопио – реконструкция © ALA Architects
Городской театр Куопио – реконструкция © ALA Architects
Городской театр Куопио – реконструкция © ALA Architects
Городской театр Куопио – реконструкция © ALA Architects
Городской театр Куопио – реконструкция © ALA Architects
Городской театр Куопио – реконструкция © ALA Architects
Городской театр Куопио – реконструкция © ALA Architects
Городской театр Куопио – реконструкция © ALA Architects
Городской театр Куопио – реконструкция © ALA Architects
Городской театр Куопио – реконструкция © ALA Architects
Городской театр Куопио – реконструкция © ALA Architects
Городской театр Куопио – реконструкция © ALA Architects
Городской театр Куопио – реконструкция © ALA Architects
Городской театр Куопио – реконструкция © ALA Architects
Городской театр Куопио – реконструкция © ALA Architects
Городской театр Куопио – реконструкция © ALA Architects
Городской театр Куопио – реконструкция © ALA Architects
Городской театр Куопио – реконструкция © ALA Architects