Размещено на портале Архи.ру (www.archi.ru)

09.12.2014

Складчатый фасад

Нина Фролова
Объект:
Жилой дом на Вельфенштрассе
Адрес:
Германия, None, Мюнхен.

Комплекс социального жилья на Вельфенштрассе в Мюнхене, построенный по проекту Петера Эбнера.

Жилой дом на Вельфенштрассе © Paul Ott
Жилой дом на Вельфенштрассе © Paul Ott

Комплекс появился в новом жилом массиве по генплану 03 Architekten. Этот план продолжает линию квартальной застройки, характерной для всего района Хайдхаузен; кроме квартир, в новых домах там имеется небольшое количество офисов и магазинов, а также два детских сада.
 
Жилой дом на Вельфенштрассе © Paul Ott
Жилой дом на Вельфенштрассе © Paul Ott

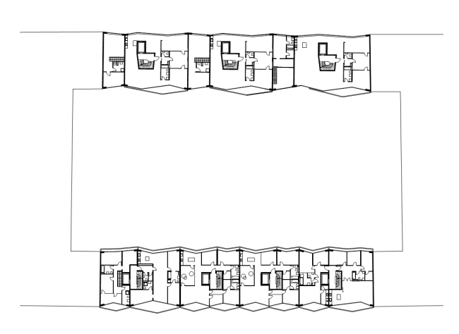
Два корпуса, вышедших из бюро Эбнера, расположены между двумя «каре» Штефана Форстера и как будто зажаты между ними. Это впечатление подчеркивает решение фасадов, которые словно пошли складками от давления с боков.
 
Жилой дом на Вельфенштрассе © Paul Ott
Жилой дом на Вельфенштрассе © Paul Ott

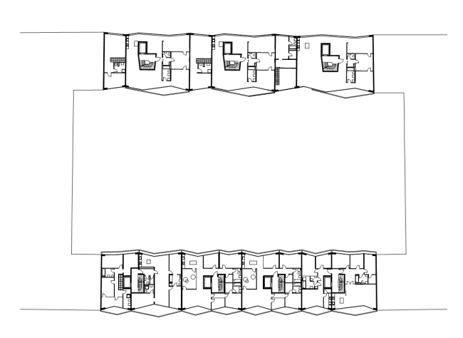
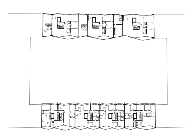
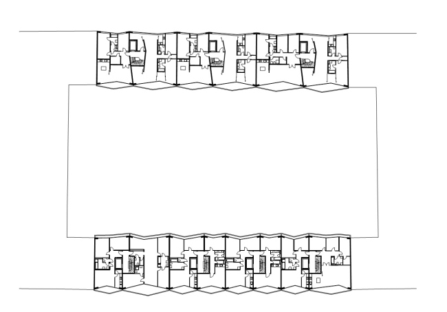
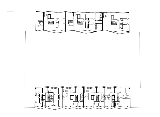
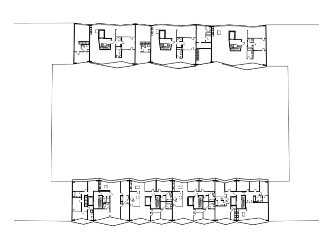
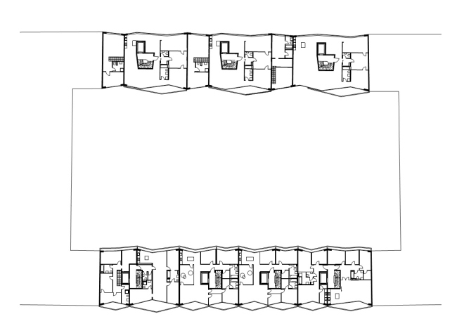
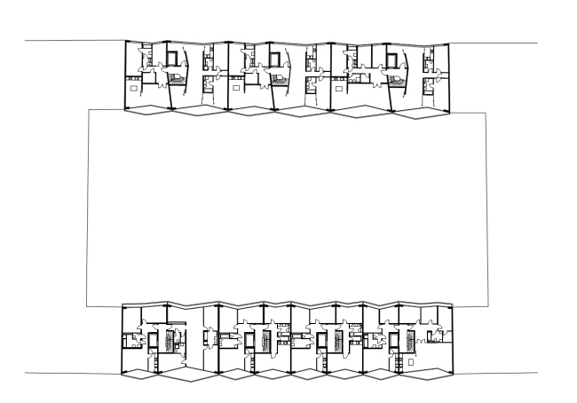
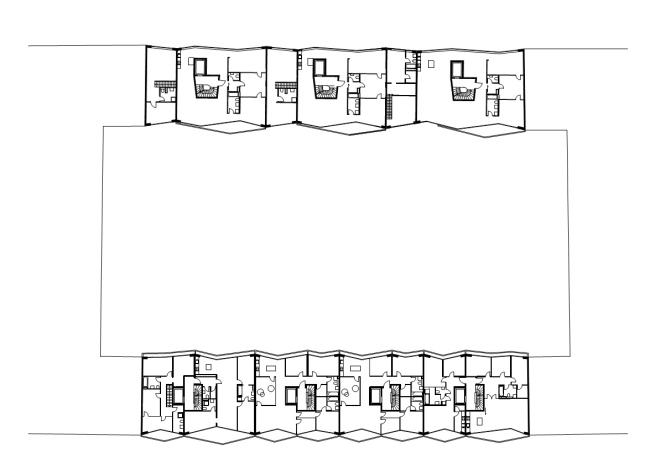
Получившиеся в результате «угловатые» балконы – вовсе не уступка художественному образу в ущерб функциональности. Такое решение позволяет обеспечить приватность жильцам (по углу проходит перегородка между балконами соседних квартир), что особенно важно при скромном масштабе улиц и двора.
 
Жилой дом на Вельфенштрассе © Paul Ott
Жилой дом на Вельфенштрассе © Paul Ott

На 6 этажах двух корпусов расположено 78 квартир разной площади, включая двухуровневые. Двор, созданный ландшафтными архитекторами studio B предназначен в первую очередь для любования из окон – его план очень эффектен – однако детская площадка там тоже имеется.
Жилой дом на Вельфенштрассе © Paul Ott
Жилой дом на Вельфенштрассе © Paul Ott
Жилой дом на Вельфенштрассе © Paul Ott
Жилой дом на Вельфенштрассе © Paul Ott
Жилой дом на Вельфенштрассе © Paul Ott
Жилой дом на Вельфенштрассе © Paul Ott
Жилой дом на Вельфенштрассе © Paul Ott
Жилой дом на Вельфенштрассе © Paul Ott
Жилой дом на Вельфенштрассе © Paul Ott
Жилой дом на Вельфенштрассе © Paul Ott
Жилой дом на Вельфенштрассе © Paul Ott
Жилой дом на Вельфенштрассе © Paul Ott
Жилой дом на Вельфенштрассе © Paul Ott
Жилой дом на Вельфенштрассе © Paul Ott
Жилой дом на Вельфенштрассе © Paul Ott
Жилой дом на Вельфенштрассе © Paul Ott
Жилой дом на Вельфенштрассе © Paul Ott
Жилой дом на Вельфенштрассе © Paul Ott
Жилой дом на Вельфенштрассе © Paul Ott
Жилой дом на Вельфенштрассе © Paul Ott
Жилой дом на Вельфенштрассе © Paul Ott
Жилой дом на Вельфенштрассе © Paul Ott
Жилой дом на Вельфенштрассе © Paul Ott
Жилой дом на Вельфенштрассе © Paul Ott
Жилой дом на Вельфенштрассе © Paul Ott
Жилой дом на Вельфенштрассе © Paul Ott
Жилой дом на Вельфенштрассе © Paul Ott
Жилой дом на Вельфенштрассе © Paul Ott
Жилой дом на Вельфенштрассе © Paul Ott
Жилой дом на Вельфенштрассе © Paul Ott
Жилой дом на Вельфенштрассе © Paul Ott
Жилой дом на Вельфенштрассе © Paul Ott
Жилой дом на Вельфенштрассе © Peter Ebner and friends
Жилой дом на Вельфенштрассе © Peter Ebner and friends
Жилой дом на Вельфенштрассе © Peter Ebner and friends
Жилой дом на Вельфенштрассе © Peter Ebner and friends
Жилой дом на Вельфенштрассе © Peter Ebner and friends
Жилой дом на Вельфенштрассе © Peter Ebner and friends
Жилой дом на Вельфенштрассе © Peter Ebner and friends
Жилой дом на Вельфенштрассе © Peter Ebner and friends
Жилой дом на Вельфенштрассе © Peter Ebner and friends
Жилой дом на Вельфенштрассе © Peter Ebner and friends
Жилой дом на Вельфенштрассе © Peter Ebner and friends
Жилой дом на Вельфенштрассе © Peter Ebner and friends
Жилой дом на Вельфенштрассе © Peter Ebner and friends
Жилой дом на Вельфенштрассе © Peter Ebner and friends
Жилой дом на Вельфенштрассе © Peter Ebner and friends
Жилой дом на Вельфенштрассе © Peter Ebner and friends
Жилой дом на Вельфенштрассе © Peter Ebner and friends
Жилой дом на Вельфенштрассе © Peter Ebner and friends