Размещено на портале Архи.ру (www.archi.ru)

09.12.2014

Башни парадного въезда

Анна Старостина
Объект:
Торговый центр в Великом Новгороде
Адрес:
Россия, Великий Новгород.
Мастерская:
ПТАМ Виссарионова
Авторский коллектив:
Юрий Виссарионов, Константин Савкин, Дмитрий Зиборов

При въезде в Великий Новгород закончено строительство здания мебельного центра, осмысленного архитекторами как современный вариант городских ворот, памятного знака, встречающего гостей.

Торговый центр в Великом Новгороде. Фотография © Кафедра архитектуры НовГУ
Торговый центр в Великом Новгороде. Фотография © Кафедра архитектуры НовГУ

До недавнего времени единственным зданием, «встречавшим гостей» города со стороны Москвы, был завод компании Дирол Кэдбери: стандартное промышленное здание с прямолинейной геометрией металлических и стеклянных плоскостей. Идея найти более репрезентативное архитектурное решение въезда в город принадлежала городским властям, – рассказывают архитекторы бюро Юрия Виссарионова, – и она удачно совпала со стремлением крупной мебельной фабрики «Элегия», базирующейся под Новгородом, получить собственные торговые и выставочные пространства.

В конце 2010 года «ПТАМ Виссарионова» представила проект торгового центра, отмеченный сложностью композиции, сочетанием различных фактур и материалов, даже – несколько театрализованным взглядом на контекст, причем речь не только о ближайшем окружении – авторы переосмыслили образ древнего города в целом, о чем мы уже рассказывали достаточно подробно.
Ситуационная схема. Торговый центр в Великом Новгороде © ПТАМ Виссарионова
Ситуационная схема. Торговый центр в Великом Новгороде © ПТАМ Виссарионова

Сейчас, в 2014 году, закончена первая очередь строительства. И хотя, как это нередко случается, не все элементы первоначального замысла удалось реализовать в полной мере: авторам пришлось отказаться от вынесенных во внешнее пространство киосков-витрин и от условного «рва» с водой и мостом, столь недвусмысленно отсылавших к крепостной архитектуре, – получившееся здание все же выглядит очень похожим на то, что мы видели в проектном предложении. Реализованной версии удалось сохранить как эффект театральной декорации, так и образ древнего города, и остаться в тренде архитектуры деконструктивизма с ее контрастами, сложными объемами и эмоциональными эффектами как снаружи, так и внутри.
Торговый центр в Великом Новгороде. Фотография © Кафедра архитектуры НовГУ
Торговый центр в Великом Новгороде. Фотография © Кафедра архитектуры НовГУ
Торговый центр в Великом Новгороде. Проект, 2010 © ПТАМ Виссарионова
Торговый центр в Великом Новгороде. Проект, 2010 © ПТАМ Виссарионова

Здание сформировано пятью объемами разной высоты, которые образуют живописную объемную композицию, примыкая друг к другу в продуманном «беспорядке». К Москве оно обращено «центральным фасадом» – обратной трапецией с хаотично прорезанными прямоугольниками окон и характерными «въездными воротами» основного входа. Это «ядро» отвечает за собирательный образ русского средневекового зодчества, обобщенный настолько, что сложно сказать, чего в нем больше – храмового, крепостного или жилого; для архитектуры Северо-Запада Руси, вообще говоря, характерно сочетание белой массы с асимметрично разбросанными вкраплениями: будь то вкладные кресты, окошки или поребрики. Но в данном случае окна – достаточно крупные, их стекла расположены в плоскости фасада и обрамлены широкой рамкой серого металла: в этой композиции больше современного, чем средневекового, хотя отсутствие намека на карниз, окна, выведенные под обрез кровли и выступающие вверх фрагменты стен между ними отчетливо напоминают крепостные зубцы.
Торговый центр в Великом Новгороде. Фотография © Кафедра архитектуры НовГУ
Торговый центр в Великом Новгороде. Фотография © Кафедра архитектуры НовГУ
Торговый центр в Великом Новгороде. Фотография © Кафедра архитектуры НовГУ
Торговый центр в Великом Новгороде. Фотография © Кафедра архитектуры НовГУ

Справа к прорезанному белому объему примыкает стеклянный, чуть повыше, также расширяющийся кверху – цитата фасадов соседнего завода Дирол. Но одновременно он отражает небо, облака и напоминает о водных просторах, в частности, о протекающей неподалеку речке Малый Волховец (в весенний разлив она подбирается к участку ТЦ). Узкая стеклянная башня с белым верхним ярусом – самый высокий объем, в нём размещена лестница, что опять же заставляет вспомнить башню или колокольню, хотя нельзя сказать, чтобы сходство было слишком навязчивым: для современного ТЦ такой объем также вполне уместен. Фасады соседнего, углового куба, имитируют деревянную облицовку (на самом деле это все фасады покрыты композитным материалом с различными декоративными плёнками) – и «деревянное» пятно выглядит вполне логичным дополнением белого «каменного» объема.
Торговый центр в Великом Новгороде. Фотография © Кафедра архитектуры НовГУ
Торговый центр в Великом Новгороде. Фотография © Кафедра архитектуры НовГУ
Торговый центр в Великом Новгороде. Фотография © Кафедра архитектуры НовГУ
Торговый центр в Великом Новгороде. Фотография © Кафедра архитектуры НовГУ

Слева от главного фасада выстроились еще три объема, высота которых постепенно понижается: один из них «деревянный» и два застекленных. Все они дополнены П-образными входными группами, подобранными по принципу контраста – стеклянные кубы, например, сочетаются с «деревянным» порталом. Объемы плотно лепятся, врастая друг в друга, и прорастая из земли наподобие крупного кристалла, и в то же время – разворачиваются один за другим, слегка меняя поворот и наклон, складываясь в конгломерат, подобный городу с давней историей, белокаменными стенами, храмами, деревянными заборами и домами, бетонными и стеклянными современными конструкциями.
Торговый центр в Великом Новгороде. Фотография © Кафедра архитектуры НовГУ
Торговый центр в Великом Новгороде. Фотография © Кафедра архитектуры НовГУ

Внутреннее пространство многофункционального комплекса, как и полагается, отражает его композиционно-пространственное решение. Пространство центрального белого объема, прорезанного пятнами множества окон – высокое, в нем объединена высота трех этажей, но живописно разбросанные пятна окон делают его не трех-, а много-светным, создавая внутри необычное, светлое и сложно артикулированное пространство. И хотя в первой версии потолок этой части планировалось сделать похожим на стены: бетонным массивом, прорезанным окнами, а сейчас он заменен на алюминиевую кровлю на решетчатой конструкции, – эффект световой перфорации удалось сохранить, дополнив его пятнами квадратных светильников на серой решетке потолков. Согласно законам модернистской архитектуры (справедливым также и для современной торговли) разновеликие и разновысотные пространства перетекают друг в друга, насыщая поход по выставке мебели эмоциями и световыми акцентами, в режиссуре которых принимает участие как естественный свет из больших и малых окон, так и включенная в ту же игру подсветка электрических ламп.

Имеются и точечные пластические сюжеты: к примеру, вертикальные опоры вырастают в углах «белого зала» практически из бетонной массы основания расходящихся кверху стен – эта слитность, естественный рационализм пластики сродни тем «лепным» приемам, которые отвечают за обаяние средневековой новгородской (а строго говоря, в большей степени даже псковской) архитектуры. Впрочем, ни о какой массивности речь не идет – в местах отделения опор от стен (их визуального «прорастания») появляются квадраты небольших окон, которые, точь-в-точь по правилам современной архитектуры, делают основания тонких опор легкими, если не «парящими», – и всё это за счет естественного солнечного света.
Торговый центр в Великом Новгороде. Фотография © Кафедра архитектуры НовГУ
Торговый центр в Великом Новгороде. Фотография © Кафедра архитектуры НовГУ
Торговый центр в Великом Новгороде. Фотография © Кафедра архитектуры НовГУ
Торговый центр в Великом Новгороде. Фотография © Кафедра архитектуры НовГУ

«Въезд в город традиционно отмечается статусными сооружениями: путевым замком, трактиром, башнями, аркой. Мы попытались создать некий тематический симбиоз. В торгово-выставочном центре «Элегия» имеется и «трактир» на верхнем этаже, и высокая «дозорная башня» с лестницей, и даже несколько «триумфальных арок». А во всей динамичной композиции чувствуется что-то крепостное. Получилась такая очень сценичная по своей сути архитектура», – поясняют авторы объекта. Действительно, кажется, что мы смотрим не на здание, а на вариант театральной декорации. Или же на картину кисти, скажем, Аристарха Лентулова: там все линии наклонены, перспективы усилены или распластаны и в целом старорусская пестрота кажется увиденной через какую-то преломляющую оптику, некий воображаемый калейдоскоп. Здесь ­– похожий эффект, только увиденный через призму архитектуры неомодернизма. Условный, театрализованный «город» перед въездом в город настоящий, но с древней историей. 
Торговый центр в Великом Новгороде. Фотография © Кафедра архитектуры НовГУ
Торговый центр в Великом Новгороде. Фотография © Кафедра архитектуры НовГУ
Торговый центр в Великом Новгороде. Фотография © Кафедра архитектуры НовГУ
Торговый центр в Великом Новгороде. Фотография © Кафедра архитектуры НовГУ
Торговый центр в Великом Новгороде. Фотография © Кафедра архитектуры НовГУ
Торговый центр в Великом Новгороде. Фотография © Кафедра архитектуры НовГУ
Торговый центр в Великом Новгороде. Фотография © Кафедра архитектуры НовГУ
Торговый центр в Великом Новгороде. Фотография © Кафедра архитектуры НовГУ
Торговый центр в Великом Новгороде. Фотография © Кафедра архитектуры НовГУ
Торговый центр в Великом Новгороде. Фотография © Кафедра архитектуры НовГУ
Торговый центр в Великом Новгороде. Фотография © Кафедра архитектуры НовГУ
Торговый центр в Великом Новгороде. Фотография © Кафедра архитектуры НовГУ
Торговый центр в Великом Новгороде. Фотография © Кафедра архитектуры НовГУ
Торговый центр в Великом Новгороде. Фотография © Кафедра архитектуры НовГУ
Торговый центр в Великом Новгороде. Фотография © Кафедра архитектуры НовГУ
Торговый центр в Великом Новгороде. Фотография © Кафедра архитектуры НовГУ
Торговый центр в Великом Новгороде. Фотография © Кафедра архитектуры НовГУ
Торговый центр в Великом Новгороде. Фотография © Кафедра архитектуры НовГУ
Торговый центр в Великом Новгороде. Фотография © Кафедра архитектуры НовГУ
Торговый центр в Великом Новгороде. Фотография © Кафедра архитектуры НовГУ
Торговый центр в Великом Новгороде. Фотография © Кафедра архитектуры НовГУ
Торговый центр в Великом Новгороде. Фотография © Кафедра архитектуры НовГУ
Торговый центр в Великом Новгороде. Фотография © Кафедра архитектуры НовГУ
Торговый центр в Великом Новгороде. Фотография © Кафедра архитектуры НовГУ
Торговый центр в Великом Новгороде. Фотография © Кафедра архитектуры НовГУ
Торговый центр в Великом Новгороде. Фотография © Кафедра архитектуры НовГУ
Торговый центр в Великом Новгороде. Фотография © Кафедра архитектуры НовГУ
Торговый центр в Великом Новгороде. Фотография © Кафедра архитектуры НовГУ
Торговый центр в Великом Новгороде. Фотография © Кафедра архитектуры НовГУ
Торговый центр в Великом Новгороде. Фотография © Кафедра архитектуры НовГУ
Торговый центр в Великом Новгороде. Фотография © Кафедра архитектуры НовГУ
Торговый центр в Великом Новгороде. Фотография © Кафедра архитектуры НовГУ
Торговый центр в Великом Новгороде. Фотография © Кафедра архитектуры НовГУ
Торговый центр в Великом Новгороде. Фотография © Кафедра архитектуры НовГУ
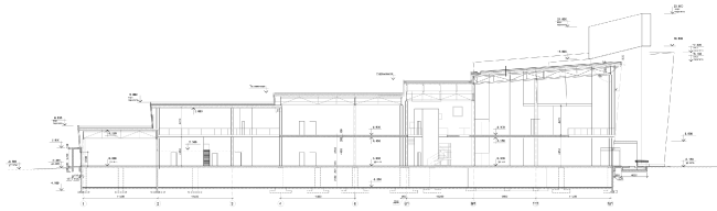
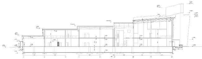
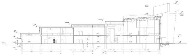
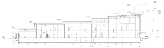
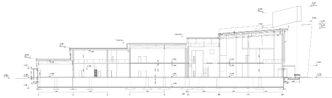
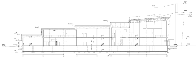
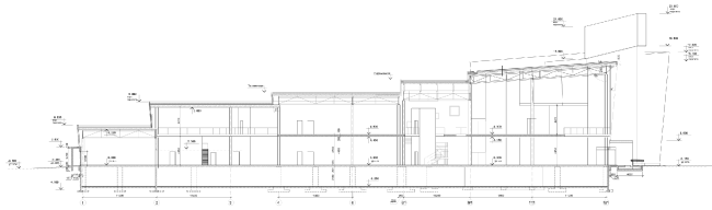
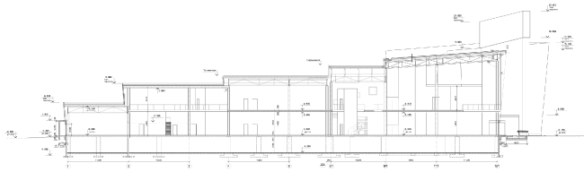
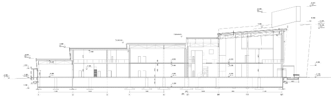
Разрез 1-1. Торговый центр в Великом Новгороде © ПТАМ Виссарионова
Разрез 1-1. Торговый центр в Великом Новгороде © ПТАМ Виссарионова
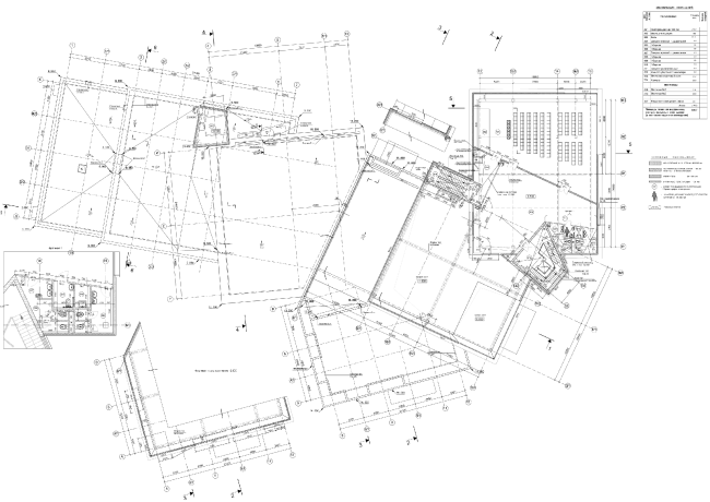
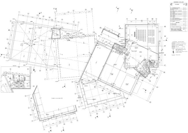
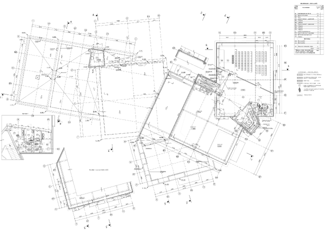
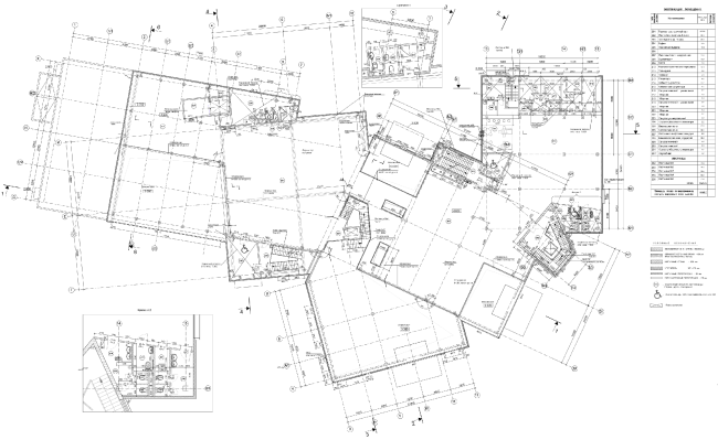
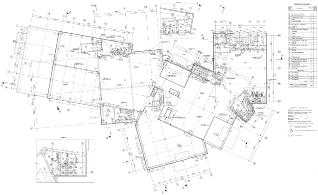
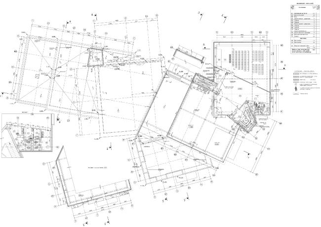
План 1-го этажа. Торговый центр в Великом Новгороде © ПТАМ Виссарионова
План 1-го этажа. Торговый центр в Великом Новгороде © ПТАМ Виссарионова
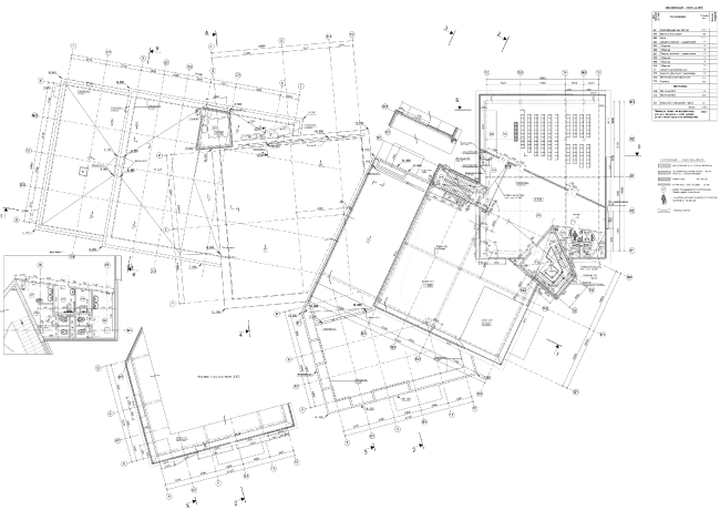
План 3-го этажа. Торговый центр в Великом Новгороде © ПТАМ Виссарионова
План 3-го этажа. Торговый центр в Великом Новгороде © ПТАМ Виссарионова
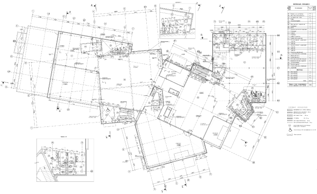
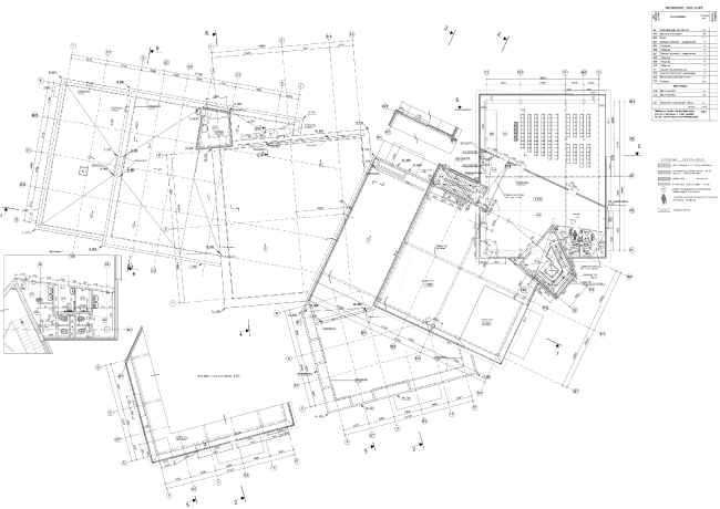
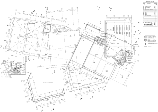
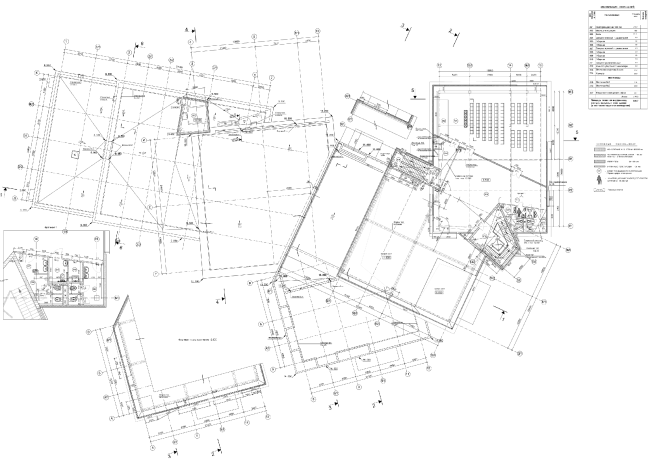
План 2-го этажа. Торговый центр в Великом Новгороде © ПТАМ Виссарионова
План 2-го этажа. Торговый центр в Великом Новгороде © ПТАМ Виссарионова