Размещено на портале Архи.ру (www.archi.ru)

21.11.2014

Дом-головоломка

Нина Фролова
Объект:
Жилой дом на Мюллерштрассе
Адрес:
Германия, None, Мюнхен.

Петер Эбнер построил в Мюнхене дом, «составленный» из квартир 18 типов планировки.

Жилой дом на Мюллерштрассе © Paul Ott
Жилой дом на Мюллерштрассе © Paul Ott

Дом на Мюллерштрассе в центре баварской столицы сразу заметен среди окружающей застройки благодаря светлому тону стен и разноразмерным проемам окон и лоджий, оживляющих его фасады.
 
Жилой дом на Мюллерштрассе © Paul Ott
Жилой дом на Мюллерштрассе © Paul Ott

Остекленный первый этаж с заметными снаружи мощными древовидными опорами, предназначался под магазины, но одному из мюнхенских архитектурных бюро так приглянулось это пространство, что оно выкупило его полностью, чтобы устроить там свой офис.
 
Жилой дом на Мюллерштрассе © Paul Ott
Жилой дом на Мюллерштрассе © Paul Ott

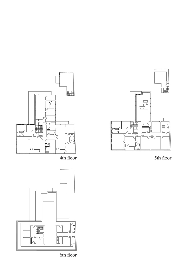
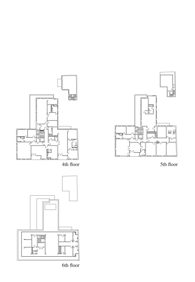
Выше расположены 25 квартир 18 типов планировки: они стали компонентами своеобразной «головоломки», из которых Петер Эбнер максимально эффективно сложил прямоугольный объем дома.
 
Жилой дом на Мюллерштрассе © Paul Ott
Жилой дом на Мюллерштрассе © Paul Ott

На зеленый задний двор выходят квартиры-таунхаусы, также имеются дуплексы и пентхаусы. Но вне зависимости от типа интерьеры каждого жилища оживляют окна и окошки – от почти панорамных до совсем маленьких.
Жилой дом на Мюллерштрассе © Florian Holzherr
Жилой дом на Мюллерштрассе © Florian Holzherr
Жилой дом на Мюллерштрассе © Paul Ott
Жилой дом на Мюллерштрассе © Paul Ott
Жилой дом на Мюллерштрассе © Paul Ott
Жилой дом на Мюллерштрассе © Paul Ott
Жилой дом на Мюллерштрассе © Paul Ott
Жилой дом на Мюллерштрассе © Paul Ott
Жилой дом на Мюллерштрассе © Florian Holzherr
Жилой дом на Мюллерштрассе © Florian Holzherr
Жилой дом на Мюллерштрассе © Paul Ott
Жилой дом на Мюллерштрассе © Paul Ott
Жилой дом на Мюллерштрассе © Paul Ott
Жилой дом на Мюллерштрассе © Paul Ott
Жилой дом на Мюллерштрассе © Paul Ott
Жилой дом на Мюллерштрассе © Paul Ott
Жилой дом на Мюллерштрассе © Paul Ott
Жилой дом на Мюллерштрассе © Paul Ott
Жилой дом на Мюллерштрассе © Paul Ott
Жилой дом на Мюллерштрассе © Paul Ott
Жилой дом на Мюллерштрассе © Paul Ott
Жилой дом на Мюллерштрассе © Paul Ott
Жилой дом на Мюллерштрассе © Paul Ott
Жилой дом на Мюллерштрассе © Paul Ott
Жилой дом на Мюллерштрассе © Paul Ott
Жилой дом на Мюллерштрассе © Paul Ott
Жилой дом на Мюллерштрассе © Paul Ott
Жилой дом на Мюллерштрассе © Paul Ott
Жилой дом на Мюллерштрассе © Paul Ott
Жилой дом на Мюллерштрассе © Paul Ott
Жилой дом на Мюллерштрассе © Florian Holzherr
Жилой дом на Мюллерштрассе © Florian Holzherr
Жилой дом на Мюллерштрассе © Florian Holzherr
Жилой дом на Мюллерштрассе © Florian Holzherr
Жилой дом на Мюллерштрассе © Paul Ott
Жилой дом на Мюллерштрассе © Paul Ott
Жилой дом на Мюллерштрассе © Florian Holzherr
Жилой дом на Мюллерштрассе © Florian Holzherr
Жилой дом на Мюллерштрассе © Peter Ebner and Friends
Жилой дом на Мюллерштрассе © Peter Ebner and Friends
Жилой дом на Мюллерштрассе © Peter Ebner and Friends
Жилой дом на Мюллерштрассе © Peter Ebner and Friends
Жилой дом на Мюллерштрассе © Peter Ebner and Friends
Жилой дом на Мюллерштрассе © Peter Ebner and Friends
Жилой дом на Мюллерштрассе © Peter Ebner and Friends
Жилой дом на Мюллерштрассе © Peter Ebner and Friends
Жилой дом на Мюллерштрассе © Peter Ebner and Friends
Жилой дом на Мюллерштрассе © Peter Ebner and Friends
Жилой дом на Мюллерштрассе © Peter Ebner and Friends
Жилой дом на Мюллерштрассе © Peter Ebner and Friends
Жилой дом на Мюллерштрассе © Peter Ebner and Friends
Жилой дом на Мюллерштрассе © Peter Ebner and Friends
Жилой дом на Мюллерштрассе © Peter Ebner and Friends
Жилой дом на Мюллерштрассе © Peter Ebner and Friends
Жилой дом на Мюллерштрассе © Peter Ebner and Friends
Жилой дом на Мюллерштрассе © Peter Ebner and Friends
Жилой дом на Мюллерштрассе © Peter Ebner and Friends
Жилой дом на Мюллерштрассе © Peter Ebner and Friends
Жилой дом на Мюллерштрассе © Peter Ebner and Friends
Жилой дом на Мюллерштрассе © Peter Ebner and Friends
Жилой дом на Мюллерштрассе © Peter Ebner and Friends
Жилой дом на Мюллерштрассе © Peter Ebner and Friends
Жилой дом на Мюллерштрассе © Peter Ebner and Friends
Жилой дом на Мюллерштрассе © Peter Ebner and Friends
Жилой дом на Мюллерштрассе © Peter Ebner and Friends
Жилой дом на Мюллерштрассе © Peter Ebner and Friends
Жилой дом на Мюллерштрассе © Peter Ebner and Friends
Жилой дом на Мюллерштрассе © Peter Ebner and Friends
Жилой дом на Мюллерштрассе © Peter Ebner and Friends
Жилой дом на Мюллерштрассе © Peter Ebner and Friends
Жилой дом на Мюллерштрассе © Peter Ebner and Friends
Жилой дом на Мюллерштрассе © Peter Ebner and Friends
Жилой дом на Мюллерштрассе © Peter Ebner and Friends
Жилой дом на Мюллерштрассе © Peter Ebner and Friends
Жилой дом на Мюллерштрассе © Peter Ebner and Friends
Жилой дом на Мюллерштрассе © Peter Ebner and Friends
Жилой дом на Мюллерштрассе © Peter Ebner and Friends
Жилой дом на Мюллерштрассе © Peter Ebner and Friends
Жилой дом на Мюллерштрассе © Peter Ebner and Friends
Жилой дом на Мюллерштрассе © Peter Ebner and Friends
Жилой дом на Мюллерштрассе © Peter Ebner and Friends
Жилой дом на Мюллерштрассе © Peter Ebner and Friends
Жилой дом на Мюллерштрассе © Peter Ebner and Friends
Жилой дом на Мюллерштрассе © Peter Ebner and Friends
Жилой дом на Мюллерштрассе © Peter Ebner and Friends
Жилой дом на Мюллерштрассе © Peter Ebner and Friends
Жилой дом на Мюллерштрассе © Peter Ebner and Friends
Жилой дом на Мюллерштрассе © Peter Ebner and Friends
Жилой дом на Мюллерштрассе © Peter Ebner and Friends
Жилой дом на Мюллерштрассе © Peter Ebner and Friends
Жилой дом на Мюллерштрассе © Peter Ebner and Friends
Жилой дом на Мюллерштрассе © Peter Ebner and Friends
Жилой дом на Мюллерштрассе © Peter Ebner and Friends
Жилой дом на Мюллерштрассе © Peter Ebner and Friends
Жилой дом на Мюллерштрассе © Peter Ebner and Friends
Жилой дом на Мюллерштрассе © Peter Ebner and Friends
Жилой дом на Мюллерштрассе © Peter Ebner and Friends
Жилой дом на Мюллерштрассе © Peter Ebner and Friends
Жилой дом на Мюллерштрассе © Peter Ebner and Friends
Жилой дом на Мюллерштрассе © Peter Ebner and Friends
Жилой дом на Мюллерштрассе © Peter Ebner and Friends
Жилой дом на Мюллерштрассе © Peter Ebner and Friends
Жилой дом на Мюллерштрассе © Peter Ebner and Friends
Жилой дом на Мюллерштрассе © Peter Ebner and Friends
Жилой дом на Мюллерштрассе © Peter Ebner and Friends
Жилой дом на Мюллерштрассе © Peter Ebner and Friends
Жилой дом на Мюллерштрассе © Peter Ebner and Friends
Жилой дом на Мюллерштрассе © Peter Ebner and Friends
Жилой дом на Мюллерштрассе © Peter Ebner and Friends
Жилой дом на Мюллерштрассе © Peter Ebner and Friends
Жилой дом на Мюллерштрассе © Peter Ebner and Friends
Жилой дом на Мюллерштрассе © Peter Ebner and Friends
Жилой дом на Мюллерштрассе © Peter Ebner and Friends
Жилой дом на Мюллерштрассе © Peter Ebner and Friends
Жилой дом на Мюллерштрассе © Peter Ebner and Friends
Жилой дом на Мюллерштрассе © Peter Ebner and Friends