Размещено на портале Архи.ру (www.archi.ru)

24.11.2014

Одинаково разные

Татьяна Тимофеева
Объект:
Две виллы
Адрес:
Россия, Московская область,
Архитектор:
Даниил Лоренц
Наталья Сидорова
Константин Ходнев
Мастерская:
DNK ag
Авторский коллектив:
Архитекторы: Д. Лоренц, Н. Сидорова, К. Ходнев, А. Аверьянова
Конструкции: О. Вишницкий
Проект интерьеров: Д. Лоренц, Н. Сидорова, К. Ходнев, Е. Сереброва

О двух виллах для двух братьев, строительство которых по проекту ДНК аг недавно завершилось, рассказывают авторы.

Две виллы. Фотография © ДНК аг
Две виллы. Фотография © ДНК аг

Архитекторы работают над этим проектом с перерывами с 2007 года и очень ценят полученный опыт. В частности, им удалось убедиться, что если рабочие чертежи сделаны достаточно детально, замысел может быть реализован достаточно точно даже без постоянного авторского надзора: потребовалось лишь несколько консультаций, а сделано всё точно. Кроме того некоторые важные элементы, к примеру деревянные рамки террас, получились так, как было задумано в концепции: достаточно тонкими и легкими.

Два объема покрыты шершавой шкуркой темного сланца, смотрят окнами в лес, но поставлены близко и образуют между собой небольшую площадь двора, – получается продуманный и связный ансамбль, одновременно природный и городской: современный вариант «города-сада». Причем каменная фактура фасадов контрастно подчеркнута светлой белизной внутреннего пространства – архитекторы также поработали над интерьером одного из домов.

Мы поговорили с одним из главных архитекторов ДНК аг, Натальей Сидоровой, об этих домах.
Две виллы. Фотография © ДНК аг
Две виллы. Фотография © ДНК аг

Архи.ру:
– В чем суть проекта? 

Наталья Сидорова:
– Задача стояла построить два дома для двух братьев на двух примыкающих друг к другу участках, окруженных лесом. Необходимая функциональная программа почти полностью должна была занять площадь, на которой было возможно строительство, поэтому одной из основных задач было решить пространственные вопросы, связанные с почти городской плотностью застройки и при сохранении всех преимуществ загородной жизни.
Две виллы © ДНК аг
Две виллы © ДНК аг

В процессе макетирования сформировалась структура домов с непрямоугольной, случайной на первый взгляд, геометрией планов. Это позволило ответить сразу на несколько вопросов: окна всех основных помещений обращены в лес и мимо стен дома соседа; дома при одинаковой программе и размере приобрели индивидуальный характер планировки; между домами образовался внутренний двор с общей  летней беседкой и барбекью, где за общим столом может собраться вся большая семья.
Две виллы © ДНК аг
Две виллы © ДНК аг
Две виллы © ДНК аг
Две виллы © ДНК аг
Две виллы. Фотография © ДНК аг
Две виллы. Фотография © ДНК аг
Две виллы. Фотография © ДНК аг
Две виллы. Фотография © ДНК аг
Две виллы. Фотография © ДНК аг
Две виллы. Фотография © ДНК аг
Две виллы. Фотография © ДНК аг
Две виллы. Фотография © ДНК аг
Две виллы. Фотография © ДНК аг
Две виллы. Фотография © ДНК аг


– Расскажите о фасадах. 

Н.С.: Все фасады равноценные, как у скульптуры, нет деления на главные и второстепенные. Благодаря чему, помимо пространственной, получается цельная объемная композиция. Вместе с тем к каждого фасады свой характер, продиктованный планировочной структурой домов. Фасады облицованы полосками сланца двух типов: серебристого в основном и вкраплениями темно-серого. В тени их отличие нюансно, но на солнце контраст усиливается: серебристый камень имеет легкий блеск из-за метализированной гладкой поверхности, а темный камень матовый и более шершавый.

Когда пришло время заказывать фасадные материалы, заказчик засомневался в темном цвете камня и сказал, что хочет сделать облицовку более традиционной светлой. Для концепции это было очень принципиально и, к счастью, нам удалось убедить его выбрать темно-серый сланец и сохранить задуманное настроение. На контрасте по цвету и характеру материала стен для отделки балконов и террас использовано теплое светлое дерево – тонированная лиственница.
Две виллы. Фотография © ДНК аг
Две виллы. Фотография © ДНК аг
Две виллы. Фотография © ДНК аг
Две виллы. Фотография © ДНК аг
Две виллы. Фотография © ДНК аг
Две виллы. Фотография © ДНК аг
Две виллы. Фотография © ДНК аг
Две виллы. Фотография © ДНК аг
Две виллы. Фотография © ДНК аг
Две виллы. Фотография © ДНК аг
Две виллы. Фотография © ДНК аг
Две виллы. Фотография © ДНК аг
Две виллы. Фотография © ДНК аг
Две виллы. Фотография © ДНК аг
Две виллы. Фотография © ДНК аг
Две виллы. Фотография © ДНК аг
Две виллы. Фотография © ДНК аг
Две виллы. Фотография © ДНК аг

Брутальная каменная кладка и непрямоугольная геометрия стен как в плане, так и по фасаду, в сочетании с камерными и нерегулярными пространствами придает домам живой, современный и в то же время почти средневековый характер.
Две виллы. Фотография © ДНК аг
Две виллы. Фотография © ДНК аг
Две виллы. Фотография © ДНК аг
Две виллы. Фотография © ДНК аг
Две виллы. Фотография © ДНК аг
Две виллы. Фотография © ДНК аг


– Какие технические решения, на ваш взгляд, получились? 

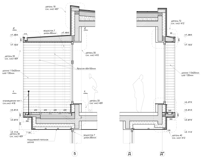
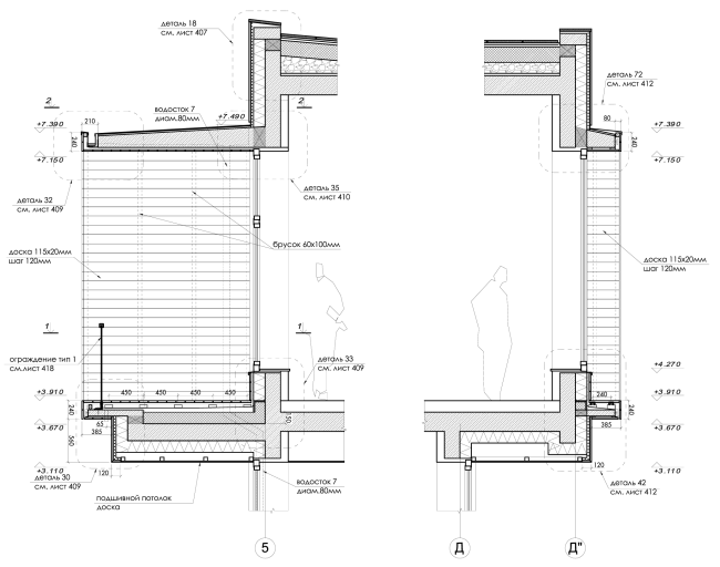
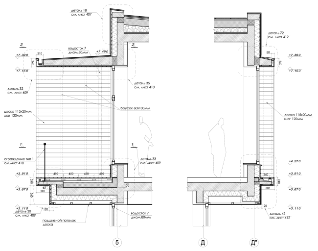
Н.С.: Характерным элементом стали слегка выступающие деревянные обрамления ниш и террас, разбросанные по дому. Причем для характера «линии» очень важна была небольшая толщина рамок. Поэтому для этих консольных элементов выбрали монолитную конструкцию с закреплением к основному тоже монолитному остову через терморазъем, что позволило обойтись без утепления и выйти на нужную толщину с учетом отделки.

Стройка проходила с минимальным авторским архитектурным контролем, поскольку проект был выполнен очень детально, а при хорошей организации и желании заказчика сделать дом в соответствии с проектом надзор почти не был нужен. В результате дома действительно полностью соответствуют проекту. Небольшая переделка дизайна во время стройки коснулась лишь ограждений.
Две виллы © ДНК аг
Две виллы © ДНК аг
Две виллы. Фотография © ДНК аг
Две виллы. Фотография © ДНК аг

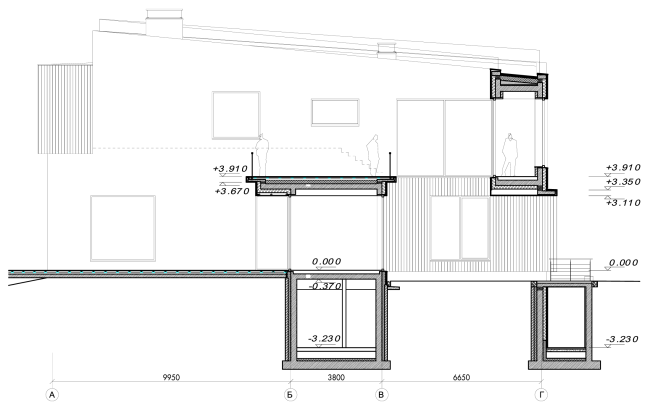
Для освещения и входа в подвальный этаж сделаны глубокие приямки вдоль одного из фасадов каждого из домов. Фасады и подпорные стенки выполнены  целиком из сланца, поэтому создается впечатление выросшего из скалы дома или наоборот вросшего в культурный слой фрагмента старинной постройки.
Две виллы. Фотография © ДНК аг
Две виллы. Фотография © ДНК аг
Две виллы. Фотография © ДНК аг
Две виллы. Фотография © ДНК аг


– Вы сделали все интерьеры?

Н.С.: Мы проектировали интерьер одного из домов. Интерьер выдержан в единой с фасадом минималистичной, спокойной стилистике и построен на естественной цветовой гамме и натуральных материалах. На контрасте с фасадом внутри использованы светлые тона и только центральное ядро с консольной лестницей выделено тем же темно-серым фасадным сланцем.

 
Две виллы. Фотография © ДНК аг
Две виллы. Фотография © ДНК аг
Две виллы. Фотография © ДНК аг
Две виллы. Фотография © ДНК аг
Две виллы. Фотография © Архитектурная группа ДНК
Две виллы. Фотография © Архитектурная группа ДНК
Две виллы. Фотография © ДНК аг
Две виллы. Фотография © ДНК аг
Две виллы. Фотография © ДНК аг
Две виллы. Фотография © ДНК аг
Две виллы. Фотография © ДНК аг
Две виллы. Фотография © ДНК аг
Две виллы. Макет © ДНК аг
Две виллы. Макет © ДНК аг
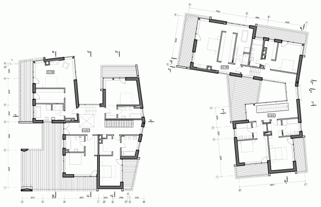
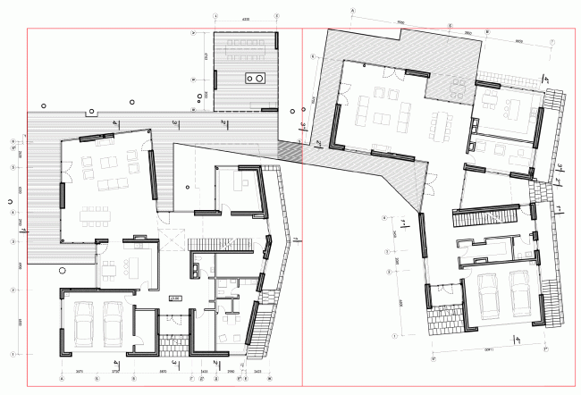
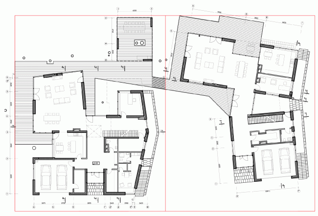
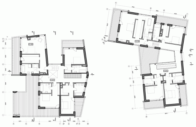
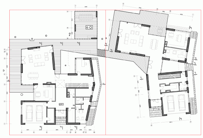
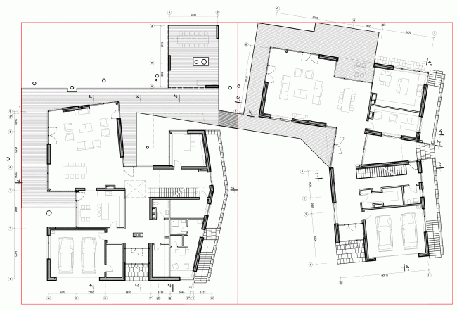
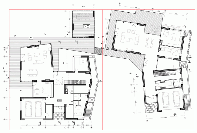
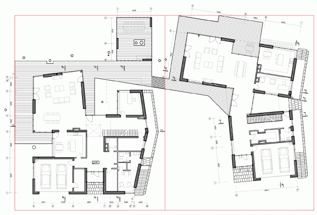
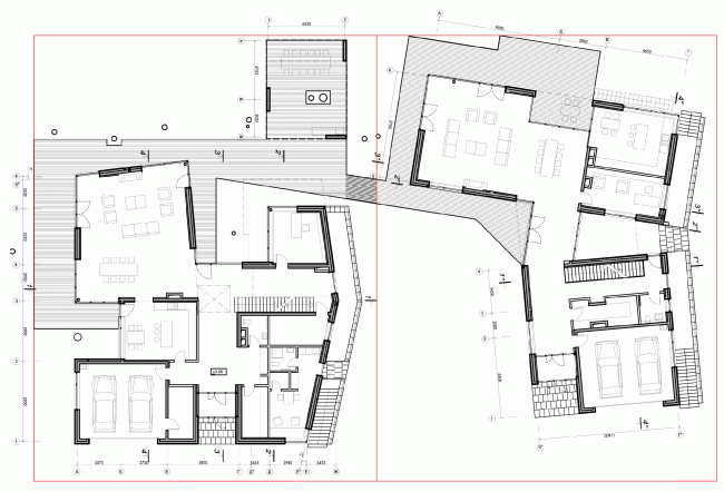
Две виллы. План первого этажа © ДНК аг
Две виллы. План первого этажа © ДНК аг
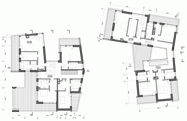
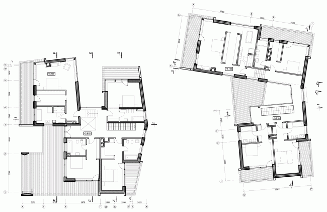
Две виллы. План второго этажа © ДНК аг
Две виллы. План второго этажа © ДНК аг
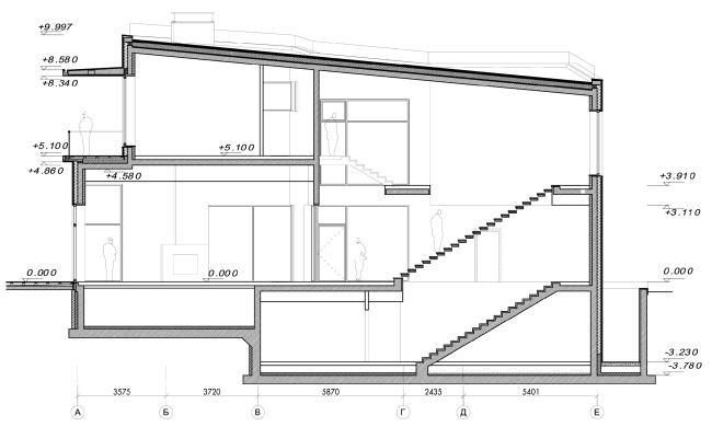
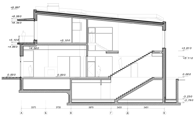
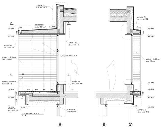
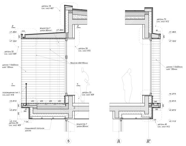
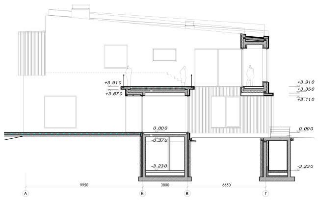
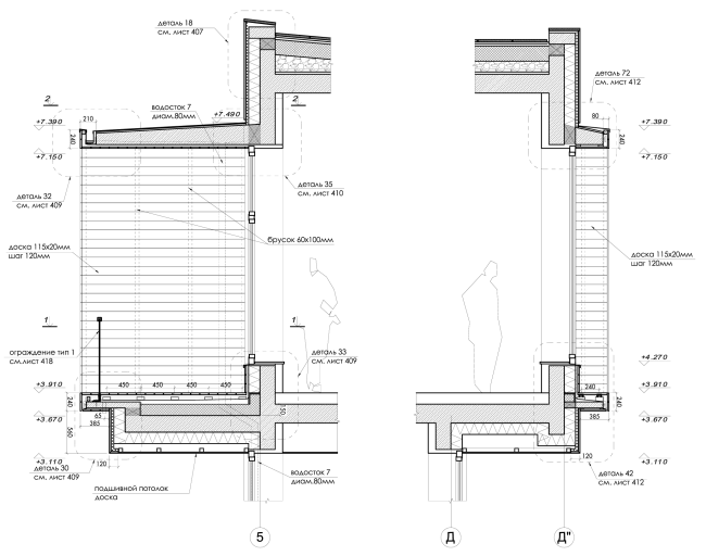
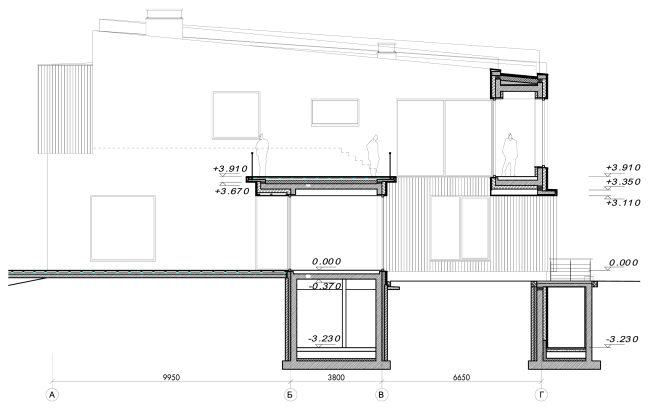
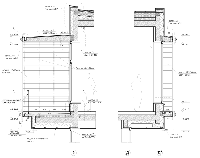
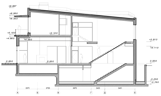
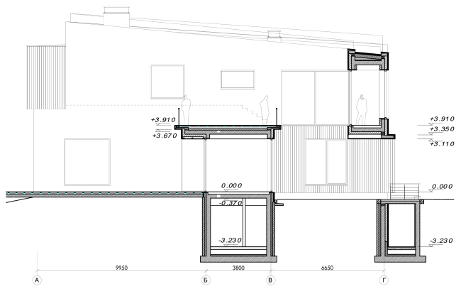
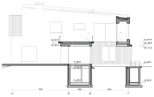
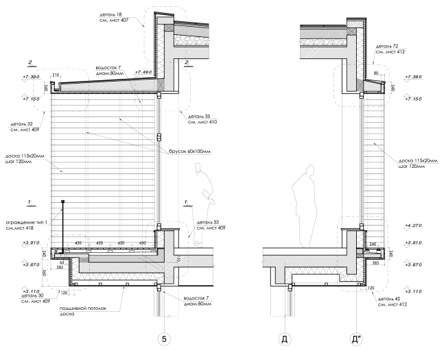
Две виллы. Разрез © ДНК аг
Две виллы. Разрез © ДНК аг
Две виллы. Разрез © ДНК аг
Две виллы. Разрез © ДНК аг