Размещено на портале Архи.ру (www.archi.ru)

17.11.2014

Иллюзия природы

Екатерина Ровнова
Объект:
Жилой дом с приемной врача Ordination Wienerwald
Адрес:
Австрия, None, Пуркерсдорф.

Австрийское бюро Juri Troy Architects построило жилой дом с приемной врача на первом этаже, визуально отделив его от соседской застройки весьма нетривиальным способом.

Жилой дом с приемной врача Ordination Wienerwald © Kurt Kuball
Жилой дом с приемной врача Ordination Wienerwald © Kurt Kuball

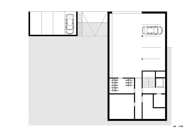
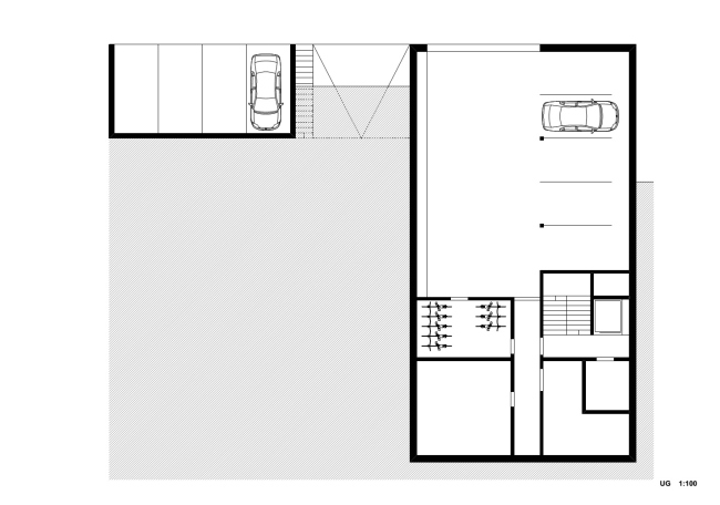
Неподалеку от Вены в городе Пуркерсдорф расположился трехквартирный дом, построенный по проекту Juri Troy Architects. Первый этаж здания площадью 250 м2 занимает приемная врача, второй – три квартиры, а в нижнем, полуподземном уровне устроен гараж.
 
Жилой дом с приемной врача Ordination Wienerwald © Kurt Kuball
Жилой дом с приемной врача Ordination Wienerwald © Kurt Kuball

Стеклянный периметр первого этажа окружен «лесом» из 280 березовых стволов: это решение обеспечивает маленькой клинике солнцезащиту и огораживает ее от посторонних глаз, создавая приятную атмосферу как для работников, так и для пациентов. Автомобильная дорога и окружающая застройка исчезают за занавесью «березовой рощи».
 
Жилой дом с приемной врача Ordination Wienerwald © Kurt Kuball
Жилой дом с приемной врача Ordination Wienerwald © Kurt Kuball

Апартаменты на втором этаже подчеркнуты глубоким рельефом террас, воздушные светлые интерьеры органично продолжают заданное березами настроение.
 
Жилой дом с приемной врача Ordination Wienerwald © Kurt Kuball
Жилой дом с приемной врача Ordination Wienerwald © Kurt Kuball

Описывая свой проект, архитекторы замечают, что в этом же городе находится и объект наследия венского Сецессиона – санаторий авторства Йозефа Хоффмана, тем самым, по всей видимости, обращая внимание на преемственность своих архитектурных решений. Минималистский интерьер и белые модернистские строгие плоскости фасада уравновешиваются природной, «ремесленной» эстетикой периметра первого этажа.
 
Жилой дом с приемной врача Ordination Wienerwald © Kurt Kuball
Жилой дом с приемной врача Ordination Wienerwald © Kurt Kuball

Пойти на прием к врачу в березовую рощу. Утилитарно и выразительно.
Жилой дом с приемной врача Ordination Wienerwald © Kurt Kuball
Жилой дом с приемной врача Ordination Wienerwald © Kurt Kuball
Жилой дом с приемной врача Ordination Wienerwald © Kurt Kuball
Жилой дом с приемной врача Ordination Wienerwald © Kurt Kuball
Жилой дом с приемной врача Ordination Wienerwald © Kurt Kuball
Жилой дом с приемной врача Ordination Wienerwald © Kurt Kuball
Жилой дом с приемной врача Ordination Wienerwald © Kurt Kuball
Жилой дом с приемной врача Ordination Wienerwald © Kurt Kuball
Жилой дом с приемной врача Ordination Wienerwald © Kurt Kuball
Жилой дом с приемной врача Ordination Wienerwald © Kurt Kuball
Жилой дом с приемной врача Ordination Wienerwald © Kurt Kuball
Жилой дом с приемной врача Ordination Wienerwald © Kurt Kuball
Жилой дом с приемной врача Ordination Wienerwald © Kurt Kuball
Жилой дом с приемной врача Ordination Wienerwald © Kurt Kuball
Жилой дом с приемной врача Ordination Wienerwald © Juri Troy architects
Жилой дом с приемной врача Ordination Wienerwald © Juri Troy architects
Жилой дом с приемной врача Ordination Wienerwald © Juri Troy architects
Жилой дом с приемной врача Ordination Wienerwald © Juri Troy architects
Жилой дом с приемной врача Ordination Wienerwald © Juri Troy architects
Жилой дом с приемной врача Ordination Wienerwald © Juri Troy architects
Жилой дом с приемной врача Ordination Wienerwald © Juri Troy architects
Жилой дом с приемной врача Ordination Wienerwald © Juri Troy architects
Жилой дом с приемной врача Ordination Wienerwald © Juri Troy architects
Жилой дом с приемной врача Ordination Wienerwald © Juri Troy architects
Жилой дом с приемной врача Ordination Wienerwald © Juri Troy architects
Жилой дом с приемной врача Ordination Wienerwald © Juri Troy architects
Жилой дом с приемной врача Ordination Wienerwald © Juri Troy architects
Жилой дом с приемной врача Ordination Wienerwald © Juri Troy architects
Жилой дом с приемной врача Ordination Wienerwald © Juri Troy architects
Жилой дом с приемной врача Ordination Wienerwald © Juri Troy architects
Жилой дом с приемной врача Ordination Wienerwald © Juri Troy architects
Жилой дом с приемной врача Ordination Wienerwald © Juri Troy architects
Жилой дом с приемной врача Ordination Wienerwald © Juri Troy architects
Жилой дом с приемной врача Ordination Wienerwald © Juri Troy architects