Размещено на портале Архи.ру (www.archi.ru)

13.11.2014

Вне времени

Екатерина Ровнова
Объект:
Центр инноваций Католического университета Чили «Анаклето Анджелини»
Адрес:
Чили, None, Сантьяго.

В Сантьяго построен Центр инноваций по проекту бюро Алехандро Аравены ELEMENTAL.

Центр инноваций Католического университета Чили «Анаклето Анджелини» © ELEMENTAL - Nina Vidic
Центр инноваций Католического университета Чили «Анаклето Анджелини» © ELEMENTAL - Nina Vidic

В 2011 Grupo Angelini, один из крупнейших концернов Чили, принял решение создать в столице страны Сантьяго Центр инноваций, где бы вместе работали предприниматели, исследователи, студенты: подобное междисциплинарное сотрудничество должно усовершенствовать процесс генерации идей и их практического воплощения. Католический университет Чили выделил под строительство этого центра участок на территории своего кампуса Сан-Хоакин.
 
Центр инноваций Католического университета Чили «Анаклето Анджелини» © ELEMENTAL - Nina Vidic
Центр инноваций Католического университета Чили «Анаклето Анджелини» © ELEMENTAL - Nina Vidic

Архитекторы уверены, что в подобном «созидательном» центре необходимы разнообразные пространства для непосредственного взаимодействия людей. В традиционной структуре офисного здания таким местом может быть только холл первого этажа: ведь путь с улицы до рабочего стола сотрудники проделывают в закрытой кабине лифта, доставляющего человека точно до необходимого ему уровня, поэтому вероятность случайной встречи с коллегой сведена до минимума.
 
Центр инноваций Католического университета Чили «Анаклето Анджелини» © Nico Saieh
Центр инноваций Католического университета Чили «Анаклето Анджелини» © Nico Saieh

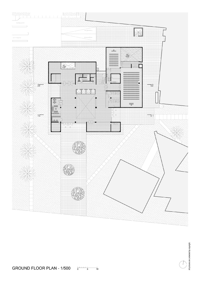
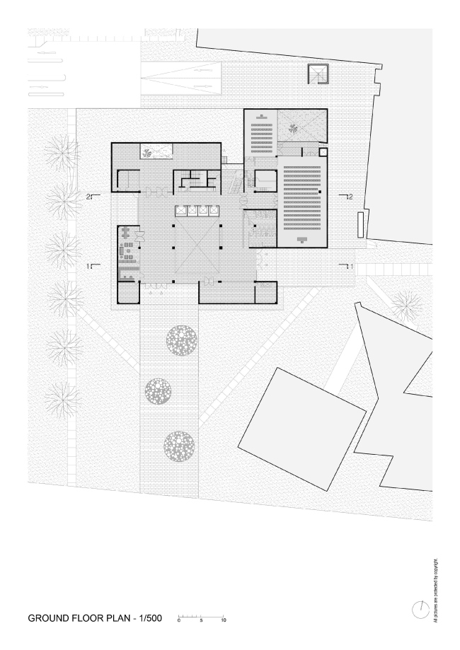
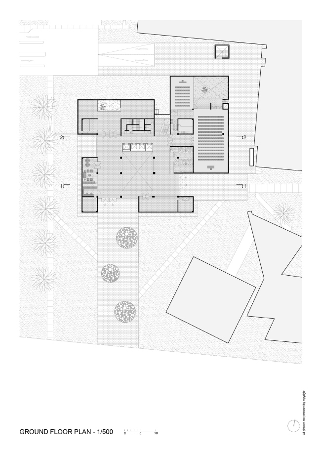
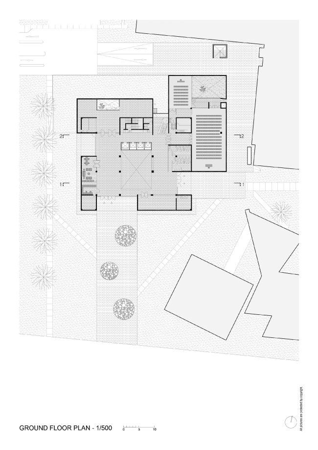
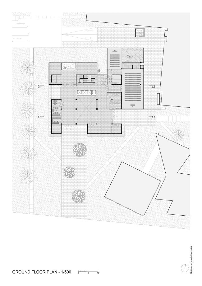
Чтобы изменить эту ситуацию, в Центре инноваций вместо традиционного объемно-планировочного решения с непрозрачным ядром и навесным остекленным периметром использован высокий атриум, вокруг которого формируется массивное, но проницаемое кольцо офисов, переговорных комнат и конференц-залов. Это решение не только отвечает функциональным требованиям, но и повышает общую «производительность» здания.
 
Центр инноваций Католического университета Чили «Анаклето Анджелини» © Nico Saieh
Центр инноваций Католического университета Чили «Анаклето Анджелини» © Nico Saieh

Поскольку новый центр носит название «инновационного», заказчик хотел, чтобы облик здания не отставал от его имени. Однако, по словам архитекторов, поверхностный поиск «современного» в Сантьяго привел к тому, что город порос стеклянными башнями, внутри которых из-за жаркого субтропического климата создается эффект парника, и потому на кондиционирование расходуется огромное количество электроэнергии.
 
Центр инноваций Католического университета Чили «Анаклето Анджелини» © Nico Saieh
Центр инноваций Католического университета Чили «Анаклето Анджелини» © Nico Saieh

Чтобы избежать нежелательного перегрева и повысить энергоэффективность, здание Центра инноваций выстроено как обращенная вовнутрь непрозрачная массивная оболочка с заглубленными оконными проемами. В итоге, электропотребление сократилось примерно на 267% и составило 45кВт/м2 (для сравнения, остекленная по периметру башня расходует 120 кВт/м2 в год). Кроме того, за счет выбранного решения фасадов приглушается интенсивность поступающих внутрь солнечных лучей: при стандартной «стеклянной» схеме этот эффект достигается при помощи  ставней, жалюзи и занавесей, которые уводят искомую прозрачность скорее в область риторики, нежели практики.
 
Центр инноваций Католического университета Чили «Анаклето Анджелини» © Nico Saieh
Центр инноваций Католического университета Чили «Анаклето Анджелини» © Nico Saieh

Самая большая опасность для здания, назвавшегося инновационным, – это устаревание, как стилистическое, так и функциональное. Поэтому отказ от прозрачного фасада был продиктован не только опасностью низких теплотехнических характеристик, но и поиском визуального решения, способного выдержать испытание временем.
 
Центр инноваций Католического университета Чили «Анаклето Анджелини» © Nico Saieh
Центр инноваций Католического университета Чили «Анаклето Анджелини» © Nico Saieh

Алехандро Аравена предлагает свой рецепт борьбы со старением – проектировать здание не как архитектуру, а как инфраструктуру. А благодаря строгой геометрии и сильной монолитной форме, постройка может не просто встать в один строй со временем, но и оказаться вне его.
Центр инноваций Католического университета Чили «Анаклето Анджелини» © ELEMENTAL - Nina Vidic
Центр инноваций Католического университета Чили «Анаклето Анджелини» © ELEMENTAL - Nina Vidic
Центр инноваций Католического университета Чили «Анаклето Анджелини» © ELEMENTAL - Nina Vidic
Центр инноваций Католического университета Чили «Анаклето Анджелини» © ELEMENTAL - Nina Vidic
Центр инноваций Католического университета Чили «Анаклето Анджелини» © ELEMENTAL - Víctor Oddó
Центр инноваций Католического университета Чили «Анаклето Анджелини» © ELEMENTAL - Víctor Oddó
Центр инноваций Католического университета Чили «Анаклето Анджелини» © Nico Saieh
Центр инноваций Католического университета Чили «Анаклето Анджелини» © Nico Saieh
Центр инноваций Католического университета Чили «Анаклето Анджелини» © Nico Saieh
Центр инноваций Католического университета Чили «Анаклето Анджелини» © Nico Saieh
Центр инноваций Католического университета Чили «Анаклето Анджелини». Набросок "Что определяет форму проекта?" © ELEMENTAL
Центр инноваций Католического университета Чили «Анаклето Анджелини». Набросок "Что определяет форму проекта?" © ELEMENTAL
Центр инноваций Католического университета Чили «Анаклето Анджелини» © ELEMENTAL
Центр инноваций Католического университета Чили «Анаклето Анджелини» © ELEMENTAL
Центр инноваций Католического университета Чили «Анаклето Анджелини» © ELEMENTAL
Центр инноваций Католического университета Чили «Анаклето Анджелини» © ELEMENTAL
Центр инноваций Католического университета Чили «Анаклето Анджелини» © ELEMENTAL
Центр инноваций Католического университета Чили «Анаклето Анджелини» © ELEMENTAL
Центр инноваций Католического университета Чили «Анаклето Анджелини» © ELEMENTAL
Центр инноваций Католического университета Чили «Анаклето Анджелини» © ELEMENTAL
Центр инноваций Католического университета Чили «Анаклето Анджелини» © ELEMENTAL
Центр инноваций Католического университета Чили «Анаклето Анджелини» © ELEMENTAL
Центр инноваций Католического университета Чили «Анаклето Анджелини» © ELEMENTAL
Центр инноваций Католического университета Чили «Анаклето Анджелини» © ELEMENTAL
Центр инноваций Католического университета Чили «Анаклето Анджелини» © ELEMENTAL
Центр инноваций Католического университета Чили «Анаклето Анджелини» © ELEMENTAL