Размещено на портале Архи.ру (www.archi.ru)

12.11.2014

Реинкарнация базара

Анна Старостина
Объект:
Центральный рынок Абу-Даби
Адрес:
ОАЭ, None, Абу-Даби.
Мастерская:
Foster + Partners

Лорд Норман Фостер превратил исторический рынок в центре Абу-Даби в современный торгово-деловой центр, сохранив при этом магию места и восточный колорит.

Центральный рынок Абу-Даби. Фото © Nigel Young/Foster + Partners
Центральный рынок Абу-Даби. Фото © Nigel Young/Foster + Partners

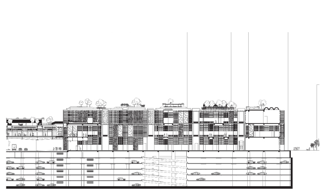
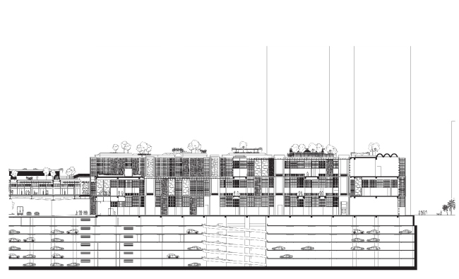
Масштабное строительство – общая площадь проекта более 600 000 кв.м – началось в центре столицы ОАЭ еще в 2006 году. Заказчиком стала компания Aldar Properties, а партнером Foster + Partners выступило местное бюро Planar. Первая очередь, полностью реконструированный старый рынок, была открыт еще в 2011 году. Чуть позднее был готов современный торговый центр. И вот, наконец, завершено строительство отеля сети Marriott и двух высотных башен, в которых разместятся офисы и апартаменты. Самая высокая из них достигает впечатляющей отметки в 378 метров.
Центральный рынок Абу-Даби. Фото © Nigel Young/Foster + Partners
Центральный рынок Абу-Даби. Фото © Nigel Young/Foster + Partners

Базар (он так и называется – сук) c продуктовыми и ремесленными лавочками и молл с престижными магазинами закрыты ажурными деревянными панелями, геометрический рисунок которых заставляет вспомнить орнаменты средневековой арабской архитектуры. Благодаря солнечному свету, они многократно повторяются во внутреннем пространстве.
Центральный рынок Абу-Даби. Фото © Nigel Young/Foster + Partners
Центральный рынок Абу-Даби. Фото © Nigel Young/Foster + Partners

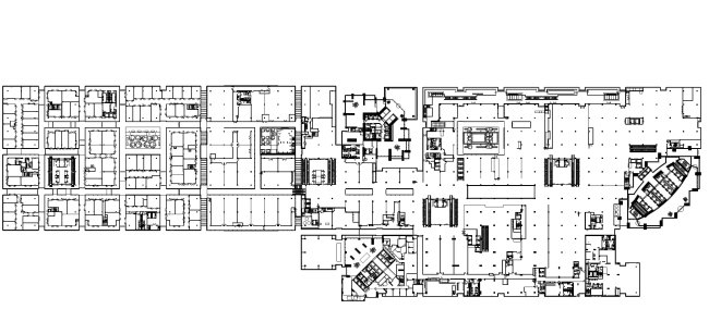
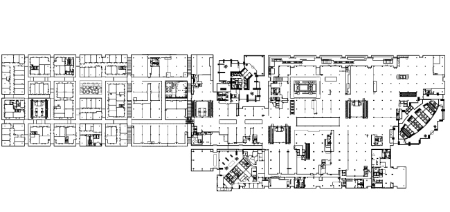
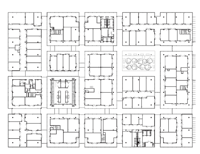
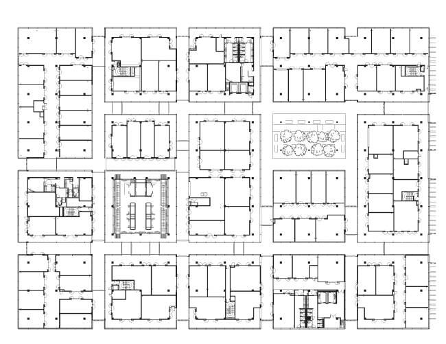
Внутренняя планировка этих зданий предусматривает множество открытых зон, причем своеобразные улочки и небольшие площади открыты круглосуточно. Эти комфортные общественные пространства используются для проведения фестивалей, праздников и даже корпоративных мероприятий. Большую часть времени благоприятный климат позволяет держать их открытыми, но при необходимости сдвижные внешние панели образуют защитный навес, позволяющий контролировать микроклимат в интерьере.
 
Центральный рынок Абу-Даби. Фото © Nigel Young/Foster + Partners
Центральный рынок Абу-Даби. Фото © Nigel Young/Foster + Partners

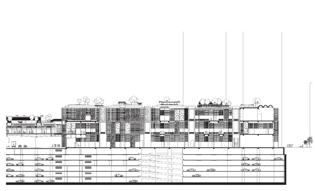
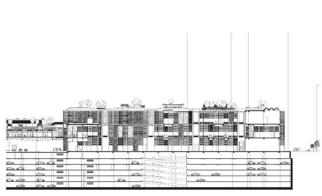
Крыши торговых центров решены как серия открытых зеленых террас: вот над этим подиумом и возвышаются разноуровневые высотки. Их зеркальные гладкие фасады  сложной формы требуют минимального ухода в непростых условиях пыльного пустынного климата. Предусмотрена и защита внутренних помещений от солнечных лучей и перегрева. Эти сверкающие космические «стрелы» демонстративно противопоставлены мягкому, рукотворному началу, воспетому в оформлении низкоэтажной торговой части квартала с ее терракотовыми фасадами. Гармоничное сосуществование традиционных ценностей и современной культуры, высоких технологий и ремесел – камертон Абу-Даби, точно услышанный архитектором.
Центральный рынок Абу-Даби. Фото © Nigel Young/Foster + Partners
Центральный рынок Абу-Даби. Фото © Nigel Young/Foster + Partners
Центральный рынок Абу-Даби. Фото © Nigel Young/Foster + Partners
Центральный рынок Абу-Даби. Фото © Nigel Young/Foster + Partners
Центральный рынок Абу-Даби. Фото © Nigel Young/Foster + Partners
Центральный рынок Абу-Даби. Фото © Nigel Young/Foster + Partners
Центральный рынок Абу-Даби. Фото © Nigel Young/Foster + Partners
Центральный рынок Абу-Даби. Фото © Nigel Young/Foster + Partners
Центральный рынок Абу-Даби. Фото © Nigel Young/Foster + Partners
Центральный рынок Абу-Даби. Фото © Nigel Young/Foster + Partners
Центральный рынок Абу-Даби. Фото © Nigel Young/Foster + Partners
Центральный рынок Абу-Даби. Фото © Nigel Young/Foster + Partners
Центральный рынок Абу-Даби. Фото © Nigel Young/Foster + Partners
Центральный рынок Абу-Даби. Фото © Nigel Young/Foster + Partners
Центральный рынок Абу-Даби. Фото © Nigel Young/Foster + Partners
Центральный рынок Абу-Даби. Фото © Nigel Young/Foster + Partners
Центральный рынок Абу-Даби. Фото © Nigel Young/Foster + Partners
Центральный рынок Абу-Даби. Фото © Nigel Young/Foster + Partners
Центральный рынок Абу-Даби. Фото © Nigel Young/Foster + Partners
Центральный рынок Абу-Даби. Фото © Nigel Young/Foster + Partners
Центральный рынок Абу-Даби. Фото © Nigel Young/Foster + Partners
Центральный рынок Абу-Даби. Фото © Nigel Young/Foster + Partners
Центральный рынок Абу-Даби. Фото © Nigel Young/Foster + Partners
Центральный рынок Абу-Даби. Фото © Nigel Young/Foster + Partners
Центральный рынок Абу-Даби. Фото © Nigel Young/Foster + Partners
Центральный рынок Абу-Даби. Фото © Nigel Young/Foster + Partners
Центральный рынок Абу-Даби. Фото © Nigel Young/Foster + Partners
Центральный рынок Абу-Даби. Фото © Nigel Young/Foster + Partners
Центральный рынок Абу-Даби. Фото © Nigel Young/Foster + Partners
Центральный рынок Абу-Даби. Фото © Nigel Young/Foster + Partners
Центральный рынок Абу-Даби. Фото © Nigel Young/Foster + Partners
Центральный рынок Абу-Даби. Фото © Nigel Young/Foster + Partners
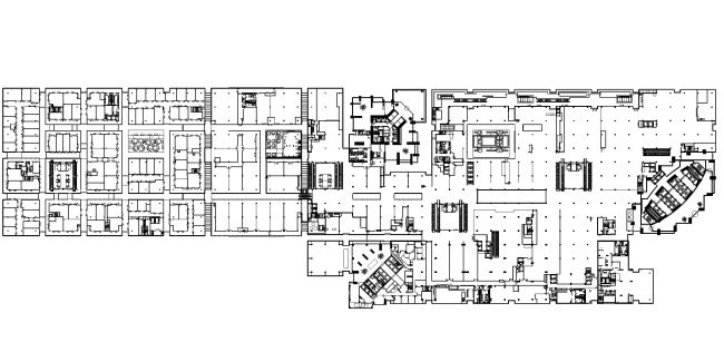
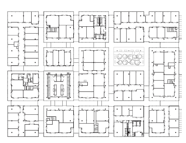
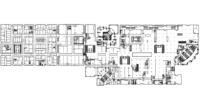
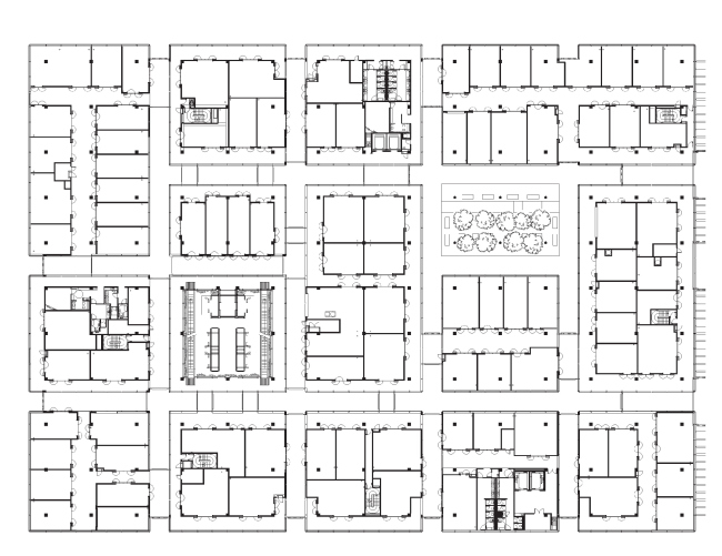
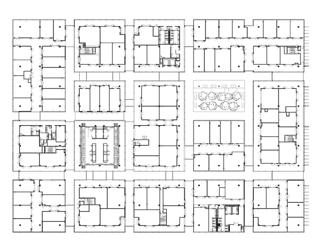
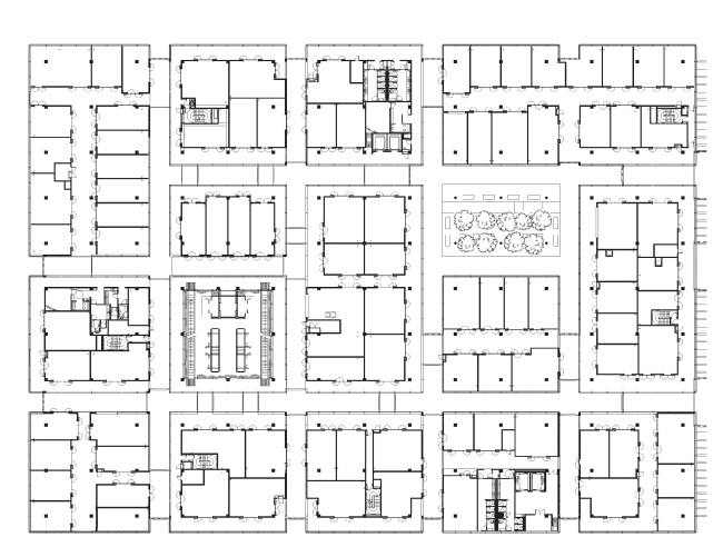
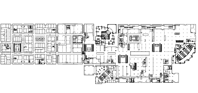
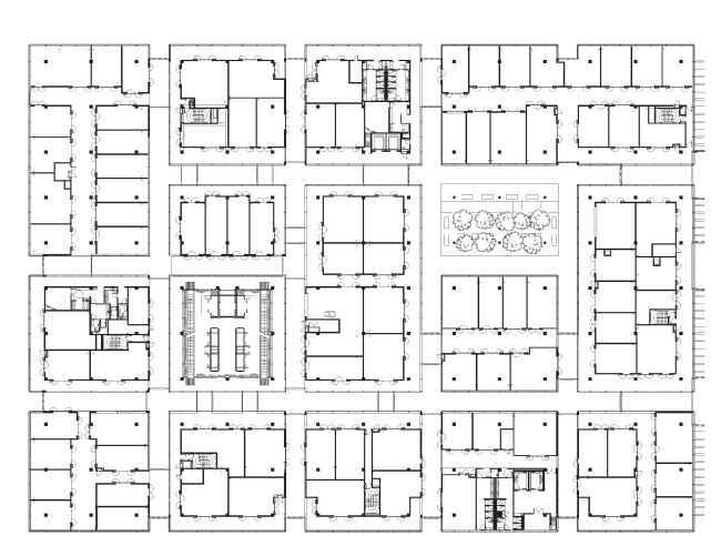
Центральный рынок Абу-Даби © Foster + Partners
Центральный рынок Абу-Даби © Foster + Partners
Центральный рынок Абу-Даби © Foster + Partners
Центральный рынок Абу-Даби © Foster + Partners
Центральный рынок Абу-Даби © Foster + Partners
Центральный рынок Абу-Даби © Foster + Partners
Центральный рынок Абу-Даби © Foster + Partners
Центральный рынок Абу-Даби © Foster + Partners
Центральный рынок Абу-Даби © Foster + Partners
Центральный рынок Абу-Даби © Foster + Partners
Центральный рынок Абу-Даби © Foster + Partners
Центральный рынок Абу-Даби © Foster + Partners
Центральный рынок Абу-Даби © Foster + Partners
Центральный рынок Абу-Даби © Foster + Partners
Центральный рынок Абу-Даби © Foster + Partners
Центральный рынок Абу-Даби © Foster + Partners
Центральный рынок Абу-Даби © Foster + Partners
Центральный рынок Абу-Даби © Foster + Partners
Центральный рынок Абу-Даби © Foster + Partners
Центральный рынок Абу-Даби © Foster + Partners
Центральный рынок Абу-Даби © Foster + Partners
Центральный рынок Абу-Даби © Foster + Partners
Центральный рынок Абу-Даби © Foster + Partners
Центральный рынок Абу-Даби © Foster + Partners