Размещено на портале Архи.ру (www.archi.ru)

05.11.2014

Стены – старые и новые

Филипп Якубчук
Объект:
Рейксмузеум – крыло Philips
Адрес:
Нидерланды, None, Амстердам.
Мастерская:
Cruz y Ortiz

Cruz y Ortiz завершили реновацию крыла Philips Рейксмузеума в Амстердаме.

Рейксмузеум – крыло Philips © Rijksmuseum / Ronald Tilleman
Рейксмузеум – крыло Philips © Rijksmuseum / Ronald Tilleman

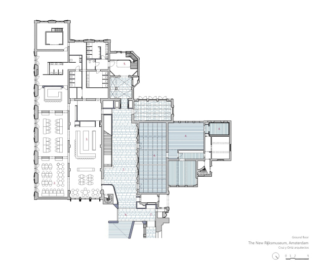
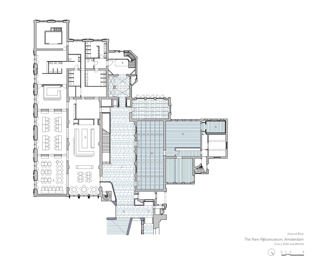
Испанские архитекторы Cruz y Ortis, которые уже десять лет занимаются обновлением Рейксмузеума, завершили комплексную реставрацию его крыла Philips. Напомним, что реновация основного комплекса музея была завершена весной 2013 года, и в ее ходе в главном музее Нидерландов, помимо прочих нововведений, были перекрыты светопрозрачными конструкциями и углублены внутренние дворы (об этом Архи.ру подробно писал). Именно углубление дворов повлекло за собой перенос срока открытия основного здания с 2008 на 2013 год, так как потребовалось решать проблему грунтовых вод и постепенной осадки постройки. Но все время, пока Рейксмузеум был закрыт, его крыло Philips оставалось открытым для посетителей. Затем, с открытием постоянной экспозиции в обновленном основном здании, этот корпус был в свою очередь закрыт на реставрацию. А теперь, с завершением крыла Philips, закончилась и вся масштабная эпопея реставрации нидерландского Рейксмузеума.
 
Рейксмузеум – крыло Philips © Rijksmuseum / Ronald Tilleman
Рейксмузеум – крыло Philips © Rijksmuseum / Ronald Tilleman

Обновленное крыло Philips предназначено для крупных временных выставок, составленных как из фондов музея, так и из произведений, позаимствованных из других национальных и международных собраний. Архитекторы переориентировали вход в здание, оборудовали выставочные залы, добавили новые функции. При этом часть залов сохранила свои прежние, дореставрационные экспонаты.
 
Рейксмузеум – крыло Philips © Rijksmuseum / Ronald Tilleman
Рейксмузеум – крыло Philips © Rijksmuseum / Ronald Tilleman

По словам авторов проекта, основной пространственный замысел в главном здании заключается в двух внутренних дворах, вокруг которых «обернуты» выставочные галереи. Cruz y Ortis лишь поддержали эту изначальную особенность постройки устройством современного общественного пространства во внутренних дворах, обеспечив торжественный вход в музей, а также много света и воздуха в интерьере. Это и стало одним из главных факторов успеха проекта.
 
Рейксмузеум – крыло Philips © Rijksmuseum / Ronald Tilleman
Рейксмузеум – крыло Philips © Rijksmuseum / Ronald Tilleman

При реконструкции крыла Philips был использован аналогичный прием. Внутренний двор постройки, с конца 1940-х недоступный для дневного света, был вновь открыт. Таким образом, ясно подчеркивается единство всех корпусов музея. Покинув просторный западный двор основного здания через юго-западный вход, посетитель идет по светлому коридору вдоль Азиатского павильона, затем, поворачивая в конце пути, оказывается под заниженным потолком и переходит в камерный атриум крыла Philips.
 
Рейксмузеум – крыло Philips © Rijksmuseum / Ronald Tilleman
Рейксмузеум – крыло Philips © Rijksmuseum / Ronald Tilleman

Как и в основном здании, в корпусе Philips найдено приятное созвучие старого и нового, напоминающее гениальные превращения исторических зданий в музеи, прославившие Карло Скарпу. Как и для итальянского мастера, для испанцев Антонио Круса и Антонио Ортиса характерны одновременная работа с историческим и современным слоями архитектуры, интерес к деталям, функциональность решений. Их «интервенции» не пытаются замаскироваться, они подчеркнуто современны, при этом совершенно ненавязчивы и растворяются в среде. Два временных слоя здания можно рассматривать, как вместе, так и по отдельности. С одной стороны, посетитель встретит знаки XXI века в виде португальского известняка Cascogne Azul, акустических панелей (они же люстры), ярких белых стен, прочных и элегантных серых перил, новых подъездов и дверей. С другой стороны, все обаяние внутреннего двора крыла строится вокруг фасада замка Бреды, чье изящество удачно подчеркиваются минималистичным обрамлением.
 
Рейксмузеум – крыло Philips © Rijksmuseum / Ronald Tilleman
Рейксмузеум – крыло Philips © Rijksmuseum / Ronald Tilleman

Фасад замка Бреды является, пожалуй, самым масштабным экспонатом Рейксмузеума, достигая 20 м в длину и 3,5 м в высоту. Фасад был частью корпуса конюшен замка, одной из самых ранних построек в стиле Ренессанса в Северной Европе: он относится ко 2-й четверти XVI века. В ходе перестройки замка в XIX веке фасад был разобран и перевезен из Бреды в Амстердам, где стал наружной стеной части музея, ныне ставшей крылом Philips. После расширения этого корпуса фасад оказался во внутреннем дворе. История этого памятника архитектуры с реконструкцией крыла Philips получила свое развитие: теперь он снова доступен для осмотра.
Рейксмузеум – крыло Philips © Rijksmuseum / Ronald Tilleman
Рейксмузеум – крыло Philips © Rijksmuseum / Ronald Tilleman
Рейксмузеум – крыло Philips © Rijksmuseum / Ronald Tilleman
Рейксмузеум – крыло Philips © Rijksmuseum / Ronald Tilleman
Рейксмузеум – крыло Philips © Rijksmuseum / John Lewis Marshall
Рейксмузеум – крыло Philips © Rijksmuseum / John Lewis Marshall
Рейксмузеум – крыло Philips © Rijksmuseum / John Lewis Marshall
Рейксмузеум – крыло Philips © Rijksmuseum / John Lewis Marshall
Рейксмузеум – крыло Philips. Фасад замка Бреды © Rijksmuseum / Ronald Tilleman
Рейксмузеум – крыло Philips. Фасад замка Бреды © Rijksmuseum / Ronald Tilleman
Рейксмузеум – крыло Philips © Rijksmuseum / Ronald Tilleman
Рейксмузеум – крыло Philips © Rijksmuseum / Ronald Tilleman
Рейксмузеум – крыло Philips © Rijksmuseum / Ronald Tilleman
Рейксмузеум – крыло Philips © Rijksmuseum / Ronald Tilleman
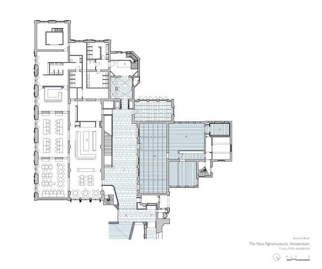
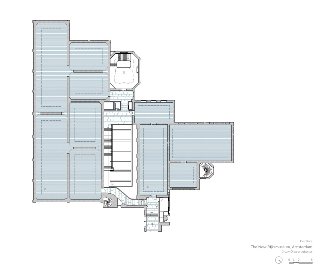
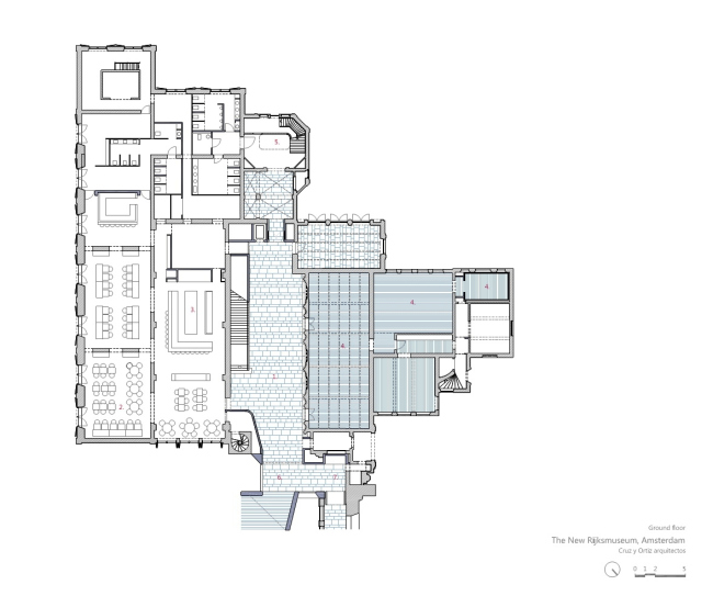
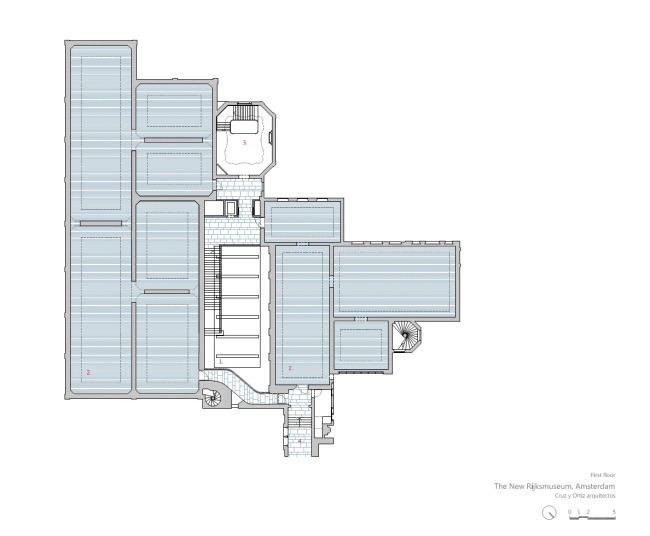
Рейксмузеум – крыло Philips © Cruz y Ortis
Рейксмузеум – крыло Philips © Cruz y Ortis
Рейксмузеум – крыло Philips © Cruz y Ortis
Рейксмузеум – крыло Philips © Cruz y Ortis
Рейксмузеум – крыло Philips © Cruz y Ortis
Рейксмузеум – крыло Philips © Cruz y Ortis
Рейксмузеум – крыло Philips © Cruz y Ortis
Рейксмузеум – крыло Philips © Cruz y Ortis
Рейксмузеум – крыло Philips © Cruz y Ortis
Рейксмузеум – крыло Philips © Cruz y Ortis
Рейксмузеум – крыло Philips © Cruz y Ortis
Рейксмузеум – крыло Philips © Cruz y Ortis
Рейксмузеум – крыло Philips © Cruz y Ortis
Рейксмузеум – крыло Philips © Cruz y Ortis
Рейксмузеум – крыло Philips © Cruz y Ortis
Рейксмузеум – крыло Philips © Cruz y Ortis