Размещено на портале Архи.ру (www.archi.ru)

06.11.2014

Медные горы

Анна Мартовицкая
Объект:
Проект района среднеэтажной жилой застройки в окрестностях Екатеринбурга
Адрес:
Россия, Екатеринбург.
Мастерская:
Архитектуриум
Авторский коллектив:
Владимир Биндеман, Олег Бородин, Федор Буйнов

Район среднеэтажной жилой застройки в окрестностях Екатеринбурга трактован как урбанизированное воплощение уральского ландшафта.

Проект района среднеэтажной жилой застройки в окрестностях Екатеринбурга © «Архитектуриум», 2014
Проект района среднеэтажной жилой застройки в окрестностях Екатеринбурга © «Архитектуриум», 2014

Участок, предназначенный для строительства нового жилого района, расположен в тридцати километрах к юго-востоку от Екатеринбурга, между лесным массивом и первым в этом регионе гольф-полем. Его общая площадь – одиннадцать гектаров и, примыкая непосредственно к полю, он обрамляет одну из игровых зон с запада и севера, в плане приобретая форму плавной дуги.
 
«Очень живописное поле, «ширма» леса и горы на заднем плане не оставили у нас сомнений в том, что именно ландшафт играет здесь первостепенную роль, – рассказывает Владимир Биндеман. – Кроме того, нам очень хотелось использовать в проекте знаменитый местный камень и как-то отразить уникальную местную традицию прорубать в горной породе дороги и жилье, поэтому образ будущего района сложился у нас практически мгновенно. Дома, расположенные здесь, должны были стать органичной частью рельефа, максимально природным элементом, связывающим воедино поле, лес и горы». Сначала авторы были настроены выразить эту метафору максимально точно и предложили заказчику террасированные дома с зелеными кровлями, притянув последние к самой земле: получились здания-холмы, которые визуально действительно воспринимались как переход от равнинной местности к гористой. Однако первые же подсчеты показали, что реализация такого проекта обойдется заказчику слишком дорого. Поэтому в итоге тема природы присутствует в проекте на порядок более условно – в виде многочисленных террас, окантованных зеленой медью, и продуманной облицовки фасадов. Впрочем, обо всем по порядку.

Участок условно разделен на три зоны, или, с учетом его конфигурации, скорее, «пояса»: дальше всего от гольф-поля удалены въездная группа и инфраструктура, в центре расположены жилье и пешеходные дворы, а непосредственно с полем граничит ландшафтно-рекреационная зона. Такое решение более чем логично: с одной стороны, архитекторы хотели изолировать собственно жилье от машин и просто посторонних, с другой – они не могли возвести его непосредственно по кромке поля: гольф – не самая безопасная для случайных пешеходов игра, поэтому некоторая «зона отчуждения» необходима. Трактовав последнюю как сложносочиненный променад, авторы постарались максимально раскрыть на него (и, конечно, на поле) жилые дома.
Проект района среднеэтажной жилой застройки в окрестностях Екатеринбурга © «Архитектуриум», 2014
Проект района среднеэтажной жилой застройки в окрестностях Екатеринбурга © «Архитектуриум», 2014
Проект района среднеэтажной жилой застройки в окрестностях Екатеринбурга © «Архитектуриум», 2014
Проект района среднеэтажной жилой застройки в окрестностях Екатеринбурга © «Архитектуриум», 2014

Всего в состав комплекса входит семь жилых корпусов, пять из которых представляют собой многосекционные дома, скомпонованные в скобки, «распахнутые» в сторону поля. Впрочем, центральная секция разомкнута: два длинных террасных крыла пущены почти параллельно друг другу, а одна угловая чуть меньше остальных – различия, продиктованные особенностями участка и его похожим на бумеранг абрисом, позволяют придать индивидуальность каждой из секций и их дворовым пространствам.
Проект района среднеэтажной жилой застройки в окрестностях Екатеринбурга © «Архитектуриум», 2014
Проект района среднеэтажной жилой застройки в окрестностях Екатеринбурга © «Архитектуриум», 2014

Каждый дом поднят на стилобат с озелененной кровлей, а дворы получили довольно активный рельеф – фактически это целая система зеленых террас и дорожек, полностью изолированная от машин. «В стилобате мы разместили паркинги, что, с одной стороны, позволило сделать дворы полностью пешеходными, а с другой уйти от проблемы с сильным заглублением в скалистую породу», – поясняет Владимир Биндеман. «Зеленые клинья» проведены также и между домами: благодаря им жители получат дополнительные маршруты для прогулок, а застройка не будет смотреться «сплошным бастионом», разделяющим гольф-поле и лес. Впрочем, определенные черты природных элементов архитекторы придали и каждому из зданий.
Проект района среднеэтажной жилой застройки в окрестностях Екатеринбурга © «Архитектуриум», 2014
Проект района среднеэтажной жилой застройки в окрестностях Екатеринбурга © «Архитектуриум», 2014

Все секционные корпуса – переменной этажности, от двух до шести этажей, спускаются в сторону гольф-поля широкими «ступенями». Облицованные натуральным камнем и уже упомянутыми медными панелями, они похожи на изломы обнажившейся горной породы. Лишь треть террас задумана как обитаемая – ее предполагается обшить деревом, а оставшуюся часть задекорировать отсыпкой. В отделке фасадов «Архитектуриум» также предлагает применить натуральный камень местного производства, змеевик и песчаник.  Впрочем, на дворовых и задних фасадах преобладает панорамное остекление; стеклянные вертикали лестничных пространств и холлов также визуально «расщепляют» объемы, делая дворы более проницаемыми и светлыми.
Проект района среднеэтажной жилой застройки в окрестностях Екатеринбурга © «Архитектуриум», 2014
Проект района среднеэтажной жилой застройки в окрестностях Екатеринбурга © «Архитектуриум», 2014

В треугольных сегментах, образованных крыльями трех центральных домов, архитекторы разместили две эллиптические восьмиэтажные башни. На фоне сложной геометрии остальных объемов они выглядят весьма неожиданно: авторы проекта объясняют подобный выбор формы желанием обеспечить оптимальную инсоляцию и дать всем квартирам наилучший обзор. Между тем овальные дома не только предлагают будущим жителям интересную альтернативу в смысле квартир, но и служат своего рода лэндмарками квартального центра, несколько смягчая и тем самым осовременивая его «горный» облик. Впрочем, и в них самих можно усмотреть что-то нерукотворное – особенно в профиль, за счет увеличения площади от нижнего этажа к верхнему и обильного остекления скругленного «носа» они напоминают гигантские глыбы льда – кто знает, может быть, и уцелели среди гор и лесов со времен ледникового периода, а теперь вот успешно приспосабливаются для жилья.
 
Как признается Владимир Биндеман, этот район задумывался как своего рода курорт. А поскольку в роли моря здесь выступает гольф-поле, окруженное довольно суровой природой, то и внешность он получил соответствующую. Основательные и в чем-то даже брутальные дома, дворы, уподобленные замшелым холмам и защищенная от непогоды развитая подземная часть (вся общественная инфраструктура размещена именно там) создают идеальные условия для комфортной жизни на Урале.
Проект района среднеэтажной жилой застройки в окрестностях Екатеринбурга © «Архитектуриум», 2014
Проект района среднеэтажной жилой застройки в окрестностях Екатеринбурга © «Архитектуриум», 2014
Проект района среднеэтажной жилой застройки в окрестностях Екатеринбурга © «Архитектуриум», 2014
Проект района среднеэтажной жилой застройки в окрестностях Екатеринбурга © «Архитектуриум», 2014
Проект района среднеэтажной жилой застройки в окрестностях Екатеринбурга © «Архитектуриум», 2014
Проект района среднеэтажной жилой застройки в окрестностях Екатеринбурга © «Архитектуриум», 2014
Проект района среднеэтажной жилой застройки в окрестностях Екатеринбурга © «Архитектуриум», 2014
Проект района среднеэтажной жилой застройки в окрестностях Екатеринбурга © «Архитектуриум», 2014
Проект района среднеэтажной жилой застройки в окрестностях Екатеринбурга. Корпус №7. Фасады © «Архитектуриум», 2014
Проект района среднеэтажной жилой застройки в окрестностях Екатеринбурга. Корпус №7. Фасады © «Архитектуриум», 2014
Проект района среднеэтажной жилой застройки в окрестностях Екатеринбурга. Корпус №5. Фасады © «Архитектуриум», 2014
Проект района среднеэтажной жилой застройки в окрестностях Екатеринбурга. Корпус №5. Фасады © «Архитектуриум», 2014
Проект района среднеэтажной жилой застройки в окрестностях Екатеринбурга. Генплан © «Архитектуриум», 2014
Проект района среднеэтажной жилой застройки в окрестностях Екатеринбурга. Генплан © «Архитектуриум», 2014
Проект района среднеэтажной жилой застройки в окрестностях Екатеринбурга. Корпус №2. План 2-го этажа © «Архитектуриум», 2014
Проект района среднеэтажной жилой застройки в окрестностях Екатеринбурга. Корпус №2. План 2-го этажа © «Архитектуриум», 2014
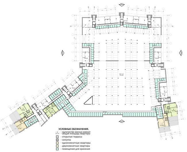
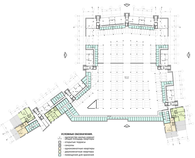
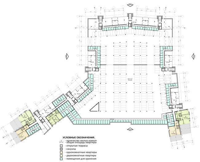
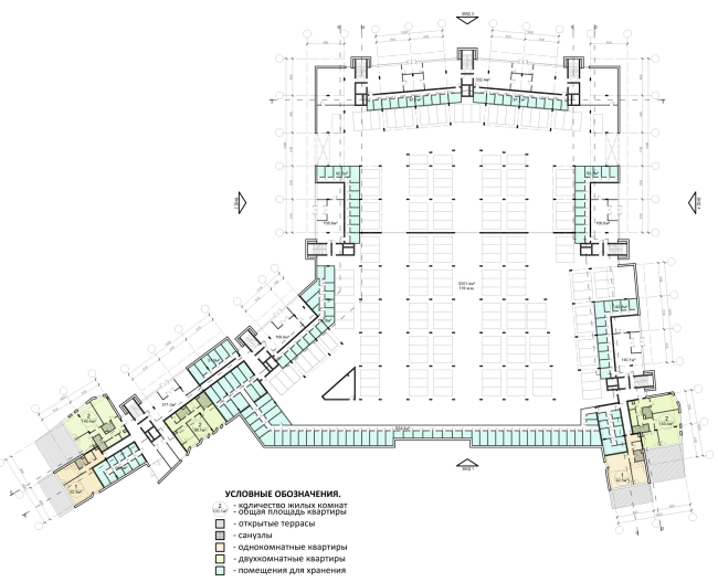
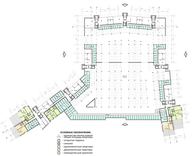
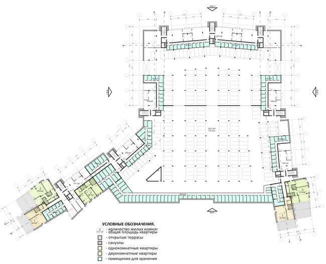
Проект района среднеэтажной жилой застройки в окрестностях Екатеринбурга. Корпус №2. План 1-го этажа © «Архитектуриум», 2014
Проект района среднеэтажной жилой застройки в окрестностях Екатеринбурга. Корпус №2. План 1-го этажа © «Архитектуриум», 2014
Проект района среднеэтажной жилой застройки в окрестностях Екатеринбурга. Корпус №2. План 6-го этажа © «Архитектуриум», 2014
Проект района среднеэтажной жилой застройки в окрестностях Екатеринбурга. Корпус №2. План 6-го этажа © «Архитектуриум», 2014
Проект района среднеэтажной жилой застройки в окрестностях Екатеринбурга. Корпус №5. План 2-8-го этажа © «Архитектуриум», 2014
Проект района среднеэтажной жилой застройки в окрестностях Екатеринбурга. Корпус №5. План 2-8-го этажа © «Архитектуриум», 2014
Проект района среднеэтажной жилой застройки в окрестностях Екатеринбурга. Корпус №5. План 1-го этажа © «Архитектуриум», 2014
Проект района среднеэтажной жилой застройки в окрестностях Екатеринбурга. Корпус №5. План 1-го этажа © «Архитектуриум», 2014
Проект района среднеэтажной жилой застройки в окрестностях Екатеринбурга. Корпус №2. Разрезы 1-1, 2-2, 3-3, 4-4, 5-5 © «Архитектуриум», 2014
Проект района среднеэтажной жилой застройки в окрестностях Екатеринбурга. Корпус №2. Разрезы 1-1, 2-2, 3-3, 4-4, 5-5 © «Архитектуриум», 2014